10-1385 HOUSE PLAN – Colonial Revival (Georgian) Home Plan – 4 Beds, 6,341 Sq Ft
Explore a 2-story Colonial Revival/Georgian home plan: 6,341 sq ft, 4 beds, finished basement, open layout, covered porches, and CAD + PDF blueprints.
Colonial Revival (Georgian-Style) Home Plan with Basement and Garage – 6,341 SqFt
Discover this expansive 2-story Colonial Revival (Georgian-style) home plan with 6,341 heated sq. ft., 4 bedrooms, finished basement, and open-concept layout—includes CAD blueprints and PDF files.
This home plan blends timeless Georgian symmetry with modern practicality. With Colonial Revival detailing, it delivers classic curb appeal and flexible living space across three levels.
Key Features of the Home Plan
Living Areas – Heated & Unheated
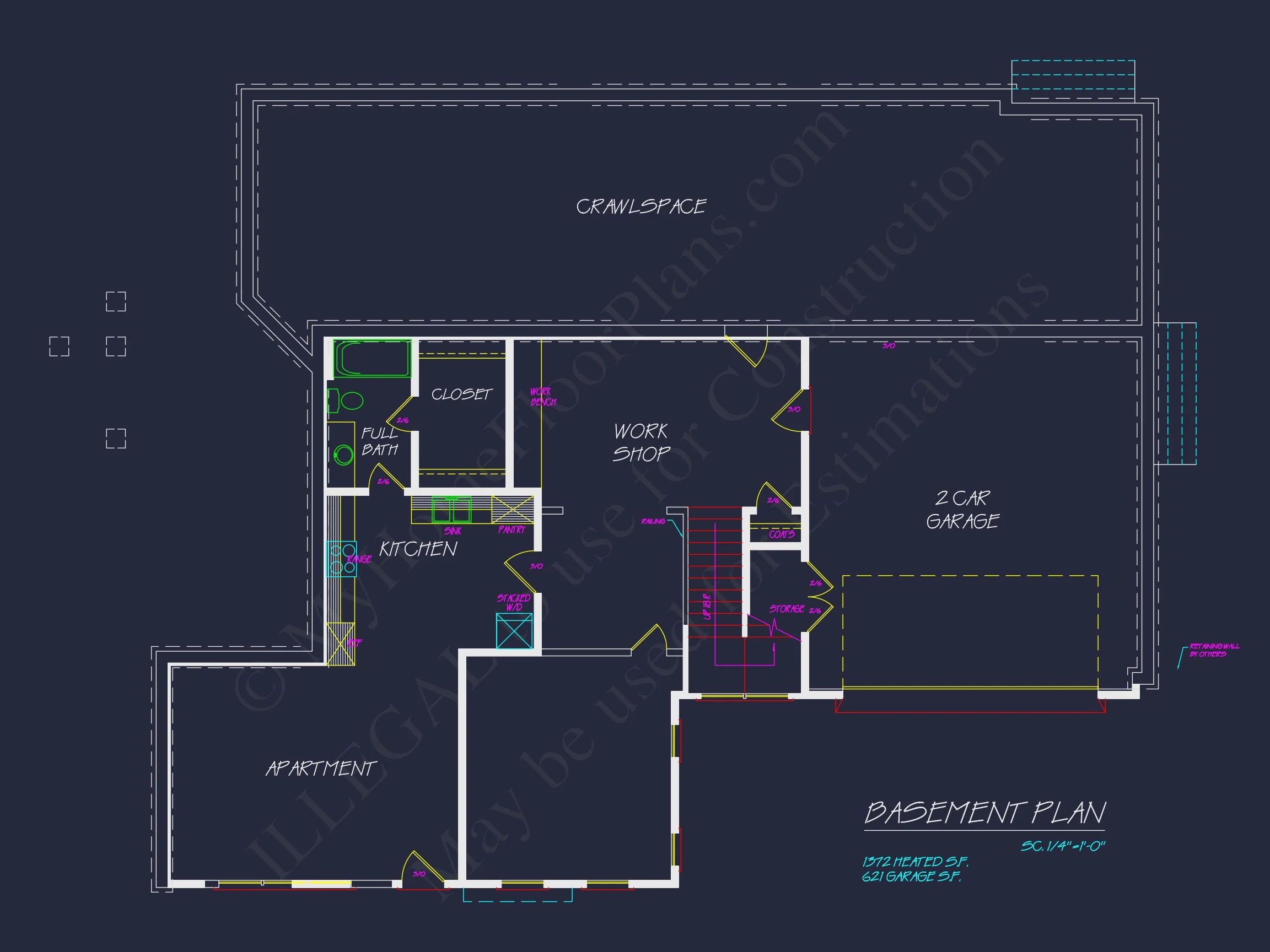
- Heated area: 6,341 sq. ft. over two stories and finished basement.
 - Unheated extras: Covered front porch, screened porch, rear terrace, and attached garage.
 
Bedrooms & Bathrooms
- 4 spacious bedrooms designed for privacy and comfort.
 - 3 full bathrooms conveniently distributed across levels.
 
Interior Highlights
- Elegant ceiling details and tall windows amplify natural light.
 - Open floor plan for effortless transitions between kitchen, dining, and family rooms. View open layouts.
 - Home office/study ideal for remote work or homework space.
 - Finished basement adds multipurpose space for entertainment or storage.
 - Attic access allows for future expansion or seasonal storage.
 
Garage & Storage Details
- Garage Bays: 2-car garage with front entry access.
 - Garage Type: Attached garage with convenient indoor entry.
 - Storage: Generous attic space, potential basement storage, and built-in cabinetry options.
 
Outdoor Living Features
- Welcoming covered front porch with classical columns—perfect for relaxing evenings.
 - Screened rear porch offers year-round outdoor enjoyment free of insects.
 - Terrace space adds versatility for outdoor dining and gatherings.
 - Low-maintenance siding and masonry accents for enduring Colonial character.
 
Architectural Style: Colonial Revival (Georgian-Style)
This design showcases hallmarks of Colonial Revival: a symmetrical façade, centered entry with transom, multi-pane windows, and a hipped/side-gabled roofline paired with a gracious full-width porch. Learn more about the Traditional style or explore Colonial Revival roots on ArchDaily.
Bonus Features
- Dedicated office/study for productivity and focus.
 - Basement level adaptable as a gym, media room, or guest retreat.
 - Attic potential to convert into additional living or storage space.
 
Included Benefits with Every Plan
- CAD + PDF Files: Included with your purchase—print, edit, or build right away.
 - Unlimited Build License: No extra cost to build more than once.
 - Free Foundation Changes: Choose between basement, slab, or crawlspace—on us. Learn more.
 - Structural Engineering Included: All plans are code-compliant and engineer stamped.
 - Lower Modification Costs: Customize your layout for 50% less than competitors. See your options.
 - View Before You Buy: Preview all sheets included in your plan set.
 
Similar Collections You Might Love
- Traditional House Plans
 - Plans with Basement Levels
 - Front Porch House Plans
 - Garage-Included House Plans
 - Plans with Screened Porches
 
Frequently Asked Questions
How large is this house? This Colonial Revival (Georgian-style) home includes 6,341 square feet of heated living space, spread across two stories plus a finished basement.
What’s included with the blueprint purchase? Every plan includes full CAD files, PDF blueprints, structural engineering, free foundation changes, and an unlimited build license.
Can this design be built on a sloped lot? Yes, the included basement layout makes it ideal for sloping terrain.
Are the garage and porch included in the design files? Yes. All porch and garage elements are detailed in the blueprints.
Can I make modifications? Absolutely. Our in-house team provides fast and affordable changes. Request a quote here.
Start Building Your Dream House Today
Questions or ready to start? Reach out to our expert team at support@myhomefloorplans.com or use our quick contact form.
Create a timeless Colonial Revival home that blends tradition with smart design—download your full plan set today!
Original price was: $4,870.56.$2,754.22Current price is: $2,754.22.
999 in stock
* Please verify all details with the actual plan, as the plan takes precedence over the information shown below.
| Width | 56'-4"  | 
		
|---|---|
| Depth | 77'-4"  | 
		
| Htd SF | |
| Unhtd SF | |
| Bedrooms | |
| Bathrooms | |
| # of Floors | |
| # Garage Bays | |
| Architectural Styles | |
| Indoor Features | |
| Outdoor Features | |
| Bed and Bath Features | Bedrooms on Second Floor, Owner's Suite on First Floor, Owner's Suite on Second Floor, Walk-in Closet  | 
		
| Kitchen Features | |
| Garage Features | |
| Condition | New  | 
		
| Ceiling Features | |
| Structure Type | |
| Exterior Material | 
Jason Christensen – July 28, 2025
Plan ZIP size under 6 MB saves cloud storage and bandwidth.
Attics | Basement | Basement Garage | Breakfast Nook | Colonial | Covered Front Porch | Deck | Family Room | Front Entry | Luxury | Office/Study Designs | Open Floor Plan Designs | Owner’s Suite on Second Floor | Owner’s Suite on the First Floor | Screened Porches | Second Floor Bedroom | Terrace | Traditional Farmhouse | Vaulted Ceiling | Walk-in Closet | Workshop
10-1385 HOUSE PLAN – Colonial Revival (Georgian) Home Plan – 4 Beds, 6,341 Sq Ft
- BOTH a PDF and CAD file (sent to the email provided/a copy of the downloadable files will be in your account here)
 - PDF – Easily printable at any local print shop
 - CAD Files – Delivered in AutoCAD format. Required for structural engineering and very helpful for modifications.
 - Structural Engineering – Included with every plan unless not shown in the product images. Very helpful and reduces engineering time dramatically for any state. *All plans must be approved by engineer licensed in state of build*
 
Disclaimer
Verify dimensions, square footage, and description against product images before purchase. Currently, most attributes were extracted with AI and have not been manually reviewed.
My Home Floor Plans, Inc. does not assume liability for any deviations in the plans. All information must be confirmed by your contractor prior to construction. Dimensions govern over scale.




















