Plan 20-1143 – The Scott Farmhouse | Neo-Colonial – 4-Bed, 3.5-Bath, 2,707 SF

Neo-Colonial and Georgian house plan with clapboard siding exterior • 4 bed • 3.5 bath • 2,707 SF. Symmetrical façade, covered porches, refined classical detailing. Includes CAD+PDF + unlimited build license.

Original price was: $2,518.99.Current price is: $1,554.78.

999 in stock

What’s Included

Foundation Type *

Multiple foundation types may be selected. One foundation option is usually covered by the 10 hours of free drafting. If unsure, select ‘AS SHOWN’ — changes can be handled with included drafting hours.

Select Framing Options*

Recommended for colder climates or higher energy efficiency.

Optional Free Enhancements

Total: $1,554.78

* Please verify all details with the actual plan, as the plan takes precedence over the information shown below.

Architectural Styles

Width

24'-0"

Depth

56'-0"

Htd SF

Bedrooms

Bathrooms

# of Floors

# Garage Bays

Indoor Features

, , , , ,

Outdoor Features

, ,

Bed and Bath Features

, , ,

Kitchen Features

,

Condition

New

Ceiling Features

,

Structure Type

Unhtd SF

Exterior Material

,

No reviews yet.

This controls the badge text on the top-left of the Blueprint image.

Timeless Neo-Colonial House Plan with Georgian Symmetry

A refined 3-story home design offering 3,600 heated square feet, classic proportions, and enduring curb appeal—includes CAD files and unlimited build license.

This Neo-Colonial house plan with Georgian styling delivers a dignified architectural presence rooted in traditional American design. With its balanced façade, elegant entry detailing, and classic clapboard siding, this home is ideal for buyers seeking a timeless look with modern livability. Designed to fit suburban neighborhoods, estate lots, and traditional communities, the layout combines historical character with contemporary function.

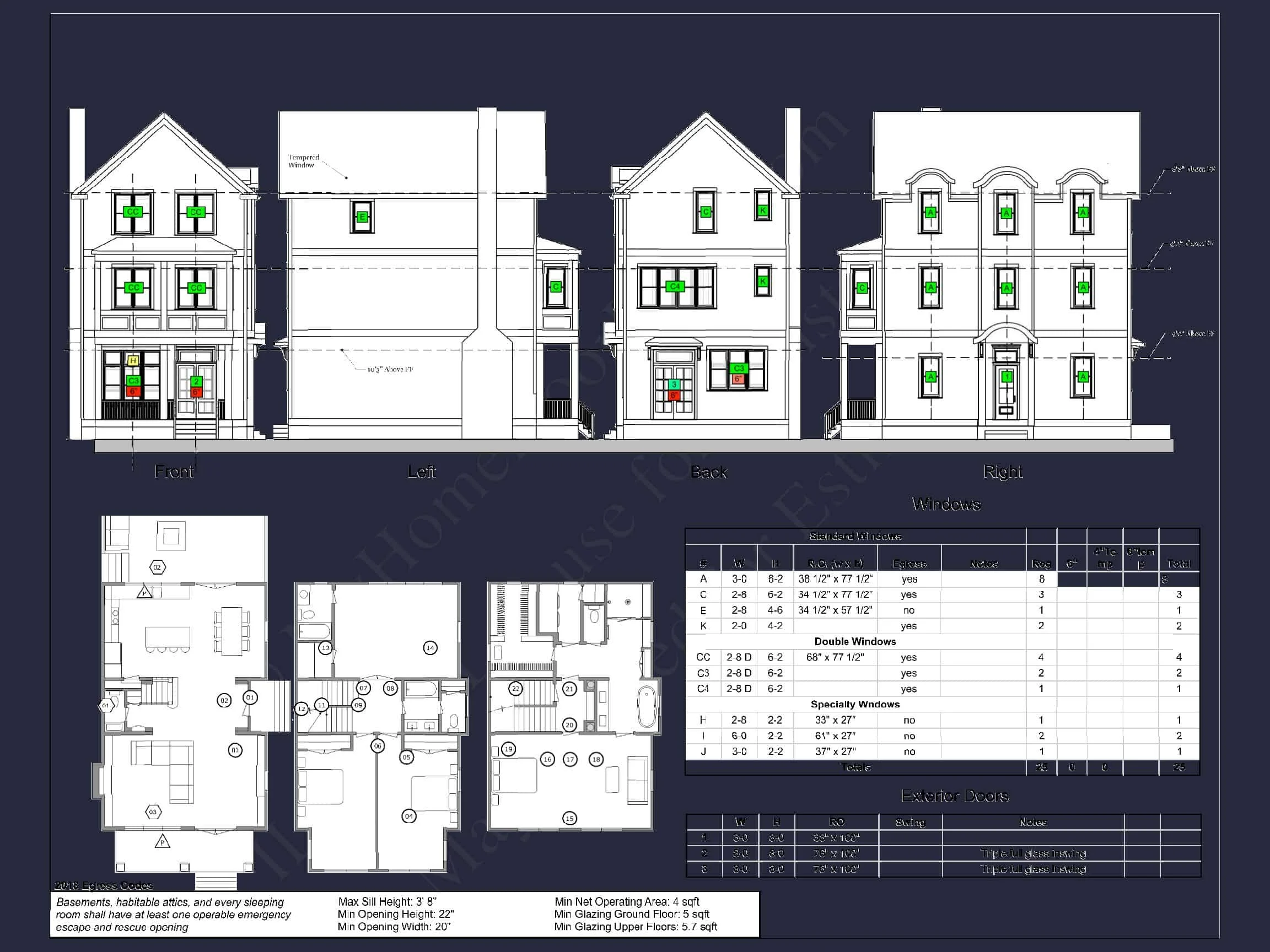
Architectural Character & Exterior Design

The exterior reflects hallmark elements of Neo-Colonial and Georgian architecture, including formal symmetry, vertically aligned windows, and refined trim profiles. This style draws inspiration from early American homes while adapting proportions and layouts to meet modern expectations.

  • Classic symmetrical front elevation with centered entry
  • Horizontal clapboard siding for timeless curb appeal
  • Decorative window surrounds and shutters
  • Elegant covered front entry with classical detailing
  • Multi-level porches enhancing outdoor connection

The restrained color palette and proportional balance ensure this design remains visually relevant for decades, making it an excellent long-term investment.

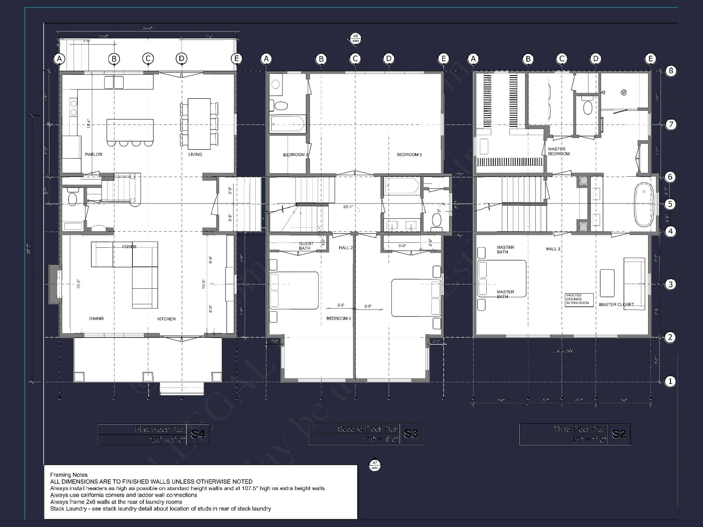
Interior Layout Overview

Inside, the home offers a thoughtful three-story layout that separates public and private spaces while maintaining smooth flow throughout.

Main Living Level

The main floor is designed for daily living and entertaining, featuring generous room sizes and natural light.

  • Formal foyer with direct sightlines through the home
  • Spacious living room ideal for gatherings
  • Open kitchen with large island and ample cabinetry
  • Dining area positioned for easy hosting
  • Optional fireplace anchoring the main living space

The layout allows for both formal entertaining and relaxed everyday use, a key advantage of Neo-Colonial planning.

Second Floor – Private Living Quarters

The second level houses the primary sleeping quarters, offering privacy and comfort.

  • Owner’s suite with generous bedroom proportions
  • En-suite bathroom with dual vanities and walk-in shower
  • Additional bedrooms with shared or private baths
  • Central laundry location for convenience

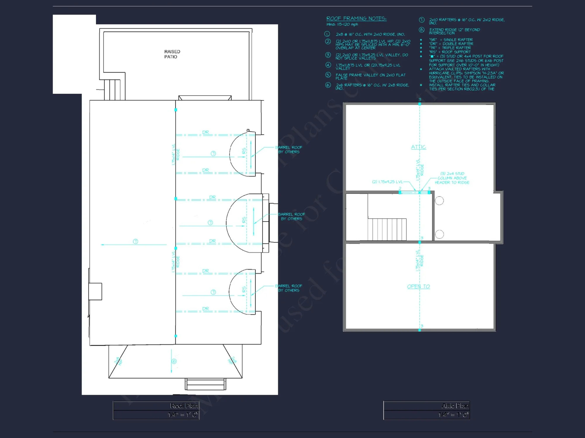
Third Floor – Flexible Living Space

The third floor adds versatility, making this plan suitable for growing families or multi-generational living.

  • Optional guest suite or additional bedroom
  • Bonus room for home office, media room, or studio
  • Full bathroom supporting flexible use

Why Neo-Colonial & Georgian Styles Endure

Neo-Colonial homes remain popular due to their adaptable layouts and familiar appearance. Georgian influence adds refinement through symmetry and proportion, resulting in a home that feels both stately and welcoming. According to architectural historians, Georgian-inspired homes continue to shape American residential design due to their clarity and balance (ArchDaily).

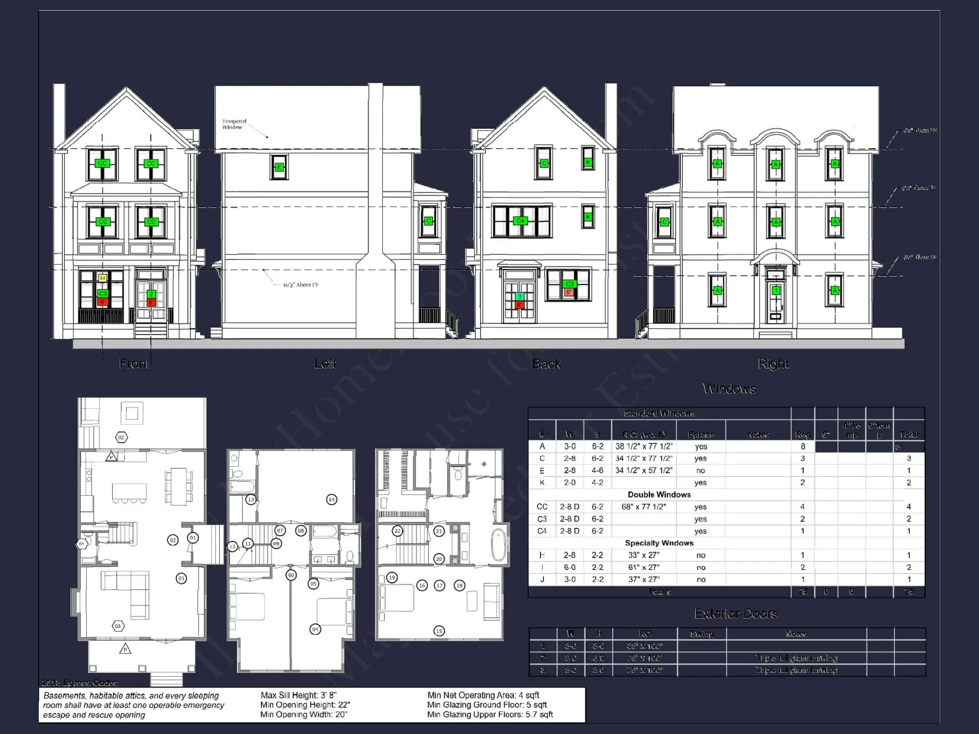
Key Specifications

  • Total Heated Area: 3,600 sq. ft.
  • Bedrooms: 5
  • Bathrooms: 4
  • Stories: 3
  • Exterior Material: Clapboard siding

What’s Included with This House Plan

  • Editable CAD Files: Modify layouts easily
  • Printable PDF Blueprints: Ready for permitting and construction
  • Unlimited Build License: Build multiple times with no added fees
  • Structural Engineering Included: Code-ready drawings
  • Free Foundation Options: Slab, crawlspace, or basement

Ideal Uses for This Design

This Neo-Colonial Georgian house plan is well-suited for:

  • Traditional suburban developments
  • Luxury infill lots
  • Historic-style communities
  • Buyers seeking timeless resale value

Customization Options

Layouts can be tailored to your lifestyle, including kitchen expansions, porch modifications, or alternate bedroom configurations. The clean structural grid of Colonial-based architecture makes customization straightforward and cost-effective.

Build with Confidence

With professionally prepared drawings, included engineering, and flexible design options, this plan offers an efficient path from concept to construction. Its enduring style ensures strong curb appeal today and lasting value in the future.

Choose a home design rooted in tradition—crafted for modern living and built to stand the test of time.

Plan 20-1143 – The Scott Farmhouse | Neo-Colonial – 4-Bed, 3.5-Bath, 2,707 SF
WHAT'S INCLUDED IN THE DELIVERY
All plans are drawn to scale and include:
  • BOTH a PDF and CAD file (sent to the email provided/a copy of the downloadable files will be in your account here)
  • PDF – Easily printable at any local print shop
  • CAD Files – Delivered in AutoCAD format. Required for structural engineering and very helpful for modifications.
  • Structural Engineering – Included with every plan unless not shown in the product images. Very helpful and reduces engineering time dramatically for any state. *All plans must be approved by engineer licensed in state of build*
Plans purchased are for an “unlimited” multi-use license
*Delivered plans include minimally what are shown in the product images. In most cases, additional notes and details not shown are included. To inquire about these details, please contact us at support@myhomefloorplans.com prior to purchase.*

Disclaimer

Verify dimensions, square footage, and description against product images before purchase. Currently, most attributes were extracted with AI and have not been manually reviewed.

My Home Floor Plans, Inc. does not assume liability for any deviations in the plans. All information must be confirmed by your contractor prior to construction. Dimensions govern over scale.