Plan 14-1249 – Onyx Contractors | New American – 3-Bed, 2.5-Bath, 2,650 SF
New American and Traditional Colonial house plan with stone and shake exterior • 4 bed • 3 bath • 2,800 SF. Covered front porch, open-concept living, classic symmetry. Includes CAD+PDF + unlimited build license.
Original price was: $2,476.45.$1,454.99Current price is: $1,454.99.
999 in stock
* Please verify all details with the actual plan, as the plan takes precedence over the information shown below.
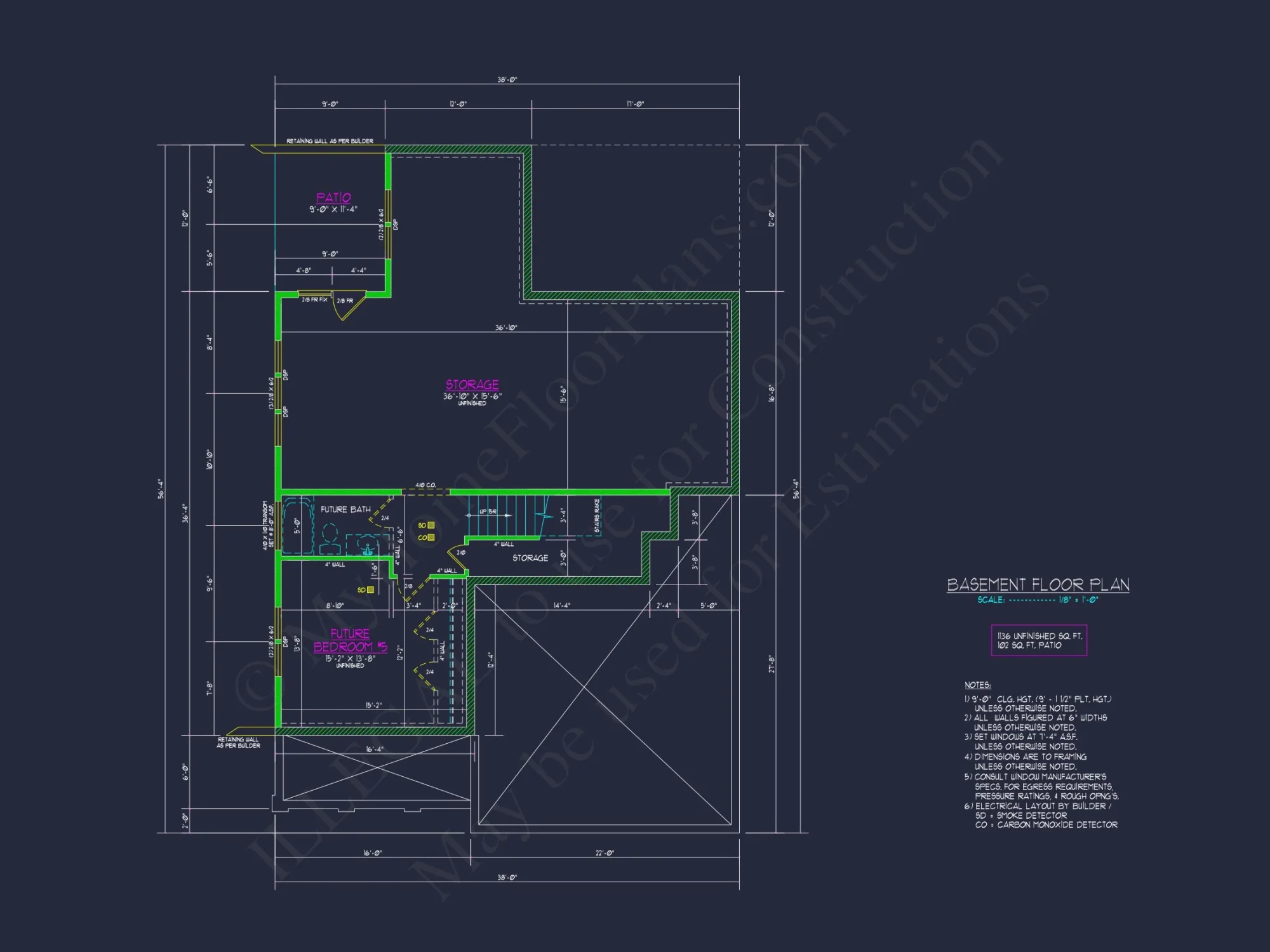
| Width | 38'-0" |
|---|---|
| Depth | 44'-4" |
| Htd SF | |
| Unhtd SF | |
| Bedrooms | |
| Bathrooms | |
| # of Floors | |
| # Garage Bays | |
| Architectural Styles | |
| Indoor Features | Open Floor Plan, Family Room, Office/Study, Recreational Room, Bonus Room, Sunroom, Basement |
| Outdoor Features | |
| Bed and Bath Features | Bedrooms in Basement, Bedrooms on Second Floor, Owner's Suite on Second Floor, Jack and Jill Bathroom, Walk-in Closet |
| Kitchen Features | |
| Garage Features | |
| Condition | New |
| Ceiling Features | |
| Structure Type | |
| Exterior Material |
No reviews yet.
9 FT+ Ceilings | Affordable | Basement | Basement Garage | Bedrooms in Basement | Bonus Rooms | Breakfast Nook | Covered Front Porch | Covered Patio | Craftsman | Dining Room | Family Room | Front Entry | Grill Deck | Jack and Jill | Kitchen Island | Large House Plans | Modern Suburban Designs | Office/Study Designs | Open Floor Plan Designs | Owner’s Suite on Second Floor | Patios | Recreational Room | Screened Porches | Second Floor Bedroom | Sloped Lot | Smooth & Conventional | Traditional Craftsman | Walk-in Closet
New American Home Plan with Stone and Shake Exterior
This New American house plan offers approximately 2,800 heated square feet, 4 bedrooms, 3 bathrooms, and timeless curb appeal with a stone and shake exterior.
This thoughtfully designed New American home plan blends classic architectural traditions with modern livability. The exterior combines natural stone, cedar shake shingles, and crisp horizontal siding to create a welcoming yet refined façade that feels equally at home in established neighborhoods or new suburban communities.
Inspired by Modern Traditional and Traditional Colonial influences, this design emphasizes balance, symmetry, and enduring materials—while the interior delivers the open layouts and functional spaces today’s families expect.
Exterior Design & Architectural Style
The exterior showcases hallmark elements of the New American style, including varied textures, strong rooflines, and a prominent covered front porch. The mix of stone veneer on the main level and shake siding above adds visual depth and upscale character without overwhelming the structure.
- Stone veneer foundation and front elevation accents
- Cedar shake siding paired with horizontal lap siding
- High-contrast trim for crisp window and roofline definition
- Covered front porch with classic columns and railing
- Symmetrical window placement for timeless curb appeal
This combination of materials reflects the broader trend toward durable, low-maintenance exteriors that still feel warm and authentic—an approach frequently highlighted in residential design features by Fine Homebuilding.
Interior Layout Overview
Inside, the home opens to a bright, flowing floor plan that connects everyday living spaces while still offering privacy where it matters most. The layout is ideal for families who want both open gathering areas and dedicated rooms for work, rest, and retreat.
Main Living Areas
- Open-concept family room, kitchen, and dining area
- Large windows for abundant natural light
- Central fireplace anchoring the family room
- Easy access to rear outdoor living spaces
The kitchen is positioned as the heart of the home, offering generous counter space, a functional island, and clear sightlines to the main living areas—perfect for entertaining or daily family life.
Bedrooms & Bathrooms
- 4 total bedrooms arranged for comfort and privacy
- Primary suite with walk-in closet and private bath
- Spa-style primary bathroom with dual vanities
- Secondary bedrooms ideal for family, guests, or flex use
- 3 full bathrooms with efficient layouts
The primary suite serves as a true retreat, tucked away from high-traffic areas while remaining easily accessible from the main living spaces.
Functional Spaces & Everyday Convenience
This New American home plan is designed for real life, incorporating thoughtful spaces that support both daily routines and long-term flexibility.
- Dedicated laundry room with storage potential
- Optional home office or study for remote work
- Ample closet and storage solutions throughout
- Logical circulation between rooms to reduce wasted space
Outdoor Living & Curb Appeal
The covered front porch is more than an architectural statement—it’s a functional outdoor living space that encourages connection with neighbors and provides a shaded spot to relax. The rear of the home can easily accommodate a patio or deck, extending living space outdoors.
- Inviting front porch for seating and seasonal décor
- Rear access for optional patio or screened porch
- Landscaping-friendly footprint for suburban lots
Why Choose This New American House Plan
This design stands out for its ability to feel classic without being dated. By combining New American styling with Traditional Colonial influences, it offers long-term architectural value—an important consideration for resale and neighborhood compatibility.
Key advantages include:
- Broad buyer appeal thanks to timeless exterior materials
- Flexible interior layout adaptable to different lifestyles
- Balanced proportions that suit a wide range of lot types
- Design elements that age gracefully over time
What’s Included with This House Plan
- CAD + PDF Files: Fully detailed construction documents
- Unlimited Build License: Build as many times as you like
- Structural Engineering Included: Code-ready drawings
- Foundation Options: Slab, crawlspace, or basement
- Customization Ready: Modify layouts, materials, or dimensions
Designed for Modern Living with Classic Roots
If you’re looking for a home that delivers lasting curb appeal, functional interiors, and architectural integrity, this New American house plan offers a compelling solution. Its stone and shake exterior communicates quality from the first glance, while the interior supports the way families live today.
Build with confidence, style, and flexibility—this plan is designed to grow with you.
Plan 14-1249 – Onyx Contractors | New American – 3-Bed, 2.5-Bath, 2,650 SF
- BOTH a PDF and CAD file (sent to the email provided/a copy of the downloadable files will be in your account here)
- PDF – Easily printable at any local print shop
- CAD Files – Delivered in AutoCAD format. Required for structural engineering and very helpful for modifications.
- Structural Engineering – Included with every plan unless not shown in the product images. Very helpful and reduces engineering time dramatically for any state. *All plans must be approved by engineer licensed in state of build*
Disclaimer
Verify dimensions, square footage, and description against product images before purchase. Currently, most attributes were extracted with AI and have not been manually reviewed.
My Home Floor Plans, Inc. does not assume liability for any deviations in the plans. All information must be confirmed by your contractor prior to construction. Dimensions govern over scale.


