Plan 17-1694 – Synthesis Manor | New American – 5-Bed, 3.5-Bath, 3,137 SF
New American and Modern Traditional house plan with stone and siding exterior • 4 bed • 3 bath • 2,450 SF. Covered porch, open-concept living, front-entry garage. Includes CAD+PDF + unlimited build license.
Original price was: $2,476.45.$1,454.99Current price is: $1,454.99.
999 in stock
* Please verify all details with the actual plan, as the plan takes precedence over the information shown below.
| Width | 45'-0" |
|---|---|
| Depth | 52'-4" |
| Htd SF | |
| Unhtd SF | |
| Bedrooms | |
| Bathrooms | |
| # of Floors | |
| # Garage Bays | |
| Architectural Styles | |
| Indoor Features | Open Floor Plan, Foyer, Mudroom, Family Room, Living Room, Fireplace, Office/Study, Recreational Room, Bonus Room, Upstairs Laundry Room |
| Outdoor Features | Covered Front Porch, Covered Rear Porch, Screened Porch, Patio |
| Bed and Bath Features | Bedrooms on First Floor, Bedrooms on Second Floor, Owner's Suite on Second Floor, Split Bedrooms, Walk-in Closet |
| Kitchen Features | Kitchen Island, Breakfast Nook, Butler's Pantry, Walk-in Pantry |
| Garage Features | |
| Condition | New |
| Ceiling Features | |
| Structure Type | |
| Exterior Material |
Mark Miller – April 27, 2025
4 stars
9 FT+ Ceilings | Affordable | Bedrooms on First and Second Floors | Breakfast Nook | Butler’s Pantry | Classic Suburban | Colonial | Covered Front Porch | Covered Patio | Covered Rear Porches | Craftsman | Family Room | Fireplaces | Fireplaces | First-Floor Bedrooms | Foyer | Home Plans with Mudrooms | Kitchen Island | Large House Plans | Living Room | Office/Study Designs | Open Floor Plan Designs | Oversized Designs | Owner’s Suite on Second Floor | Patios | Recreational Room | Screened Porches | Second Floor Bedroom | Side Entry Garage | Smooth & Conventional | Split Bedroom | Traditional | Upstairs Laundry Room | Walk-in Closet | Walk-in Pantry
Timeless New American House Plan with Colonial Influence
A balanced, family-focused home design combining classic Colonial symmetry with modern New American comfort.
This thoughtfully designed New American house plan blends Traditional Colonial architecture with Modern Traditional livability, creating a home that feels both familiar and fresh. With its symmetrical façade, centered stone-accented gable, and welcoming covered front porch, this residence delivers enduring curb appeal while supporting the way modern families live today.
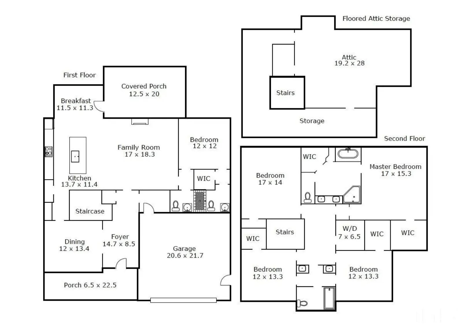
Designed at approximately 2,450 square feet of heated living space, this two-story home offers four bedrooms, three full bathrooms, and a flexible open-concept layout that maximizes natural light, flow, and functionality. The exterior pairing of horizontal siding with stone veneer detailing provides visual depth and timeless character that adapts beautifully to suburban, semi-rural, and traditional neighborhood settings.
Architectural Style Overview
The New American style is known for its versatility, combining traditional architectural language with modern proportions and interiors. This home draws heavily from Traditional Colonial roots, evident in its balanced window placement, classic shutters, and strong rooflines, while incorporating Modern Traditional updates such as larger living spaces, integrated storage, and flexible-use rooms.
- Primary Style: New American
- Secondary Style: Traditional Colonial, Modern Traditional
- Overall Aesthetic: Refined, welcoming, and timeless
Exterior Design & Materials
The exterior is a defining feature of this home. Clean horizontal lap siding forms the main body, while a prominent stone veneer accent anchors the front elevation and adds architectural weight. The covered front porch, supported by square columns, creates a gracious entry and encourages everyday outdoor living.
- Horizontal lap siding for classic durability
- Stone veneer accent for texture and visual focus
- Architectural asphalt shingle roof
- Black shutters reinforcing Colonial influence
- Front-entry attached two-car garage
These materials were selected not only for aesthetics, but also for long-term performance and ease of maintenance. Stone and siding combinations remain one of the most popular exterior treatments in residential design, offering warmth, scale, and lasting value. For a deeper look at exterior cladding strategies, ArchDaily provides an excellent overview of how materials shape residential architecture (read more here).
Main-Level Living Spaces
Inside, the home opens to a well-proportioned foyer that immediately establishes a sense of balance and flow. The main level is organized around an open-concept living core, allowing the kitchen, dining area, and family room to connect seamlessly while still feeling distinct.
- Open kitchen with central island and generous prep space
- Dining area positioned for easy everyday meals or entertaining
- Family room designed for furniture flexibility and natural light
- Direct visual connection between living spaces
This layout supports modern lifestyles where cooking, gathering, and relaxing happen together, yet without sacrificing comfort or privacy. Large windows throughout the main floor enhance daylight and reinforce the home’s welcoming atmosphere.
Kitchen Design & Functionality
The kitchen serves as the heart of the home. Designed with efficiency and style in mind, it accommodates busy family routines as well as casual entertaining. The island offers additional seating, workspace, and storage, while maintaining sightlines to the living areas.
- Central island with seating
- Ample cabinet storage and counter space
- Walk-in pantry for organized food storage
- Clear circulation paths for everyday use
Whether hosting guests or preparing daily meals, the kitchen layout ensures comfort, accessibility, and visual continuity with the rest of the home.
Bedroom Layout & Private Spaces
This home includes four bedrooms, thoughtfully distributed to provide privacy and flexibility. The primary suite is positioned for quiet retreat, while secondary bedrooms accommodate family members, guests, or home office needs.
- Primary suite with spacious bedroom footprint
- En-suite bathroom with dual vanity and walk-in shower
- Walk-in closet with ample hanging and shelving space
- Secondary bedrooms sized for versatility
Each bedroom benefits from natural light and efficient closet design, ensuring the home remains adaptable as household needs change over time.
Bathrooms & Everyday Comfort
With three full bathrooms, this plan minimizes congestion during busy mornings while maintaining comfort for guests. Bathrooms are positioned logically throughout the home for both convenience and privacy.
- Primary en-suite bathroom
- Shared hall bath serving secondary bedrooms
- Main-level full bath for guests
Thoughtful bathroom placement enhances livability without compromising floor plan efficiency.
Garage & Storage Solutions
The attached two-car front-entry garage integrates seamlessly into the home’s façade while providing practical everyday function. Interior access from the garage improves convenience and weather protection.
- Two-car attached garage
- Direct interior entry
- Additional storage zones for seasonal items
Throughout the home, storage has been carefully considered, from bedroom closets to pantry and utility areas, ensuring clutter-free living.
Outdoor Living & Curb Appeal
The covered front porch is more than an architectura
Plan 17-1694 – Synthesis Manor | New American – 5-Bed, 3.5-Bath, 3,137 SF
- BOTH a PDF and CAD file (sent to the email provided/a copy of the downloadable files will be in your account here)
- PDF – Easily printable at any local print shop
- CAD Files – Delivered in AutoCAD format. Required for structural engineering and very helpful for modifications.
- Structural Engineering – Included with every plan unless not shown in the product images. Very helpful and reduces engineering time dramatically for any state. *All plans must be approved by engineer licensed in state of build*
Disclaimer
Verify dimensions, square footage, and description against product images before purchase. Currently, most attributes were extracted with AI and have not been manually reviewed.
My Home Floor Plans, Inc. does not assume liability for any deviations in the plans. All information must be confirmed by your contractor prior to construction. Dimensions govern over scale.


