20-1622 HOUSE PLAN – Modern Farmhouse House Plan with Open Floor Plan and CAD Designs
Explore this stunning farmhouse house plan featuring 3 bedrooms, 2.5 baths, an open floor plan, and walk-in pantry. Includes CAD designs and blueprint details.
Modern Farmhouse Home Plan with Open Floor Plan and CAD Designs
Explore this stunning farmhouse home plan featuring 1,394 heated sq. ft., 3 bedrooms, 2.5 baths, a walk-in pantry, and modern blueprint architecture.
This modern farmhouse house plan offers a perfect mix of comfort and functionality. Designed for contemporary lifestyles, it blends timeless charm with space-efficient layout and classic curb appeal.
Key Features of the Home Plan
Living Areas – Heated & Unheated
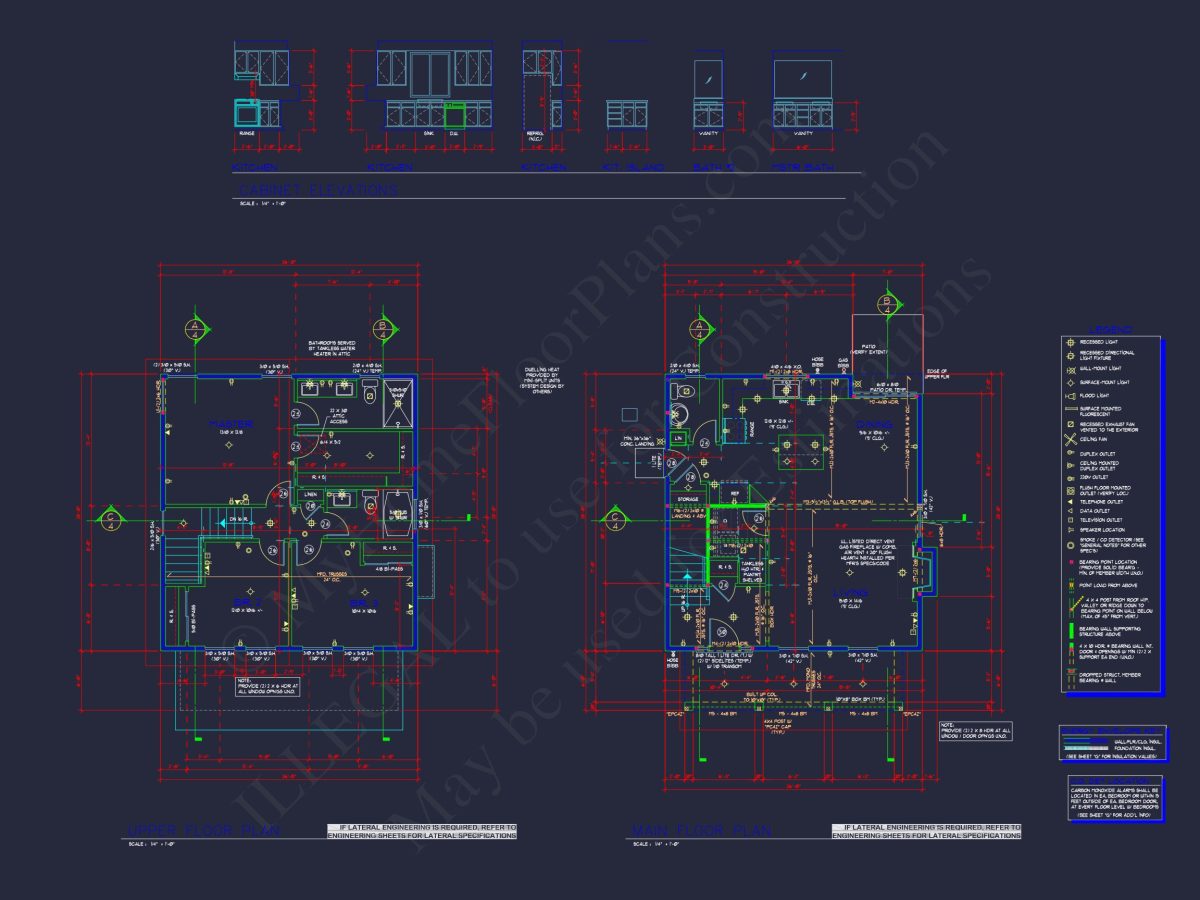
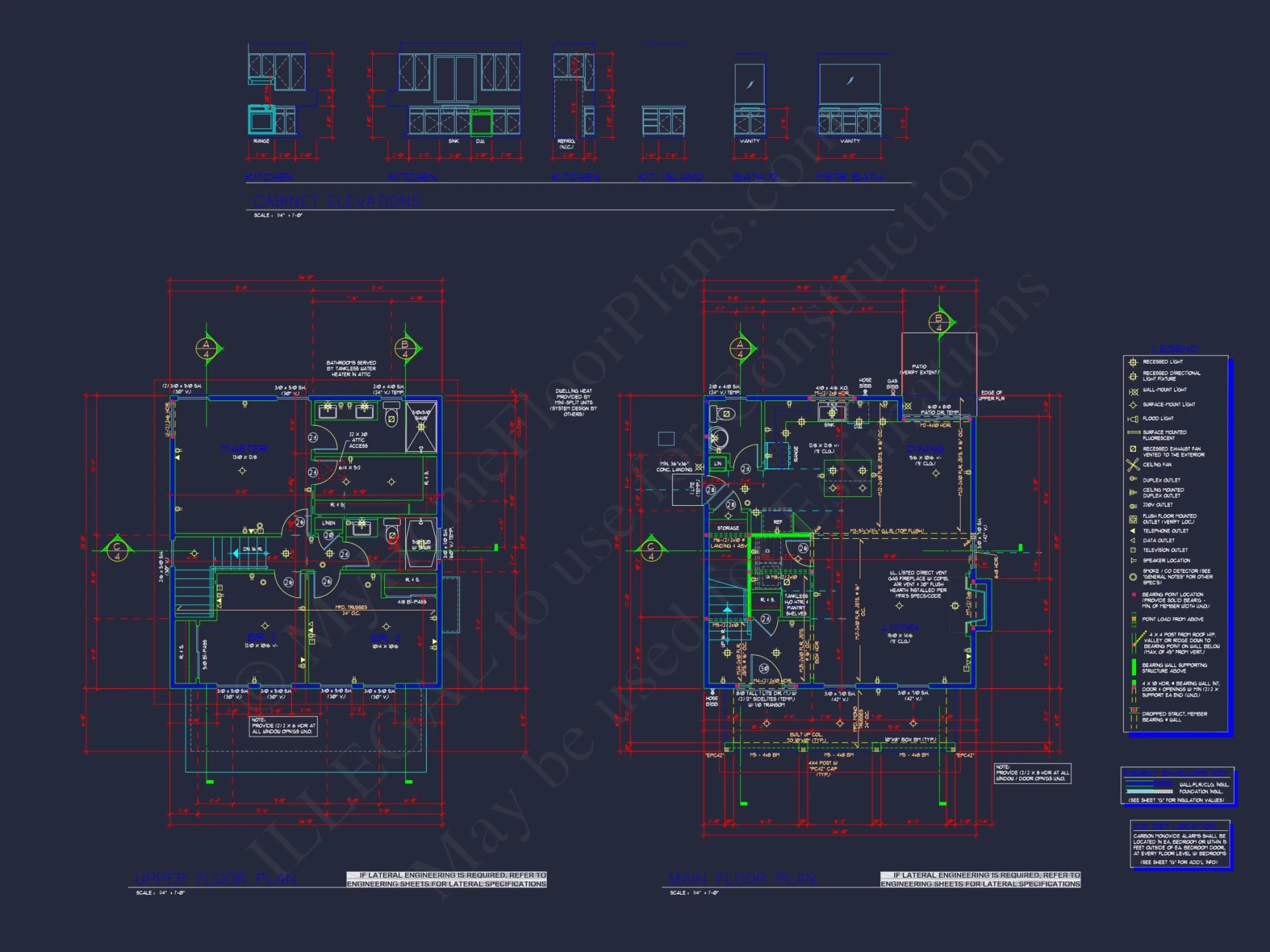
- Heated area: 1,394 sq. ft. over two stories (714 sq. ft. on the main floor and 680 sq. ft. upstairs).
- Unheated extras: Covered front porch.
Bedrooms & Bathrooms
- 3 well-proportioned bedrooms including an Owner Suite with walk-in closet.
- 2.5 bathrooms, including a private Owner bath and a convenient powder room on the main level.
Interior Highlights
- Open floor plan seamlessly connects the kitchen, living, and dining areas. View open layouts.
- Kitchen island perfect for meal prep and casual seating. Browse kitchen island plans.
- Walk-in pantry offers generous storage for dry goods and cookware. Explore pantry plans.
- Walk-in closet (WIC) enhances bedroom functionality and organization.
Garage & Storage Details
- Garage Bays: Plan is designed for narrow lots and does not include a garage, making it flexible for various configurations.
- Garage Type: Optional add-on or detached garage suitable for small lots.
- Storage: Walk-in closets, pantry, and potential attic access offer ample storage solutions.
Outdoor Living Features
- Charming covered front porch creates an inviting exterior and shaded sitting area. Browse covered porch plans.
- Board-and-batten siding enhances the home’s classic farmhouse aesthetic.
Architectural Style: Modern Farmhouse
This design combines traditional farmhouse elements with modern functionality—ideal for families or individuals who crave comfort, style, and efficient space use. Learn more about the Modern Farmhouse collection or explore its roots on ArchDaily.
Bonus Features
- Open-concept design for enhanced social flow.
- Second-floor bedrooms ensure privacy and noise separation.
- Compact footprint suitable for narrow lots.
Included Benefits with Every Plan
- CAD + PDF Files: Editable, printable, and ready for builders and contractors.
- Unlimited Build License: Build as many times as needed—no hidden fees.
- Free Foundation Changes: Switch between slab, crawlspace, or basement at no cost.
- Structural Engineering Included: Fully compliant and ready for permit submission.
- Lower Modification Costs: Up to 50% cheaper than competitor rates.
- View Before You Buy: Preview full plan sheets prior to purchase.
Similar Collections You Might Love
- Traditional Farmhouse House Plans
- Narrow Lot House Plans
- Plans with Walk-In Closets
- Plans with Kitchen Islands
- Covered Porch House Plans
Frequently Asked Questions
What’s included with this house plan? Every plan includes CAD files, PDF blueprints, unlimited-build licensing, structural engineering, and free foundation changes.
Can I customize this layout? Yes! We offer quick and affordable changes. Request a quote here.
Is this suitable for narrow lots? Definitely. Its compact width and smart footprint make it a great fit for tight or urban lots.
How many stories is this home? It’s a 2-story layout with main-level living and upper-floor bedrooms.
Can I view the plans before buying? Yes, you can see all blueprint sheets here before purchase.
Start Building Your Dream Home Today
Have questions or want to customize your plan? Contact our friendly team at support@myhomefloorplans.com or fill out our contact form.
Your dream farmhouse starts with the right plan—let’s make it a reality today!
Original price was: $2,070.56.$1,134.99Current price is: $1,134.99.
999 in stock
* Please verify all details with the actual plan, as the plan takes precedence over the information shown below.
| Width | 26'-0" |
|---|---|
| Depth | 34'-0" |
| Htd SF | |
| Bedrooms | |
| Bathrooms | |
| # of Floors | |
| # Garage Bays | |
| Architectural Styles | |
| Indoor Features | |
| Outdoor Features | |
| Bed and Bath Features | |
| Condition | New |
| Kitchen Features | |
| Structure Type | |
| Exterior Material |
No reviews yet.
20-1622 HOUSE PLAN – Modern Farmhouse House Plan with Open Floor Plan and CAD Designs
- BOTH a PDF and CAD file (sent to the email provided/a copy of the downloadable files will be in your account here)
- PDF – Easily printable at any local print shop
- CAD Files – Delivered in AutoCAD format. Required for structural engineering and very helpful for modifications.
- Structural Engineering – Included with every plan unless not shown in the product images. Very helpful and reduces engineering time dramatically for any state. *All plans must be approved by engineer licensed in state of build*
Disclaimer
Verify dimensions, square footage, and description against product images before purchase. Currently, most attributes were extracted with AI and have not been manually reviewed.
My Home Floor Plans, Inc. does not assume liability for any deviations in the plans. All information must be confirmed by your contractor prior to construction. Dimensions govern over scale.













