9-1708 HOUSE PLAN – Modern House Floor Plan Blueprint with CAD Designs – 4 Beds, 2 Stories
Explore this stunning 4-bedroom, 2-story house plan featuring 4,073 heated SF, an open floor plan, spacious kitchen, and elegant architectural designs.
Modern 2-Story House Plan with 4 Bedrooms and CAD Blueprints
Explore this 4,073 sq. ft. modern house floor plan featuring 2 stories, 4 bedrooms, an open concept layout, and detailed CAD blueprints—ideal for family living.
This modern house plan offers a perfect mix of comfort and functionality. Designed for today’s lifestyle, it delivers smart layouts, elegant detailing, and spacious interiors with every square foot thoughtfully designed.
Key Features of the Home Plan
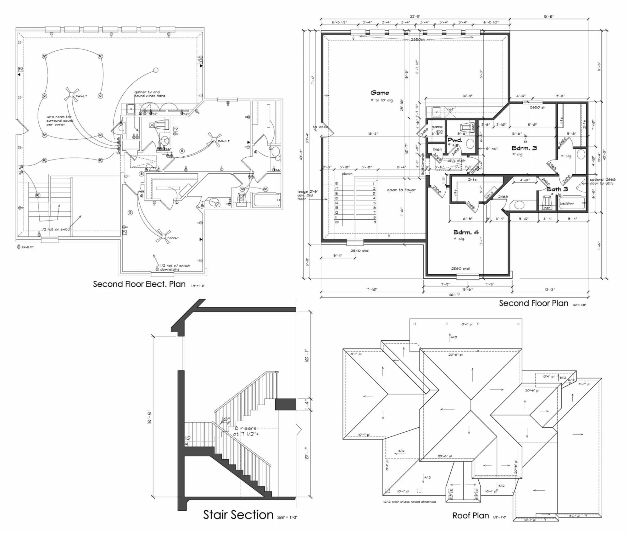
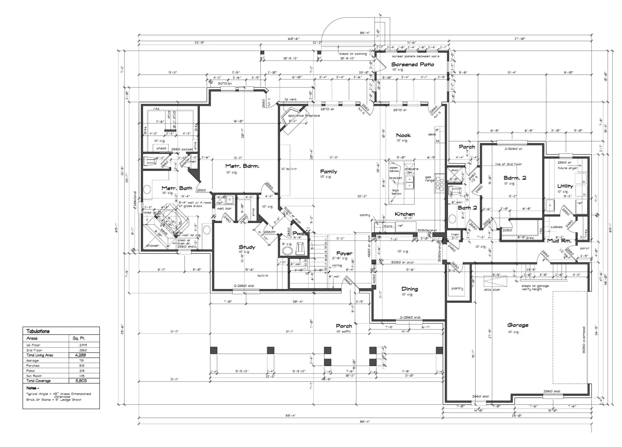
Living Areas – Heated & Unheated
- Heated area: 4,073 sq. ft. over two stories.
- Unheated extras: 1,613 sq. ft. including porches and garage areas.
Bedrooms & Bathrooms
- 4 spacious bedrooms including a luxurious first-floor Owner Suite with walk-in closet.
- 4 full bathrooms conveniently located for privacy and guest access.
Interior Highlights
- 10ft+ ceilings throughout for a grand, airy feel.
- Open floor plan connects the kitchen, dining, and living areas seamlessly. See more open designs.
- Fireplace in the family room for cozy gatherings. View fireplace plans.
- Kitchen island for prep, dining, and entertaining.
- Walk-in pantry to keep essentials organized.
- Large laundry room with first-floor placement for convenience.
Garage & Storage Details
- Garage Bays: 2-car garage with side entry for aesthetic curb appeal.
- Garage Type: Attached side-entry.
- Storage: Includes mudroom, bonus storage areas, and attic access.
Outdoor Living Features
- Covered front porch and rear screened porch offer shaded outdoor enjoyment and bug-free relaxation.
- Exterior design combines brick and stone for timeless, durable curb appeal.
Architectural Style: Traditional Meets Craftsman
This design blends classic materials with clean lines and functional elegance. A perfect choice for families who value beauty and livability. Learn more about Traditional Craftsman plans or explore the design roots on ArchDaily.
Bonus Features
- Dedicated office or flex room for remote work or hobbies.
- Second-floor bedrooms ideal for guests or kids, with hallway bath access.
- Formal entry with coat closet and elegant sight lines into the living room.
Included Benefits with Every Plan
- CAD + PDF Files: Fully editable and printable for permits and construction.
- Unlimited Build License: Build as many times as you’d like—no extra fees.
- Free Foundation Changes: Choose between slab, crawlspace, or basement with no added cost. Learn more.
- Structural Engineering Included: Each plan is professionally engineered for strength and code compliance.
- Lower Modification Costs: Get changes for 50% less than competitors. Request a quote.
- View Before You Buy: Preview every plan sheet in advance.
Similar Collections You Might Love
- Modern House Plans
- Traditional House Plans
- Plans with First Floor Owner Suites
- Plans with Screened Porches
- Plans with Walk-In Pantries
Frequently Asked Questions
What’s included with this modern home plan? Every plan includes CAD and PDF files, structural engineering, unlimited build license, and foundation changes at no cost.
Can I make layout changes? Yes, we offer low-cost modifications. Contact us to get started.
Is this a family-friendly layout? Absolutely. With the Owner Suite downstairs and bedrooms upstairs, it’s perfect for privacy and functionality.
What’s the total square footage? This plan includes 4,073 heated sq. ft. and 1,613 unheated sq. ft. across two stories.
Can I view the entire blueprint before buying? Yes! Preview every page of the plan before purchase.
Start Building Your Dream Home Today
Need help customizing this design or have questions? Reach out to our support team at support@myhomefloorplans.com or fill out our contact form.
Make your dream house a reality—customize and build with confidence starting today!
Original price was: $3,370.56.$1,754.99Current price is: $1,754.99.
999 in stock
* Please verify all details with the actual plan, as the plan takes precedence over the information shown below.
| Width | 87'-6" |
|---|---|
| Depth | 68'-8" |
| Htd SF | |
| Unhtd SF | |
| Bedrooms | |
| Bathrooms | |
| # of Floors | |
| # Garage Bays | |
| Architectural Styles | |
| Indoor Features | Downstairs Laundry Room, Fireplace, Large Laundry Room, Open Floor Plan |
| Outdoor Features | |
| Bed and Bath Features | Bedrooms on First Floor, Bedrooms on Second Floor, Owner's Suite on First Floor, Walk-in Closet |
| Kitchen Features | |
| Garage Features | |
| Condition | New |
| Ceiling Features | |
| Structure Type | |
| Exterior Material |
No reviews yet.
10 FT+ Ceilings | Bedrooms on First and Second Floors | Covered Front Porch | Craftsman | Downstairs Laundry Room | Fireplaces | Kitchen Island | Large House Plans | Large Laundry Room | Open Floor Plan Designs | Owner’s Suite on the First Floor | Screened Porches | Second Floor Bedroom | Side Entry Garage | Traditional | Walk-in Closet | Walk-in Pantry
9-1708 HOUSE PLAN – Modern House Floor Plan Blueprint with CAD Designs – 4 Beds, 2 Stories
- BOTH a PDF and CAD file (sent to the email provided/a copy of the downloadable files will be in your account here)
- PDF – Easily printable at any local print shop
- CAD Files – Delivered in AutoCAD format. Required for structural engineering and very helpful for modifications.
- Structural Engineering – Included with every plan unless not shown in the product images. Very helpful and reduces engineering time dramatically for any state. *All plans must be approved by engineer licensed in state of build*
Disclaimer
Verify dimensions, square footage, and description against product images before purchase. Currently, most attributes were extracted with AI and have not been manually reviewed.
My Home Floor Plans, Inc. does not assume liability for any deviations in the plans. All information must be confirmed by your contractor prior to construction. Dimensions govern over scale.






















