10-1546 HOUSE PLAN – Modern House Plan with Detailed Floor Designs and CAD Blueprints
Discover a stunning house plan featuring a spacious layout, 4 bedrooms, 2.5 floors, detailed CAD blueprints, and modern architecture for your dream design.
Modern Home Plan with Detailed Floor Designs and CAD Blueprints
Discover a stunning modern house plan with 4 bedrooms, 2.5 stories, a spacious layout, and precision CAD blueprints—perfect for today’s lifestyle.
This modern house plan offers a perfect mix of comfort and functionality. Designed for contemporary living, it delivers sleek style, smart space planning, and timeless curb appeal.
Key Features of the Home Plan
Living Areas – Heated & Unheated
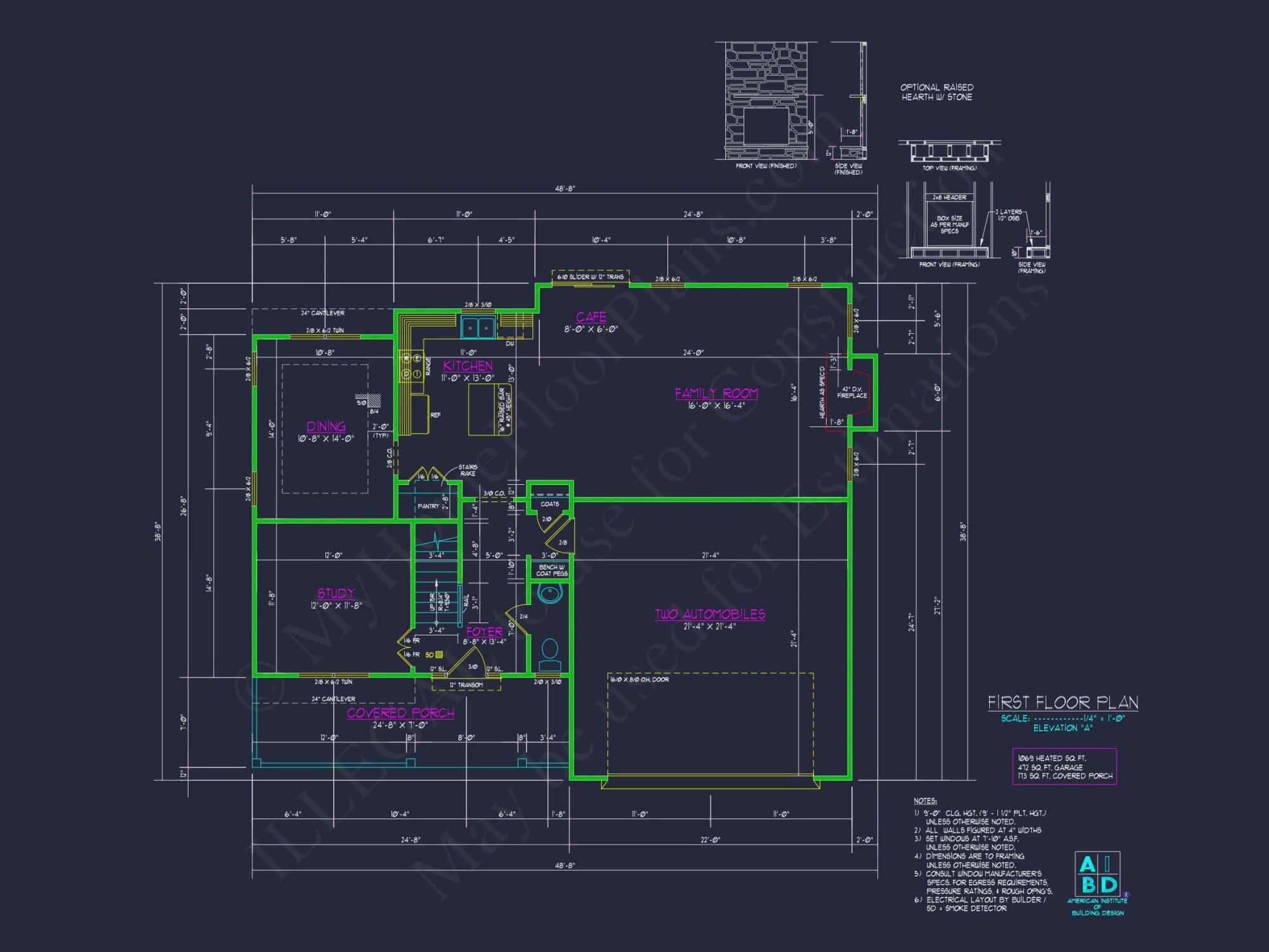
- Heated area: 3,200 sq. ft. across 2.5 stories.
- Unheated extras: covered porches, attached garage, and optional attic bonus space.
Bedrooms & Bathrooms
- 4 spacious bedrooms, including a luxurious Owner Suite on the second level with a walk-in closet (WIC).
- 4 bathrooms thoughtfully positioned for convenience and privacy.
Interior Highlights
- Open floor plan connects the family room, kitchen, and breakfast nook seamlessly. Explore open-concept layouts.
- Dedicated study/office for remote work or homeschooling.
- Recreational room and optional attic-level bonus room for versatile living.
- Mudroom and laundry near the bedrooms for daily efficiency.
Garage & Storage Details
- Garage Bays: 2-car garage with front entry.
- Garage Type: Attached with direct access to the mudroom.
- Storage: Attic space, mudroom lockers, and bonus closets throughout.
Outdoor Living Features
- Covered front and rear porches offer shaded retreats for relaxation or entertaining.
- Durable siding and shingles enhance the modern architectural look.
Architectural Style: Modern Traditional
This design blends modern design features with subtle traditional elements—perfect for homeowners seeking a balance of character and innovation. Learn more about the modern style or explore its evolution on ArchDaily.
Bonus Features
- Optional attic space for game room, guest suite, or home theater.
- Flexible layout ideal for multi-generational living or growing families.
- Front and rear porches add curb appeal and functional outdoor living.
Included Benefits with Every Plan
- CAD + PDF Files: Fully editable and printable for builders and designers.
- Unlimited Build License: Build as many times as needed—no hidden fees.
- Free Foundation Changes: Customize to slab, crawlspace, or basement. Learn more.
- Structural Engineering Included: Professionally stamped and code-ready.
- Lower Modification Costs: Save up to 50% compared to competitors. Request changes.
- View Before You Buy: Preview every sheet before purchase.
Similar Collections You Might Love
- Modern House Plans
- House Plans with Office Spaces
- House Plans with Bonus Rooms
- Plans with Covered Back Porches
- Narrow Lot House Plans
Frequently Asked Questions
What’s included with this modern house plan? Every purchase comes with CAD files, PDFs, structural engineering, free foundation changes, and unlimited-build rights.
Can I make layout changes before building? Absolutely. We offer affordable and fast modifications. Contact us to customize.
Is this plan suitable for smaller lots? Yes, the front-entry garage and compact footprint work well for narrow or urban lots.
Does it really have 2.5 stories? Yes! The home includes two full floors plus an optional attic bonus room.
Can I see the floor plans before purchase? Yes, you can view every sheet before buying—transparency guaranteed.
Start Building Your Dream Home Today
Have questions or want to personalize your plan? Reach out to our friendly team at support@myhomefloorplans.com or submit a customization request.
Your modern dream house starts here—explore, modify, and start building with confidence today!
Original price was: $2,870.56.$1,454.99Current price is: $1,454.99.
999 in stock
* Please verify all details with the actual plan, as the plan takes precedence over the information shown below.
| Width | 48'-8" |
|---|---|
| Depth | 38'-8" |
| Htd SF | |
| Unhtd SF | |
| Bedrooms | |
| Bathrooms | |
| # of Floors | |
| # Garage Bays | |
| Architectural Styles | |
| Indoor Features | Attic, Bonus Room, Family Room, Foyer, Mudroom, Office/Study, Open Floor Plan, Recreational Room |
| Outdoor Features | |
| Bed and Bath Features | Bedrooms on Second Floor, Owner's Suite on Second Floor, Walk-in Closet |
| Kitchen Features | |
| Garage Features | |
| Condition | New |
| Ceiling Features | |
| Structure Type | |
| Exterior Material |
No reviews yet.
9 FT+ Ceilings | Affordable | Attics | Bonus Rooms | Breakfast Nook | Builder Favorites | Classic Suburban | Covered Front Porch | Covered Rear Porches | Family Room | Foyer | Front Entry | Home Plans with Mudrooms | Kitchen Island | Large House Plans | Office/Study Designs | Open Floor Plan Designs | Owner’s Suite on Second Floor | Recreational Room | Second Floor Bedroom | Side Entry Garage | Traditional | Walk-in Closet
10-1546 HOUSE PLAN – Modern House Plan with Detailed Floor Designs and CAD Blueprints
- BOTH a PDF and CAD file (sent to the email provided/a copy of the downloadable files will be in your account here)
- PDF – Easily printable at any local print shop
- CAD Files – Delivered in AutoCAD format. Required for structural engineering and very helpful for modifications.
- Structural Engineering – Included with every plan unless not shown in the product images. Very helpful and reduces engineering time dramatically for any state. *All plans must be approved by engineer licensed in state of build*
Disclaimer
Verify dimensions, square footage, and description against product images before purchase. Currently, most attributes were extracted with AI and have not been manually reviewed.
My Home Floor Plans, Inc. does not assume liability for any deviations in the plans. All information must be confirmed by your contractor prior to construction. Dimensions govern over scale.



























