18-1028 HOUSE PLAN – Coastal House Plan – 4-Bed, 3.5-Bath, 2,430 SF
Coastal and Low Country house plan with horizontal lap siding exterior • 4 bed • 3.5 bath • 2,430 SF. Elevated living, wraparound porch, metal roof. Includes CAD+PDF + unlimited build license.
Original price was: $1,976.45.$1,254.99Current price is: $1,254.99.
999 in stock
* Please verify all details with the actual plan, as the plan takes precedence over the information shown below.
| Width | 34'-0" |
|---|---|
| Depth | 50'-0" |
| Htd SF | |
| Unhtd SF | |
| Bedrooms | |
| Bathrooms | |
| # of Floors | |
| # Garage Bays | |
| Architectural Styles | |
| Indoor Features | Bedrooms on the First Floor, Foyer, Office/Study, Open Floor Plan |
| Outdoor Features | |
| Bed and Bath Features | |
| Kitchen Features | |
| Garage Features | |
| Condition | New |
| Ceiling Features | |
| Structure Type | |
| Exterior Material |
Mark Miller – April 27, 2025
4 stars
9 FT+ Ceilings | Affordable | Basement Garage | Beach | Bedrooms on the First Floor | Coastal | Covered Front Porch | Covered Patio | Foyer | Front Entry | Kitchen Island | Medium | Narrow Lot Designs | Office/Study Designs | Open Floor Plan Designs | Owner’s Suite on the First Floor | Upper Deck | Walk-in Closet | Walk-in Pantry
Elevated Coastal Low Country Home Plan with Timeless Southern Character
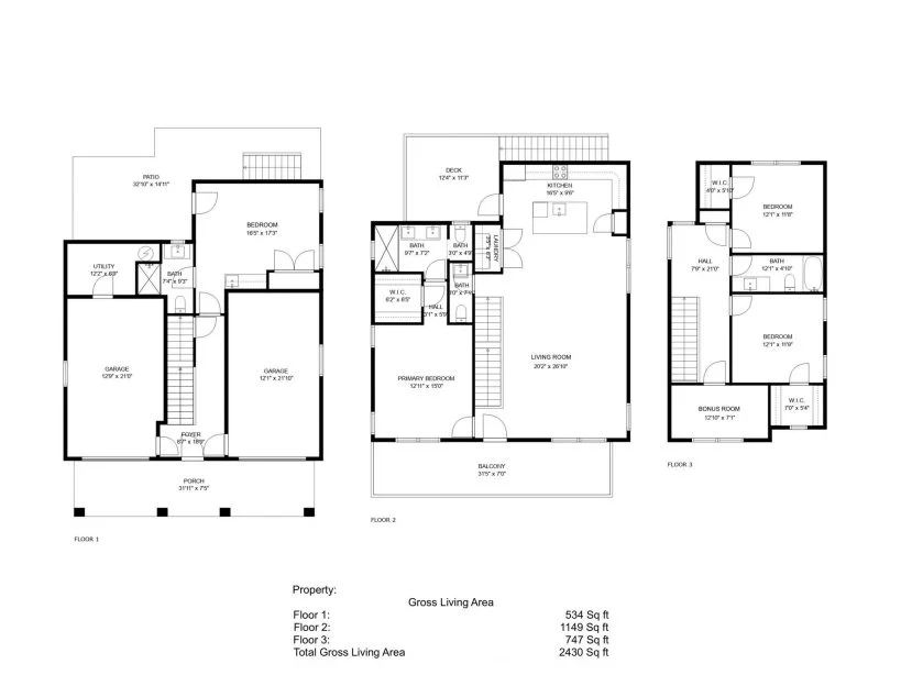
A refined Coastal and Low Country house plan featuring 2,430 heated square feet, 4 bedrooms, 3.5 bathrooms, elevated living, and expansive outdoor spaces—delivered with CAD blueprints, PDF plans, structural engineering, and an unlimited build license.
This beautifully composed Coastal Low Country home plan reflects the enduring traditions of Southern architecture while embracing the relaxed, breezy lifestyle associated with coastal living. Elevated above grade for resilience and views, the home balances classic proportions, practical planning, and timeless curb appeal. Designed for waterfront lots, flood zones, and narrow coastal parcels, this plan is equally at home along the coast, in marsh-front communities, or within historic Southern neighborhoods.
The exterior presentation is defined by horizontal lap siding, a standing-seam metal roof, generous porch overhangs, and symmetrical fenestration. These elements work together to create a light, refined façade that feels both welcoming and enduring. The elevated design not only enhances views and ventilation but also provides valuable covered parking and storage below.
Architectural Style Overview: Coastal & Low Country
This design draws from Low Country and Coastal architectural traditions, blending them with subtle Southern and Traditional influences. Hallmarks of these styles are evident throughout the plan:
- Elevated living levels designed for coastal conditions
- Wide, welcoming porches that encourage outdoor living
- Simple, elegant rooflines with a durable metal roofing system
- Balanced window placement for cross-ventilation and natural light
- Timeless materials chosen for longevity and visual harmony
Low Country architecture has long been celebrated for its ability to adapt gracefully to climate, site, and lifestyle. You can explore the broader principles behind this regional style through trusted architectural resources such as ArchDaily’s exploration of coastal architecture.
Heated and Unheated Square Footage Breakdown
- Heated Living Area: 2,430 square feet across three thoughtfully planned stories
- Unheated Areas:
- Ground-level two-car garage
- Covered front porch
- Upper-level porch and outdoor deck
- Ground-level storage and utility spaces
The combination of heated and unheated space ensures flexibility for everyday living, entertaining, and long-term storage—an essential feature for coastal homeowners.
Thoughtful Bedroom and Bathroom Layout
This plan includes 4 bedrooms and 3.5 bathrooms, arranged to provide privacy, comfort, and adaptability.
- Private ground-floor guest suite ideal for visitors, multigenerational living, or a quiet home office
- Spacious primary suite on the main living level with walk-in closet and ensuite bath
- Additional upper-level bedrooms that share convenient access to full bathrooms
- Powder room positioned for guest use without disrupting private spaces
The bedroom distribution makes this home suitable for families, retirees who want main-level living, or homeowners who frequently host guests.
Interior Living Spaces Designed for Coastal Comfort
The main living level embraces an open-concept layout that enhances both daily living and entertaining. The living room, kitchen, and dining area flow seamlessly together, allowing natural light to move freely through the space.
- Generous living room with views to the outdoors
- Kitchen with central island for casual seating and meal prep
- Walk-in pantry offering ample storage
- Dining area positioned for both everyday meals and special gatherings
- High ceilings that reinforce the home’s airy, coastal feel
This layout supports a relaxed lifestyle while still maintaining a sense of refinement and order consistent with Traditional and Southern design principles.
Outdoor Living: Porches That Define the Lifestyle
Outdoor living is a defining feature of this Coastal Low Country home plan. Wide porches extend the living space outward, encouraging time spent enjoying breezes, views, and conversation.
- Deep covered front porch perfect for rocking chairs or outdoor seating
- Upper-level porch offering elevated views and privacy
- Covered areas designed to provide shade and protection from the elements
These porches are not afterthoughts—they are integral to the architectural composition and lifestyle experience of the home.
Garage, Storage, and Elevated Construction Benefits
The elevated foundation allows for a ground-level garage and generous storage areas, a critical advantage in coastal and flood-prone regions.
- Two-car garage with front-entry access
- Dedicated storage rooms for tools, outdoor equipment, or seasonal items
- Elevated living areas that help protect the home from moisture and flooding
This approach not only enhances durability but also preserves the clean, uncluttered appearance of the main living levels.
Exterior Materials and Finishes
The exterior palette emphasizes longevity, simplicity, and classic appeal:
- Horizontal lap siding for a clean, coastal aesthetic
- Standing-seam metal roof known for durability and energy efficiency
- Traditional trim details that highlight windows and rooflines
- Neutral, coastal-inspired color schemes that age gracefully
These materials were selected to perform well in coastal environments while maintaining architectural integrity.
What’s Included with This House Plan
- Editable CAD Files: Ideal for customization and local requirements
- Printable PDF Plans: Builder-ready documentation
- Unlimited Build License: Build as many times as you wish
- Structural Engineering Included: Code-compliant and professionally prepared
- Foundation Customization: Slab, crawlspa
18-1028 HOUSE PLAN – Coastal House Plan – 4-Bed, 3.5-Bath, 2,430 SF
- BOTH a PDF and CAD file (sent to the email provided/a copy of the downloadable files will be in your account here)
- PDF – Easily printable at any local print shop
- CAD Files – Delivered in AutoCAD format. Required for structural engineering and very helpful for modifications.
- Structural Engineering – Included with every plan unless not shown in the product images. Very helpful and reduces engineering time dramatically for any state. *All plans must be approved by engineer licensed in state of build*
Disclaimer
Verify dimensions, square footage, and description against product images before purchase. Currently, most attributes were extracted with AI and have not been manually reviewed.
My Home Floor Plans, Inc. does not assume liability for any deviations in the plans. All information must be confirmed by your contractor prior to construction. Dimensions govern over scale.


