20-1026 HOUSE PLAN – Stunning 2-Story House Plan with Open Floor Plan and CAD Designs
Explore this 2-story house plan featuring a spacious open floor plan, CAD designs, 5 bedrooms, 5+ bathrooms, and architectural precision for dream designs.
Stunning 2-Story Home Plan with Open Floor Plan and CAD Designs
Explore this 2-story home plan featuring a spacious open floor plan, 3,410 heated sq. ft., CAD designs, 5 bedrooms, 5+ bathrooms, and architectural precision for dream designs.
This open floor plan house design offers a perfect mix of comfort and functionality. Designed for modern living, it delivers timeless charm and smart space planning.
Key Features of the Home Plan
Living Areas – Heated & Unheated
- Heated area: 3,410 sq. ft. over two stories.
- Unheated extras: Covered front porch, screened porch, and a spacious two-car garage.
Bedrooms & Bathrooms
- 5 total bedrooms including a luxurious first-floor Owner Suite with a generous walk-in closet.
- 5+ bathrooms designed for accessibility, privacy, and convenience—including a Jack and Jill bath upstairs.
Interior Highlights
- Open floor plan connects the kitchen, dining, and living spaces. View open layouts.
- Fireplace in the family room for cozy, relaxing evenings. Explore fireplace floor plans.
- Dedicated office/study offers quiet space for work or creative projects. See home office plans.
- Bonus room adds flexible space for hobbies, guests, or a game room.
- Downstairs laundry room located near the Owner Suite for daily ease.
- Foyer and mudroom keep the entry organized and welcoming.
Garage & Storage Details
- Garage Bays: 2-car garage with front entry access.
- Garage Type: Attached for convenient entry to the home.
- Storage: Includes built-in mudroom storage and bonus closet space throughout.
Outdoor Living Features
- Covered front porch for charming curb appeal and relaxation.
- Screened rear porch ideal for bug-free outdoor lounging.
- Classic exterior materials include a mix of siding and stucco for long-lasting beauty.
Architectural Style: Modern Traditional
This design blends modern comforts with traditional elegance—perfect for growing families or anyone who loves efficient layouts. Learn more about traditional house styles or explore design inspiration from ArchDaily.
Bonus Features
- Private Jack and Jill bathroom shared between upstairs bedrooms.
- Flexible study room ideal for a home library or remote office.
- Open foyer that enhances the welcoming feel upon entry.
Included Benefits with Every Plan
- CAD + PDF Files: Editable and ready for permitting or builder review.
- Unlimited Build License: Construct the house multiple times without added fees.
- Free Foundation Changes: Choose between slab, crawlspace, or basement—at no cost.
- Structural Engineering Included: Every plan is reviewed and sealed for safety and compliance.
- Lower Modification Costs: Save up to 50% compared to other sites.
- View Before You Buy: See full plan sheets before purchasing.
Similar Collections You Might Love
- Plans with Bonus Rooms
- Jack and Jill Bathroom House Plans
- Plans with Mudrooms
- Screened Porch Floor Plans
- Walk-in Closet House Plans
Frequently Asked Questions
What’s included with this house plan? Each plan comes with printable PDFs, editable CAD files, a full build license, structural engineering, and optional foundation changes.
Can I add or remove rooms? Yes! Customizations are quick and affordable. Request your changes here.
Is this design suitable for a two-story family? Definitely. The layout offers ample privacy and functionality with its bonus room and five bathrooms.
Does the garage connect directly to the mudroom? Yes. The garage flows into the mudroom, creating an efficient daily drop zone.
Can I see what I’m buying before checkout? Yes, you can preview the entire sheet set here.
Start Building Your Dream Home Today
Have questions or want to personalize your plan? Contact our expert team at support@myhomefloorplans.com or fill out our form.
Your future house starts with a great plan—customize it and build with confidence!
Original price was: $2,870.56.$1,454.99Current price is: $1,454.99.
999 in stock
* Please verify all details with the actual plan, as the plan takes precedence over the information shown below.
| Width | 47'-0" |
|---|---|
| Depth | 88'-9" |
| Htd SF | |
| Unhtd SF | |
| Bedrooms | |
| Bathrooms | |
| # of Floors | |
| # Garage Bays | |
| Architectural Styles | |
| Indoor Features | Bonus Room, Family Room, Fireplace, Foyer, Laundry Room, Mudroom, Office/Study, Open Floor Plan |
| Outdoor Features | |
| Bed and Bath Features | Bedrooms on Second Floor, Jack and Jill Bathroom, Owner's Suite on First Floor, Walk-in Closet |
| Kitchen Features | |
| Garage Features | |
| Ceiling Features | |
| Structure Type | |
| Exterior Material |
No reviews yet.
10 FT+ Ceilings | Bonus Rooms | Breakfast Nook | Covered Front Porch | Designer Favorite | Editor's Pick | Family Room | Fireplaces | Foyer | Front Entry | Home Plans with Mudrooms | Jack and Jill | Kitchen Island | Large House Plans | Laundry Room | Office/Study Designs | Open Floor Plan Designs | Owner’s Suite on the First Floor | Screened Porches | Second Floor Bedroom | Southern | Traditional | Traditional Farmhouse | Walk-in Closet | Walk-in Pantry
20-1026 HOUSE PLAN – Stunning 2-Story House Plan with Open Floor Plan and CAD Designs
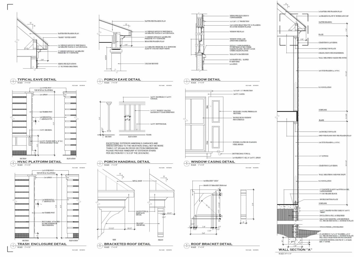
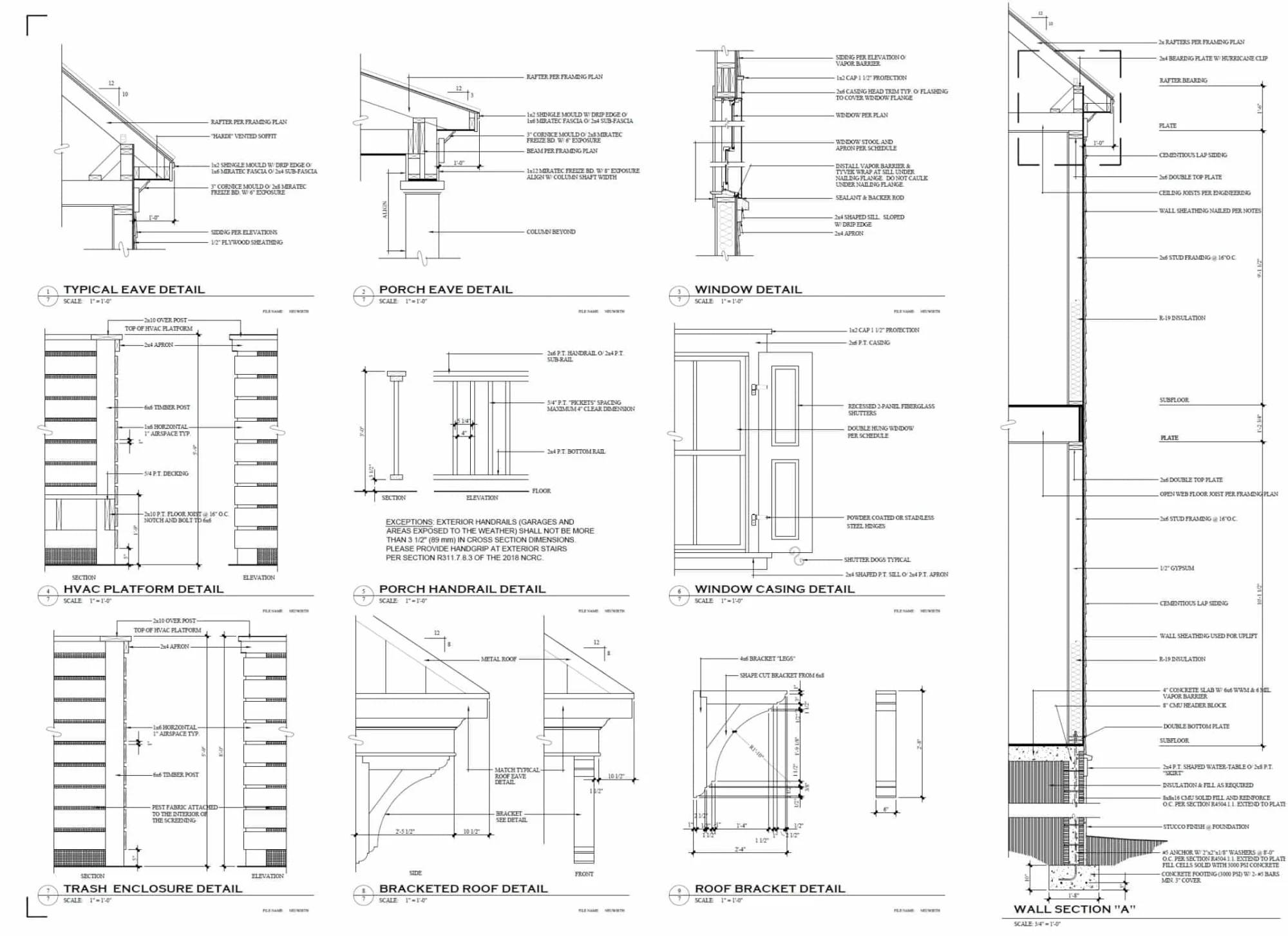
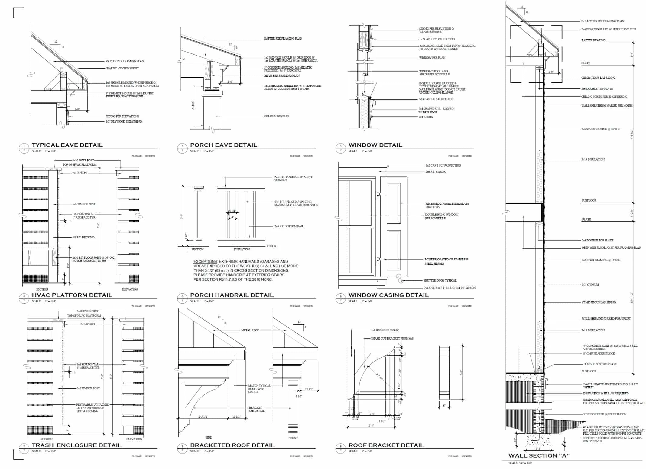
- BOTH a PDF and CAD file (sent to the email provided/a copy of the downloadable files will be in your account here)
- PDF – Easily printable at any local print shop
- CAD Files – Delivered in AutoCAD format. Required for structural engineering and very helpful for modifications.
- Structural Engineering – Included with every plan unless not shown in the product images. Very helpful and reduces engineering time dramatically for any state. *All plans must be approved by engineer licensed in state of build*
Disclaimer
Verify dimensions, square footage, and description against product images before purchase. Currently, most attributes were extracted with AI and have not been manually reviewed.
My Home Floor Plans, Inc. does not assume liability for any deviations in the plans. All information must be confirmed by your contractor prior to construction. Dimensions govern over scale.
















