20-1143 HOUSE PLAN – Elegant 3-Story House Plan with 4 Bedrooms and Unique Designs
Discover this elegant 3-story house plan featuring 4 bedrooms, 3.5 baths, vaulted ceilings, and modern architecture. Includes blueprint and CAD designs.
Elegant 3-Story House Plan with Craftsman Charm & Vaulted Ceilings
Discover this stunning 3-story house design with 2,707 heated sq. ft., 4 bedrooms, and a cozy outdoor fireplace—includes CAD blueprints and unlimited build license.
This Traditional Craftsman house plan offers a perfect mix of elegance and functionality. Designed for modern families and professionals, it delivers timeless charm with smart space planning across three thoughtful stories.
Key Features of the Home Plan
Living Areas – Heated & Unheated
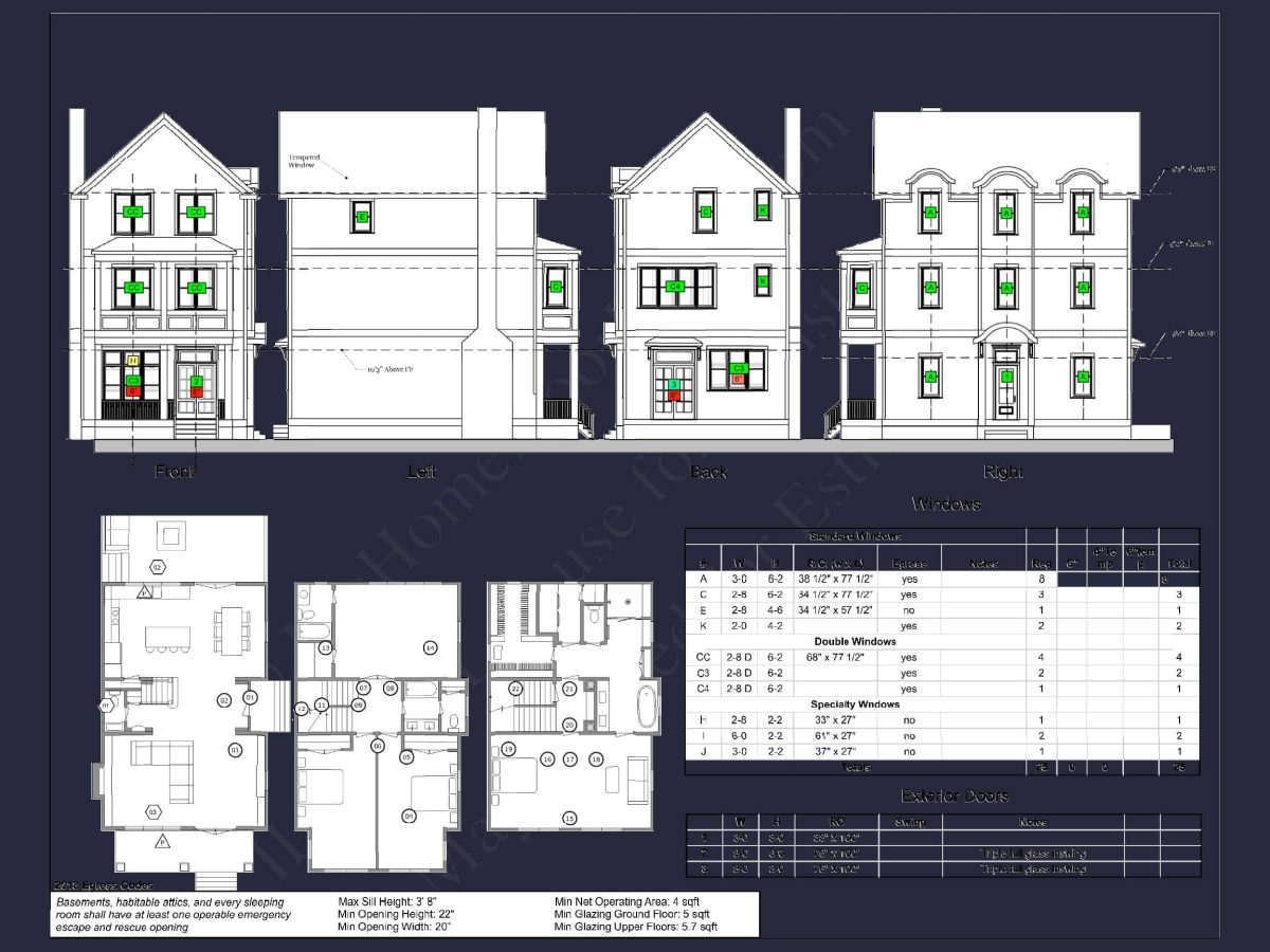
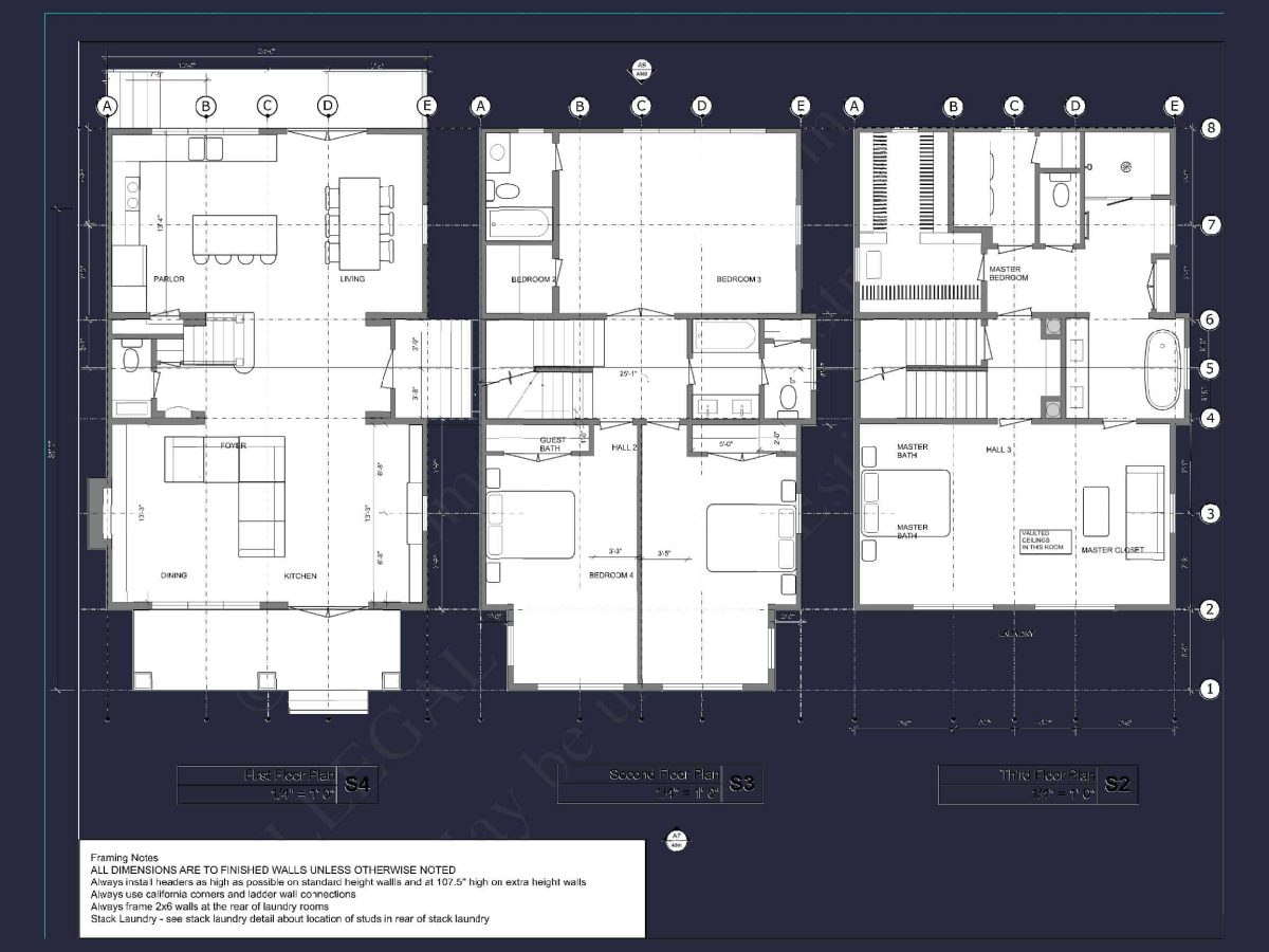
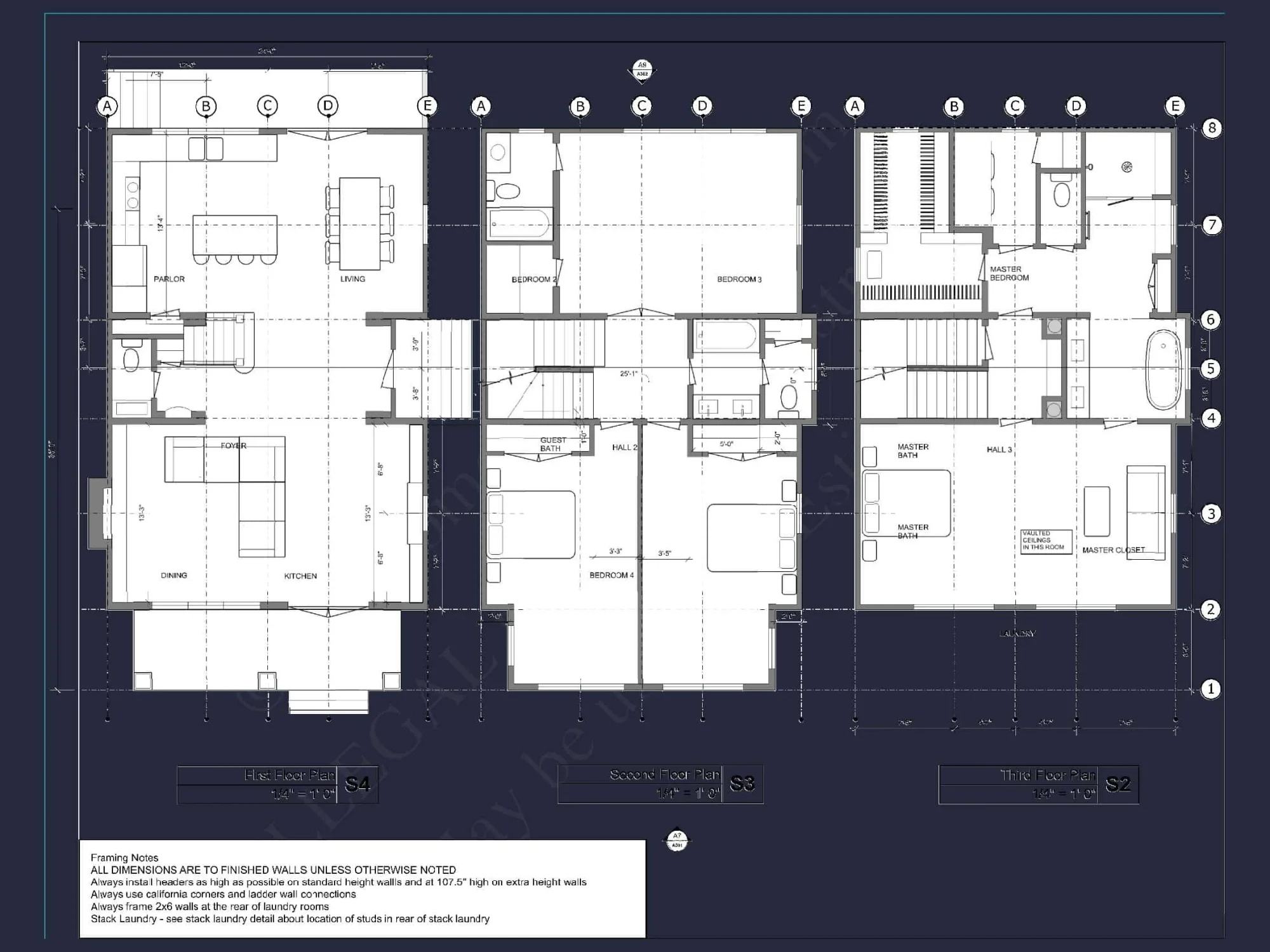
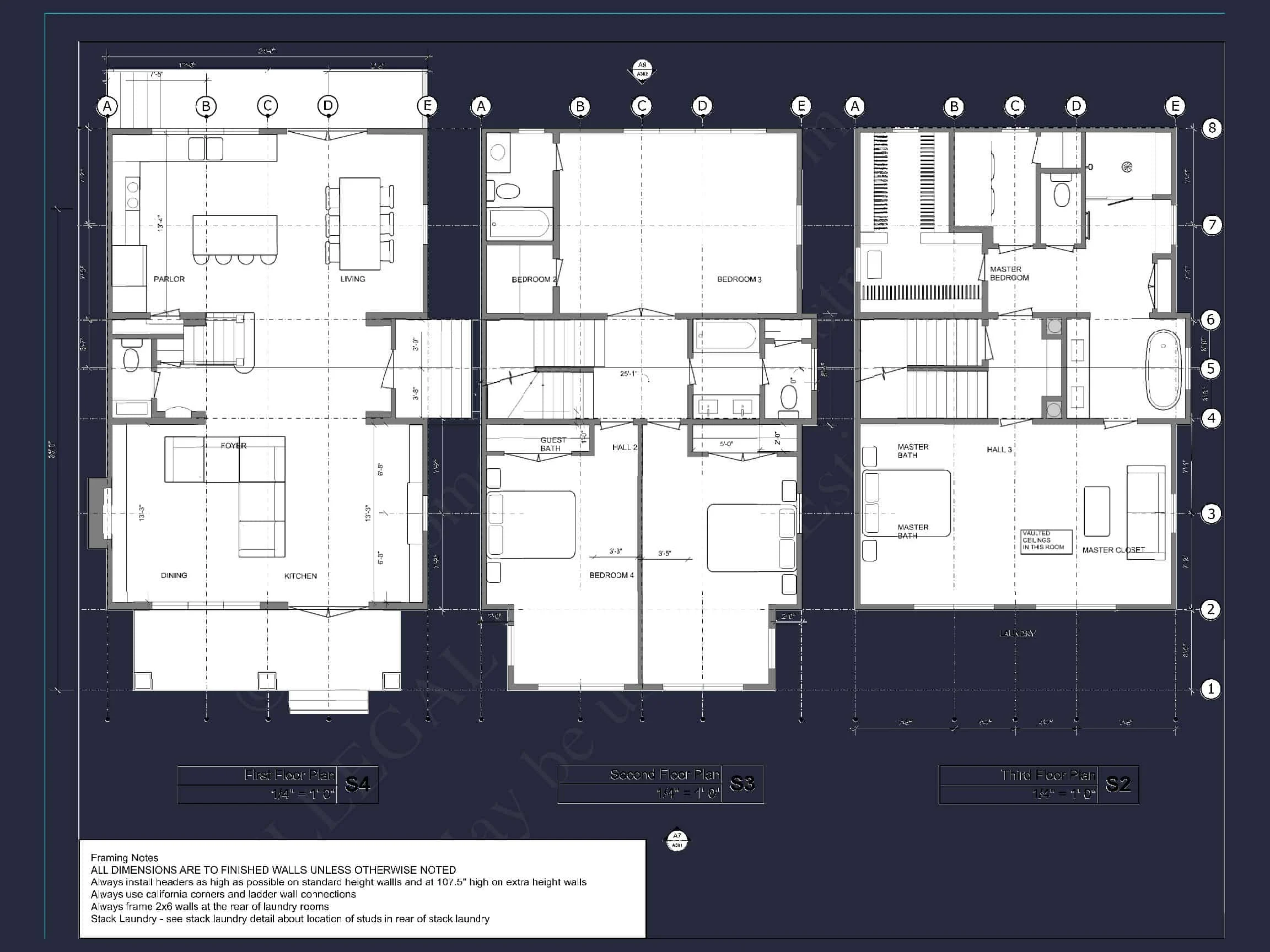
- Heated area: 2,707 sq. ft. spread across three floors.
- Unheated extras: Screened porch, brick patio, and outdoor fireplace.
Bedrooms & Bathrooms
- 4 spacious bedrooms, including a luxurious Owner Suite on the second floor with vaulted ceilings and walk-in closet.
- 3 full bathrooms and 1 half bath strategically located for comfort and convenience.
Interior Highlights
- Vaulted ceilings in the Owner Suite add space and light.
- Open floor plan connects kitchen, dining, and living areas. View open layouts.
- Spacious kitchen with a central island and walk-in pantry.
- Fireplace creates a warm and inviting family space. Browse fireplace plans.
- Bonus room ideal for a home office, guest suite, or entertainment zone.
- Convenient laundry room located near bedrooms for daily ease.
Outdoor Living Features
- Charming screened porch and brick patio for year-round outdoor enjoyment.
- Outdoor fireplace perfect for relaxing evenings or entertaining guests. Explore similar designs.
- Exterior materials include classic brick and siding, offering durability and curb appeal.
Architectural Style: Traditional Craftsman
This design blends time-honored craftsmanship with modern needs—ideal for narrow or sloped lots where style and smart vertical design are key. The Craftsman-style details make it suitable for both city and suburban environments.
Included Benefits with Every Plan
- CAD + PDF Files: Easily editable, printable, and ready to build.
- Unlimited Build License: Build once—or 100 times—with no extra fees.
- Free Foundation Changes: Swap between slab, crawlspace, or basement.
- Structural Engineering Included: Code-compliant and professionally stamped.
- Lower Modification Costs: Up to 50% less than competitors.
- View Before You Buy: See every sheet in advance.
Similar Collections You Might Love
- Traditional House Plans
- Narrow Lot House Plans
- Plans with Fireplaces
- Covered Porch House Plans
- Walk-in Pantry House Plans
Frequently Asked Questions
What’s included with this house plan? All plans come with editable CAD files, printable PDFs, unlimited-build rights, structural engineering, and free foundation changes.
Can I customize the layout? Yes! We offer fast and affordable modifications. Get a quote here.
Is this suitable for narrow or sloped lots? Absolutely. This vertical design is ideal for compact or uneven plots.
How many stories is this home? This is a 3-story layout with a mix of private bedrooms and shared living spaces.
Can I preview the blueprints? Yes. Preview every sheet before you buy.
Learn More About the Traditional Craftsman Style
Explore the roots and design philosophy of Craftsman architecture in this detailed article from ArchDaily.
Start Building Your Dream Home Today
Have questions or want to personalize your plan? Contact our expert team at support@myhomefloorplans.com or fill out our form.
Your future house starts with a great plan—customize it and build with confidence!
Original price was: $2,870.56.$1,459.99Current price is: $1,459.99.
999 in stock
* Please verify all details with the actual plan, as the plan takes precedence over the information shown below.
| Architectural Styles | |
|---|---|
| Width | 24'-0" |
| Depth | 56'-0" |
| Htd SF | |
| Bedrooms | |
| Bathrooms | |
| # of Floors | |
| # Garage Bays | |
| Indoor Features | Bonus Room, Fireplace, Foyer, Laundry Room, Living Room, Mudroom, Office/Study |
| Outdoor Features | |
| Bed and Bath Features | Bedrooms on Second Floor, Jack and Jill Bathroom, Owner's Suite on Second Floor, Walk-in Closet |
| Kitchen Features | |
| Ceiling Features | |
| Structure Type | |
| Unhtd SF | |
| Exterior Material |
No reviews yet.
9 FT+ Ceilings | After Build Photos | Bonus Rooms | Fireplaces | Foyer | Home Plans with Mudrooms | Jack and Jill | Kitchen Island | Large House Plans | Laundry Room | Living Room | Narrow Lot Designs | Office/Study Designs | Outdoor Fireplace Designs | Owner’s Suite on Second Floor | Screened Porches | Second Floor Bedroom | Sloped Lot | Traditional Craftsman | Transitional | Vaulted Ceiling | Walk-in Closet | Walk-in Pantry
20-1143 HOUSE PLAN – Elegant 3-Story House Plan with 4 Bedrooms and Unique Designs
- BOTH a PDF and CAD file (sent to the email provided/a copy of the downloadable files will be in your account here)
- PDF – Easily printable at any local print shop
- CAD Files – Delivered in AutoCAD format. Required for structural engineering and very helpful for modifications.
- Structural Engineering – Included with every plan unless not shown in the product images. Very helpful and reduces engineering time dramatically for any state. *All plans must be approved by engineer licensed in state of build*
Disclaimer
Verify dimensions, square footage, and description against product images before purchase. Currently, most attributes were extracted with AI and have not been manually reviewed.
My Home Floor Plans, Inc. does not assume liability for any deviations in the plans. All information must be confirmed by your contractor prior to construction. Dimensions govern over scale.















