20-1835 HOUSE PLAN – Modern 3-Story House Plan with Spacious Floor Plan and CAD Designs
Explore this modern 3-story house plan featuring a spacious floor plan, detailed blueprints, and CAD architecture designs. Perfect for narrow lot designs.
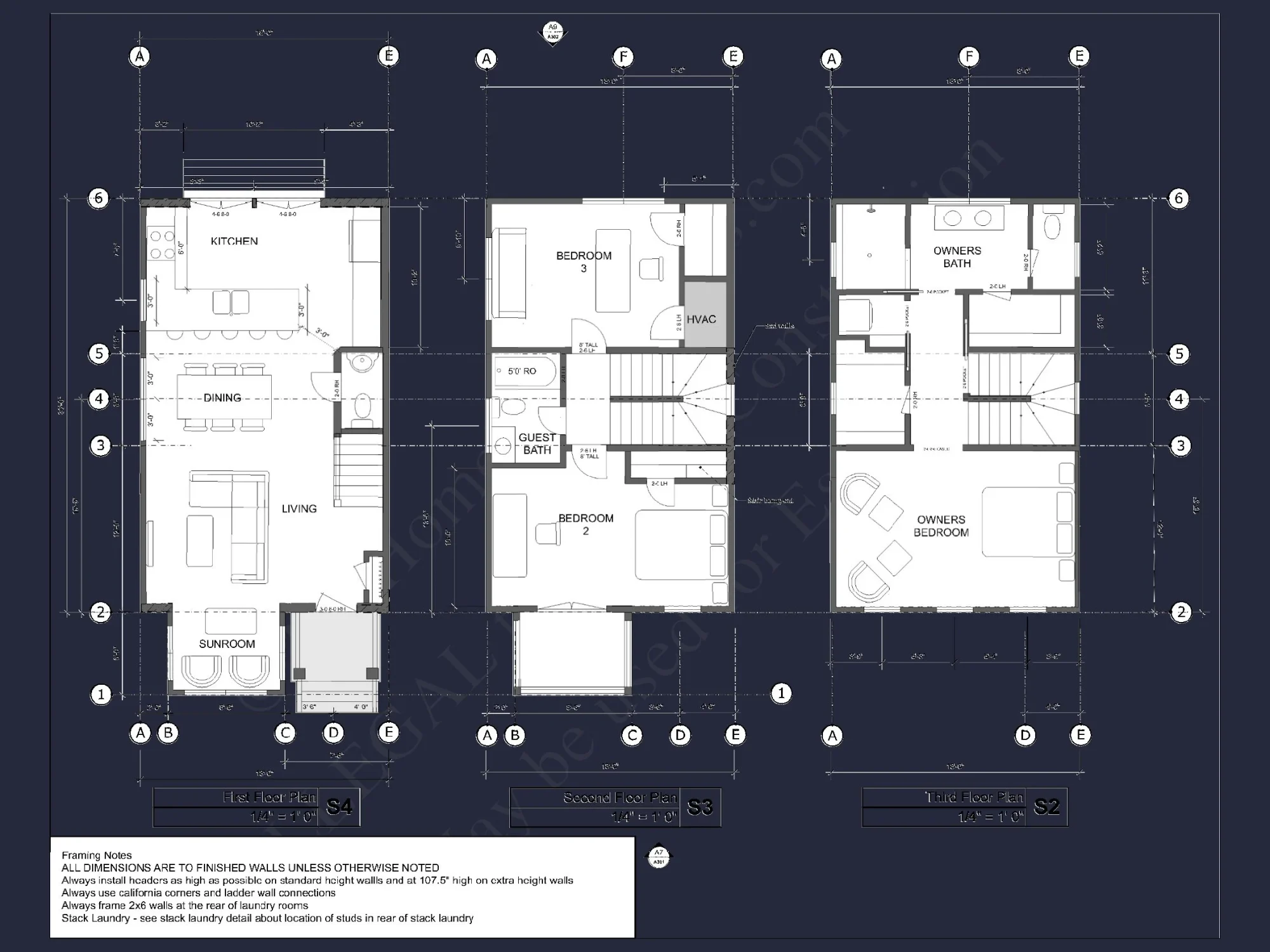
Modern 3-Story Home Plan with Sleek Vertical Living Design
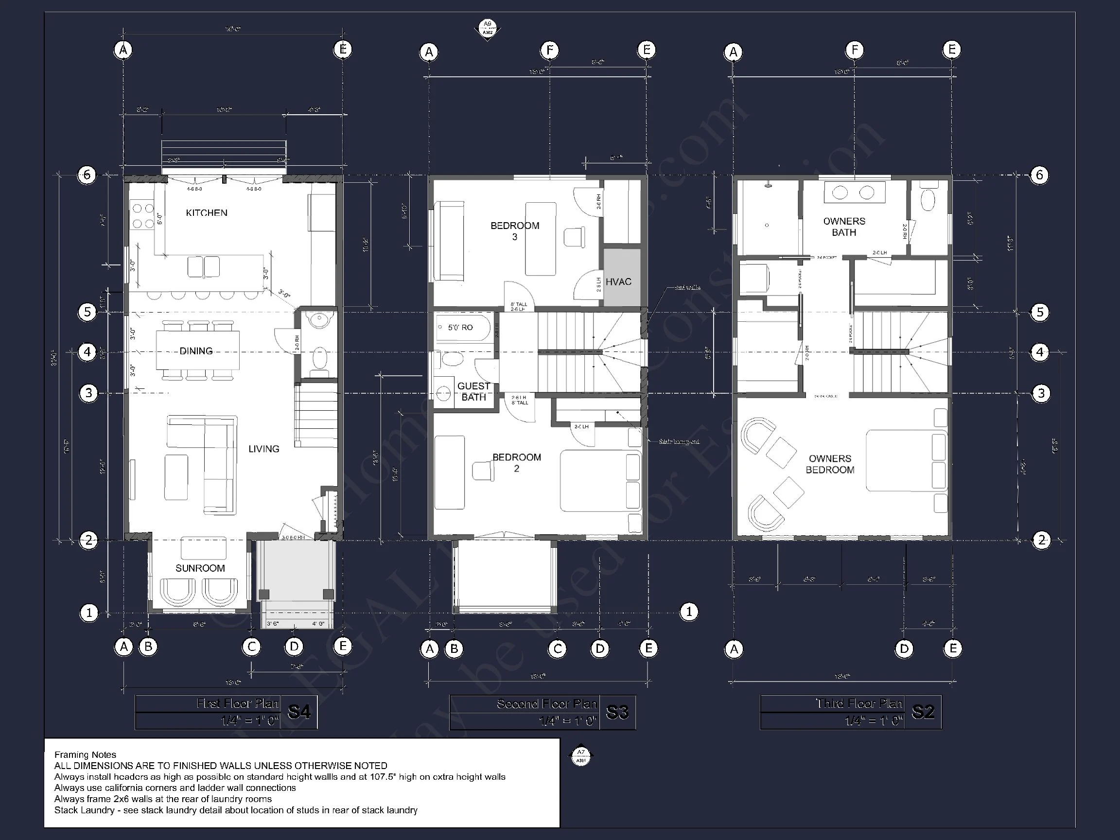
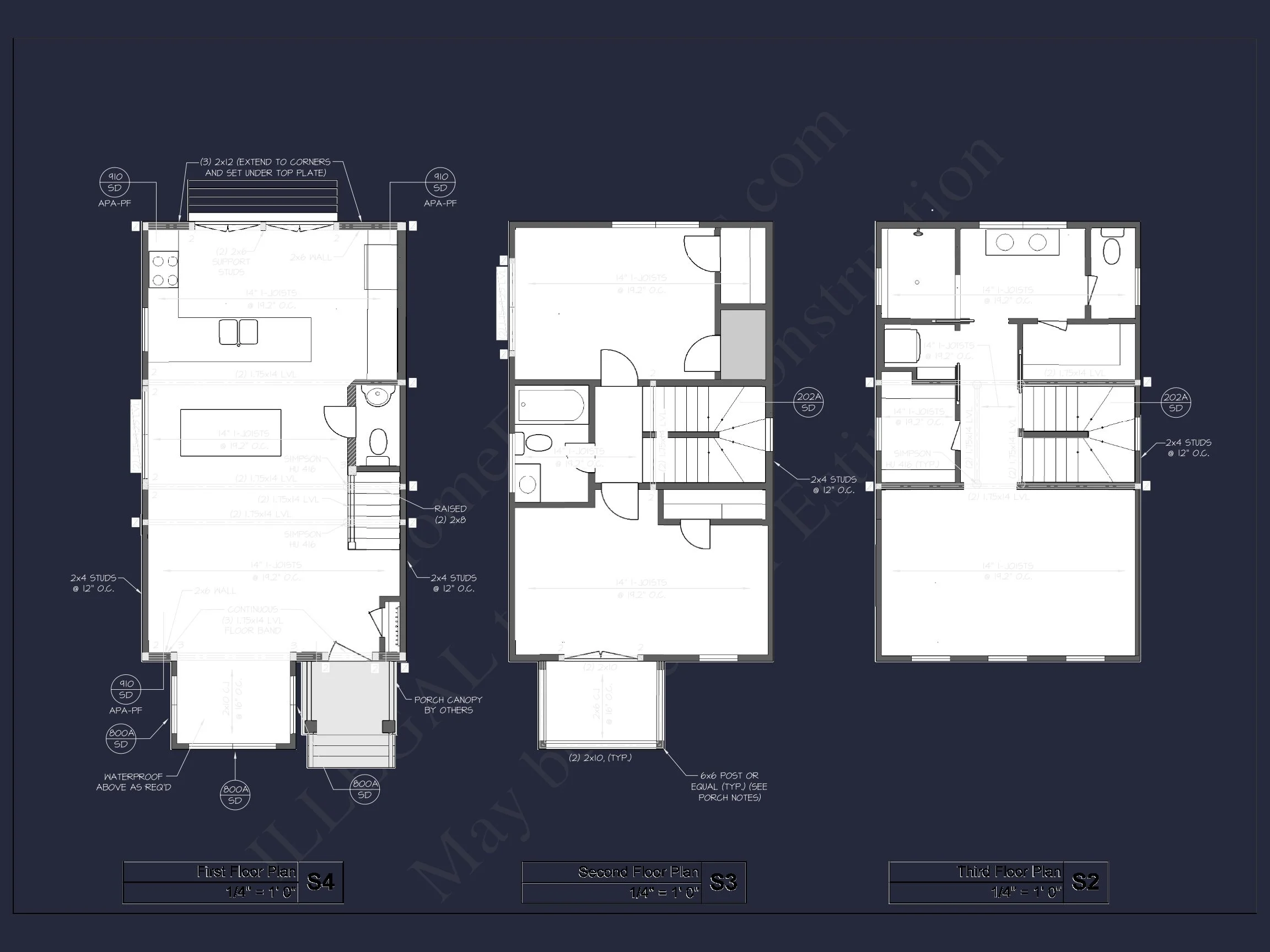
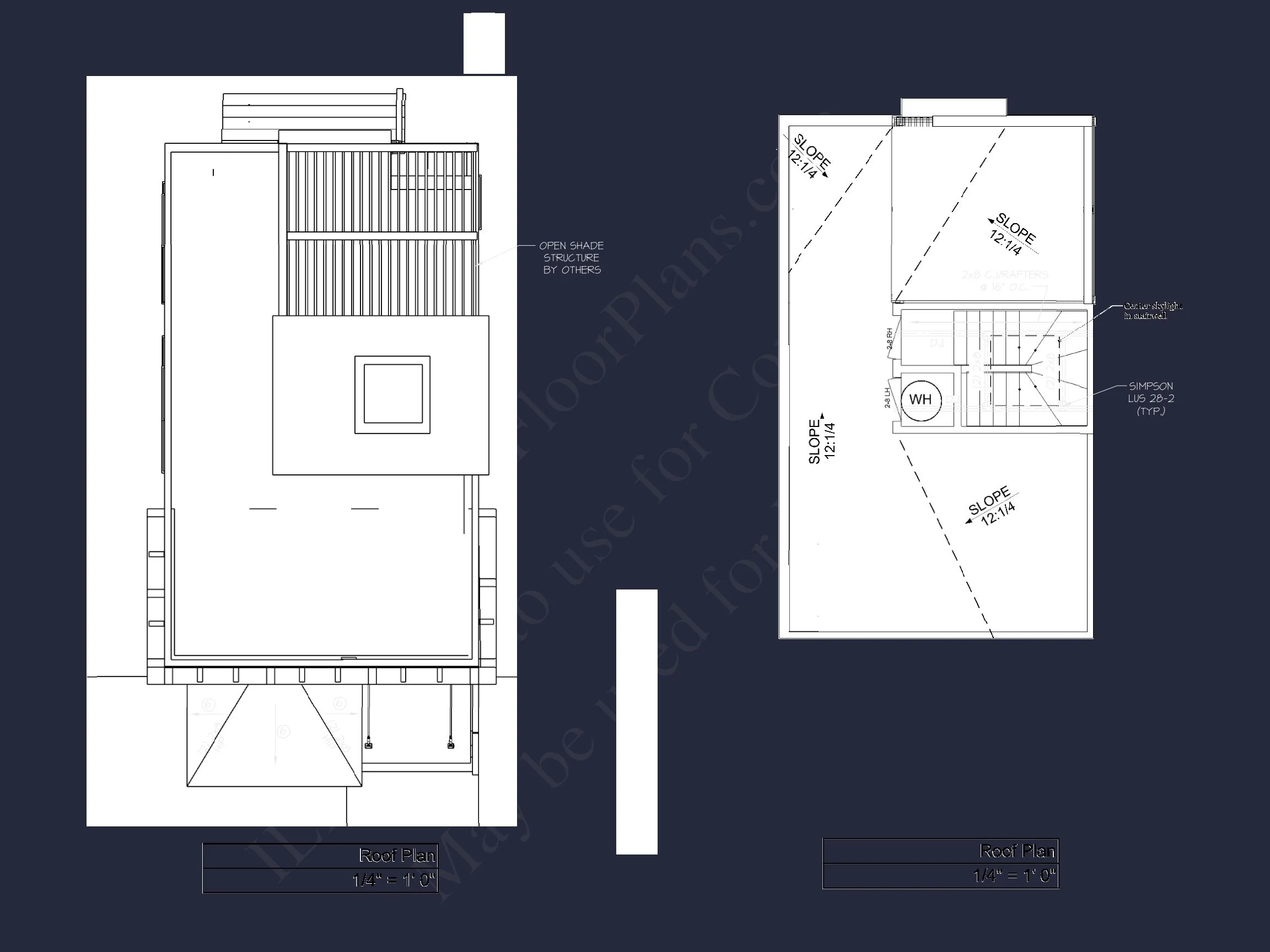
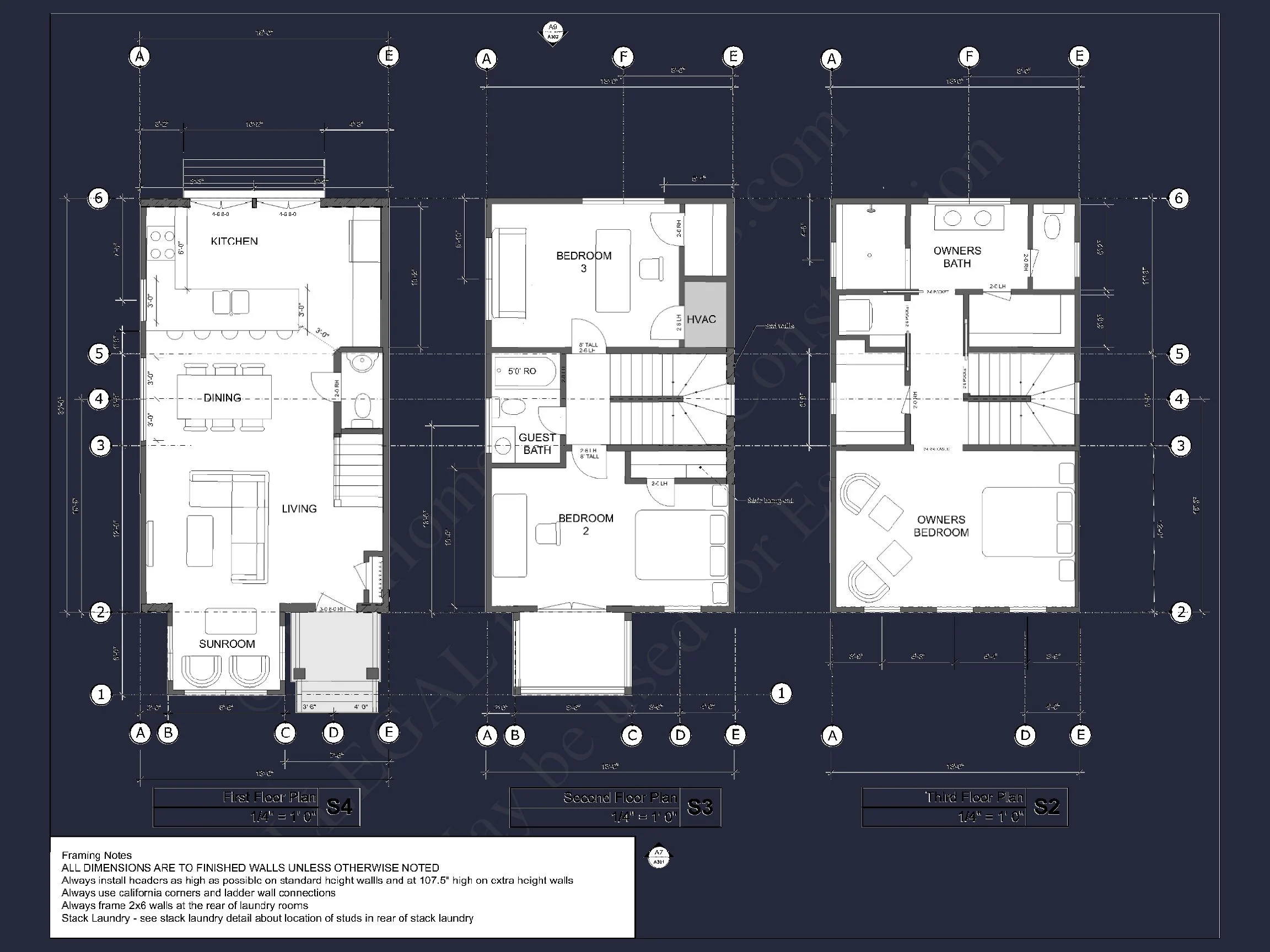
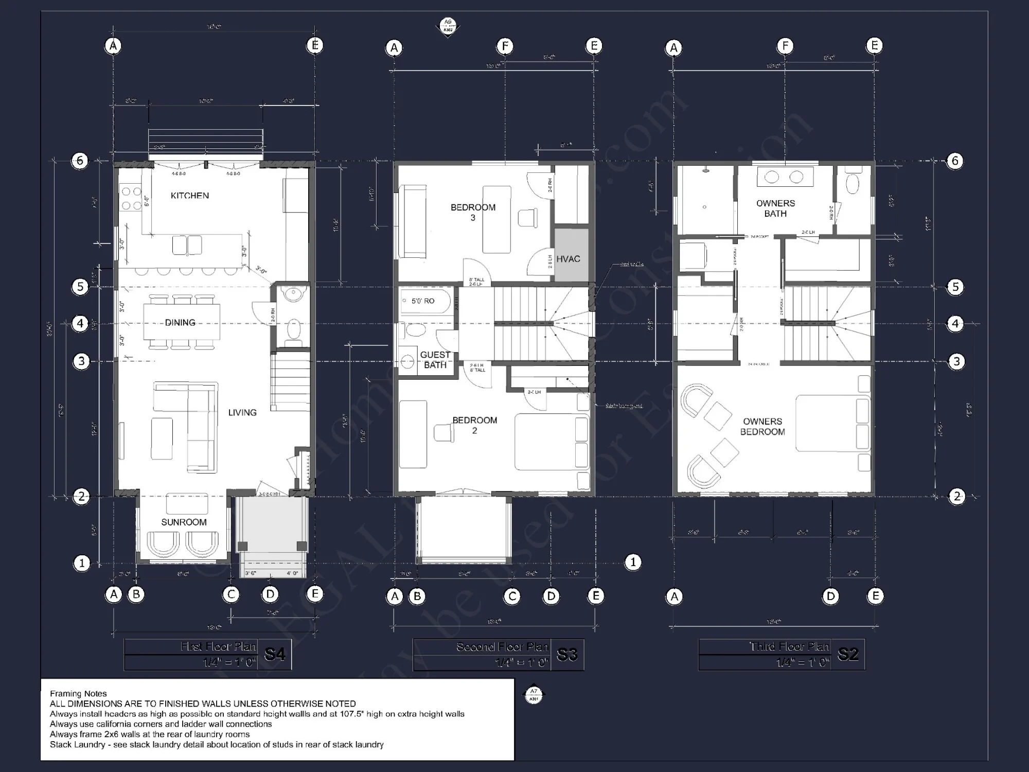
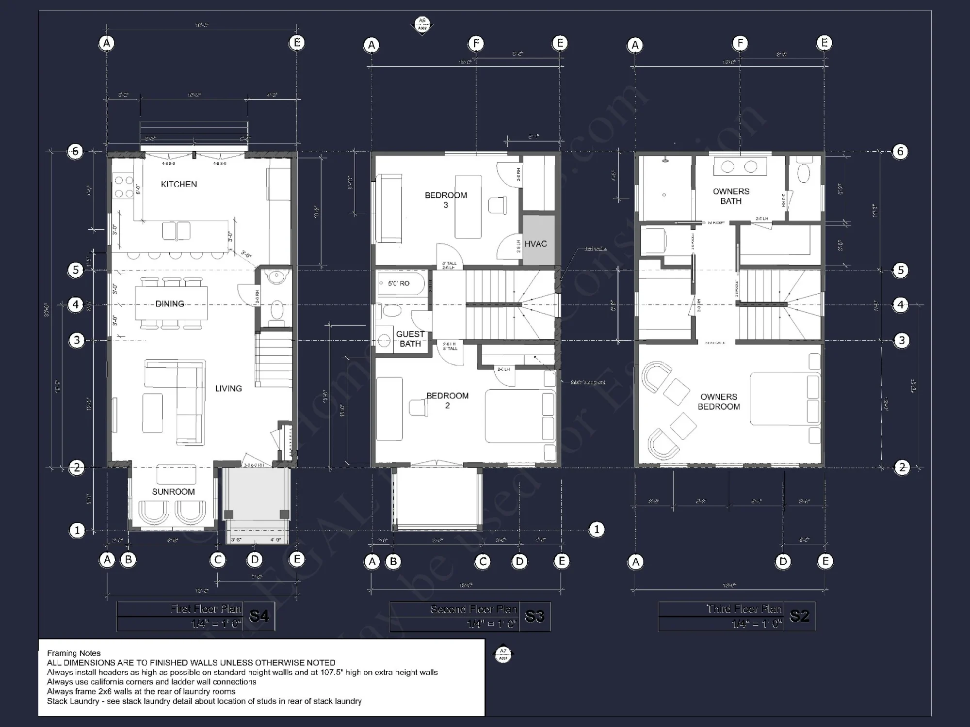
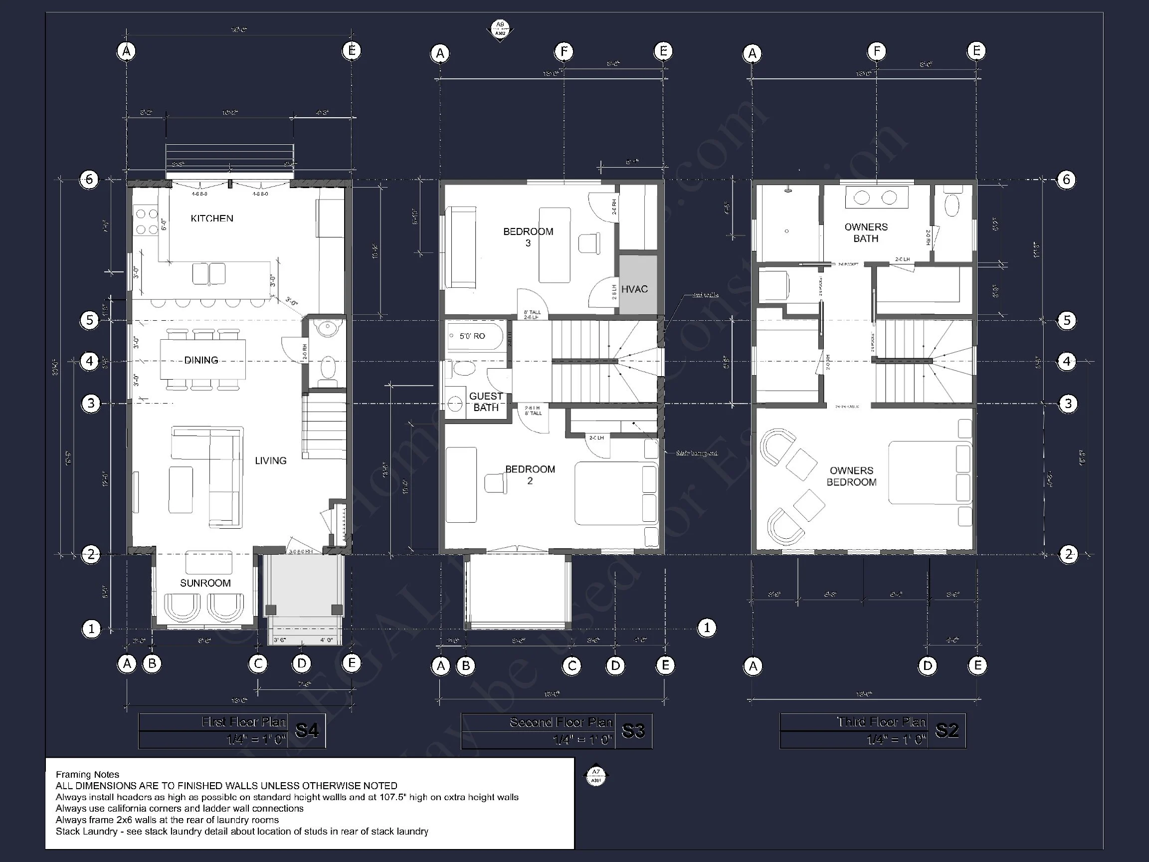
Explore this 3-story modern home plan with 1,757 heated sq. ft., detailed CAD blueprints, and a space-saving layout—ideal for narrow lots and urban living.
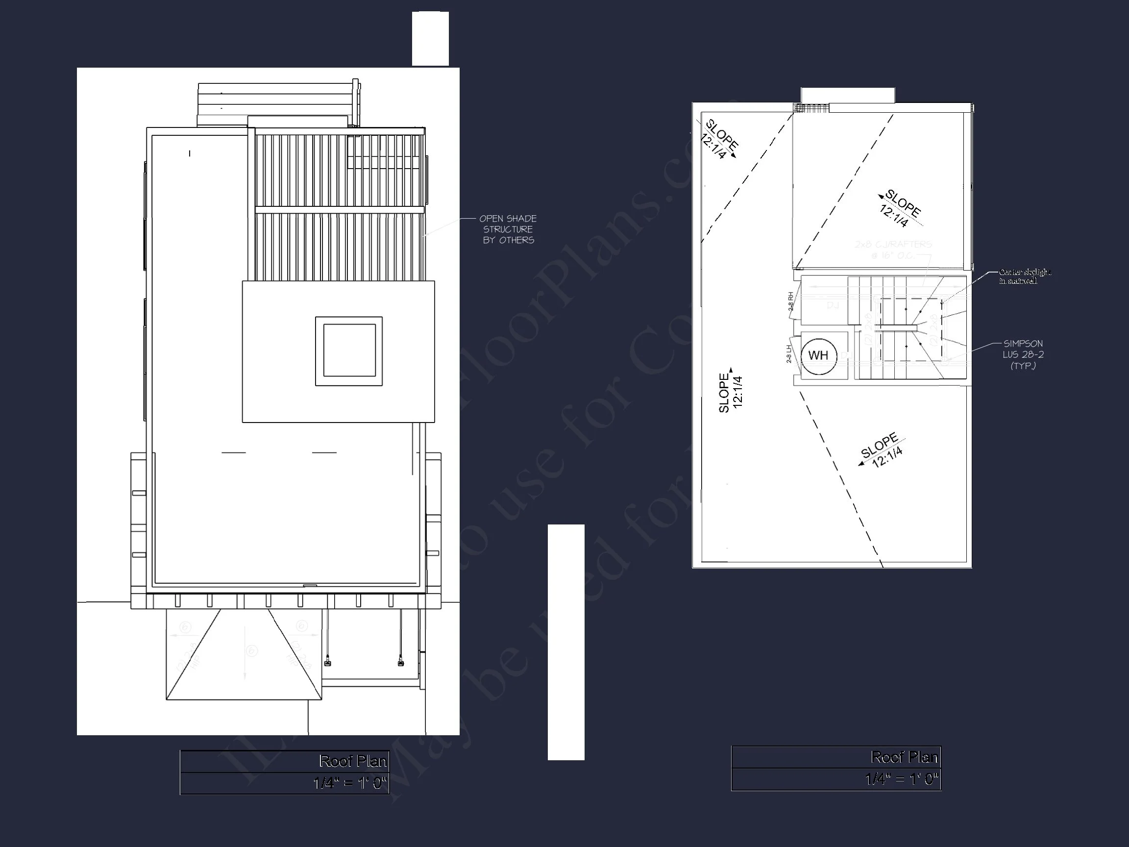
This modern 3-story house plan offers a perfect blend of function and style. Designed for narrow lots and contemporary living, it maximizes every inch with architectural finesse and thoughtful planning.
Key Features of the Home Plan
Living Areas – Heated & Unheated
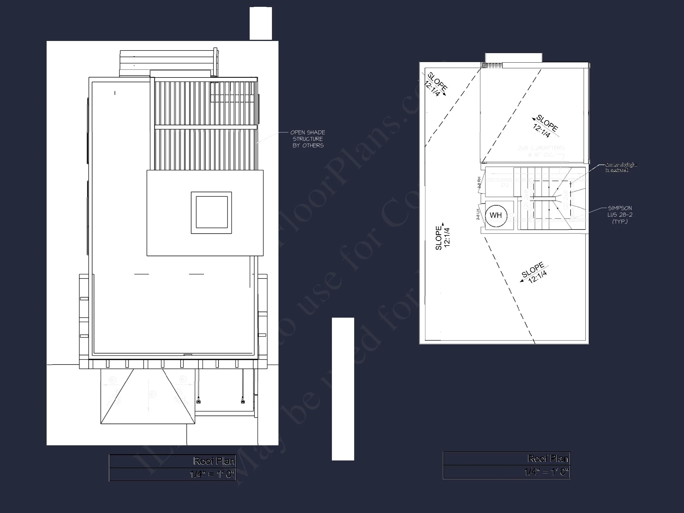
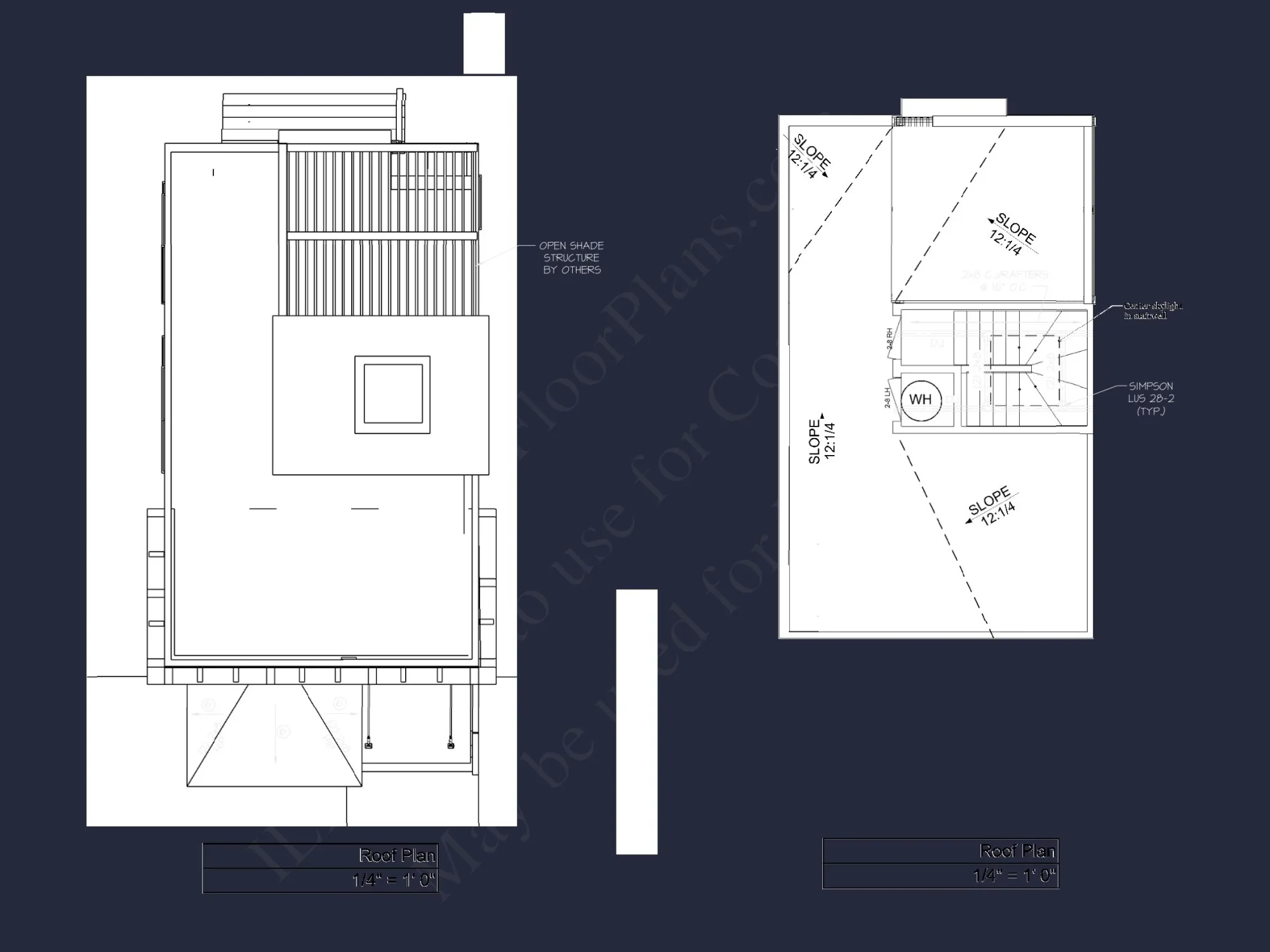
- Heated area: 1,757 sq. ft. spread across three thoughtfully designed levels.
- Unheated extras: Covered front porch and crawlspace foundation for easy maintenance.
Bedrooms & Bathrooms
- 3 private bedrooms, including a luxurious Owner Suite on the third floor with walk-in closet.
- 3 full bathrooms strategically placed for convenience and privacy.
Interior Highlights
- Open floor plan ensures flow between living, kitchen, and dining spaces. Explore more open layouts.
- Sunroom on the first level enhances natural lighting and adds cozy charm.
- Owner’s suite includes a walk-in closet and private bath—perfect for comfort seekers.
Garage & Storage Details
- Garage Bays: None (ideal for urban lots or car-free living).
- Garage Type: N/A
- Storage: Walk-in closets and strategic interior layout provide ample storage solutions.
Outdoor Living Features
- Covered front porch adds curb appeal and a relaxing entry space.
- Durable modern siding enhances the sleek exterior and supports low maintenance.
Architectural Style: Modern Suburban
This design embraces modern architecture and vertical efficiency, making it ideal for city lots and eco-conscious living. Learn more about the modern suburban house style or explore its relevance in contemporary urban design on ArchDaily.
Bonus Features
- Sunroom filled with natural light—perfect for relaxing, reading, or indoor plants.
- Third-floor privacy zone with Owner Suite and personal bath space.
- Compact width (16 feet) ideal for infill projects and urban developments.
Included Benefits with Every Plan
- CAD + PDF Files: Fully editable and ready to print for building or permitting.
- Unlimited Build License: Construct as many times as you like—no renewal needed.
- Foundation Customization: Includes free crawlspace, slab, or basement changes.
- Engineered for Safety: All plans include structural engineering for compliance.
- Lower Modification Costs: Customize affordably—up to 50% cheaper than competitors.
- See All Sheets Before Purchase: Preview every page before buying.
Similar Collections You Might Love
- Narrow Lot House Plans
- Modern House Plans
- House Plans with Sunrooms
- Walk-In Closet House Plans
- Functional Layout House Plans
Frequently Asked Questions
Is this home plan suitable for narrow lots? Absolutely. With just 16 feet of width, it’s designed to maximize vertical space on tight lots.
How many levels are there? This home has three full stories—ideal for privacy and compact site planning.
What’s included with this plan? You get CAD files, PDFs, an unlimited-build license, structural engineering, and free foundation adjustments.
Does it come with a garage? This plan does not include a garage, making it perfect for urban or walkable neighborhoods.
Can I modify the design? Yes! We offer affordable customization to fit your lifestyle and preferences.
Start Building Your Dream Home Today
Have questions or want to customize this 3-story modern house plan? Our expert team is ready to help—email us or contact us here.
With CAD blueprints, unlimited build rights, and structural support included, you’re one step closer to building with confidence!
Original price was: $3,370.56.$1,754.99Current price is: $1,754.99.
999 in stock
* Please verify all details with the actual plan, as the plan takes precedence over the information shown below.
| Width | 16'-0" |
|---|---|
| Depth | 30'-0" |
| Htd SF | |
| Unhtd SF | |
| Bedrooms | |
| Bathrooms | |
| # of Floors | |
| # Garage Bays | |
| Architectural Styles | |
| Indoor Features | |
| Outdoor Features | |
| Bed and Bath Features | |
| Kitchen Features | |
| Condition | New |
| Ceiling Features | |
| Structure Type | |
| Exterior Material |
No reviews yet.
20-1835 HOUSE PLAN – Modern 3-Story House Plan with Spacious Floor Plan and CAD Designs
- BOTH a PDF and CAD file (sent to the email provided/a copy of the downloadable files will be in your account here)
- PDF – Easily printable at any local print shop
- CAD Files – Delivered in AutoCAD format. Required for structural engineering and very helpful for modifications.
- Structural Engineering – Included with every plan unless not shown in the product images. Very helpful and reduces engineering time dramatically for any state. *All plans must be approved by engineer licensed in state of build*
Disclaimer
Verify dimensions, square footage, and description against product images before purchase. Currently, most attributes were extracted with AI and have not been manually reviewed.
My Home Floor Plans, Inc. does not assume liability for any deviations in the plans. All information must be confirmed by your contractor prior to construction. Dimensions govern over scale.
















