20-1843 HOUSE PLAN – Elegant House Plan with 4 Bed, 2-Story Blueprint & CAD Designs
Discover a spacious 4-bedroom, 2-story traditional house with detailed blueprints and CAD designs. Featuring 3.5 baths, a large garage, open floor plan, and stylish amenities.
Elegant 2-Story House Plan with 4 Bedrooms & Timeless Traditional Design
Discover this 3,217 sq. ft. traditional 2-story floor plan with 4 bedrooms, 3.5 bathrooms, flexible workspaces, and spacious CAD blueprints included.
This traditional-style house plan offers a perfect mix of comfort and functionality. Designed for modern living, it delivers timeless charm and smart space planning.
Key Features of the Home Plan
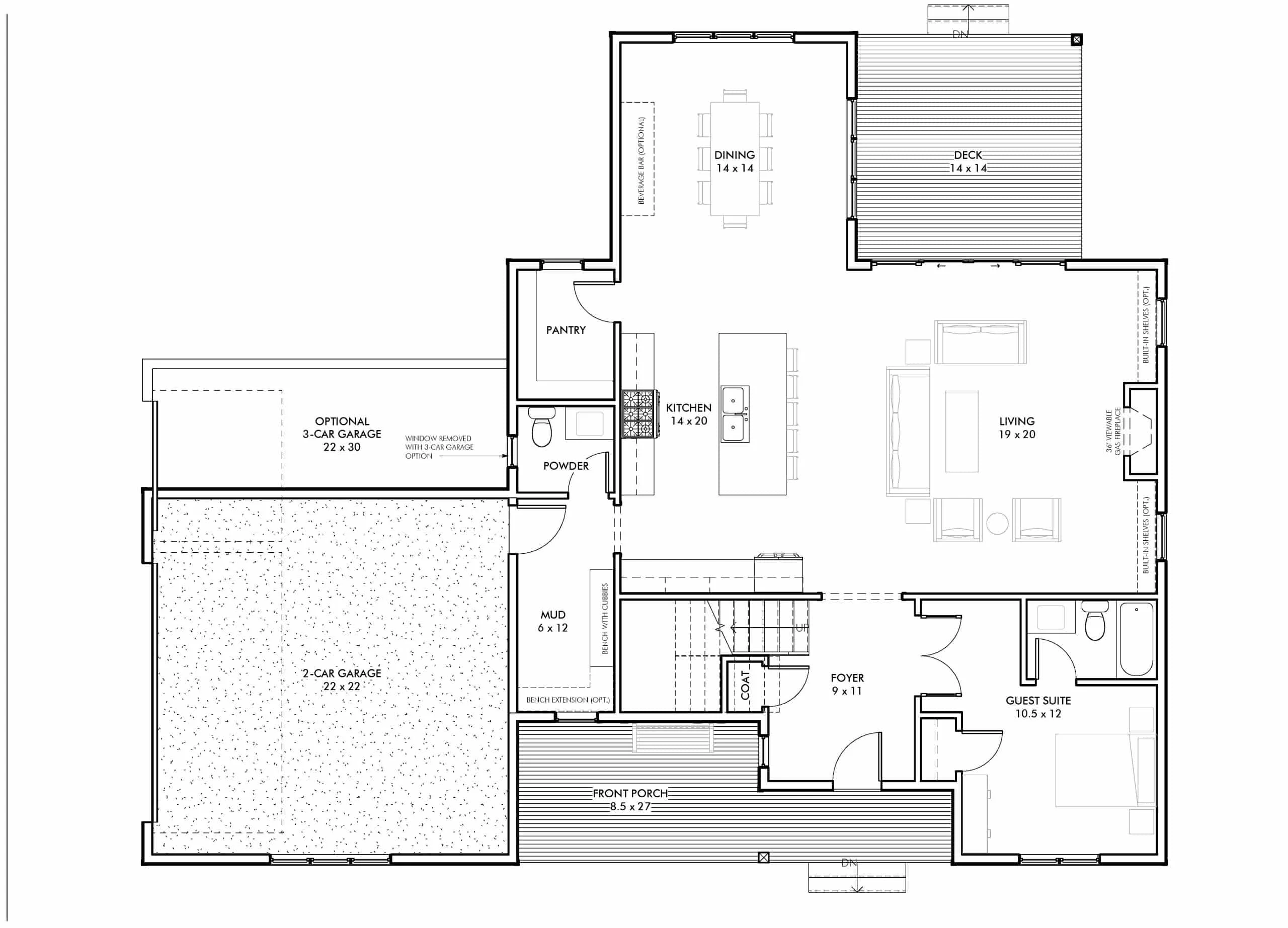
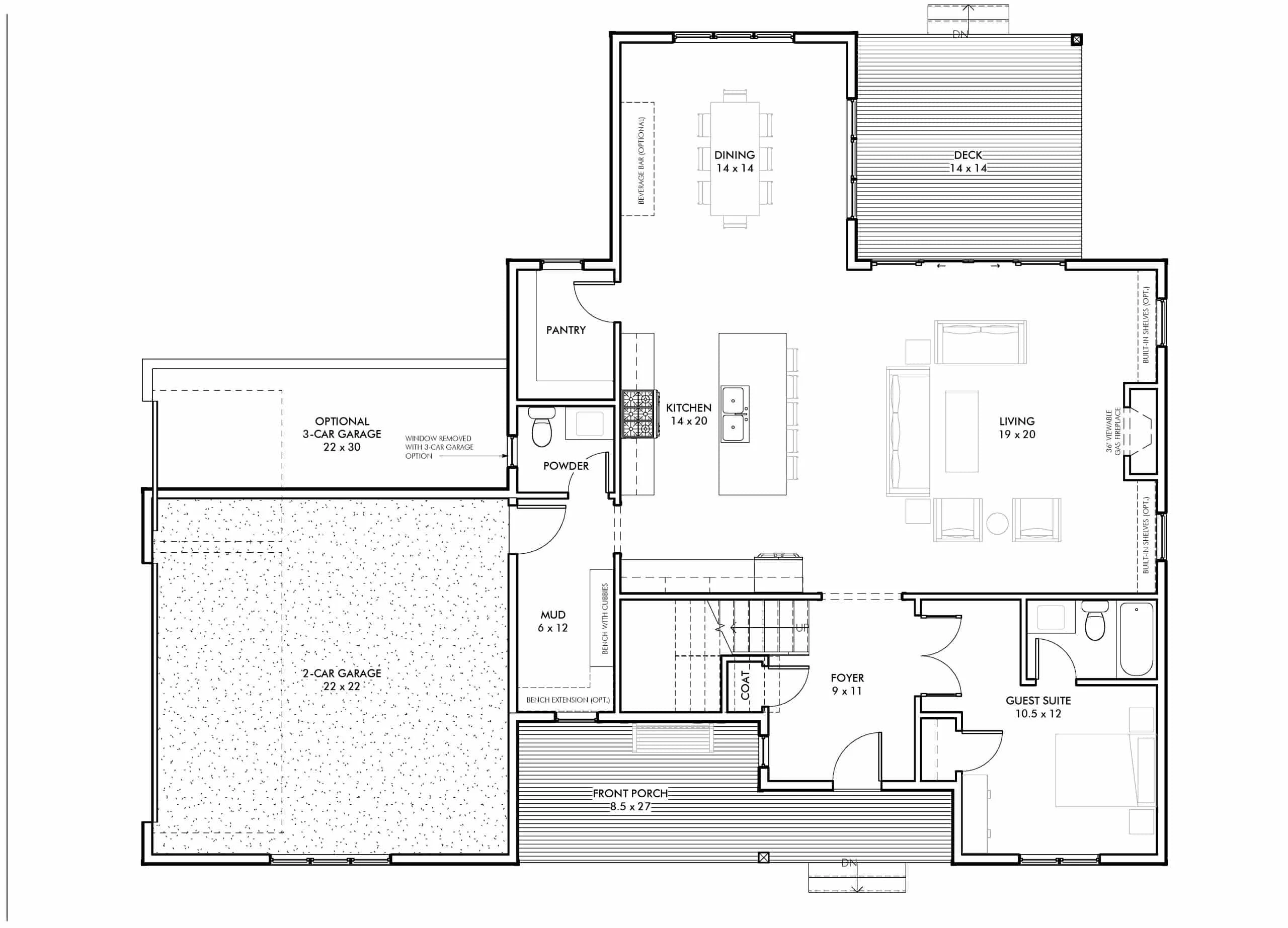
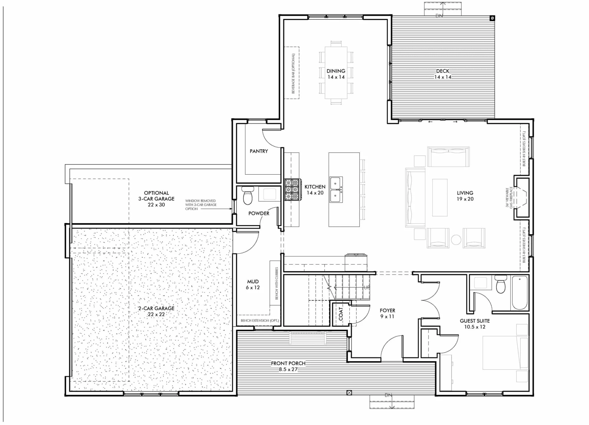
Living Areas – Heated & Unheated
- Heated area: 3,217 sq. ft. spread across two well-planned stories.
- Unheated extras: Covered front porch, rear deck, and optional 2- or 3-bay garage.
Bedrooms & Bathrooms
- 4 total bedrooms, including a spacious upstairs Owner Suite with a luxurious walk-in closet and en-suite bath.
- 3.5 bathrooms strategically located for privacy and guest convenience.
Interior Highlights
- Vaulted ceilings in the Owner Suite create an elegant, airy retreat.
- Open floor plan links the kitchen, dining, and living spaces. View open layouts.
- Kitchen island, walk-in pantry, and a sunny breakfast nook enhance culinary enjoyment.
- Dedicated office/study and upstairs bonus room support work-from-home and recreational needs.
Garage & Storage Details
- Garage Bays: Choose between a 2-car or 3-car option for added flexibility.
- Garage Type: Attached front-entry garage for easy access and space efficiency.
- Storage: Generous mudroom, upstairs laundry room, and bonus storage solutions throughout.
Outdoor Living Features
- Enjoy shaded outdoor moments on the covered front porch and rear backyard deck.
- Charming board & batten siding adds curb appeal rooted in farmhouse tradition.
Architectural Style: Traditional Farmhouse
This design blends timeless materials and thoughtful details—perfect for families who value character and efficiency in one package. Learn more about the Traditional Farmhouse or explore its roots on ArchDaily.
Bonus Features
- Upstairs bonus room that can be used as a media room, gym, or guest suite.
- Mudroom provides transitional storage between garage and interior.
- Dedicated study/office for remote work or private retreat.
Included Benefits with Every Plan
- CAD + PDF Files: Easily editable, printable, and ready to build.
- Unlimited Build License: Build once—or 100 times—with no extra fees.
- Free Foundation Changes: Swap between slab, crawlspace, or basement.
- Structural Engineering Included: Code-compliant and professionally stamped.
- Lower Modification Costs: Up to 50% less than competitors.
- View Before You Buy: See every sheet in advance.
Similar Collections You Might Love
- 4-Bedroom House Plans
- Plans with Bonus Rooms
- Walk-In Closet House Plans
- Covered Back Porch Designs
- Traditional House Plans
Frequently Asked Questions
What’s included with this house plan? All plans come with editable CAD files, printable PDFs, unlimited-build rights, structural engineering, and free foundation changes.
Can I customize the layout? Yes! We offer fast and affordable modifications. Get a quote here.
Is this suitable for families? Absolutely. With 4 bedrooms and multiple living spaces, this layout suits families of all sizes.
How many stories is this home? This is a 2-story home with the Owner Suite on the upper level for privacy.
Can I preview the blueprints? Yes. Preview every sheet before you buy.
Start Building Your Dream Home Today
Have questions or want to personalize your plan? Contact our expert team at support@myhomefloorplans.com or fill out our form.
Your future house starts with a great plan—customize it and build with confidence!
Original price was: $2,870.56.$1,459.99Current price is: $1,459.99.
999 in stock
* Please verify all details with the actual plan, as the plan takes precedence over the information shown below.
| Width | 63'-0" |
|---|---|
| Depth | 51'-2" |
| Htd SF | |
| Bedrooms | |
| Bathrooms | |
| # of Floors | |
| # Garage Bays | |
| Architectural Styles | |
| Indoor Features | Bonus Room, Foyer, Great Room, Living Room, Mudroom, Office/Study, Open Floor Plan, Upstairs Laundry Room |
| Outdoor Features | |
| Bed and Bath Features | Bedrooms on Second Floor, Jack and Jill Bathroom, Owner's Suite on Second Floor, Walk-in Closet |
| Kitchen Features | |
| Condition | New |
| Garage Features | |
| Ceiling Features | |
| Structure Type | |
| Exterior Material |
No reviews yet.
20-1843 HOUSE PLAN – Elegant House Plan with 4 Bed, 2-Story Blueprint & CAD Designs
- BOTH a PDF and CAD file (sent to the email provided/a copy of the downloadable files will be in your account here)
- PDF – Easily printable at any local print shop
- CAD Files – Delivered in AutoCAD format. Required for structural engineering and very helpful for modifications.
- Structural Engineering – Included with every plan unless not shown in the product images. Very helpful and reduces engineering time dramatically for any state. *All plans must be approved by engineer licensed in state of build*
Disclaimer
Verify dimensions, square footage, and description against product images before purchase. Currently, most attributes were extracted with AI and have not been manually reviewed.
My Home Floor Plans, Inc. does not assume liability for any deviations in the plans. All information must be confirmed by your contractor prior to construction. Dimensions govern over scale.



















