8-1302 HOUSE PLAN – Modern Farmhouse Home Plan – 4-Bed, 3-Bath, 2,615 SF
Modern Farmhouse, Traditional, and Transitional house plan with board and batten and stone exterior • 4 bed • 3 bath • 2,615 SF. Open floor plan, covered porch, and bonus room. Includes CAD+PDF + unlimited build license.
Original price was: $3,170.56.$1,954.99Current price is: $1,954.99.
999 in stock
* Please verify all details with the actual plan, as the plan takes precedence over the information shown below.
| Width | 40'-0" |
|---|---|
| Depth | 48'-0" |
| Htd SF | |
| Unhtd SF | |
| Bedrooms | |
| Bathrooms | |
| # of Floors | |
| # Garage Bays | |
| Architectural Styles | |
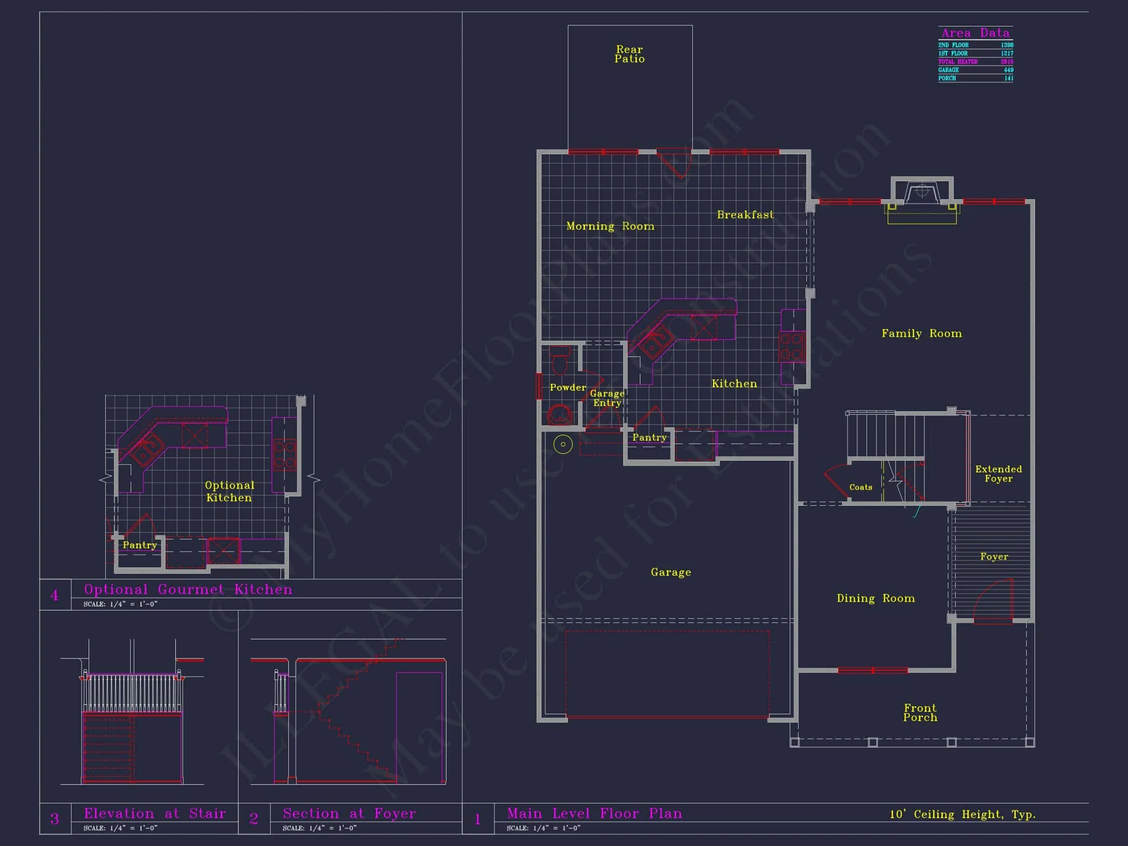
| Indoor Features | Foyer, Mudroom, Great Room, Family Room, Living Room, Office/Study, Bonus Room |
| Outdoor Features | |
| Bed and Bath Features | Bedrooms on Second Floor, Owner's Suite on Second Floor, Jack and Jill Bathroom, Walk-in Closet |
| Kitchen Features | |
| Garage Features | |
| Condition | New |
| Ceiling Features | |
| Structure Type | |
| Exterior Material |
Carolyn Steele – June 14, 2025
Carriage-style garage with apartment boosts rental income.
9 FT+ Ceilings | Affordable | Bonus Rooms | Breakfast Nook | Classic Suburban | Covered Front Porch | Covered Patio | Covered Rear Porches | Family Room | Foyer | Front Entry | Great Room | Home Plans with Mudrooms | Jack and Jill | Kitchen Island | Large House Plans | Living Room | Medium | Narrow Lot Designs | Office/Study Designs | Owner’s Suite on Second Floor | Second Floor Bedroom | Starter Home | Traditional Craftsman | Vaulted Ceiling | Walk-in Closet | Walk-in Pantry | Workshop
Elegant Modern Farmhouse Plan with Board and Batten Exterior
Experience the charm of this 2-story Modern Farmhouse home plan featuring 2,615 heated sq. ft., 4 bedrooms, 3 bathrooms, and a 2-car garage—crafted for family living and timeless curb appeal.
This Modern Farmhouse plan merges traditional comfort with contemporary styling. Perfect for families and builders, it blends clean architectural lines, functional layouts, and a rich mix of exterior textures—board and batten siding, stone accents, and lap siding for depth and durability.
Key Home Plan Details
- Heated Area: 2,615 sq. ft. of climate-controlled living space.
- Garage: 2-car attached garage with optional workshop or storage bay.
- Stories: Two floors offering distinct living and sleeping zones.
Bedrooms & Bathrooms
- Bedrooms: 4 spacious bedrooms, including an elegant Owner’s Suite with walk-in closet.
- Bathrooms: 3 full bathrooms featuring double vanities and designer layouts.
- Bonus Room: Optional space for a media room, home office, or gym.
Interior Design & Flow
This home welcomes you with a light-filled foyer that opens to an expansive great room and dining area. The open-concept kitchen includes a large island, walk-in pantry, and custom cabinetry for modern convenience. A nearby mudroom entry connects to the garage, maintaining cleanliness and organization.
Upstairs, bedrooms are thoughtfully arranged for privacy. The Owner’s Suite is a retreat of its own, while secondary bedrooms share a Jack-and-Jill bath—ideal for families. The fourth bedroom or bonus room can serve as a guest suite or flex space for remote work.
Outdoor Living & Exterior Materials
- Exterior: Combination of board and batten, horizontal siding, and stone base for balanced texture.
- Front Porch: Covered entry perfect for seasonal décor and relaxing evenings.
- Rear Patio: Ideal for outdoor dining or summer gatherings.
Architectural Character
This design captures the essence of Modern Farmhouse architecture—crisp white siding, contrasting shutters, gable roofs, and black window trim. The addition of natural stone gives a grounded, traditional touch. The home’s balanced proportions and symmetry bring together classic and modern influences for enduring appeal.
Discover how this style is reshaping today’s homebuilding trends at ArchDaily.
Included Plan Benefits
- CAD + PDF Files: Editable and ready for professional modification.
- Unlimited Build License: Freedom to construct multiple homes without limitation.
- Engineering Included: Plans meet modern structural and energy standards.
- Foundation Options: Slab, crawlspace, or basement foundations included at no cost.
- Previews Available: View every sheet before you buy.
Why Homeowners Love This Plan
Homeowners are drawn to this Modern Farmhouse for its inviting layout, energy efficiency, and blend of rustic character with refined detailing. The gabled rooflines, covered porch, and warm textures make it equally suited for suburban or countryside settings.
Frequently Asked Questions
Can this plan be customized? Absolutely! Every floor plan can be modified to match your family’s needs.
Is the garage side-load or front-load? The standard version is front-load, but side-load options are available.
What materials are included? The plan includes specifications for board and batten siding, horizontal lap, and stone veneer.
Are the blueprints ready to build? Yes—your purchase includes CAD, PDF, and engineering-ready files.
Get Started Today
Bring this Modern Farmhouse plan to life. Contact us at support@myhomefloorplans.com or visit MyHomeFloorPlans.com to begin your build today.
8-1302 HOUSE PLAN – Modern Farmhouse Home Plan – 4-Bed, 3-Bath, 2,615 SF
- BOTH a PDF and CAD file (sent to the email provided/a copy of the downloadable files will be in your account here)
- PDF – Easily printable at any local print shop
- CAD Files – Delivered in AutoCAD format. Required for structural engineering and very helpful for modifications.
- Structural Engineering – Included with every plan unless not shown in the product images. Very helpful and reduces engineering time dramatically for any state. *All plans must be approved by engineer licensed in state of build*
Disclaimer
Verify dimensions, square footage, and description against product images before purchase. Currently, most attributes were extracted with AI and have not been manually reviewed.
My Home Floor Plans, Inc. does not assume liability for any deviations in the plans. All information must be confirmed by your contractor prior to construction. Dimensions govern over scale.


