8-1704B HOUSE PLAN – Custom Architectural House Plan | CAD Blueprint for 3-Story Designs
Discover a detailed 3-story house plan with CAD blueprints featuring 4 bedrooms, a 2-car garage, a bonus room, and flexible modern architectural designs.
Custom 3-Story Architectural House Plan with CAD Designs & Bonus Room
Explore this flexible 3-story house layout with 4 bedrooms, bonus room, 2-car garage, and CAD blueprints—designed for modern families and creative customization.
This architectural house plan blends flexible floor planning with timeless design details. Designed for builders, homeowners, and architects, it delivers a modern craftsman look with transitional appeal and fully editable CAD files.
Key Features of the Home Plan
Living Areas – Heated & Unheated
- Heated area: 3-story layout with spacious living zones across all levels.
- Unheated extras: Covered front porch, patio, and garage space.
Bedrooms & Bathrooms
- 4 spacious bedrooms with the Owner Suite on the second level—featuring a luxurious walk-in closet and Jack and Jill bathroom access.
- Multiple full bathrooms for privacy and convenience, plus optional powder room placement.
Interior Highlights
- 10-ft ceilings enhance the sense of space and openness.
- Open floor plan flows naturally between the great room, kitchen, and breakfast nook. View open layouts.
- Kitchen island and walk-in pantry offer style and storage.
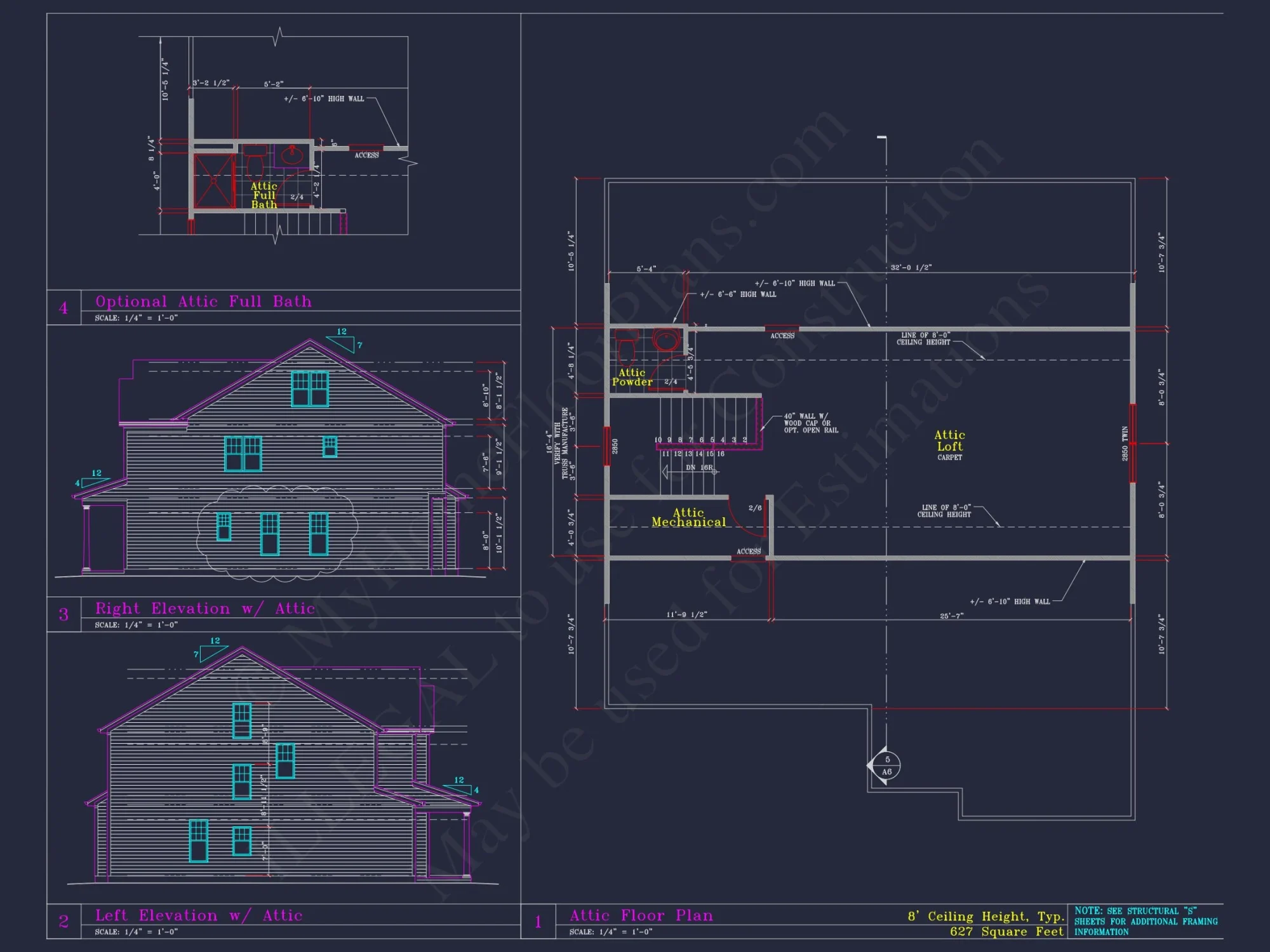
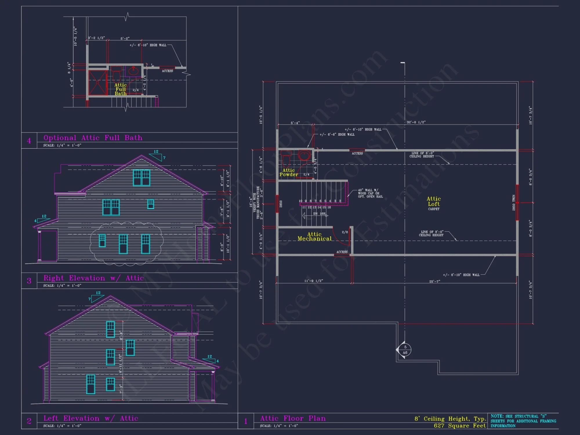
- Bonus room and recreation space ideal for hobbies or entertainment.
Garage & Storage Details
- Garage Bays: 2-car garage provides ample parking or storage.
- Garage Type: Attached design with convenient home entry.
- Storage: Includes walk-in closets, utility rooms, and basement storage.
Outdoor Living Features
- Covered front porch and rear patio ideal for relaxation or outdoor dining.
- Exterior finishes include board and batten, stone, and brick elements for timeless curb appeal.
Architectural Style: Transitional Modern Craftsman
This design merges classic materials with modern efficiency—ideal for families that want beauty and practicality in one blueprint. Learn more about the Modern Craftsman style or explore its influence on ArchDaily.
Bonus Features
- Dedicated office or flex room for working from home.
- Upstairs laundry room makes household chores easier.
- Optional basement level perfect for a gym, studio, or storage.
Included Benefits with Every Plan
- CAD + PDF Files: Fully editable and construction-ready formats included.
- Unlimited Build License: Build as many times as you need with zero limitations.
- Free Foundation Changes: Easily swap between basement, crawlspace, or slab foundations. Learn more.
- Structural Engineering Included: Every plan comes stamped and compliant with local codes. View engineering benefits.
- Lower Modification Costs: Up to 50% cheaper than competitors—customize with confidence.
- View Before You Buy: Preview every sheet before checkout.
Similar Collections You Might Love
- Modern Craftsman House Plans
- Plans with Bonus Rooms
- Recreation Room Floor Plans
- Plans with Walk-in Closets
- House Plans with Patios
Frequently Asked Questions
Does this plan come with editable CAD files? Yes. Every purchase includes CAD and PDF formats for easy editing and permitting.
Can I build this more than once? Absolutely. All plans come with an unlimited-build license—use it as often as you want.
Can I preview what’s included? Yes. You can view all sheets before buying to make sure it fits your goals.
Are modifications supported? We offer fast, affordable modifications. Request a quote today.
What foundation types are included? We offer free swaps between slab, crawlspace, or basement foundations—no added fee.
Start Building Your Dream Home Today
Have questions or ready to get started? Email us at support@myhomefloorplans.com or connect with our design team.
With a powerful set of blueprints and unmatched flexibility, your perfect house starts right here—customize it today!
Original price was: $2,470.56.$1,254.99Current price is: $1,254.99.
999 in stock
* Please verify all details with the actual plan, as the plan takes precedence over the information shown below.
| Width | 38'-0" |
|---|---|
| Depth | 52'-0" |
| Htd SF | |
| Unhtd SF | |
| Bedrooms | |
| Bathrooms | |
| # of Floors | |
| # Garage Bays | |
| Architectural Styles | |
| Indoor Features | Attic, Basement, Bonus Room, Family Room, Foyer, Great Room, Living Room, Office/Study, Recreational Room, Upstairs Laundry Room |
| Outdoor Features | |
| Bed and Bath Features | Bedrooms on Second Floor, Jack and Jill Bathroom, Owner's Suite on Second Floor, Walk-in Closet |
| Kitchen Features | |
| Garage Features | |
| Condition | New |
| Ceiling Features | |
| Structure Type | |
| Exterior Material |
Jennifer Werner – November 27, 2024
Savings at checkout funded premium appliances, demonstrating how inclusive documentation directly improves day-to-day living quality once the house is built.
10 FT+ Ceilings | Attics | Basement | Basement Garage | Bonus Rooms | Breakfast Nook | Covered Front Porch | Covered Patio | Family Room | Foyer | Front Entry | Great Room | Jack and Jill | Kitchen Island | Large House Plans | Living Room | Modern Craftsman Designs | Narrow Lot Designs | Office/Study Designs | Owner’s Suite on Second Floor | Patios | Recreational Room | Second Floor Bedroom | Traditional | Transitional | Upstairs Laundry Room | Walk-in Closet | Walk-in Pantry
8-1704B HOUSE PLAN – Custom Architectural House Plan | CAD Blueprint for 3-Story Designs
- BOTH a PDF and CAD file (sent to the email provided/a copy of the downloadable files will be in your account here)
- PDF – Easily printable at any local print shop
- CAD Files – Delivered in AutoCAD format. Required for structural engineering and very helpful for modifications.
- Structural Engineering – Included with every plan unless not shown in the product images. Very helpful and reduces engineering time dramatically for any state. *All plans must be approved by engineer licensed in state of build*
Disclaimer
Verify dimensions, square footage, and description against product images before purchase. Currently, most attributes were extracted with AI and have not been manually reviewed.
My Home Floor Plans, Inc. does not assume liability for any deviations in the plans. All information must be confirmed by your contractor prior to construction. Dimensions govern over scale.





































