SHILOH APARTMENT PLAN – Charming 2-Story House Plan with CAD Designs & Detailed Blueprint
Explore this 2-story house plan featuring 3 bedrooms, 2 baths, CAD designs, and detailed blueprints. Perfect for architects, designers, and housebuilders.
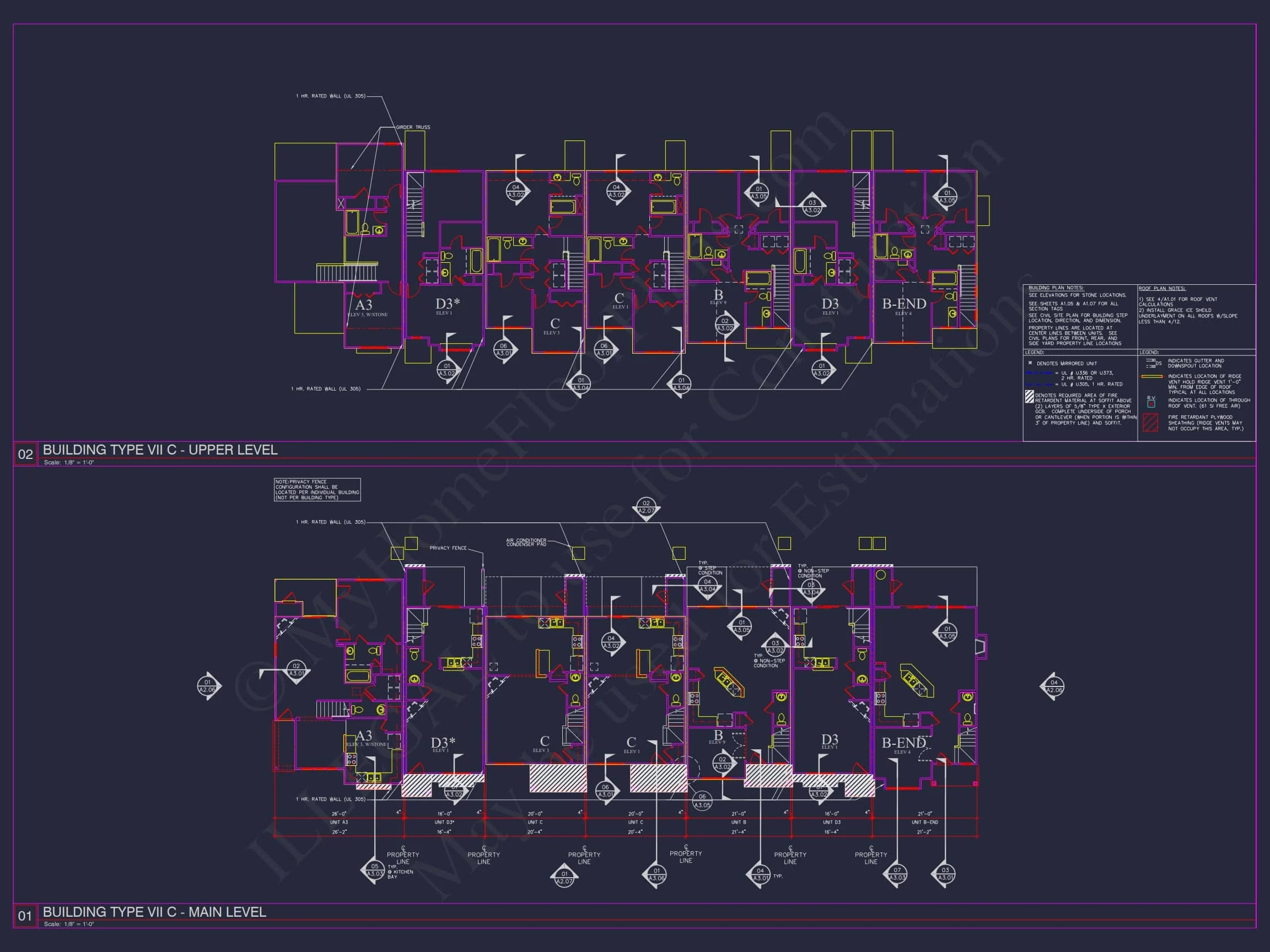
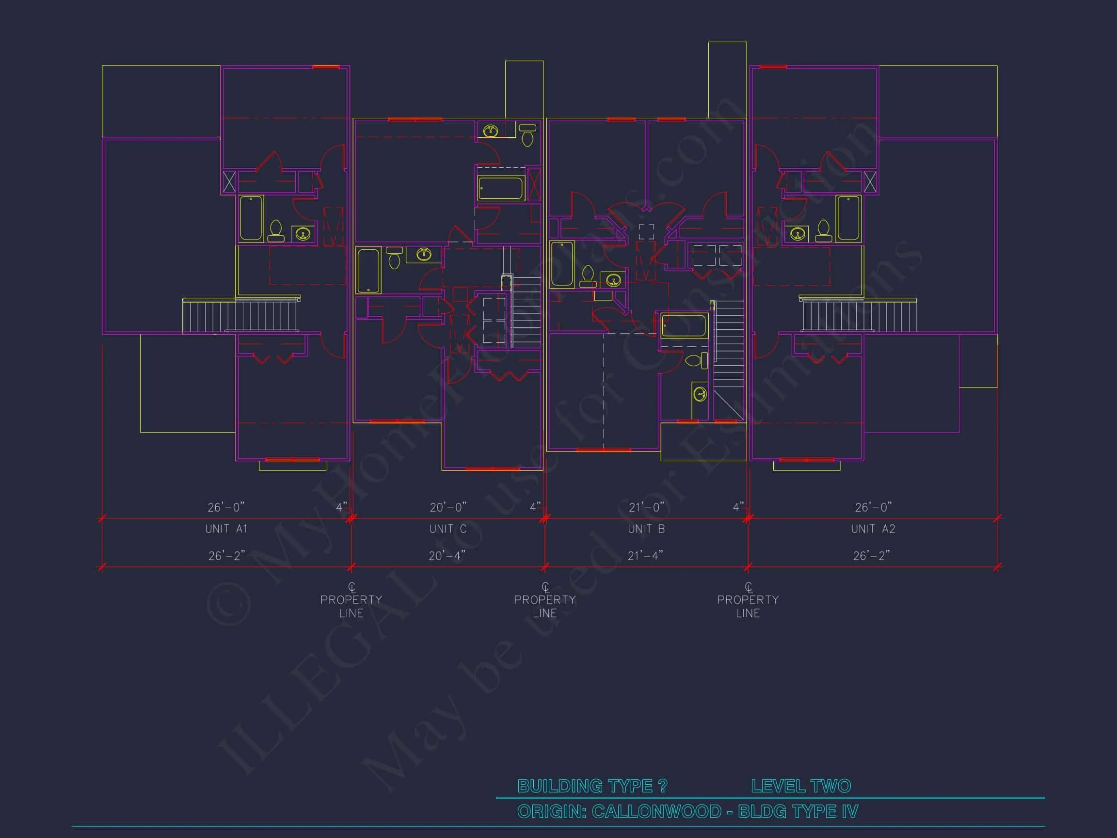
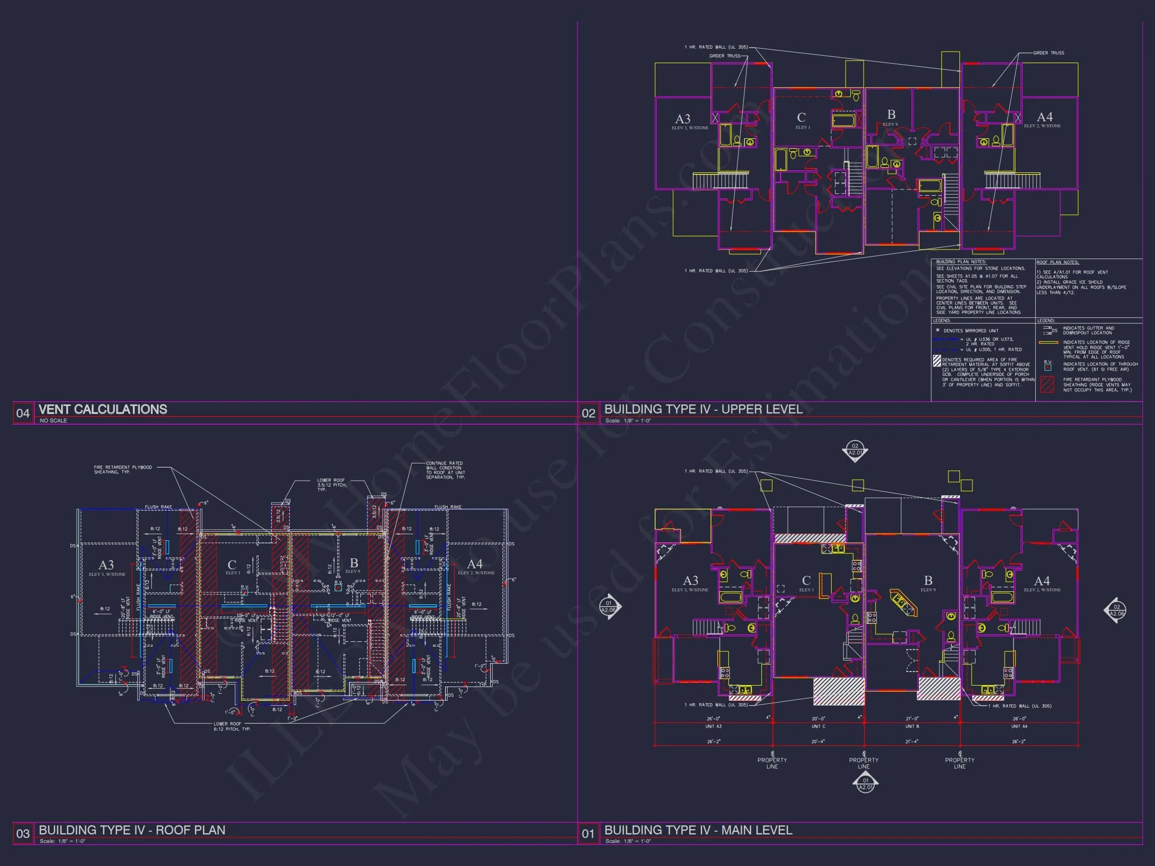
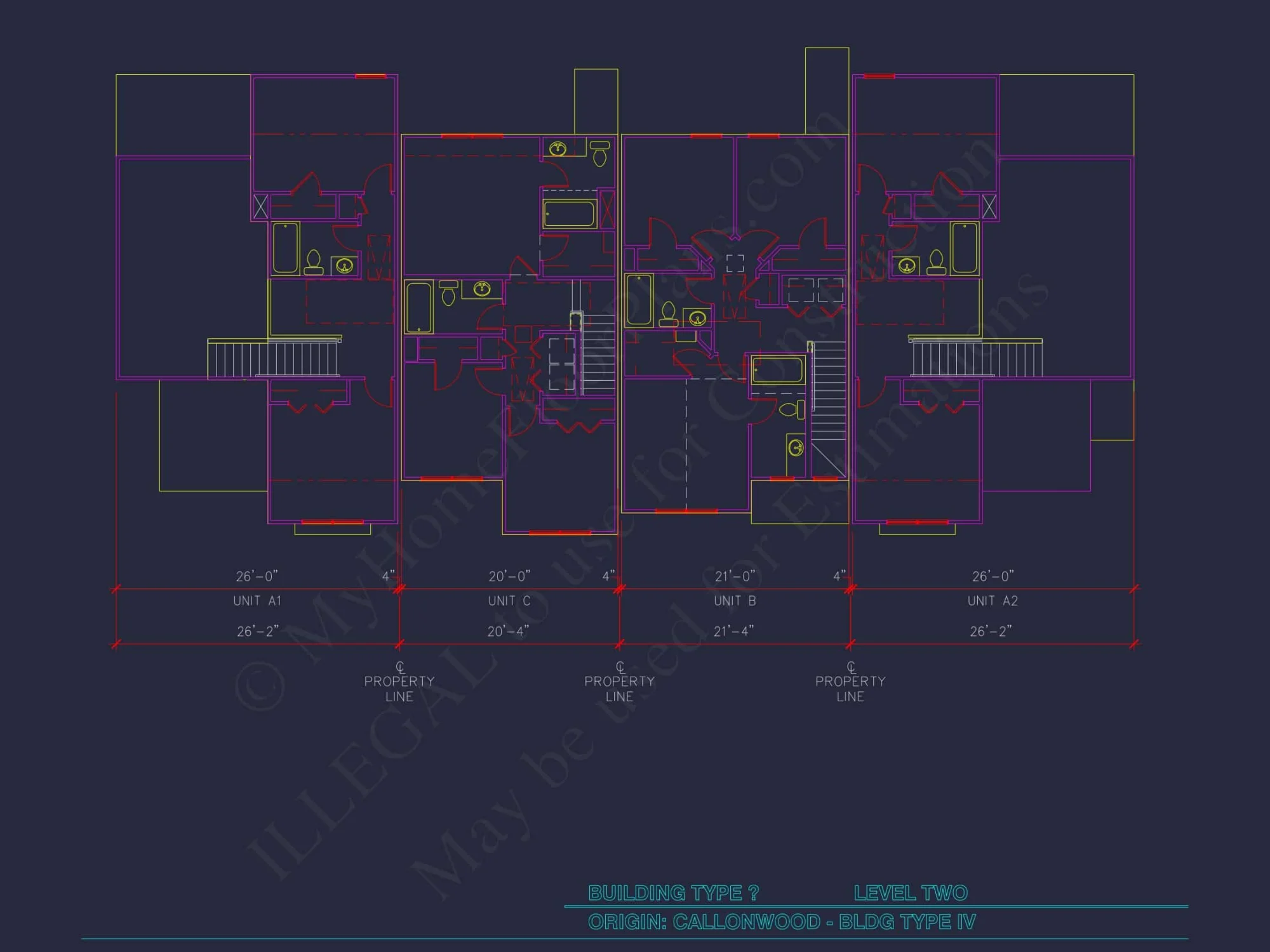
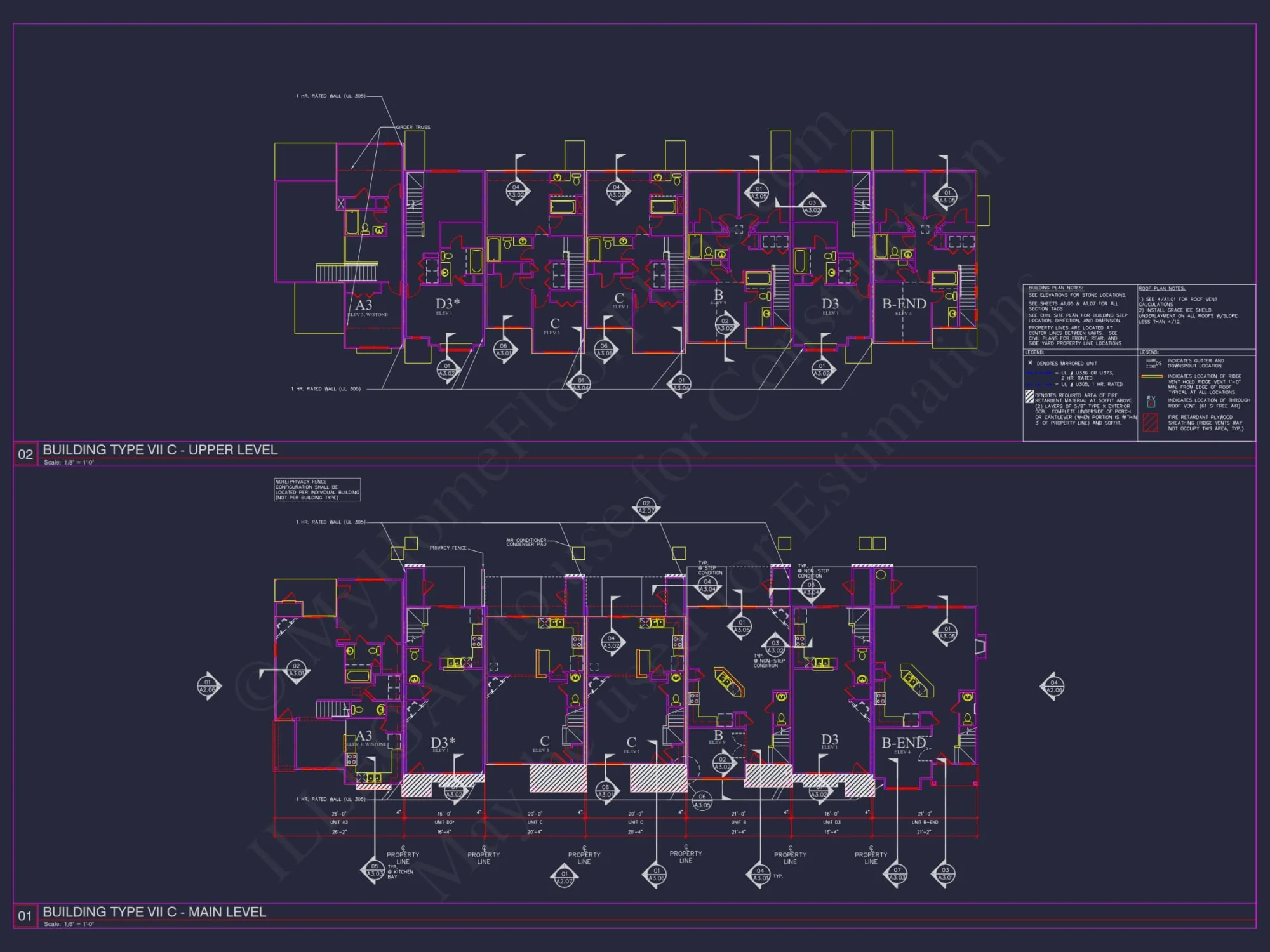
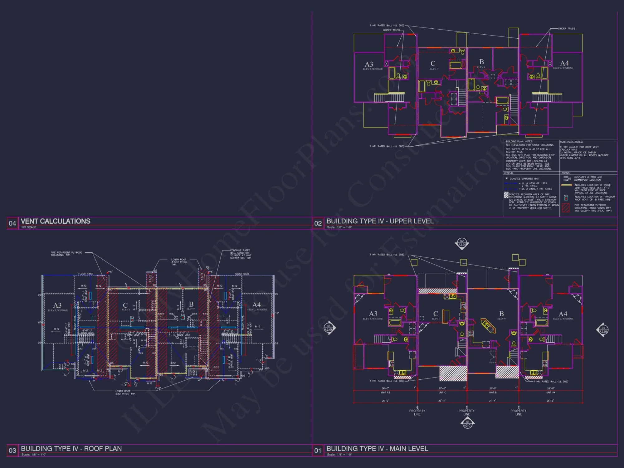
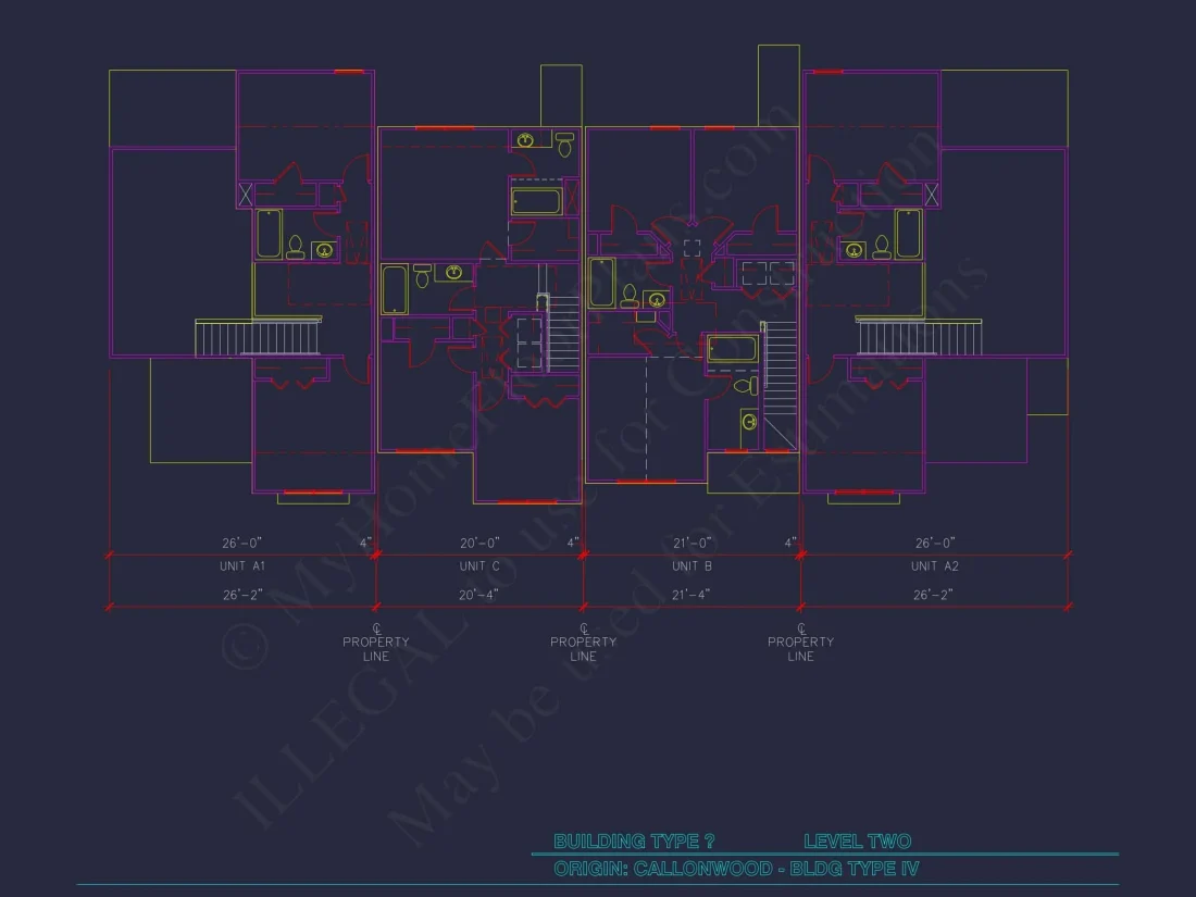
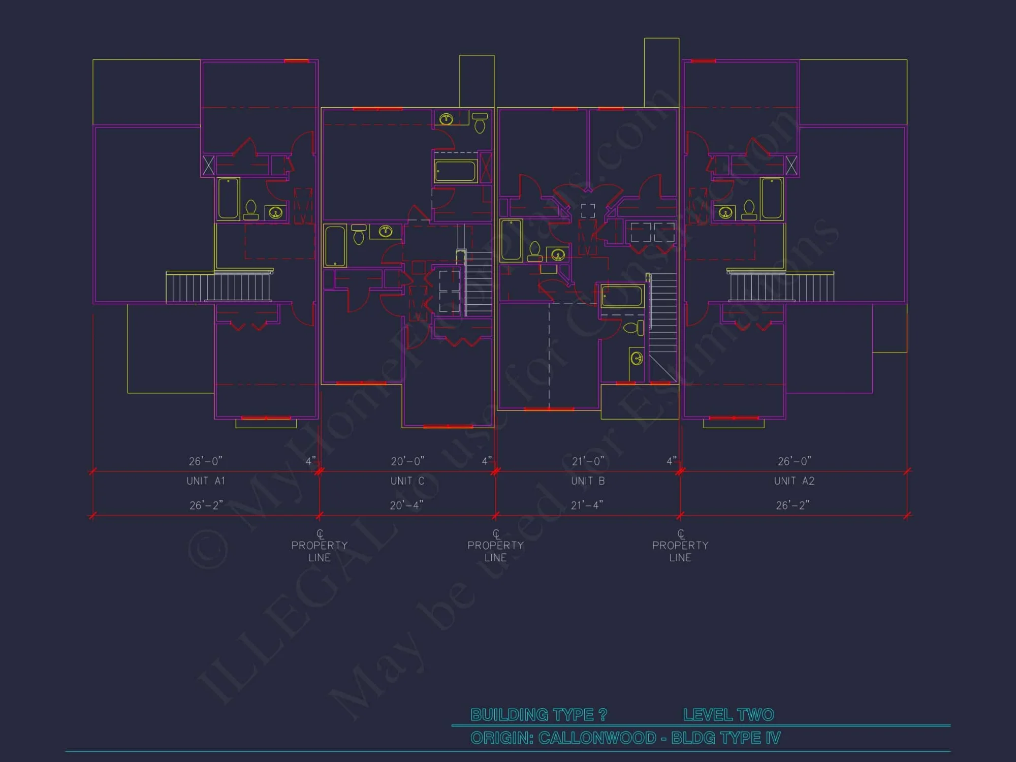
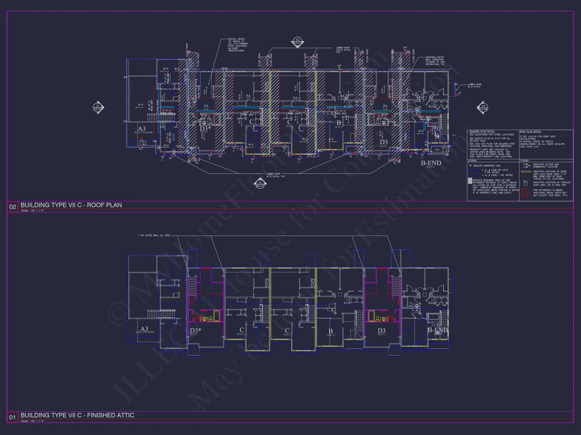
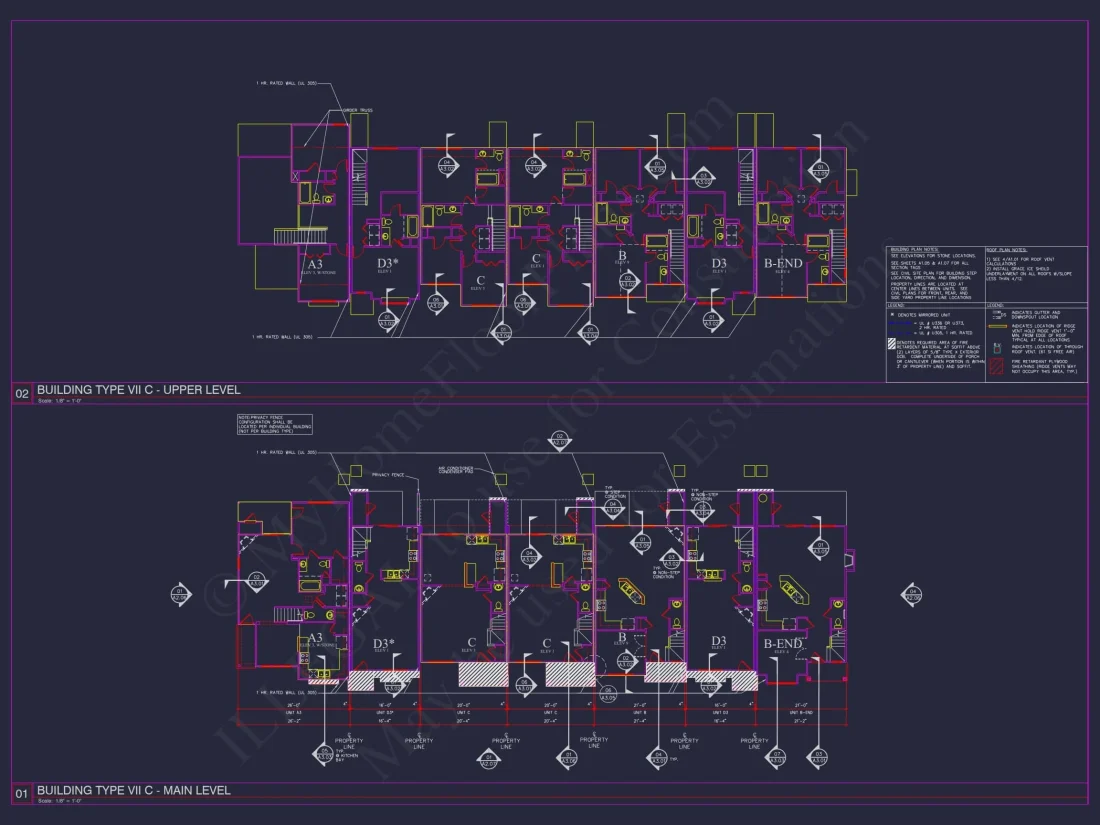
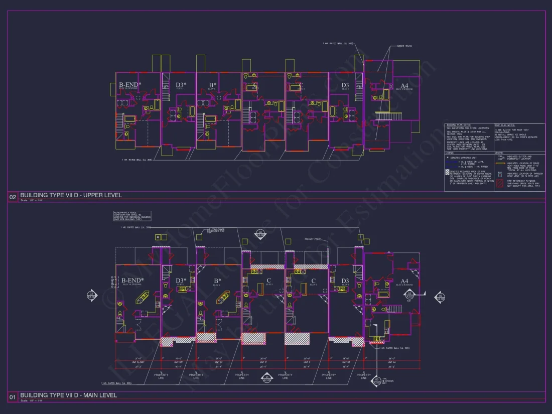
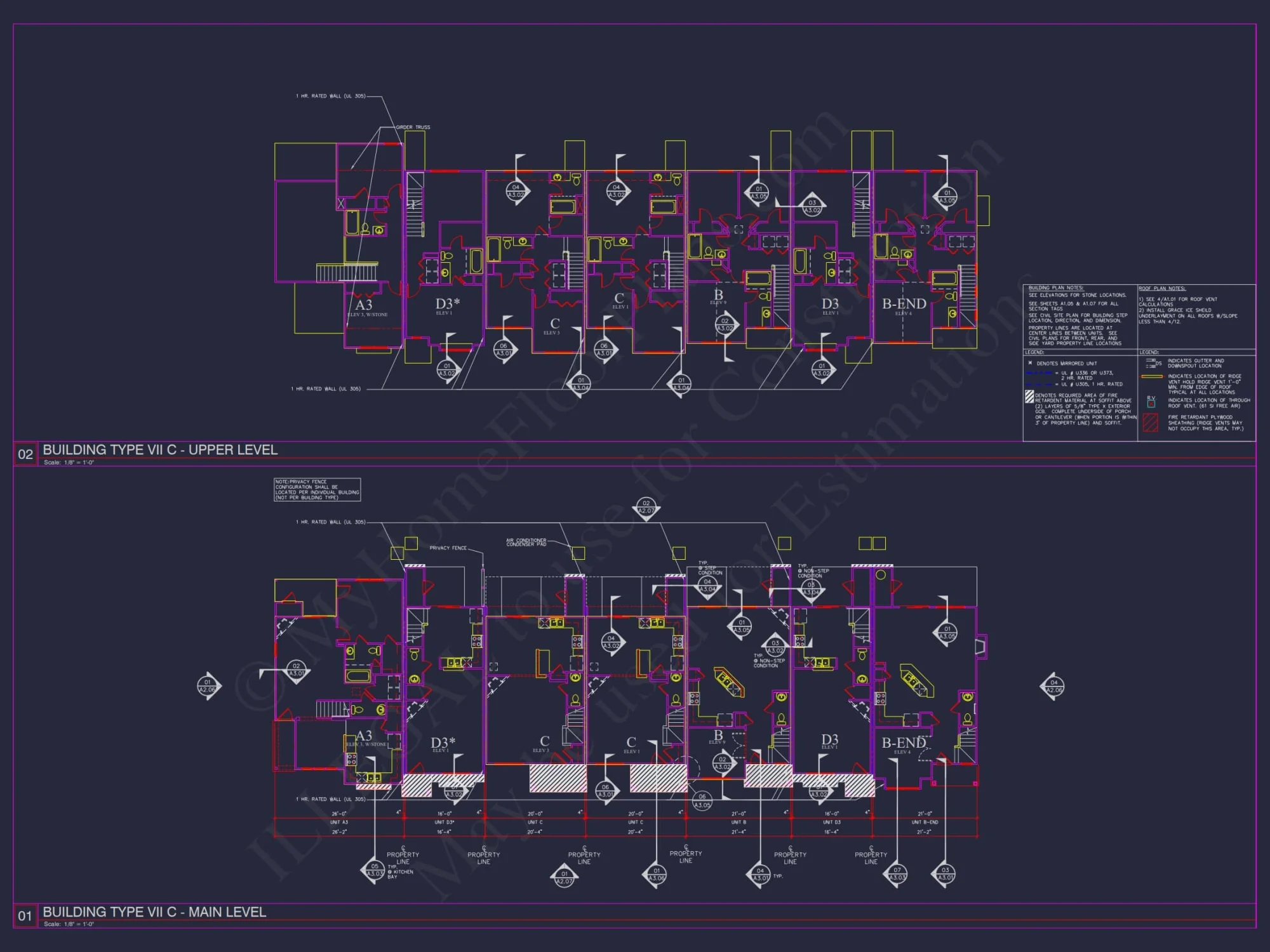
Charming 2-Story 6-Unit Townhome Plan with Craftsman Style & Efficient Layout
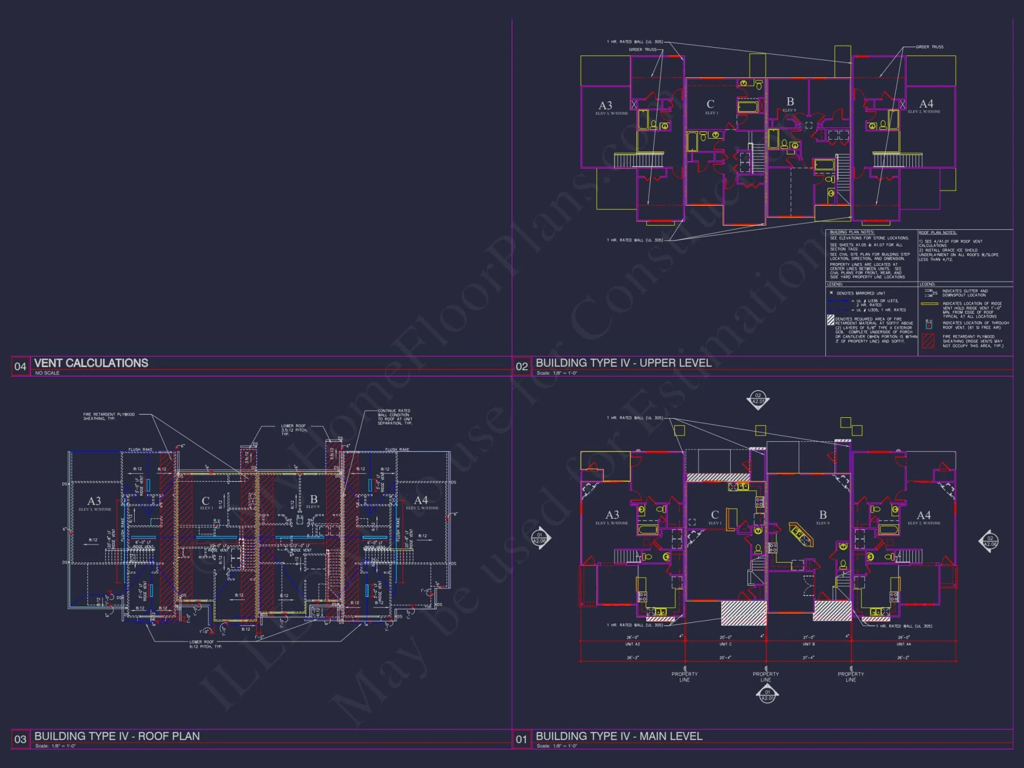
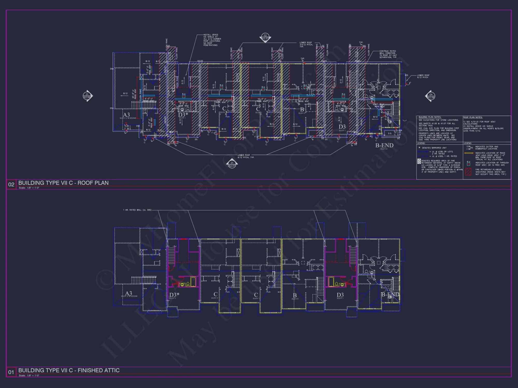
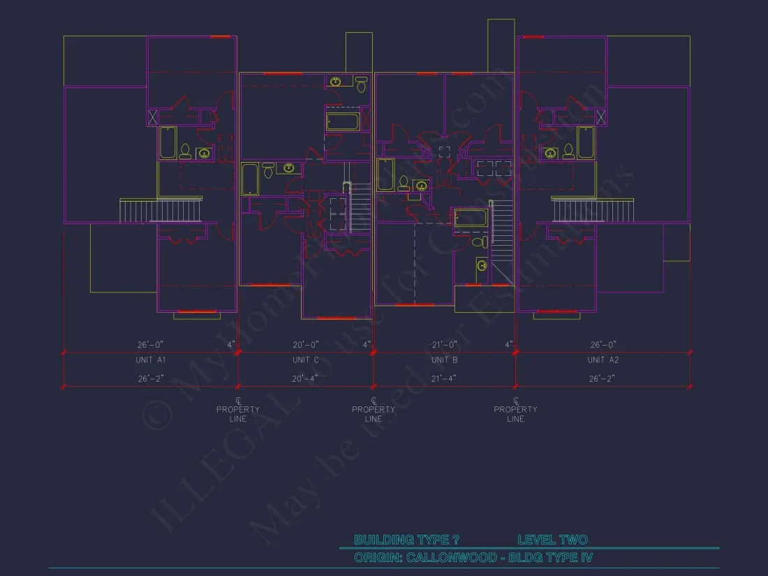
Explore this thoughtfully designed 2-story townhome plan with 1,466 heated sq. ft. per unit, 3 bedrooms, vaulted ceilings, and CAD blueprints—perfect for compact lots and modern developments.
This Traditional Craftsman townhome plan offers the ideal combination of smart multi-unit design and timeless curb appeal. With six units in one structure, it’s perfect for developers, investors, or homeowners building income-generating properties.
Key Features of the Townhome Plan
Living Areas – Heated & Unheated (Per Unit)
- Heated area: 1,466 sq. ft. across two stories per unit.
- Unheated extras: Covered front and rear porches, individual 2-car garages.
Bedrooms & Bathrooms
- Each unit includes 3 bedrooms, all located on the upper level for privacy.
- 2 full bathrooms per unit, featuring a Jack-and-Jill setup for shared convenience.
Interior Highlights
- Vaulted ceilings in living areas provide a bright and spacious feel.
- Open-concept design connects the kitchen, dining, and family room. View more open floor plans.
- Walk-in pantry and center island in the kitchen for function and flow.
- Defined foyer entry for a polished and welcoming arrival space.
Garage & Storage Details
- Garage Bays: 2-car attached garage per unit with front entry.
- Garage Type: Each unit includes a private, attached garage.
- Storage: Generous closets, walk-in pantry, and optional attic space.
Outdoor Living Features
- Covered front and rear porches for every unit—ideal for relaxing or entertaining.
- Stone and siding exteriors give the entire townhome a unified, timeless look.
Architectural Style: Traditional Craftsman
This design brings together classic Craftsman detailing with the functionality of multi-unit housing. Ideal for investors and homeowners seeking charm, efficiency, and value. Learn more about the Craftsman style or see its inspiration on ArchDaily.
Bonus Features
- Jack-and-Jill bathroom adds efficient circulation for upstairs bedrooms.
- Private entrances and garages for each unit.
- Perfect for rental developments, multi-family use, or investment projects.
Included Benefits with Every Plan
- CAD + PDF Files: Fully editable and printable construction drawings.
- Unlimited Build License: Use the plan as many times as needed—with no extra charge.
- Free Foundation Changes: Choose slab, crawlspace, or basement based on your site.
- Structural Engineering Included: Professionally stamped and ready for code compliance.
- Lower Modification Costs: Get customized changes at up to 50% less than competitors.
- View Before You Buy: Preview every sheet before purchase.
Similar Collections You Might Love
- Townhome Floor Plans
- Traditional House Plans
- Narrow Lot House Plans
- Plans with Kitchen Islands
- Covered Porch House Plans
Frequently Asked Questions
Is this plan designed as a multi-unit property? Yes—this is a 6-unit townhome with each unit featuring its own garage, entry, and private layout.
Can I build just a few of the units? Yes, the modular design allows you to build all 6 or just a subset depending on your project size.
Are CAD files included for each unit? Absolutely. You’ll receive CAD and PDF plans for the full 6-unit structure.
Can I modify the exterior or layout? Yes! Our team offers fast and affordable customization options. Contact us for a quote.
Is this plan suited for tight lots? Yes. The narrow unit width and attached garage setup are ideal for urban infill and compact development zones.
Start Building Your Investment Today
Want to build this 6-unit townhome or customize it for your site? Reach out at support@myhomefloorplans.com or send us a message.
Bring your multi-family vision to life with a flexible, ready-to-build plan that’s crafted for success.
Original price was: $2,070.56.$1,134.99Current price is: $1,134.99.
999 in stock
* Please verify all details with the actual plan, as the plan takes precedence over the information shown below.
| Width | 26'-0" |
|---|---|
| Depth | 41'-0" |
| Htd SF | |
| Bedrooms | |
| Bathrooms | |
| # of Floors | |
| # Garage Bays | |
| Architectural Styles | |
| Indoor Features | Bedrooms on the Second Floor, Fireplace, Foyer, Open Floor Plan |
| Outdoor Features | |
| Bed and Bath Features | Bedrooms on Second Floor, Jack and Jill Bathroom, Walk-in Closet |
| Kitchen Features | |
| Garage Features | |
| Ceiling Features | |
| Structure Type | |
| Exterior Material |
No reviews yet.
Affordable | Bedrooms on the Second Floor | Colonial | Covered Front Porch | Covered Rear Porches | Designer Favorite | Fireplaces | Foyer | Front Entry | Jack and Jill | Kitchen Island | Open Floor Plan Designs | Second Floor Bedroom | Small | Starter Home | Traditional Craftsman | Vaulted Ceiling | Walk-in Closet | Walk-in Pantry
SHILOH APARTMENT PLAN – Charming 2-Story House Plan with CAD Designs & Detailed Blueprint
- BOTH a PDF and CAD file (sent to the email provided/a copy of the downloadable files will be in your account here)
- PDF – Easily printable at any local print shop
- CAD Files – Delivered in AutoCAD format. Required for structural engineering and very helpful for modifications.
- Structural Engineering – Included with every plan unless not shown in the product images. Very helpful and reduces engineering time dramatically for any state. *All plans must be approved by engineer licensed in state of build*
Disclaimer
Verify dimensions, square footage, and description against product images before purchase. Currently, most attributes were extracted with AI and have not been manually reviewed.
My Home Floor Plans, Inc. does not assume liability for any deviations in the plans. All information must be confirmed by your contractor prior to construction. Dimensions govern over scale.


































































