10-1755 HOUSE PLAN – Traditional 2-Story House Plan with 3 Beds & Garage | Blueprints & CAD Designs
This charming 2-story house plan offers 2286 sq ft of heated living space, 3 bedrooms, a 2-car garage, and traditional design elements. Explore blueprints, CAD files, & floor plans.
Traditional 2-Story House Plan with 3 Beds, Garage & Classic Design
Explore this beautiful two-story house plan with 2,286 heated sq. ft., a traditional layout, 3 bedrooms, side-entry garage, and detailed CAD blueprints.
This traditional house plan offers a perfect mix of timeless charm and modern convenience. Designed with family living in mind, it provides functional zones, stylish accents, and all the essentials for your dream home.
Key Features of the Home Plan
Living Areas – Heated & Unheated
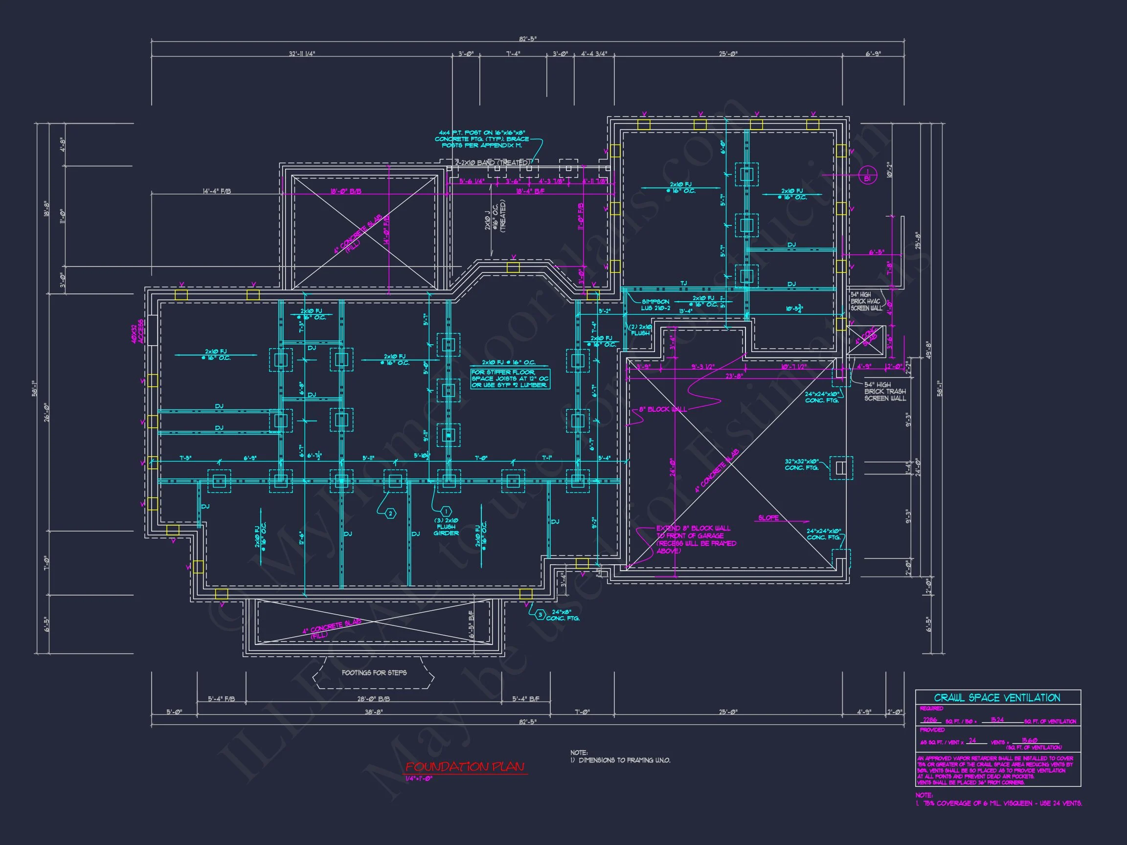
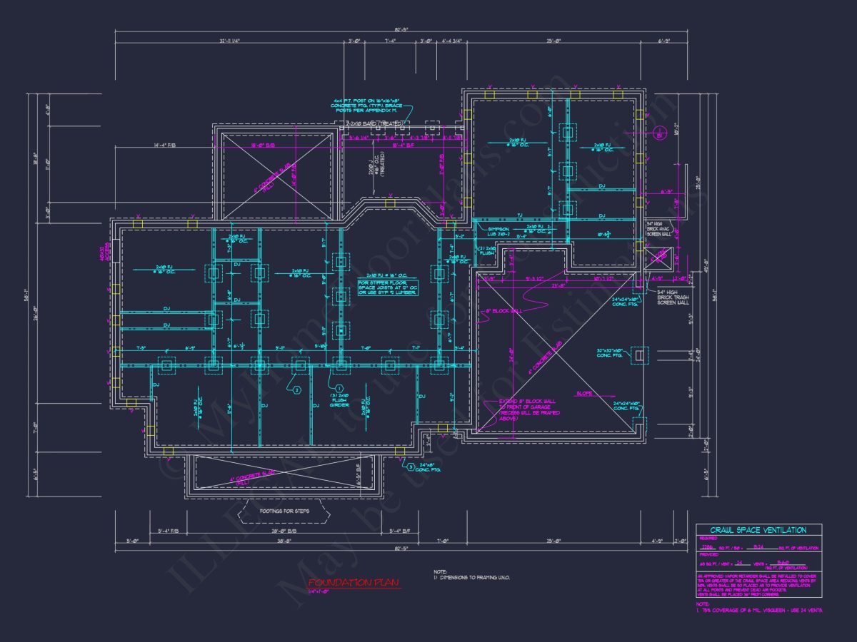
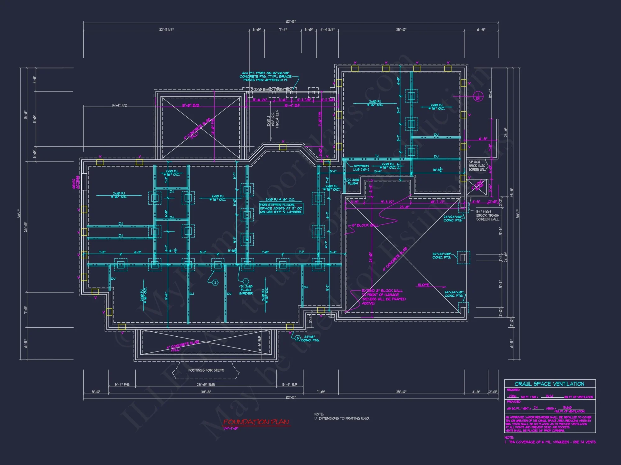
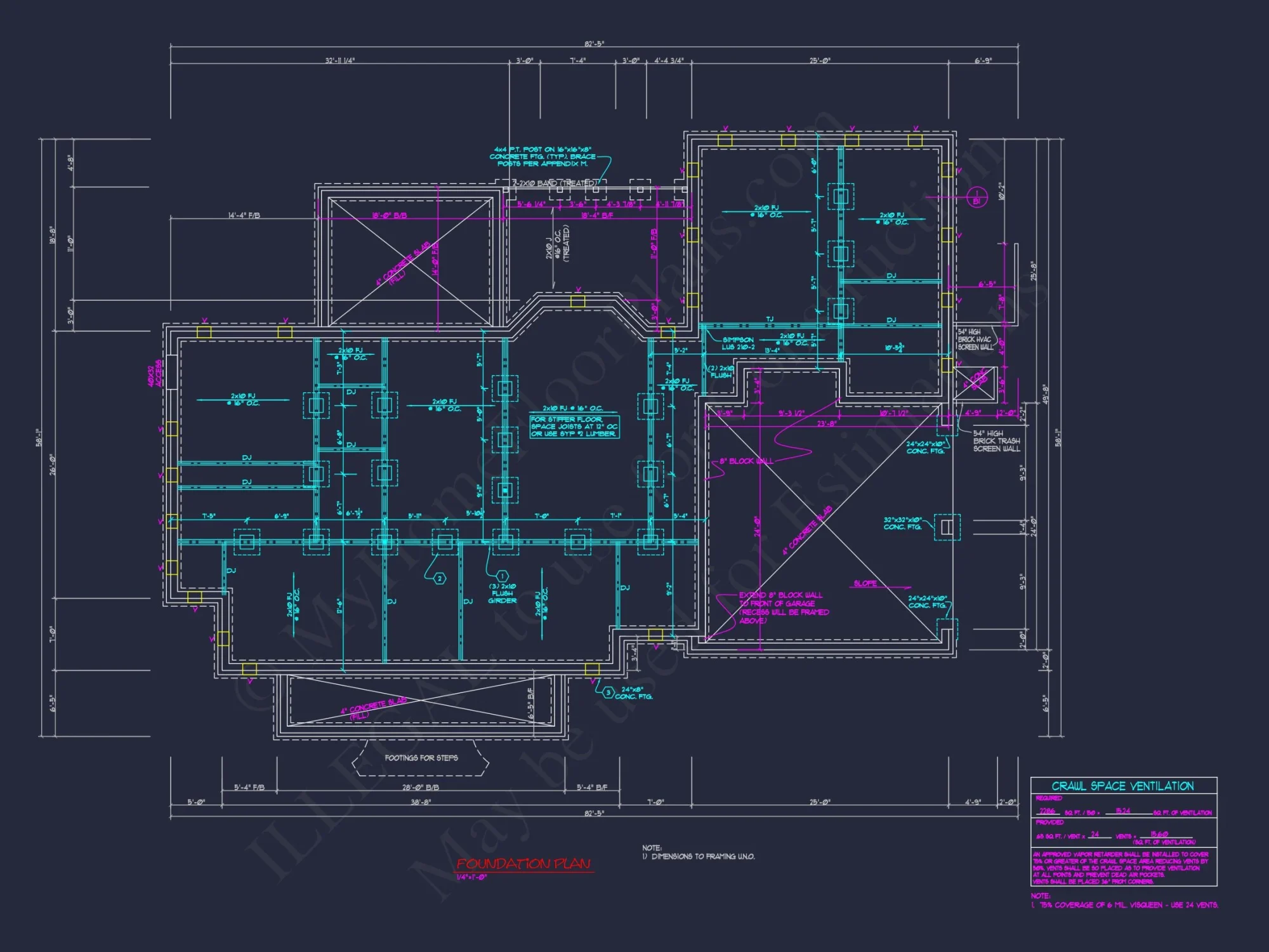
- Heated area: 2,286 sq. ft. over two stories.
- Unheated extras: Covered front porch, screened-in porch, uncovered deck, and attached garage.
Bedrooms & Bathrooms
- 3 spacious bedrooms, ideal for families or guests.
- 2.5 bathrooms with functional layouts for privacy and accessibility.
Interior Highlights
- Open floor plan connects the kitchen, breakfast nook, and great room. Explore open floor layouts.
- Kitchen with island and cozy breakfast nook for casual meals.
- Formal dining room for special occasions and family gatherings.
- Fireplace in the great room adds warmth and charm. See fireplace home designs.
- Office/study space offers a quiet place for remote work or reading.
- Recreational room on the second floor ideal for hobbies or a media setup.
- Walk-in closets provide generous storage in each bedroom.
Garage & Storage Details
- Garage Bays: 2-car garage with convenient side-entry access.
- Garage Type: Attached.
- Storage: Ample space with potential for mudroom cubbies or attic storage.
Outdoor Living Features
- Covered front porch creates a welcoming entry.
- Screened rear porch for outdoor dining or bug-free relaxation.
- Uncovered deck for sunny afternoons or evening lounging.
- Brick and siding exterior enhances the classic curb appeal.
Architectural Style: Traditional
This design blends brick, siding, and shingles for a timeless look that suits any neighborhood. It’s ideal for families seeking elegance with efficient space planning. Learn more about the Traditional House Plan collection or explore related inspirations on ArchDaily.
Bonus Features
- Dedicated study perfect for working from home or tutoring sessions.
- Recreational room upstairs for added flexibility and fun.
- Flexible elevations—choose from four exterior style options.
Included Benefits with Every Plan
- CAD + PDF Files: Editable and printable—ready for your contractor or builder.
- Unlimited Build License: Build multiple times without added fees.
- Free Foundation Changes: Choose between slab, crawlspace, or basement options.
- Structural Engineering Included: All plans stamped and code-compliant.
- Lower Modification Costs: Save up to 50% versus competitors.
- View Before You Buy: Preview every sheet online.
Similar Collections You Might Love
- Traditional Craftsman House Plans
- House Plans with Recreation Room
- Plans with Home Office Spaces
- Covered Back Porch Plans
- Narrow Lot House Plans
Frequently Asked Questions
Can I build this house multiple times? Yes! Every plan includes an unlimited-build license.
What file formats are included? You’ll receive editable CAD files and ready-to-print PDFs.
Are modifications allowed? Definitely. We offer fast, affordable changes. Get a quote.
Is structural engineering part of the plan? Yes, it’s already included with all purchases.
Can I preview everything before I buy? Absolutely. See all sheets online before purchase.
Start Building Your Dream Home Today
Have questions or want to customize your design? Reach out to our friendly team at support@myhomefloorplans.com or contact us here.
Your dream house starts with a plan that fits your lifestyle—start customizing today!
Original price was: $2,470.56.$1,254.99Current price is: $1,254.99.
999 in stock
* Please verify all details with the actual plan, as the plan takes precedence over the information shown below.
| Width | 76'-8" |
|---|---|
| Depth | 58'-1" |
| Htd SF | |
| Unhtd SF | |
| Bedrooms | |
| Bathrooms | |
| # of Floors | |
| # Garage Bays | |
| Architectural Styles | |
| Indoor Features | Attic, Downstairs Laundry Room, Fireplace, Foyer, Great Room, Office/Study, Recreational Room |
| Outdoor Features | |
| Bed and Bath Features | Bedrooms on First Floor, Bedrooms on Second Floor, Owner's Suite on First Floor, Walk-in Closet |
| Kitchen Features | |
| Garage Features | |
| Ceiling Features | |
| Structure Type | |
| Exterior Material |
Carolyn Hernandez – March 30, 2024
City reviewers called it one of the most thorough stock plans theyd ever processedapproval moved fast.
Attics | Bedrooms on First and Second Floors | Breakfast Nook | Colonial | Covered Front Porch | Downstairs Laundry Room | Fireplaces | Fireplaces | First-Floor Bedrooms | Foyer | Great Room | Kitchen Island | Medium | Office/Study Designs | Owner’s Suite on the First Floor | Recreational Room | Screened Porches | Second Floor Bedroom | Side Entry Garage | Traditional | Uncovered Deck | Vaulted Ceiling | Walk-in Closet
10-1755 HOUSE PLAN – Traditional 2-Story House Plan with 3 Beds & Garage | Blueprints & CAD Designs
- BOTH a PDF and CAD file (sent to the email provided/a copy of the downloadable files will be in your account here)
- PDF – Easily printable at any local print shop
- CAD Files – Delivered in AutoCAD format. Required for structural engineering and very helpful for modifications.
- Structural Engineering – Included with every plan unless not shown in the product images. Very helpful and reduces engineering time dramatically for any state. *All plans must be approved by engineer licensed in state of build*
Disclaimer
Verify dimensions, square footage, and description against product images before purchase. Currently, most attributes were extracted with AI and have not been manually reviewed.
My Home Floor Plans, Inc. does not assume liability for any deviations in the plans. All information must be confirmed by your contractor prior to construction. Dimensions govern over scale.





















