13-1719 HOUSE PLAN – Custom House Plan with 4 Beds, 3 Baths, CAD Designs, & More
Explore this custom house plan with 4 bedrooms, 3 bathrooms, detailed blueprints, and CAD designs. Includes a spacious layout, screened porch, and modern architecture.
Custom House Plan with 4 Bedrooms, 3 Bathrooms, and CAD Blueprints
Explore this beautiful custom house layout featuring 4 bedrooms, 3 baths, and 2-story modern Craftsman design with CAD files, screened porch, and open concept.
This Craftsman-style house plan offers a perfect mix of comfort and functionality. Designed for modern living, it delivers timeless charm and smart space planning.
Key Features of the Home Plan
Living Areas – Heated & Unheated
- Heated area: Approx. 3,000 sq. ft. over two levels.
- Unheated extras: Screened porch, 2-car garage, and covered patio.
Bedrooms & Bathrooms
- 4 total bedrooms including a spacious Owner Suite with walk-in closet and spa-style bath.
- 3 full bathrooms, including a Jack and Jill bath upstairs for added convenience.
Interior Highlights
- Vaulted ceilings create openness and elegance throughout the main floor.
- Open floor plan connects the kitchen, breakfast nook, and family room. View open layouts.
- Kitchen island and walk-in pantry make this a chef’s dream. See more designs with kitchen islands.
- Bonus room upstairs can be used for recreation, work, or guest space.
- Fireplace with custom cabinetry adds warmth and visual appeal. Explore fireplace layouts.
- Upstairs laundry for added family convenience.
Outdoor Living Features
- Screened porch and open patio extend your living space outdoors.
- Covered front porch adds classic curb appeal and a welcoming entry.
- Fenced backyard space perfect for privacy and relaxation.
Architectural Style: Traditional Craftsman
This design blends timeless materials and thoughtful details—perfect for families who value character and efficiency in one package.
Included Benefits with Every Plan
- CAD + PDF Files: Easily editable, printable, and ready to build.
- Unlimited Build License: Build once—or 100 times—with no extra fees.
- Free Foundation Changes: Swap between slab, crawlspace, or basement.
- Structural Engineering Included: Code-compliant and professionally stamped.
- Lower Modification Costs: Up to 50% less than competitors.
- View Before You Buy: See every sheet in advance.
Similar Collections You Might Love
- Traditional Craftsman House Plans
- Plans with Screened Porches
- House Plans with Bonus Rooms
- Plans with Main-Level Owner Suites
- Covered Back Porch Plans
Frequently Asked Questions
What’s included with this house plan? All plans come with editable CAD files, printable PDFs, unlimited-build rights, structural engineering, and free foundation changes.
Can I customize the layout? Yes! We offer fast and affordable modifications. Get a quote here.
Is this plan good for families? Absolutely! With 4 bedrooms and flexible space, it’s ideal for growing families or multigenerational living.
Can I preview the blueprints? Yes. Preview every sheet before you buy.
Does it support remote work? The bonus room and adaptable dining/office make it perfect for home-based professionals.
Learn More About the Craftsman Style
Explore the origins and beauty of this style in detail with this guide from ArchDaily.
Start Building Your Dream Home Today
Have questions or want to personalize your plan? Contact our expert team at support@myhomefloorplans.com or fill out our form.
Your future house starts with a great plan—customize it and build with confidence!
Original price was: $2,870.56.$1,454.99Current price is: $1,454.99.
999 in stock
* Please verify all details with the actual plan, as the plan takes precedence over the information shown below.
| Width | 38'-0" |
|---|---|
| Depth | 56'-4" |
| Unhtd SF | |
| Bedrooms | |
| Bathrooms | |
| # of Floors | |
| # Garage Bays | |
| Architectural Styles | |
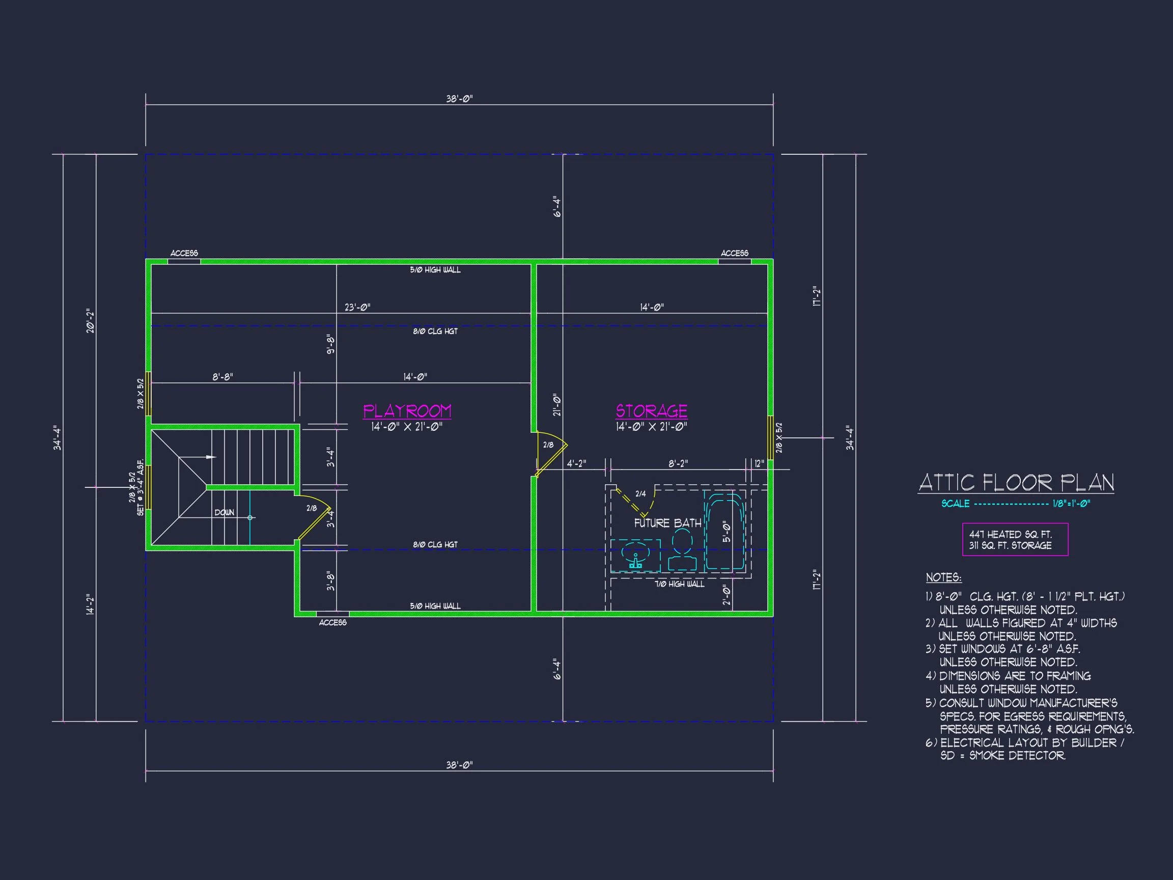
| Indoor Features | Attic, Basement, Bonus Room, Family Room, Fireplace, Mudroom, Recreational Room, Upstairs Laundry Room |
| Outdoor Features | |
| Bed and Bath Features | Bedrooms on Second Floor, Jack and Jill Bathroom, Walk-in Closet |
| Kitchen Features | |
| Garage Features | |
| Ceiling Features | |
| Structure Type | |
| Condition | New |
| Exterior Material | |
| Htd SF |
No reviews yet.
9 FT+ Ceilings | Attics | Basement Garage | Bonus Rooms | Breakfast Nook | Builder Favorites | Covered Deck | Covered Front Porch | Covered Patio | Craftsman | Designer Favorite | Family Room | Fireplaces | Home Plans with Mudrooms | Jack and Jill | Kitchen Island | Medium | Porte Cochere | Recreational Room | Screened Porches | Second Floor Bedroom | Side Entry Garage | Small | Upstairs Laundry Room | Vaulted Ceiling | Walk-in Closet | Walk-in Pantry
13-1719 HOUSE PLAN – Custom House Plan with 4 Beds, 3 Baths, CAD Designs, & More
- BOTH a PDF and CAD file (sent to the email provided/a copy of the downloadable files will be in your account here)
- PDF – Easily printable at any local print shop
- CAD Files – Delivered in AutoCAD format. Required for structural engineering and very helpful for modifications.
- Structural Engineering – Included with every plan unless not shown in the product images. Very helpful and reduces engineering time dramatically for any state. *All plans must be approved by engineer licensed in state of build*
Disclaimer
Verify dimensions, square footage, and description against product images before purchase. Currently, most attributes were extracted with AI and have not been manually reviewed.
My Home Floor Plans, Inc. does not assume liability for any deviations in the plans. All information must be confirmed by your contractor prior to construction. Dimensions govern over scale.










































