Plan 19-1447 – Aster Bluff Homestead | New American – 4-Bed, 0.5-Bath, 2,960 SF
New American and Traditional Craftsman house plan with board and batten and siding exterior • 3 bed • 2 bath • 2,100 SF. Covered porch, open living layout, attached garage. Includes CAD+PDF + unlimited build license.
Original price was: $2,270.56.$1,454.99Current price is: $1,454.99.
999 in stock
* Please verify all details with the actual plan, as the plan takes precedence over the information shown below.
| Width | 61'-8" |
|---|---|
| Depth | 56'-4" |
| Htd SF | |
| Unhtd SF | |
| Bedrooms | |
| Bathrooms | |
| # of Floors | |
| # Garage Bays | |
| Architectural Styles | |
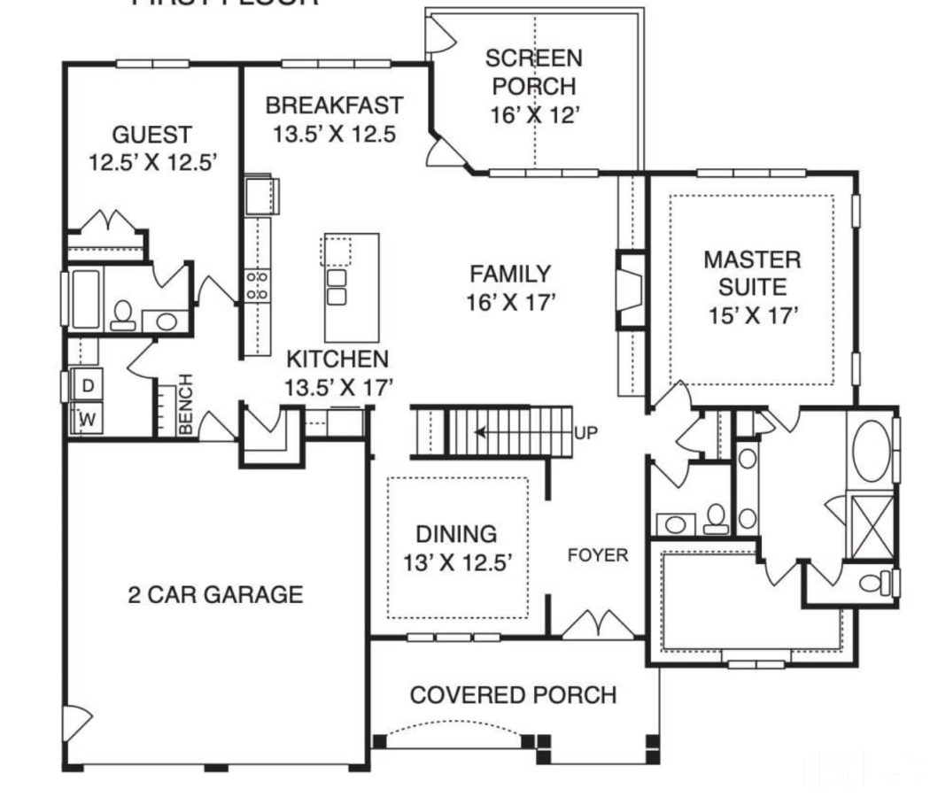
| Indoor Features | Open Floor Plan, Foyer, Great Room, Family Room, Fireplace, Bonus Room, Downstairs Laundry Room, Basement |
| Outdoor Features | Covered Front Porch, Covered Rear Porch, Screened Porch, Patio |
| Bed and Bath Features | Bedrooms on First Floor, Bedrooms on Second Floor, Owner's Suite on First Floor, Split Bedrooms, Jack and Jill Bathroom, Walk-in Closet |
| Kitchen Features | |
| Garage Features | |
| Condition | New |
| Ceiling Features | |
| Structure Type | |
| Exterior Material |
Trevor Meza – August 15, 2024
Full transparency throughout process!
9 FT+ Ceilings | After Build Photos | Basement Garage | Bedrooms on First and Second Floors | Bonus Rooms | Breakfast Nook | Covered Front Porch | Covered Patio | Covered Rear Porches | Craftsman | Family Room | Fireplaces | Foyer | Front Entry | Great Room | Jack and Jill | Kitchen Island | Large House Plans | Open Floor Plan Designs | Owner’s Suite on the First Floor | Screened Porches | Second Floor Bedroom | Split Bedroom | Traditional | Walk-in Closet
New American House Plan with Craftsman Details and Timeless Curb Appeal
This thoughtfully designed New American house plan blends the clean, balanced proportions of Modern Traditional architecture with the warmth and handcrafted detailing of a Traditional Craftsman home. Offering approximately 2,100 square feet of heated living space, this design is ideal for homeowners seeking a comfortable, functional layout wrapped in a classic exterior that feels both current and enduring. The elevation presents a strong yet welcoming presence, making it a perfect fit for suburban neighborhoods, rural settings, or growing family communities.
Architectural Style Overview
The New American style is known for its ability to merge multiple classic influences into a cohesive, livable design. In this home, that approach is clearly visible. The symmetrical massing, gabled rooflines, and well-proportioned windows reflect Modern Traditional principles, while the material choices and detailing lean into Craftsman character. This combination results in a home that feels familiar and timeless, yet fresh enough for modern lifestyles.
Exterior Design & Materials
The exterior showcases a carefully layered material palette that enhances depth, texture, and long-term durability. The primary wall surfaces are finished with board and batten siding, adding vertical emphasis and visual interest, especially within the front-facing gables. This is complemented by horizontal lap siding on the main body of the home, creating a balanced contrast that is both elegant and approachable.
At the base of the home and porch columns, stone accents ground the elevation and add a sense of permanence. The covered front porch, supported by substantial columns, serves as both an architectural focal point and a functional outdoor living space. A richly detailed front door and evenly spaced windows complete the façade, reinforcing the Craftsman influence while maintaining a clean New American profile.
Inviting Front Porch & Outdoor Living
The covered front porch is a defining feature of this design. Deep enough for seating and seasonal décor, it creates a welcoming transition between the outdoors and the interior. This space encourages neighborly interaction, quiet mornings, and relaxed evenings—hallmarks of both New American and Craftsman living.
Depending on site orientation and customization, the home can also incorporate a rear patio or covered outdoor space, extending the living area and supporting indoor–outdoor flow for entertaining and family gatherings.
Interior Layout & Open Living Concept
Inside, the floor plan emphasizes openness and natural light. The main living areas are designed around an open-concept layout that connects the kitchen, dining space, and family room. This arrangement supports everyday living while also making the home ideal for entertaining.
The family room acts as the heart of the home, with ample wall space for furniture, media, or built-in cabinetry. Large windows bring in daylight and provide views of the surrounding landscape, reinforcing a sense of comfort and connection to the outdoors.
Kitchen Design & Functionality
The kitchen is positioned to maintain visual connection with the main living spaces while offering excellent functionality. A central island provides additional prep space and casual seating, making it a natural gathering point for family and guests. Generous cabinetry, efficient appliance placement, and optional pantry storage ensure the kitchen is as practical as it is inviting.
Adjacent to the kitchen, the dining area offers flexibility for everyday meals or larger gatherings, with clear circulation paths that enhance ease of movement throughout the home.
Bedrooms & Private Retreats
This home plan includes three well-appointed bedrooms, thoughtfully arranged to balance privacy and accessibility. The owner’s suite serves as a private retreat, featuring generous dimensions, large windows, and a walk-in closet. The attached bathroom can be customized to include double vanities, a walk-in shower, or a tub-shower combination depending on homeowner preference.
The secondary bedrooms are ideal for children, guests, or home office use. Located near a shared full bathroom, they provide comfort and flexibility while maintaining separation from the primary suite.
Garage, Storage & Everyday Practicality
An attached garage enhances daily convenience and contributes to the home’s overall curb appeal. Direct interior access allows for easy entry during inclement weather, while additional storage areas help keep the home organized. Linen closets, bedroom closets, and optional attic storage ensure there is space for seasonal items and long-term needs.
Energy Efficiency & Build Quality
This New American Craftsman home is designed with modern construction standards in mind. Energy-efficient windows, well-insulated exterior walls, and thoughtful roof design help support long-term comfort and reduced operating costs. Builders can further enhance efficiency through upgraded HVAC systems, insulation packages, and sustainable material choices.
Why This New American Craftsman Plan Stands Out
- Balanced blend of New American and Traditional Craftsman styling
- Board and batten siding paired with stone accents for timeless curb appeal
- Open-concept living spaces ideal for modern lifestyles
- Covered front porch that enhances both function and character
- Flexible layout suitable for families, empty nesters, or professionals
What’s Included with This House Plan
- Complete CAD + PDF plan files
- Unlimited build license for repeat construction
- Multiple foundation options including slab, crawlspace, or basement
- Customization and modification services available
Design Inspiration & Industry Insight
For additional architectural inspiration and insight into how modern builders interpret traditional styles, resources like Fine Homebuilding offer valuable perspectives on materials, detailing, and construction best practices.
Build a Home That Feels Timeless and Livable
This New American Craftsman house plan offers the perfect balance of tradition and modern comfort. Its carefully considered exterior materials, flexible interior layout, and enduring architectural style make it a smart choice for today’s homeowners and tomorrow’s resale value. Designed to grow with your lifestyle, this plan provides a strong foundation for a home that feels welcoming, functional, and truly timeless.
Plan 19-1447 – Aster Bluff Homestead | New American – 4-Bed, 0.5-Bath, 2,960 SF
- BOTH a PDF and CAD file (sent to the email provided/a copy of the downloadable files will be in your account here)
- PDF – Easily printable at any local print shop
- CAD Files – Delivered in AutoCAD format. Required for structural engineering and very helpful for modifications.
- Structural Engineering – Included with every plan unless not shown in the product images. Very helpful and reduces engineering time dramatically for any state. *All plans must be approved by engineer licensed in state of build*
Disclaimer
Verify dimensions, square footage, and description against product images before purchase. Currently, most attributes were extracted with AI and have not been manually reviewed.
My Home Floor Plans, Inc. does not assume liability for any deviations in the plans. All information must be confirmed by your contractor prior to construction. Dimensions govern over scale.


