19-1889 HOUSE PLAN – House Designs: 1.5-Story Craftsman Blueprint with Open Floor Plan
This beautifully crafted 1.5-story house blueprint features a spacious layout with 3 bedrooms, bonus room, angled garage, and timeless architectural designs.
1.5-Story Craftsman House Plan with Bonus Room & Open Floor Layout
This elegant 1.5-story home design features 3 bedrooms, an angled garage, bonus room, and a beautifully crafted open-concept blueprint—includes CAD files, structural engineering, and more.
This Craftsman-style house plan offers a perfect blend of comfort, modern functionality, and architectural charm. Designed for everyday living and entertaining, this layout boasts high-impact details and a cozy yet spacious feel.
Key Features of the Home Plan
Living Areas – Heated & Unheated
- Heated area: Approximately 2,600 sq. ft. across 1.5 stories.
- Unheated extras: Angled 2-car garage, covered front and rear porches, and optional basement or crawlspace.
Bedrooms & Bathrooms
- 3 well-sized bedrooms, including a luxurious first-floor Owner Suite with a walk-in closet and private bath.
- 3 full bathrooms, thoughtfully placed to ensure privacy and convenience.
Interior Highlights
- Open floor plan design enhances flow between kitchen, dining, and living areas. Explore more open layouts.
- Kitchen with center island and walk-in pantry—ideal for cooking, hosting, and family meals. See island kitchen plans.
- Great room with beamed ceiling and fireplace adds warmth and architectural detail. Browse fireplace designs.
- Bonus room upstairs perfect for an office, game room, or guest retreat.
- Mudroom and foyer ensure easy daily routines and organization. View mudroom layouts.
Garage & Storage Details
- Garage Bays: 2-car garage with an angled side entry for enhanced curb appeal.
- Garage Type: Attached and angled for efficient access and aesthetics.
- Storage: Walk-in pantry, mudroom cubbies, and attic access.
Outdoor Living Features
- Covered front porch provides a welcoming entry and space for seating.
- Covered rear porch ideal for shaded relaxation and entertaining.
- Brick, shake, and siding materials offer durable beauty and traditional Craftsman styling.
Architectural Style: Traditional Craftsman
This design highlights classic Craftsman architecture with a modern layout. It’s perfect for families and builders who want a warm aesthetic combined with practical living spaces. Learn more about the Craftsman style or explore its heritage on ArchDaily.
Bonus Features
- Flexible upstairs bonus room adaptable for media, play, or quiet retreat.
- Multiple porches for outdoor comfort and visual charm.
- Foyer and mudroom deliver function and style at entry points.
Included Benefits with Every Plan
- CAD + PDF Files: Instantly editable and printable for easy contractor use.
- Unlimited Build License: Build your dream house as many times as you want—no additional charges.
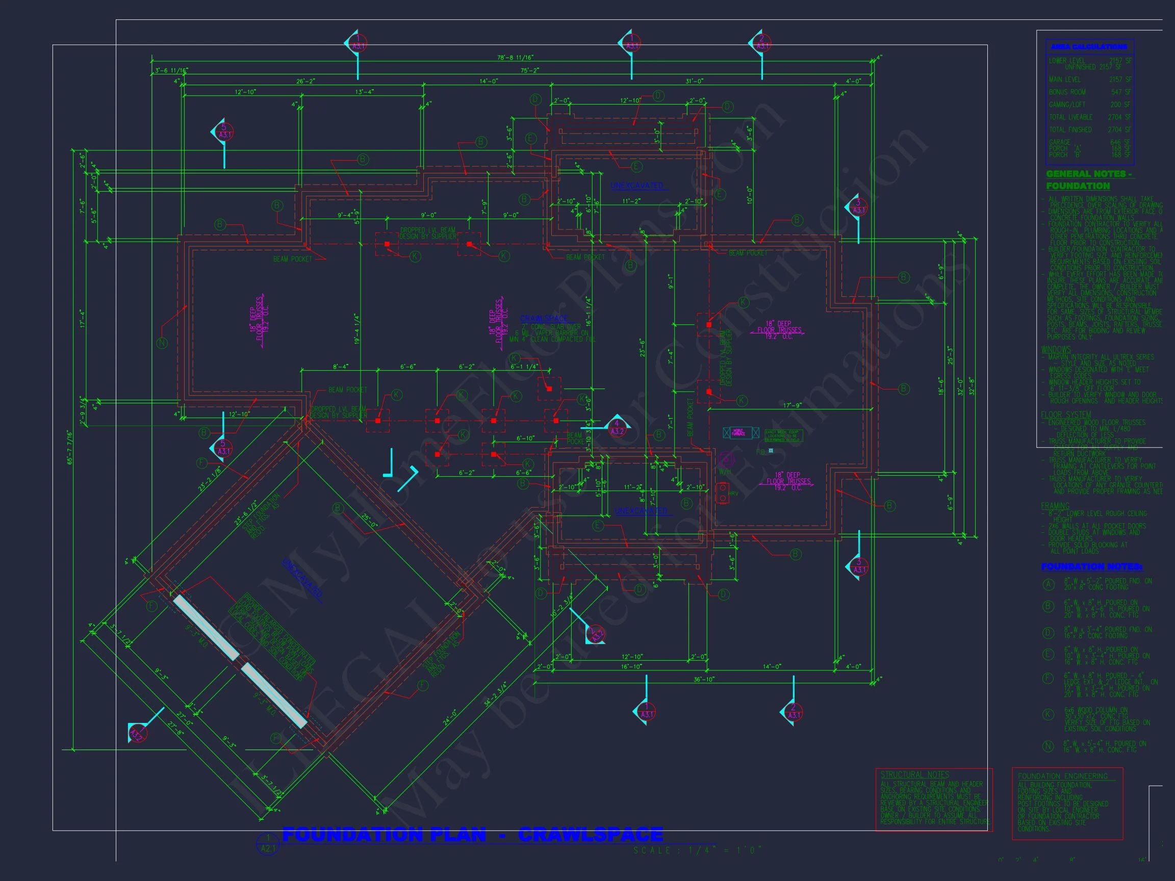
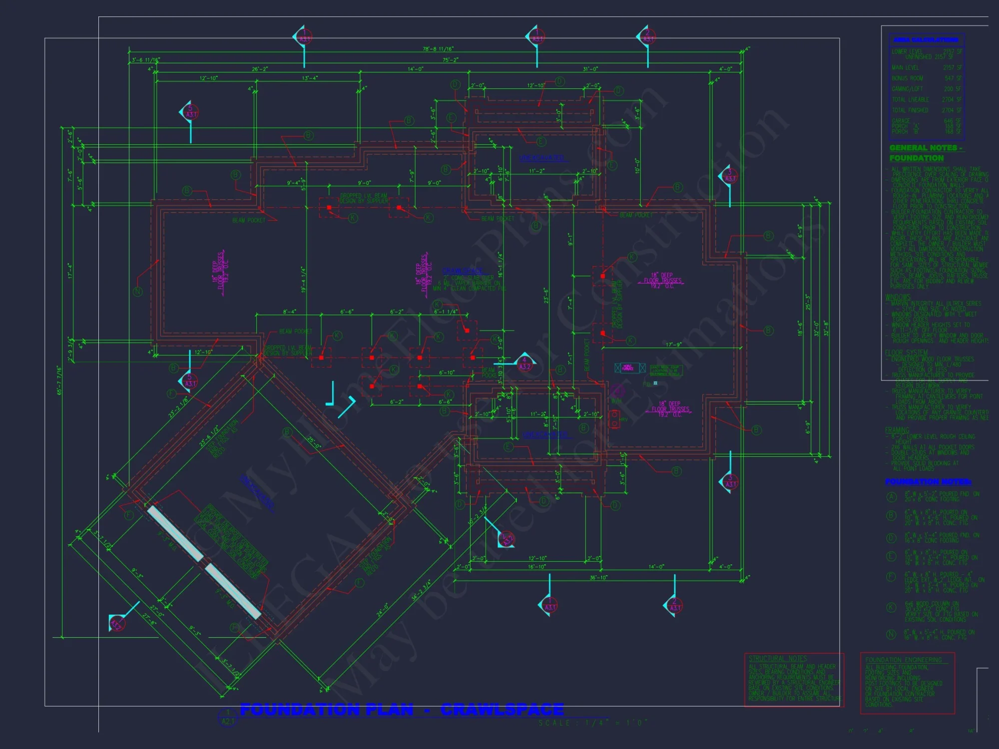
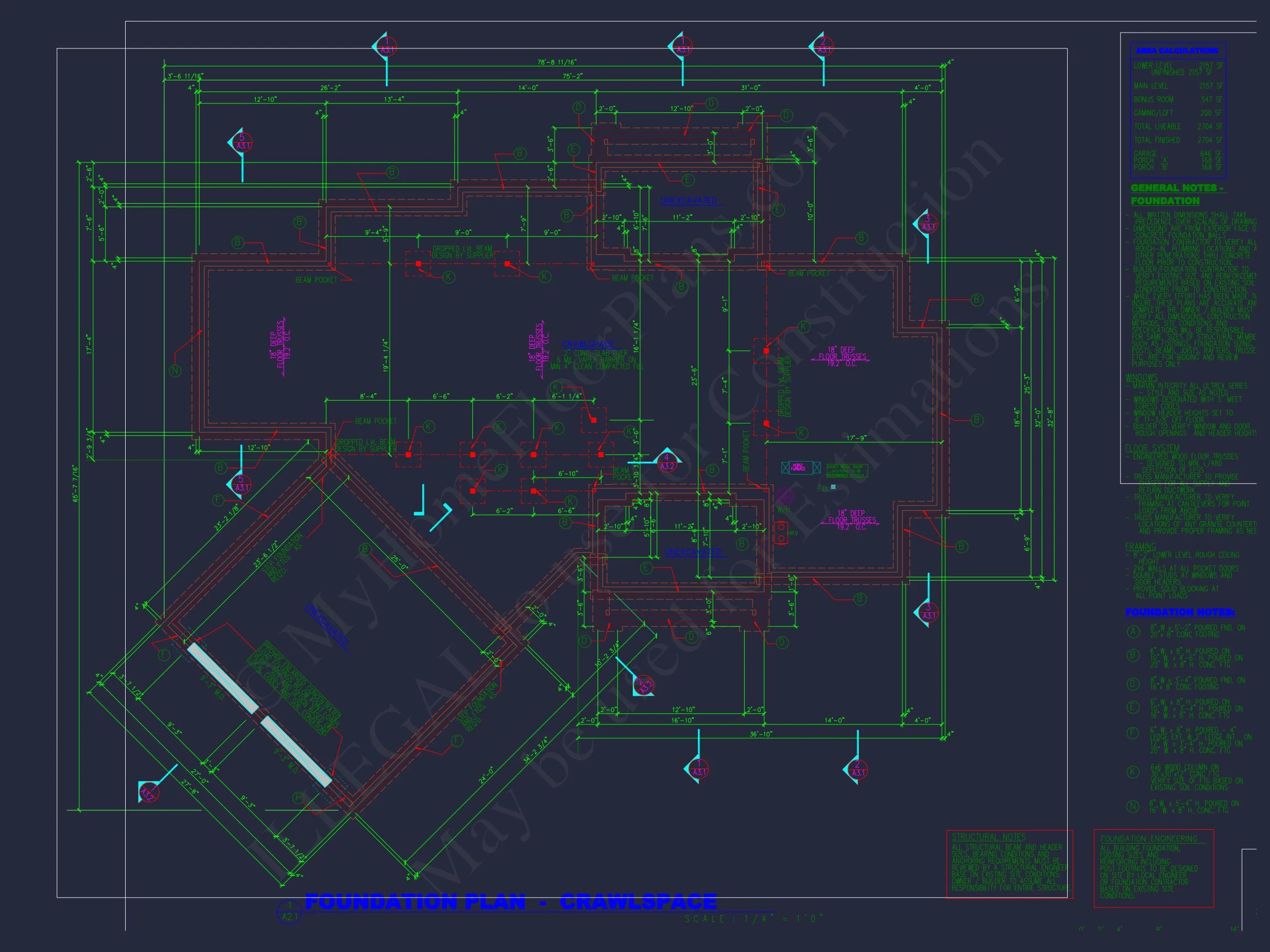
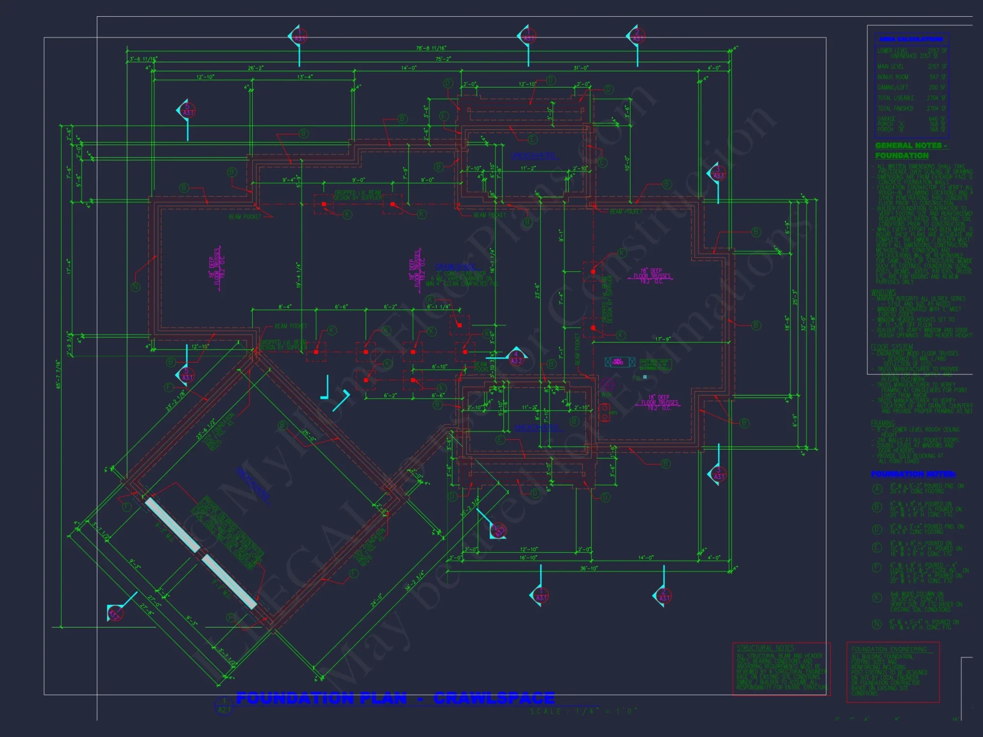
- Free Foundation Changes: Easily switch to a basement, crawlspace, or slab. See your options here.
- Structural Engineering Included: Professionally stamped, code-compliant designs.
- Lower Modification Costs: Enjoy savings of up to 50% over competitors. Learn about modifications.
- View Before You Buy: See every sheet upfront before making your decision.
Similar Collections You Might Love
- Traditional House Plans
- Narrow Lot House Plans
- House Plans with Bonus Rooms
- Covered Porch House Plans
- First Floor Owner Suite Plans
Frequently Asked Questions
What’s included with this house plan? Every purchase includes editable CAD files, high-resolution PDFs, an unlimited build license, structural engineering, and free foundation adjustments.
Can I customize this design? Yes! We offer low-cost customizations—get a free quote from our design team.
Is this home suited for families? Absolutely. With 3 bedrooms, bonus room, and open gathering spaces, it’s great for daily life and entertaining.
Does it work for narrow lots? Yes, the angled garage and smart use of space make it adaptable for tighter property lines.
Can I see the blueprints before buying? Yes! Preview every detail before purchase.
Start Building Your Dream Home Today
Ready to make this Craftsman plan your own? Reach out to our expert team at support@myhomefloorplans.com or contact us online.
With editable CAD files, full blueprint previews, and engineering included—you’re one step closer to building with confidence.
Original price was: $2,446.56.$1,386.39Current price is: $1,386.39.
999 in stock
* Please verify all details with the actual plan, as the plan takes precedence over the information shown below.
| Width | 78'-9" |
|---|---|
| Depth | 65'-7" |
| Htd SF | |
| Unhtd SF | |
| Bedrooms | |
| Bathrooms | |
| # of Floors | |
| # Garage Bays | |
| Architectural Styles | |
| Indoor Features | Basement, Bonus Room, Fireplace, Foyer, Great Room, Mudroom, Open Floor Plan |
| Outdoor Features | |
| Bed and Bath Features | Bedrooms on First Floor, Owner's Suite on First Floor, Walk-in Closet |
| Kitchen Features | |
| Garage Features | |
| Condition | New |
| Ceiling Features | |
| Structure Type | |
| Exterior Material |
No reviews yet.
9 FT+ Ceilings | Basement Garage | Beamed | Bedrooms on First and Second Floors | Bonus Rooms | Covered Front Porch | Covered Rear Porches | Craftsman | Fireplaces | Foyer | Great Room | Home Plans with Mudrooms | Kitchen Island | Open Floor Plan Designs | Owner’s Suite on the First Floor | Side Entry Garage | Sloped Lot | Small | Traditional Craftsman | Traditional Farmhouse | Walk-in Closet | Walk-in Pantry
19-1889 HOUSE PLAN – House Designs: 1.5-Story Craftsman Blueprint with Open Floor Plan
- BOTH a PDF and CAD file (sent to the email provided/a copy of the downloadable files will be in your account here)
- PDF – Easily printable at any local print shop
- CAD Files – Delivered in AutoCAD format. Required for structural engineering and very helpful for modifications.
- Structural Engineering – Included with every plan unless not shown in the product images. Very helpful and reduces engineering time dramatically for any state. *All plans must be approved by engineer licensed in state of build*
Disclaimer
Verify dimensions, square footage, and description against product images before purchase. Currently, most attributes were extracted with AI and have not been manually reviewed.
My Home Floor Plans, Inc. does not assume liability for any deviations in the plans. All information must be confirmed by your contractor prior to construction. Dimensions govern over scale.


















