7-2325 HOUSE PLAN – Elegant 2-Story House Plan with 6 Elevations and Open Floor Plans
Discover this elegant 2-story Craftsman house plan boasting 6 elevation options, open floor plans, a spacious 2-car garage, and luxurious architectural designs.
Elegant 2-Story House Plan with 6 Elevations and Open Layout
Discover this stunning 2,699 sq. ft. Craftsman-style house with 2 stories, 6 elevations, 2-car garage, and open-concept living—includes CAD files and more.
This Craftsman-style house plan offers a perfect mix of comfort and functionality. Designed for modern living, it delivers timeless charm and smart space planning.
Key Features of the Home Plan
Living Areas – Heated & Unheated
- Heated area: 2,699 sq. ft. spread over two beautifully designed stories.
- Unheated extras: Covered front porch, rear porch, optional screened porch, and attached garage.
Bedrooms & Bathrooms
- 2 spacious bedrooms including a luxurious first-floor Owner Suite with walk-in closet (WIC).
- 2.5 bathrooms, thoughtfully arranged for convenience and privacy.
Interior Highlights
- Open floor plan creates a seamless flow between family room, kitchen, and dining. View open layouts.
- Kitchen island and walk-in pantry provide ample space for cooking and entertaining. Explore kitchen island designs.
- Family and living rooms offer distinct zones for casual relaxation and formal gatherings.
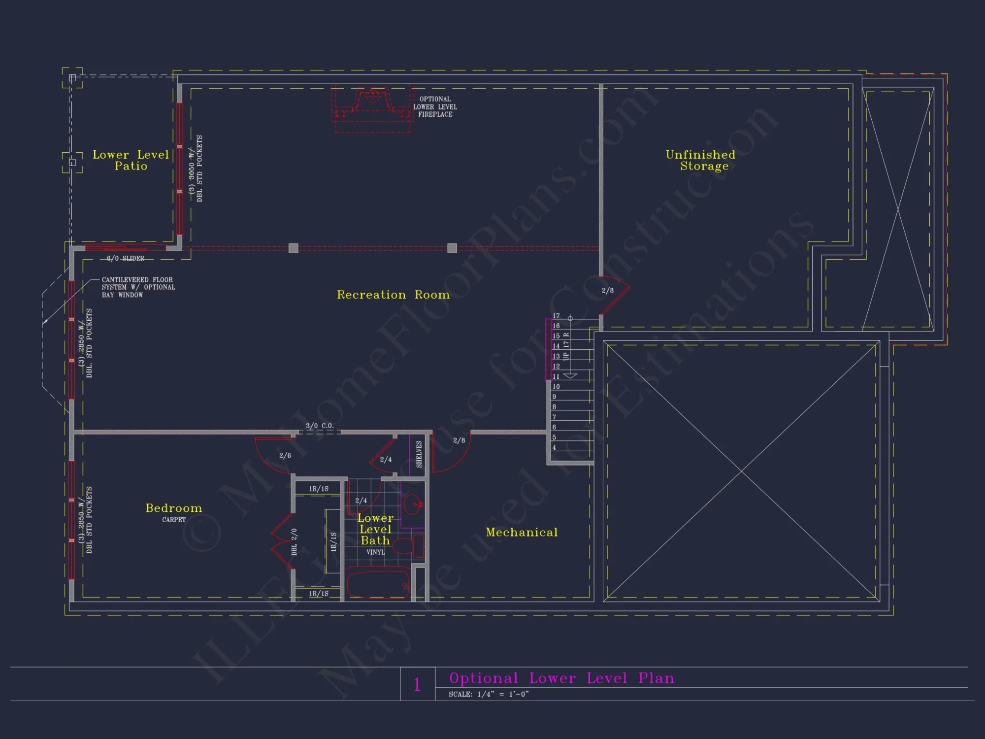
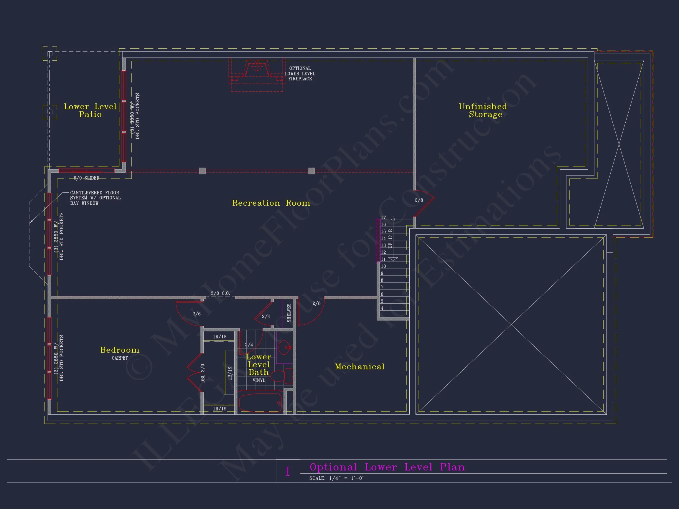
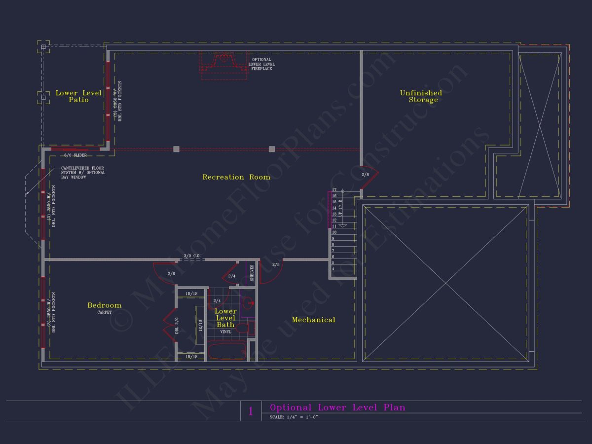
- Optional recreational room—perfect for a home theater, game room, or flex space.
Garage & Storage Details
- Garage Bays: 2-car garage with front entry access.
- Garage Type: Attached and integrated into the main structure.
- Storage: Features spacious walk-in closets, pantry, and optional attic or basement storage.
Outdoor Living Features
- Covered front and rear porches for shaded relaxation and gatherings. See covered porch plans.
- Optional screened-in porch lets you enjoy nature while protected from the elements. Browse screened porch designs.
- Brick and stone exterior elements deliver Craftsman-style curb appeal with lasting durability.
Architectural Style: Traditional Craftsman
This design blends timeless materials and thoughtful details—perfect for families who value character and efficiency in one package. Learn more about the Traditional Craftsman or explore its roots on ArchDaily.
Bonus Features
- 6 distinct elevation styles—tailor the façade to match your location or personal style.
- Optional screened porch and recreational room for even more livable space.
- Energy-efficient foundation options including crawlspace and basement configurations.
Included Benefits with Every Plan
- CAD + PDF Files: Easily editable, printable, and ready to build.
- Unlimited Build License: Build once—or 100 times—with no extra fees.
- Free Foundation Changes: Swap between slab, crawlspace, or basement.
- Structural Engineering Included: Code-compliant and professionally stamped.
- Lower Modification Costs: Up to 50% less than competitors.
- View Before You Buy: See every sheet in advance.
Similar Collections You Might Love
- Traditional House Plans
- Plans with Recreation Rooms
- Plans with First Floor Owner Suites
- Screened-In Porch House Plans
- Covered Porch House Plans
Frequently Asked Questions
Does this plan come with multiple elevations? Yes! It includes 6 customizable elevation options to suit your taste or HOA guidelines.
Can I add a basement to this plan? Absolutely. The design supports crawlspace or basement foundation options at no extra cost.
How many bedrooms does this plan include? This home includes 2 bedrooms, with the Owner Suite on the first floor for convenience.
Is this plan available for narrow lots? Yes, the efficient layout and front-entry garage work well on tighter lots. View more narrow-lot plans.
Can I customize the exterior materials? Definitely! Choose from stone, brick, or siding options to match your style or region.
Start Building Your Dream Home Today
Have questions or want to personalize your plan? Contact our expert team at support@myhomefloorplans.com or fill out our form.
Your future house starts with a great plan—customize it and build with confidence!
Original price was: $2,470.56.$1,254.99Current price is: $1,254.99.
999 in stock
* Please verify all details with the actual plan, as the plan takes precedence over the information shown below.
| Width | 39'-8" |
|---|---|
| Depth | 64'-8" |
| Htd SF | |
| Unhtd SF | |
| Bedrooms | |
| Bathrooms | |
| # of Floors | |
| # Garage Bays | |
| Architectural Styles | |
| Indoor Features | Basement, Dining Room, Downstairs Laundry Room, Family Room, Foyer, Living Room, Open Floor Plan, Recreational Room |
| Outdoor Features | Covered Front Porch, Covered Rear Porch, Patio, Screened Porch |
| Bed and Bath Features | Bedrooms on Second Floor, Owner's Suite on First Floor, Walk-in Closet |
| Kitchen Features | |
| Garage Features | |
| Ceiling Features | |
| Structure Type | |
| Exterior Material |
Hannah Mathis – May 6, 2024
Compact cottage plan still managed walk-in closetsimpressed our realtor.
9 FT+ Ceilings | Affordable | Basement | Basement Garage | Breakfast Nook | Builder Favorites | Covered Front Porch | Covered Patio | Covered Rear Porches | Craftsman | Designer Favorite | Dining Room | Downstairs Laundry Room | Family Room | Foyer | Front Entry | Hall | Kitchen Island | Large House Plans | Living Room | Medium | Open Floor Plan Designs | Owner’s Suite on the First Floor | Patios | Recreational Room | Screened Porches | Second Floor Bedroom | Smooth & Conventional | Traditional | Walk-in Closet | Walk-in Pantry
7-2325 HOUSE PLAN – Elegant 2-Story House Plan with 6 Elevations and Open Floor Plans
- BOTH a PDF and CAD file (sent to the email provided/a copy of the downloadable files will be in your account here)
- PDF – Easily printable at any local print shop
- CAD Files – Delivered in AutoCAD format. Required for structural engineering and very helpful for modifications.
- Structural Engineering – Included with every plan unless not shown in the product images. Very helpful and reduces engineering time dramatically for any state. *All plans must be approved by engineer licensed in state of build*
Disclaimer
Verify dimensions, square footage, and description against product images before purchase. Currently, most attributes were extracted with AI and have not been manually reviewed.
My Home Floor Plans, Inc. does not assume liability for any deviations in the plans. All information must be confirmed by your contractor prior to construction. Dimensions govern over scale.































