14-2170 HOUSE PLAN – House Plan: 2-Story Craftsman Floor Plan with 4 Bedrooms and CAD Designs
Discover this 2-story house plan with 4 bedrooms, 3 baths, a great room, and modern CAD designs. Includes detailed blueprints for architects and designers.
2-Story Craftsman House Plan with 4 Bedrooms & CAD Blueprints
Discover this stunning 2-story Craftsman house plan featuring 2,493 heated sq. ft., 4 bedrooms, an open layout, and detailed CAD blueprints for precision builds.
This Craftsman-style house plan offers a perfect mix of comfort and functionality. Designed for modern living, it delivers timeless charm and smart space planning with seamless room transitions.
Key Features of the Home Plan
Living Areas – Heated & Unheated
- Heated area: 2,493 sq. ft. over two floors.
- Unheated extras: Covered porches, mudroom, and rear deck space.
Bedrooms & Bathrooms
- 4 total bedrooms, including a private Owner Suite on the first floor with en-suite bath and walk-in closet.
- 3 full bathrooms designed for accessibility and comfort across both levels.
Interior Highlights
- Open floor plan connecting the great room, dining, and kitchen. View more open-concept designs.
- Kitchen island for meal prep and casual dining.
- Cozy breakfast nook with natural light for morning meals.
- Great room with vaulted ceilings—ideal for entertaining.
- Foyer and mudroom included for smart everyday organization.
Garage & Storage Details
- Garage Bays: 2-car attached garage.
- Garage Type: Front-entry, ideal for wider lots or suburban areas.
- Storage: Bonus closets and attic-access for seasonal storage.
Outdoor Living Features
- Charming covered front porch for a welcoming entrance.
- Rear covered porch and deck—great for grilling or relaxing outdoors. Browse covered back porch plans.
Architectural Style: Traditional Craftsman
This design blends timeless materials like wood, stone, and siding with thoughtful floor planning—perfect for families who value curb appeal and efficiency. Learn more about the Craftsman house style or explore its roots on ArchDaily.
Bonus Features
- Second-floor overlook with views of the great room and foyer.
- Additional upstairs bedrooms perfect for family or guests.
- Flexible design ideal for growing families or multi-generational living.
Included Benefits with Every Plan
- CAD + PDF Files: Editable and printable formats included.
- Unlimited Build License: Build once—or many times—with no extra fees.
- Free Foundation Changes: Choose between slab, crawlspace, or basement foundations at no cost.
- Structural Engineering Included: Professionally stamped and code-compliant blueprints.
- Lower Modification Costs: Save up to 50% vs. competitors.
- View Before You Buy: Preview every sheet in advance.
Similar Collections You Might Love
- Traditional Craftsman House Plans
- Plans with First Floor Owner Suites
- House Plans with Kitchen Islands
- Covered Porch House Designs
- Open Floor Plan House Designs
Frequently Asked Questions
Does this plan include CAD files? Yes! Every purchase includes editable CAD files plus printable PDFs.
Can I make custom changes to the layout? Absolutely—modifications are fast, affordable, and fully supported. Request a quote here.
Is the Owner’s Suite on the main floor? Yes, it’s designed on the first floor for convenience and privacy.
Are outdoor living areas included? Yes, the plan features both front and rear covered porches and a rear deck.
Can I build this plan more than once? Yes—each plan includes an unlimited-build license for maximum flexibility.
Start Building Your Dream Home Today
Have questions or want to customize this layout? Reach out to our friendly design team at support@myhomefloorplans.com or submit a request.
Your future house starts with a great plan—customize it and build with confidence!
Original price was: $2,470.56.$1,254.99Current price is: $1,254.99.
999 in stock
* Please verify all details with the actual plan, as the plan takes precedence over the information shown below.
| Architectural Styles | |
|---|---|
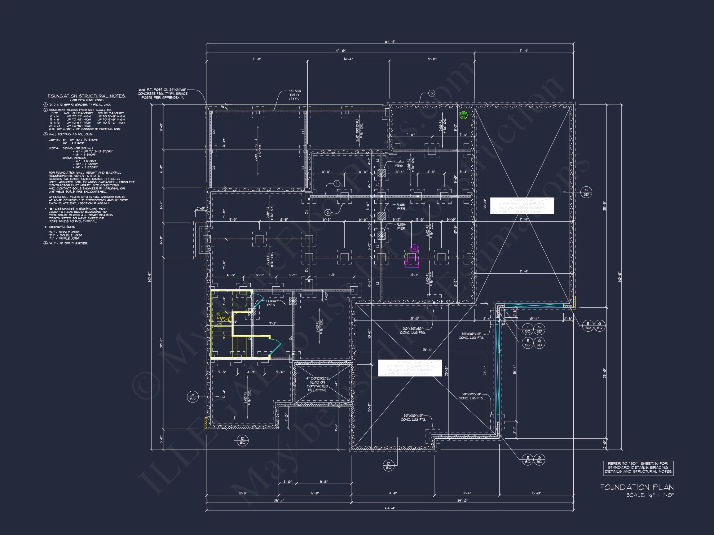
| Width | 64'-4" |
| Depth | 60'-4" |
| Htd SF | |
| Bedrooms | |
| Bathrooms | |
| # of Floors | |
| # Garage Bays | |
| Indoor Features | |
| Outdoor Features | |
| Bed and Bath Features | Bedrooms on Second Floor, Owner's Suite on First Floor, Walk-in Closet |
| Kitchen Features | |
| Condition | New |
| Garage Features | |
| Ceiling Features | |
| Structure Type | |
| Exterior Material |
No reviews yet.
9 FT+ Ceilings | Affordable | Breakfast Nook | Builder Favorites | Covered Front Porch | Covered Rear Porches | Craftsman | Deck | Designer Favorite | Dining Room | Foyer | Front Entry | Great Room | Home Plans with Mudrooms | Kitchen Island | Medium | Modern Craftsman Designs | Open Floor Plan Designs | Oversized Designs | Owner’s Suite on the First Floor | Second Floor Bedroom | Split Bedroom Home Plans | Traditional | Walk-in Closet | Walk-in Pantry
14-2170 HOUSE PLAN – House Plan: 2-Story Craftsman Floor Plan with 4 Bedrooms and CAD Designs
- BOTH a PDF and CAD file (sent to the email provided/a copy of the downloadable files will be in your account here)
- PDF – Easily printable at any local print shop
- CAD Files – Delivered in AutoCAD format. Required for structural engineering and very helpful for modifications.
- Structural Engineering – Included with every plan unless not shown in the product images. Very helpful and reduces engineering time dramatically for any state. *All plans must be approved by engineer licensed in state of build*
Disclaimer
Verify dimensions, square footage, and description against product images before purchase. Currently, most attributes were extracted with AI and have not been manually reviewed.
My Home Floor Plans, Inc. does not assume liability for any deviations in the plans. All information must be confirmed by your contractor prior to construction. Dimensions govern over scale.



















