15-1254 HOUSE PLAN – 2-Story Colonial House Plan: 3-4 BR, 2344 Sq Ft, CAD
Explore this 2344 sq ft, 3-4 bed, 3 bath, 2-story Colonial-style house blueprint. Features a 2-car garage and basement. View our floor plan designs today!
2-Story Colonial House Plan with Timeless Layout & Sunroom
Explore this 2,344 sq ft Colonial-style house plan with 3–4 bedrooms, 3 baths, open floor layout, and classic architecture—includes CAD blueprints and basement.
This Colonial house design offers a perfect mix of heritage charm and modern efficiency. Designed for family living, it provides a flexible layout with standout features like a large laundry room, mudroom, and sunroom.
Key Features of the Home Plan
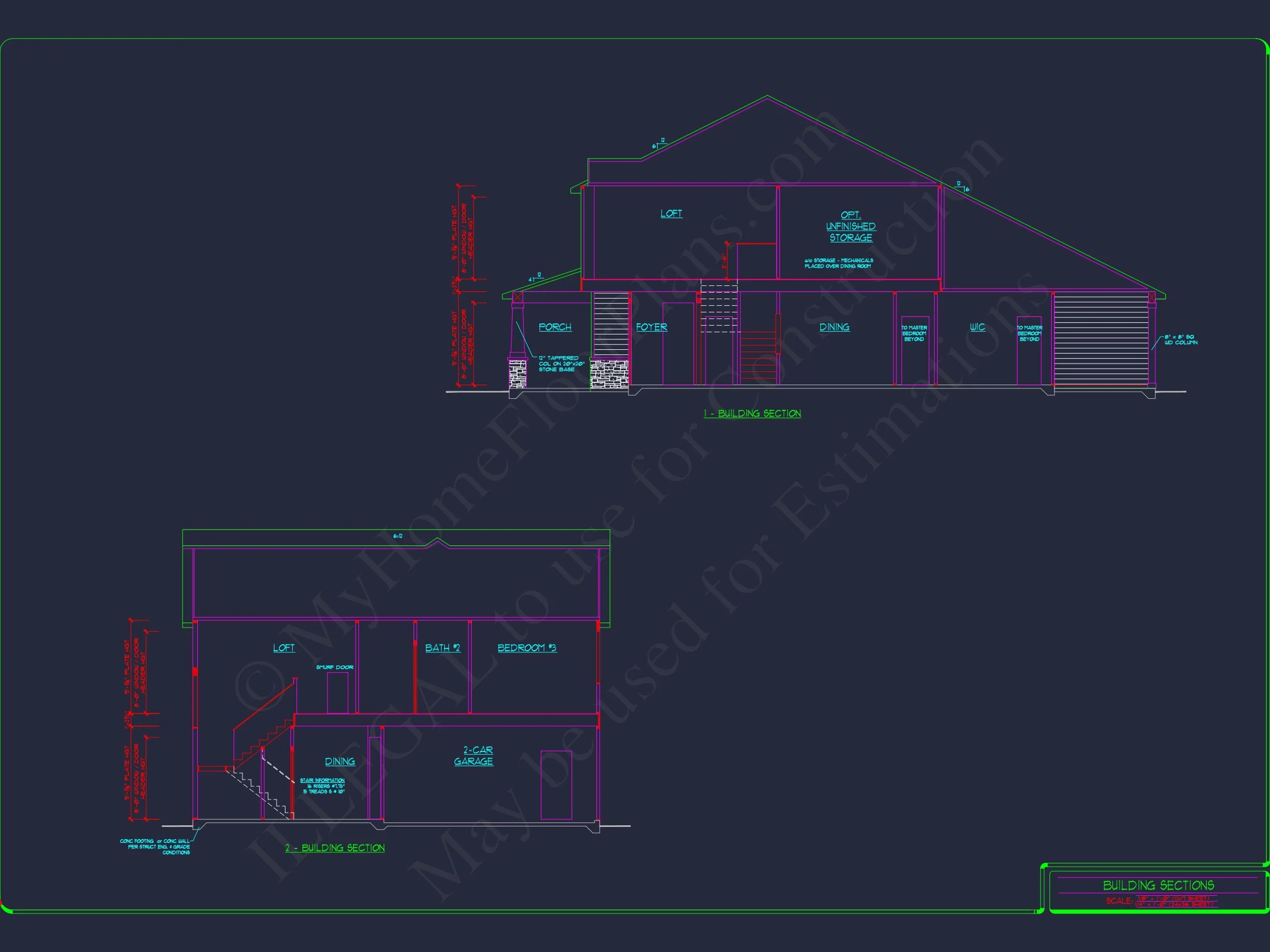
Living Areas – Heated & Unheated
- Heated area: 2,344 sq. ft. over two stories.
- Unheated extras: Covered front porch, rear porch, screened porch, and full basement.
Bedrooms & Bathrooms
- 3 to 4 adaptable bedrooms offering versatile arrangements for growing families.
- 3 full bathrooms providing comfort and privacy across both levels.
Interior Highlights
- Open floor plan for seamless living, dining, and kitchen interaction. Browse open layouts.
- Kitchen island offers casual seating and prep space. See kitchen island plans.
- Walk-in pantry helps keep your kitchen organized and efficient.
- Fireplace adds warmth and visual charm to the family room. Explore plans with fireplaces.
- Sunroom flooded with natural light—ideal for morning coffee or a quiet read.
- Foyer entryway makes a graceful first impression for guests.
- Large laundry room (15′ x 15′) with space for folding, storage, and organization.
Garage & Storage Details
- Garage Bays: 2-car garage.
- Garage Type: Front-entry, attached garage.
- Storage: Dedicated mudroom, walk-in pantry, plus additional basement storage.
Outdoor Living Features
- Covered front porch, screened-in porch, and rear porch for outdoor enjoyment in any weather.
- Traditional exterior materials: board & batten, shake, siding, and stone accents.
Architectural Style: Colonial & Traditional
This plan combines Colonial symmetry and Traditional elegance, creating a warm, inviting exterior that will stand the test of time. Learn more about the Colonial house style or discover its history on ArchDaily.
Bonus Features
- Basement: Provides space for storage, future expansion, or a recreation room.
- Mudroom: Keeps clutter and dirt from entering the main living spaces.
- Flexible 4th bedroom or home office option: Ideal for working from home or multigenerational needs.
Included Benefits with Every Plan
- CAD + PDF Files: Instantly downloadable and editable files.
- Unlimited Build License: Build this plan as many times as you need.
- Foundation Options Free: Choose between slab, crawlspace, or basement at no extra cost.
- Stamped Structural Engineering: Included with every plan for code compliance.
- Lowest Mod Costs: Save up to 50% vs. other sites on plan changes.
- Preview All Sheets: See what’s included before you buy.
Similar Collections You Might Love
- Colonial House Plans
- Traditional House Plans
- Plans with Mudrooms
- Sunroom House Plans
- House Plans with Basements
Frequently Asked Questions
Does this plan come with blueprints? Yes! Every purchase includes editable CAD files, printable PDFs, and full construction sheets.
Can I make changes to this layout? Definitely. Contact us to request customizations—we offer affordable, fast modifications.
Is there room for future expansion? Yes, the full basement is perfect for additional living or recreational space later.
Is this layout family-friendly? Absolutely. With 3–4 bedrooms, open common areas, and lots of storage, it’s great for modern families.
What makes this different from competitors? We include CAD, PDF, unlimited build rights, structural engineering, and previews—all at lower prices than others.
Start Building Your Dream Home Today
Have questions or ready to customize this plan? Email us at support@myhomefloorplans.com or reach out via our contact page.
Let’s make your Colonial dream house a reality—start planning today!
Original price was: $2,470.56.$1,254.99Current price is: $1,254.99.
999 in stock
* Please verify all details with the actual plan, as the plan takes precedence over the information shown below.
| Width | 34'-8" |
|---|---|
| Depth | 63'-0" |
| Htd SF | |
| Unhtd SF | |
| Bedrooms | |
| Bathrooms | |
| # of Floors | |
| # Garage Bays | |
| Architectural Styles | |
| Indoor Features | Basement, Family Room, Fireplace, Foyer, Large Laundry Room, Mudroom, Sunroom |
| Outdoor Features | |
| Bed and Bath Features | Bedrooms on Second Floor, Owner's Suite on First Floor, Walk-in Closet |
| Kitchen Features | |
| Garage Features | |
| Condition | New |
| Ceiling Features | |
| Structure Type | |
| Exterior Material |
Lisa Burgess – August 31, 2024
No CAD surcharge.
10 FT+ Ceilings | 9 FT+ Ceilings | Basement Garage | Colonial | Covered Front Porch | Covered Rear Porches | Family Room | Fireplaces | Foyer | Front Entry | Home Plans with Mudrooms | Kitchen Island | Large Laundry Room | Medium | Owner’s Suite on the First Floor | Screened Porches | Second Floor Bedroom | Sunroom | Traditional | Walk-in Closet | Walk-in Pantry
15-1254 HOUSE PLAN – 2-Story Colonial House Plan: 3-4 BR, 2344 Sq Ft, CAD
- BOTH a PDF and CAD file (sent to the email provided/a copy of the downloadable files will be in your account here)
- PDF – Easily printable at any local print shop
- CAD Files – Delivered in AutoCAD format. Required for structural engineering and very helpful for modifications.
- Structural Engineering – Included with every plan unless not shown in the product images. Very helpful and reduces engineering time dramatically for any state. *All plans must be approved by engineer licensed in state of build*
Disclaimer
Verify dimensions, square footage, and description against product images before purchase. Currently, most attributes were extracted with AI and have not been manually reviewed.
My Home Floor Plans, Inc. does not assume liability for any deviations in the plans. All information must be confirmed by your contractor prior to construction. Dimensions govern over scale.












































































