16-1398 HOUSE PLAN – Traditional Home Plan – 4-Bed, 4-Bath, 3,265 SF
Traditional, Colonial Revival, New American house plan with stone and siding exterior • 4 bed • 4 bath • 3,265 SF. Open floor plan, covered porches, bonus attic. Includes CAD+PDF + unlimited build license.
Elegant Colonial Revival Home Plan with CAD Files and Detailed Blueprints
This two-story Traditional Colonial Revival house plan blends timeless architecture with modern livability—perfect for families and builders seeking sophistication and comfort.
This Traditional Colonial Revival home plan features classic symmetry, durable materials, and versatile interior layouts designed for modern lifestyles. With over 3,265 heated square feet, the plan offers four spacious bedrooms, four bathrooms, and a seamless balance of elegance and function.
Key Features and Design Highlights
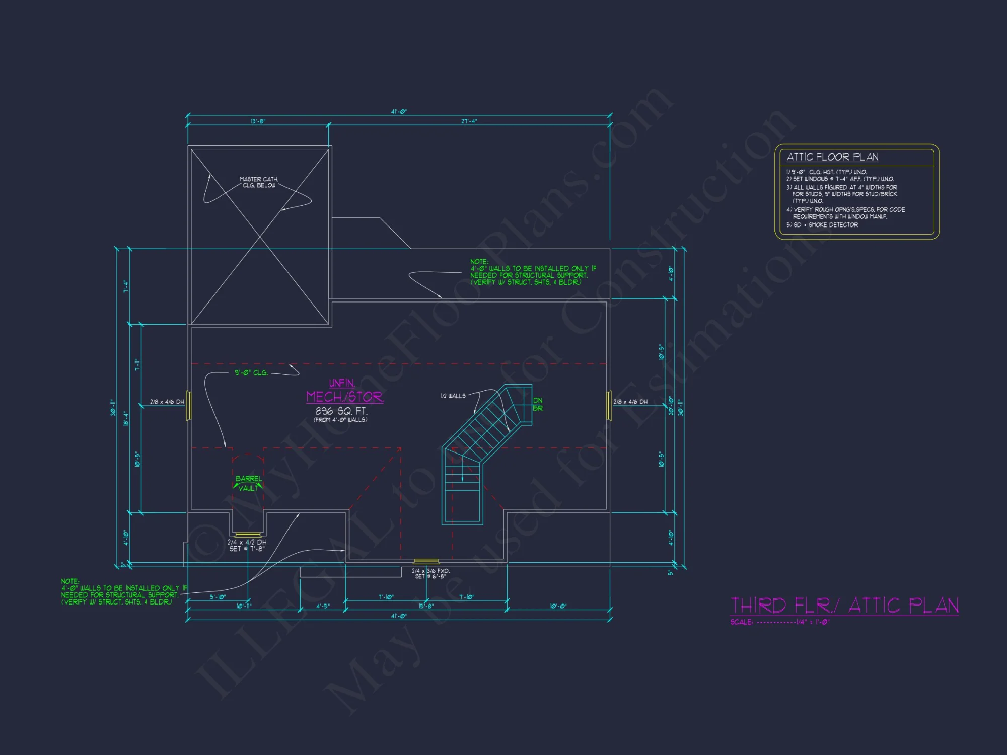
- Heated Area: 3,265 sq. ft. of conditioned living space.
- Unheated Extras: 1,382 sq. ft. of porches, garage, and attic areas for added versatility.
- Stories: 2 levels with classic gables, dormer windows, and strong curb appeal.
- Garage: Attached 2-car garage with front entry for convenience.
Interior Layout & Functionality
- Owner’s Suite: Located on the second floor with walk-in closet and spa-style bathroom.
- Open Floor Plan: Kitchen flows seamlessly into dining and family areas—ideal for entertaining. Explore open-concept plans.
- Dedicated Office or Study: Provides a quiet workspace with natural light.
- Recreation Room: Flexible upper-level space for media, games, or relaxation.
Exterior Architecture and Materials
This home showcases a harmonious blend of horizontal lap siding and natural stone complemented by crisp trim and dormers. The steep gable roofline and covered porch define the home’s Colonial heritage while ensuring modern energy efficiency and durability. Learn about similar styles on ArchDaily.
Outdoor Living and Entertaining Spaces
- Front Porch: Wide, covered, and framed by classic columns.
- Rear Porch: Ideal for outdoor dining or lounging with family.
- Screened Porch: Provides year-round comfort while maintaining privacy and style.
Architectural Style: Traditional Colonial Revival with New American Detailing
This design merges Colonial symmetry with New American craftsmanship, offering the timeless aesthetic of traditional architecture with the efficiency and flow of today’s homes.
Included Benefits with Every Home Plan
- CAD + PDF Files: Editable, printable, and ready for construction.
- Unlimited Build License: Build multiple homes at no extra charge.
- Free Foundation Changes: Choose slab, crawlspace, or basement layouts. Learn more.
- Structural Engineering Included: Ensures building code compliance and safety.
- Plan Modifications: Request custom changes easily. Customize your plan.
- View Before Purchase: Preview all blueprint sheets before buying.
Similar Collections You Might Like
- Colonial House Plans
- New American House Plans
- Traditional House Plans
- Stone Exterior House Plans
- Plans with Attic Storage
Frequently Asked Questions
Does this plan include CAD files? Yes, editable CAD and PDF formats are included.
Can I modify this home for a first-floor primary suite? Absolutely. Request your modification quote here.
Are the porches included in the square footage? No, they are considered unheated spaces but included in total coverage.
Is the roof pitch adjustable? Yes, you can request pitch modifications during customization.
Start Building with Confidence
Whether you’re a homeowner or builder, this Colonial Revival plan offers elegance and flexibility. Every MyHomeFloorPlans design includes construction-ready files, free foundation options, and lifetime licensing. Contact us today at support@myhomefloorplans.com or use our contact form to get started.
Your dream home begins with the right plan—build timeless beauty with confidence and craftsmanship.
Original price was: $2,870.56.$1,459.99Current price is: $1,459.99.
999 in stock
* Please verify all details with the actual plan, as the plan takes precedence over the information shown below.
| Architectural Styles | |
|---|---|
| Width | 43'-9" |
| Depth | 69'-5" |
| Htd SF | |
| Unhtd SF | |
| Bedrooms | |
| Bathrooms | |
| # of Floors | |
| # Garage Bays | |
| Indoor Features | Attic, Basement, Family Room, Fireplace, Office/Study, Open Floor Plan, Recreational Room |
| Outdoor Features | |
| Bed and Bath Features | Bedrooms on First Floor, Bedrooms on Second Floor, Owner's Suite on Second Floor, Walk-in Closet |
| Kitchen Features | |
| Garage Features | |
| Condition | New |
| Ceiling Features | |
| Structure Type | |
| Exterior Material |
No reviews yet.
9 FT+ Ceilings | Attics | Basement | Basement Garage | Bedrooms on First and Second Floors | Breakfast Nook | Covered Front Porch | Covered Rear Porches | Designer Favorite | Family Room | Fireplaces | Fireplaces | First-Floor Bedrooms | Front Entry | Kitchen Island | Large House Plans | Office/Study Designs | Open Floor Plan Designs | Owner’s Suite on Second Floor | Recreational Room | Screened Porches | Second Floor Bedroom | Traditional Craftsman | Transitional | Walk-in Closet
16-1398 HOUSE PLAN – Traditional Home Plan – 4-Bed, 4-Bath, 3,265 SF
- BOTH a PDF and CAD file (sent to the email provided/a copy of the downloadable files will be in your account here)
- PDF – Easily printable at any local print shop
- CAD Files – Delivered in AutoCAD format. Required for structural engineering and very helpful for modifications.
- Structural Engineering – Included with every plan unless not shown in the product images. Very helpful and reduces engineering time dramatically for any state. *All plans must be approved by engineer licensed in state of build*
Disclaimer
Verify dimensions, square footage, and description against product images before purchase. Currently, most attributes were extracted with AI and have not been manually reviewed.
My Home Floor Plans, Inc. does not assume liability for any deviations in the plans. All information must be confirmed by your contractor prior to construction. Dimensions govern over scale.












