16-1786B HOUSE PLAN – Elegant 3-Story House Plan with Spacious Floor Plan and CAD Designs
Discover this elegant 3-story house design featuring a spacious floor plan with 5 bedrooms, 4.5 baths, and premium CAD architecture. Perfect for builders and designers.
Elegant 3-Story House Plan with Spacious Layout and CAD Designs
Discover this elegant 3-story house plan with 3,921 heated sq. ft., 5 bedrooms, open layout, and premium CAD architecture—perfect for growing families and professional builders.
This Traditional-style house plan offers a perfect mix of elegance and functionality. Designed for modern living, it combines luxurious features with timeless architectural charm and smart space planning.
Key Features of the Home Plan
Living Areas – Heated & Unheated
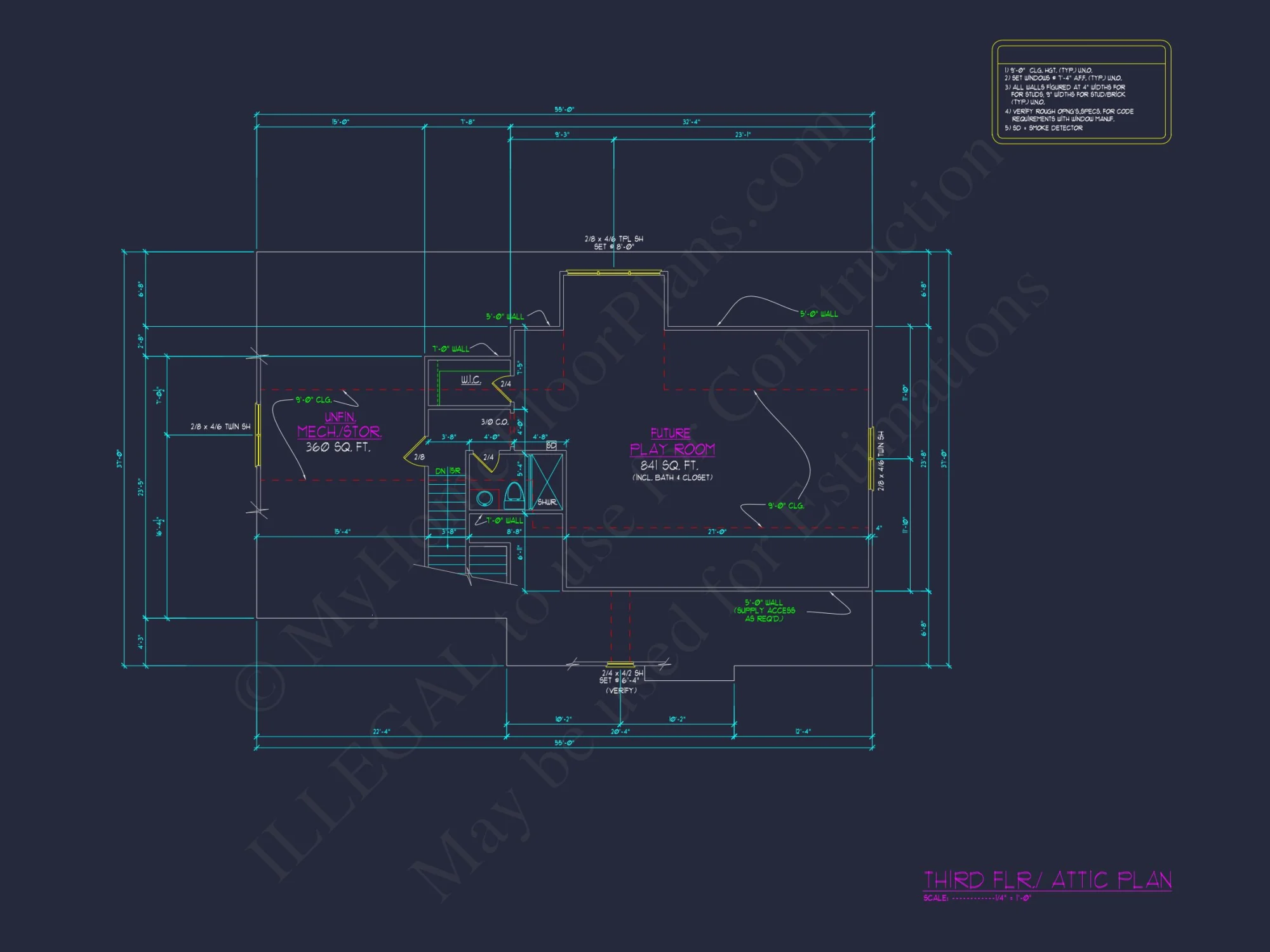
- Heated area: 3,921 sq. ft. across three levels of living space.
- Unheated extras: Includes screened porch, attic, basement, and a spacious 3-car garage.
Bedrooms & Bathrooms
- 5 spacious bedrooms provide flexibility for families, guests, or multi-generational living.
- 4.5 bathrooms thoughtfully placed across all levels for convenience and privacy.
Interior Highlights
- Open floor plan with great room ideal for gatherings. Explore open designs.
- Fireplace creates a cozy ambiance in the main living space. See fireplace layouts.
- Kitchen island and walk-in pantry enhance functionality for everyday use and entertaining.
- Bonus room, office/study, and recreation room support work-from-home, hobbies, and relaxation.
- Downstairs laundry room for easy daily access.
Garage & Storage Details
- Garage Bays: 3-car garage offers ample vehicle and equipment space.
- Garage Type: Attached layout with direct interior access.
- Storage: Attic space, mudroom with cubbies, and basement storage solutions.
Outdoor Living Features
- Welcoming covered front porch for relaxed evenings and curb appeal.
- Screened porch to enjoy the outdoors without pests.
- Covered rear porch perfect for grilling, dining, or lounging.
- Exterior materials include brick, shingles, and board & batten siding for classic charm.
Architectural Style: Traditional / Transitional
This home blends classic materials and modern layouts, making it perfect for those who want warmth and functionality in one package. Learn more about the Traditional house style or explore its design history on ArchDaily.
Bonus Features
- Basement ready for storage, gym, or future living space.
- Attic provides room to expand or organize seasonals.
- Flexible bonus room for a media center, guest room, or home gym.
Included Benefits with Every Plan
- CAD + PDF Files: Ready-to-edit, printable blueprints for construction.
- Unlimited Build License: Build the design multiple times with no added fees.
- Free Foundation Changes: Switch between slab, crawlspace, or basement—at no cost. Learn more.
- Structural Engineering Included: Fully compliant and stamped for your local codes. Why it matters.
- Lower Modification Costs: Save up to 50% compared to other providers. Customize here.
- View Before You Buy: Preview every blueprint sheet before purchasing.
Similar Collections You Might Love
- 5-Bedroom House Plans
- House Plans with Recreation Room
- House Plans with Attic Space
- Plans with Mudroom Entries
- Covered Porch House Plans
Frequently Asked Questions
What’s included with this house plan? All plans come with editable CAD files, printable PDFs, structural engineering, foundation options, and unlimited-build rights.
Is this home suitable for large families? Yes, with 5 bedrooms and multiple living areas, it’s perfect for large or multi-generational families.
Can the basement be finished later? Absolutely. The basement is ready for finishing at your convenience.
Can I view the layout before I purchase? Yes! Click here to preview every sheet before you buy.
Are modifications possible? Definitely. We offer lower-cost customizations. Request a quote anytime.
Start Building Your Dream Home Today
Have questions or ready to customize this 3-story beauty? Email us at support@myhomefloorplans.com or reach out via our form.
Don’t wait—your elegant 3-story dream house begins with the right plan. Let’s build it together!
Original price was: $2,870.56.$1,454.99Current price is: $1,454.99.
999 in stock
* Please verify all details with the actual plan, as the plan takes precedence over the information shown below.
| Architectural Styles | |
|---|---|
| Width | 68'-0" |
| Depth | 56'-4" |
| Htd SF | |
| Unhtd SF | |
| Bedrooms | |
| Bathrooms | |
| # of Floors | |
| # Garage Bays | |
| Indoor Features | Attic, Basement, Bonus Room, Downstairs Laundry Room, Family Room, Fireplace, Foyer, Great Room, Mudroom, Office/Study, Recreational Room |
| Outdoor Features | |
| Bed and Bath Features | Bedrooms on First Floor, Bedrooms on Second Floor, Jack and Jill Bathroom, Owner's Suite on Second Floor, Walk-in Closet |
| Kitchen Features | |
| Garage Features | |
| Condition | New |
| Ceiling Features | |
| Structure Type | |
| Exterior Material |
No reviews yet.
10 FT+ Ceilings | 9 FT+ Ceilings | After Build Photos | Attics | Basement Garage | Bedrooms on First and Second Floors | Bonus Rooms | Breakfast Nook | Builder Favorites | Classic Suburban | Covered Front Porch | Covered Rear Porches | Downstairs Laundry Room | Family Room | Fireplaces | Foyer | Front Entry | Great Room | Home Plans with Mudrooms | Jack and Jill | Kitchen Island | Large House Plans | Office/Study Designs | Owner’s Suite on Second Floor | Recreational Room | Screened Porches | Second Floor Bedroom | Side Entry Garage | Traditional | Transitional | Walk-in Closet | Walk-in Pantry
16-1786B HOUSE PLAN – Elegant 3-Story House Plan with Spacious Floor Plan and CAD Designs
- BOTH a PDF and CAD file (sent to the email provided/a copy of the downloadable files will be in your account here)
- PDF – Easily printable at any local print shop
- CAD Files – Delivered in AutoCAD format. Required for structural engineering and very helpful for modifications.
- Structural Engineering – Included with every plan unless not shown in the product images. Very helpful and reduces engineering time dramatically for any state. *All plans must be approved by engineer licensed in state of build*
Disclaimer
Verify dimensions, square footage, and description against product images before purchase. Currently, most attributes were extracted with AI and have not been manually reviewed.
My Home Floor Plans, Inc. does not assume liability for any deviations in the plans. All information must be confirmed by your contractor prior to construction. Dimensions govern over scale.

















