16-1819 HOUSE PLAN – Craftsman House Plan: Stunning CAD Blueprint with 5 Beds
Discover this stunning house design with 5 bedrooms, 4.5 baths, and 3 floors. Includes CAD blueprints, spacious layouts, and detailed architectural plans.
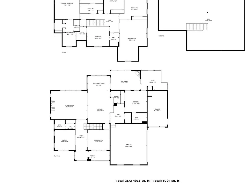
Craftsman House Plan with 3 Stories and 5 Bedrooms
Explore this stunning Craftsman-style house plan featuring 3,815 heated sq. ft., 3 stories, 5 bedrooms, 4.5 bathrooms, and detailed CAD blueprints for efficient, spacious living.
This Craftsman-style house plan offers a perfect mix of elegance and everyday functionality. With timeless curb appeal and a layout designed for families and entertainers alike, this blueprint delivers practical luxury across three full levels.
Key Features of the Home Plan
Living Areas – Heated & Unheated
- Heated area: 3,815 sq. ft. spread over three well-planned stories.
- Unheated extras: 1,790 sq. ft. including porches, attic, garage, and storage spaces.
Bedrooms & Bathrooms
- 5 spacious bedrooms, including a luxurious Owner Suite on the second floor with a private bath and walk-in closet.
- 4.5 bathrooms, thoughtfully positioned to support privacy and guest convenience.
Interior Highlights
- Vaulted ceilings create an airy, open ambiance in main living areas.
- Open floor plan links the kitchen, dining, and living zones. View more open layouts.
- Gourmet kitchen with large island, walk-in pantry, and breakfast nook—ideal for busy mornings or hosting guests.
- Fireplace in the great room offers cozy comfort. See fireplace floor plans.
- Bonus Room and Recreational Room provide entertainment flexibility for all ages.
- Sunroom and a dedicated home office make relaxation and productivity effortless.
Garage & Storage Details
- Garage Bays: Flexible design allows for side-entry or front-entry garage configuration.
- Garage Type: Attached for easy access to the main home.
- Storage: Includes attic space, a mudroom, and multiple closets for optimal organization.
Outdoor Living Features
- Covered front porch and a screened-in porch offer charming outdoor living year-round.
- Optional deck provides extra entertainment space for grilling, dining, or relaxing.
- Classic shake siding and stone accents for lasting Craftsman curb appeal.
Architectural Style: Traditional Craftsman
This home embraces natural materials, handcrafted aesthetics, and a warm layout—all hallmarks of Traditional Craftsman house plans. Learn about the style’s history on ArchDaily.
Bonus Features
- Sunroom perfect for morning coffee or evening reads.
- Dedicated mudroom to keep your home organized and clean.
- Attic space for additional storage or future expansion.
Included Benefits with Every Plan
- CAD + PDF Files: Delivered in editable and printable formats.
- Unlimited Build License: Build this plan as many times as you like—no additional licensing fees.
- Free Foundation Changes: Choose from slab, crawlspace, or basement at no extra cost. Learn more.
- Structural Engineering Included: Professionally stamped and code-compliant.
- Lower Modification Costs: Save up to 50% compared to other sites. Customize here.
- View Before You Buy: Access all sheets before purchase.
Similar Collections You Might Love
- Rustic Craftsman House Plans
- House Plans with Attic Storage
- House Plans with Sunrooms
- Side Load Garage House Plans
- Plans with Bonus Rooms
Frequently Asked Questions
How many stories is this plan? This is a 3-story home with bedrooms and flexible living space distributed across all levels.
Is the Owner Suite on the main floor? No, the Owner Suite is privately located on the second floor with a large walk-in closet and luxurious bath.
Are CAD files editable? Yes, you’ll receive CAD and PDF files that are fully editable for changes or local requirements.
Can this be built multiple times? Absolutely. Your purchase includes an unlimited-build license—perfect for builders or multiple lot owners.
Can I see the blueprints before purchasing? Yes! View the entire sheet set here.
What about structural safety? All our plans include structural engineering support to meet modern building codes.
Start Building Your Dream Home Today
Have questions or need help with customizations? Reach out to our team at support@myhomefloorplans.com or contact us here.
Your future house starts with a great plan—get started today with confidence and peace of mind.
Original price was: $2,870.56.$1,454.99Current price is: $1,454.99.
999 in stock
* Please verify all details with the actual plan, as the plan takes precedence over the information shown below.
| Architectural Styles | |
|---|---|
| Width | 70'-0" |
| Depth | 56'-8" |
| Htd SF | |
| Unhtd SF | |
| Bedrooms | |
| Bathrooms | |
| # of Floors | |
| # Garage Bays | |
| Indoor Features | Attic, Basement, Bonus Room, Family Room, Fireplace, Foyer, Mudroom, Office/Study, Open Floor Plan, Recreational Room, Sunroom |
| Outdoor Features | |
| Bed and Bath Features | Bedrooms on Second Floor, Jack and Jill Bathroom, Owner's Suite on Second Floor, Walk-in Closet |
| Kitchen Features | |
| Garage Features | |
| Condition | New |
| Ceiling Features | |
| Structure Type | |
| Exterior Material |
No reviews yet.
10 FT+ Ceilings | Attics | Basement Garage | Bonus Rooms | Breakfast Nook | Builder Favorites | Covered Front Porch | Covered Patio | Craftsman | Deck | Family Room | Fireplaces | Foyer | Front Entry | Home Plans with Mudrooms | Jack and Jill | Kitchen Island | Large House Plans | Office/Study Designs | Open Floor Plan Designs | Owner’s Suite on Second Floor | Recreational Room | Screened Porches | Second Floor Bedroom | Side Entry Garage | Smooth & Conventional | Split Bedroom Home Plans | Sunroom | Traditional | Transitional | Vaulted Ceiling | Walk-in Closet | Walk-in Pantry
16-1819 HOUSE PLAN – Craftsman House Plan: Stunning CAD Blueprint with 5 Beds
- BOTH a PDF and CAD file (sent to the email provided/a copy of the downloadable files will be in your account here)
- PDF – Easily printable at any local print shop
- CAD Files – Delivered in AutoCAD format. Required for structural engineering and very helpful for modifications.
- Structural Engineering – Included with every plan unless not shown in the product images. Very helpful and reduces engineering time dramatically for any state. *All plans must be approved by engineer licensed in state of build*
Disclaimer
Verify dimensions, square footage, and description against product images before purchase. Currently, most attributes were extracted with AI and have not been manually reviewed.
My Home Floor Plans, Inc. does not assume liability for any deviations in the plans. All information must be confirmed by your contractor prior to construction. Dimensions govern over scale.















