18-1123 HOUSE PLAN – Elegant Craftsman House Plan with Spacious Layout and Bonus Room
Discover this charming Craftsman house plan featuring a spacious layout, 3 bedrooms, bonus room, and detailed architecture with a floor plan for modern living.
Elegant Craftsman Home Plan with Spacious Layout and Bonus Room
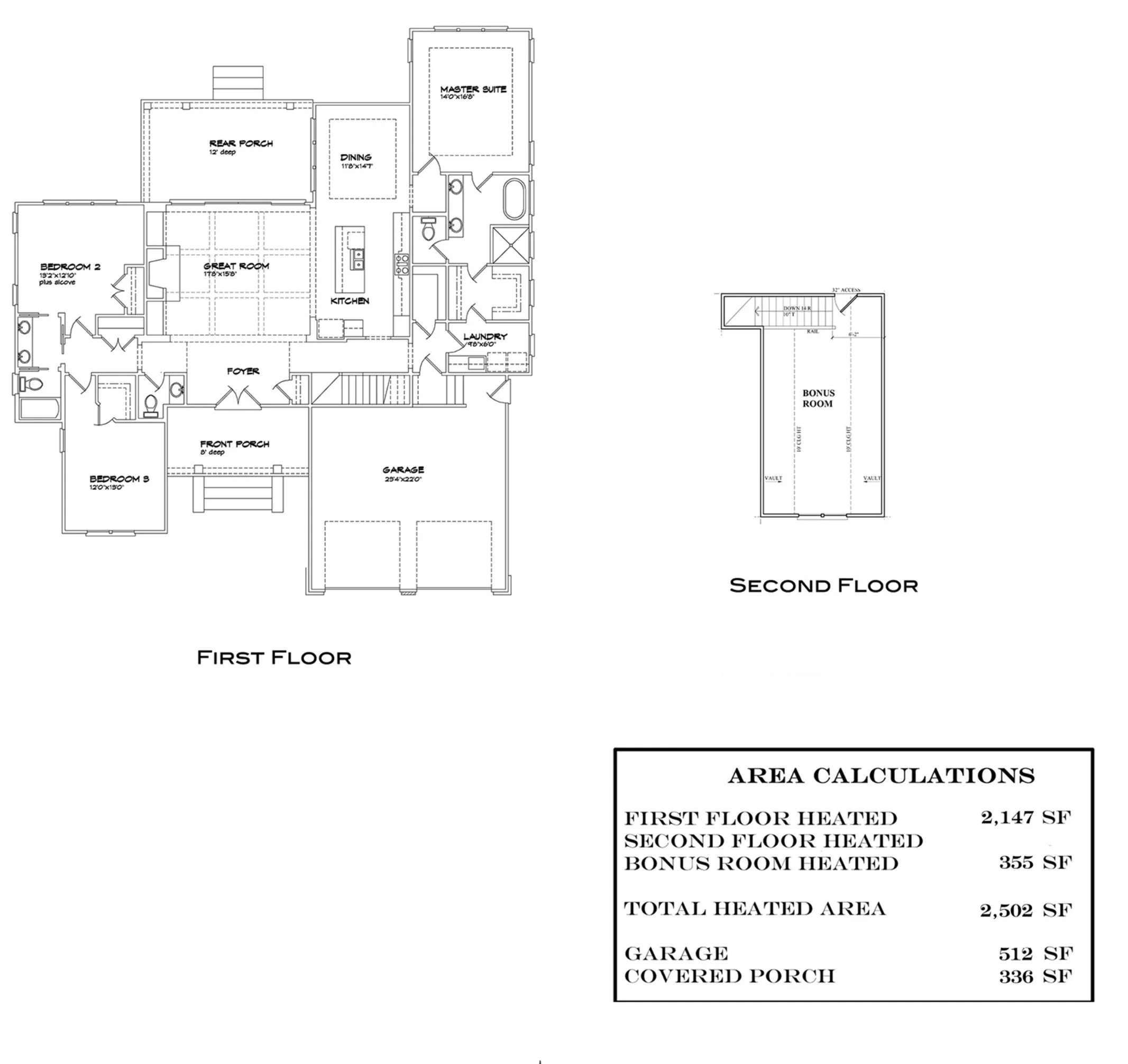
Discover this charming Craftsman home plan with 2,502 heated sq. ft., 3 bedrooms, bonus room, and a beautifully detailed floor plan—includes CAD blueprints and more.
This Craftsman-style house plan offers a perfect mix of comfort and functionality. Designed for modern living, it delivers timeless charm and smart space planning.
Key Features of the Home Plan
Living Areas – Heated & Unheated
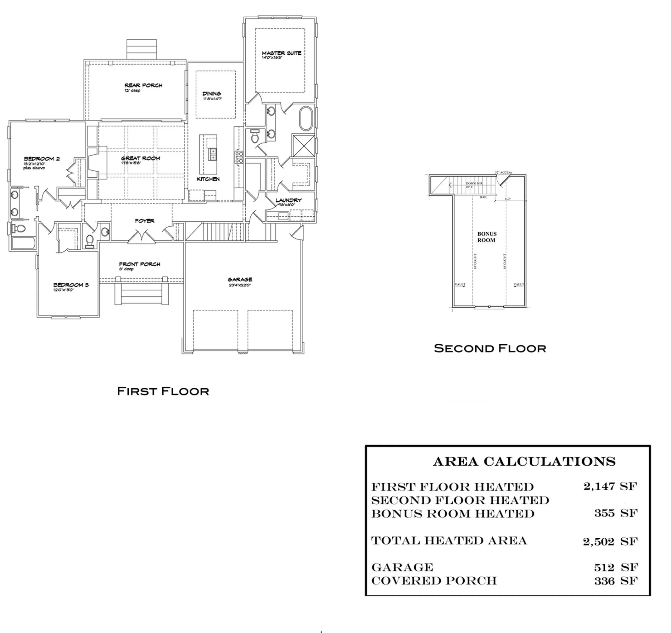
- Heated area: 2,502 sq. ft. across two levels.
- Unheated extras: Front and rear covered porches, 2-car garage.
Bedrooms & Bathrooms
- 3 spacious bedrooms including a private first-floor Owner Suite with walk-in closet.
- 3.5 bathrooms, offering convenience and privacy for every room.
Interior Highlights
- Open floor plan connects great room, kitchen, and dining. Explore open layouts.
- Kitchen island and walk-in pantry ensure storage and function.
- Beamed ceilings and fireplace enhance the Craftsman aesthetic. See fireplace designs.
- Bonus room upstairs offers flexibility for a home office, media room, or guest suite.
- Mudroom with drop zone for easy organization.
Garage & Storage Details
- Garage Bays: 2-car garage with front entry access.
- Garage Type: Attached garage, ideal for easy indoor access.
- Storage: Bonus room, walk-in closets, pantry, and mudroom lockers.
Outdoor Living Features
- Covered front porch for curb appeal and shaded relaxation.
- Rear covered porch for backyard entertaining and lounging.
- Classic exterior materials including stone, shake, and traditional siding.
Architectural Style: Traditional Craftsman
This design blends timeless materials and thoughtful details—perfect for families who value character and efficiency in one package. Learn more about the Craftsman style or explore its roots on ArchDaily.
Bonus Features
- Upstairs flex room for remote work, hobbies, or guest stays.
- Spacious foyer creates a welcoming entrance.
- Beamed ceilings in the great room add elegant structure.
Included Benefits with Every Plan
- CAD + PDF Files: Easily editable, printable, and ready to build.
- Unlimited Build License: Build once—or 100 times—with no extra fees.
- Free Foundation Changes: Swap between slab, crawlspace, or basement.
- Structural Engineering Included: Code-compliant and professionally stamped.
- Lower Modification Costs: Up to 50% less than competitors.
- View Before You Buy: See every sheet in advance.
Similar Collections You Might Love
- Traditional House Plans
- Plans with Bonus Rooms
- Plans with Mudrooms
- Covered Porch House Plans
- Plans with Walk-In Pantries
Frequently Asked Questions
What’s included with this house plan? You’ll receive CAD files, PDF blueprints, an unlimited-build license, full structural engineering, and the option to change foundations at no extra cost.
Can I add a basement or slab foundation? Yes—free foundation changes are included with every plan purchase.
Does this house plan come with a bonus room? Absolutely. The second-floor bonus room is perfect for extra living or work-from-home flexibility.
Are modifications available? Yes. We offer affordable and fast customizations to make this plan fit your unique needs. Get a quote here.
Is the plan easy to view before buying? Yes! Preview all sheets before purchase so you know exactly what you’re getting.
Start Building Your Dream Home Today
Have questions or want to personalize your plan? Contact our expert team at support@myhomefloorplans.com or fill out our form.
Your future house starts with a great plan—customize it and build with confidence!
Original price was: $2,870.56.$1,454.99Current price is: $1,454.99.
999 in stock
* Please verify all details with the actual plan, as the plan takes precedence over the information shown below.
| Width | 62'-2" |
|---|---|
| Architectural Styles | |
| Depth | 67'-10" |
| Htd SF | |
| Unhtd SF | |
| Bedrooms | |
| Bathrooms | |
| # of Floors | |
| # Garage Bays | |
| Indoor Features | Bonus Room, Fireplace, Foyer, Great Room, Mudroom, Office/Study, Open Floor Plan |
| Outdoor Features | |
| Bed and Bath Features | Bedrooms on First Floor, Owner's Suite on First Floor, Walk-in Closet |
| Kitchen Features | |
| Garage Features | |
| Ceiling Features | |
| Structure Type | |
| Condition | New |
| Exterior Material |
Mark Miller – April 27, 2025
4 stars
9 FT+ Ceilings | Affordable | Beamed | Bedrooms on First and Second Floors | Bonus Rooms | Builder Favorites | Covered Front Porch | Covered Rear Porches | Craftsman | Fireplaces | Fireplaces | First-Floor Bedrooms | Foyer | Front Entry | Great Room | Home Plans with Mudrooms | Kitchen Island | Luxury | Medium | Office/Study Designs | Open Floor Plan Designs | Owner’s Suite on the First Floor | Traditional | Walk-in Closet | Walk-in Pantry
18-1123 HOUSE PLAN – Elegant Craftsman House Plan with Spacious Layout and Bonus Room
- BOTH a PDF and CAD file (sent to the email provided/a copy of the downloadable files will be in your account here)
- PDF – Easily printable at any local print shop
- CAD Files – Delivered in AutoCAD format. Required for structural engineering and very helpful for modifications.
- Structural Engineering – Included with every plan unless not shown in the product images. Very helpful and reduces engineering time dramatically for any state. *All plans must be approved by engineer licensed in state of build*
Disclaimer
Verify dimensions, square footage, and description against product images before purchase. Currently, most attributes were extracted with AI and have not been manually reviewed.
My Home Floor Plans, Inc. does not assume liability for any deviations in the plans. All information must be confirmed by your contractor prior to construction. Dimensions govern over scale.

















