18-1198 HOUSE PLAN – Shingle Style Home Plan – 3-Bed, 3-Bath, 2,850 SF
Shingle Style and Coastal house plan with gray siding exterior • 3 bed • 3 bath • 2,850 SF. Open floor plan, arched porch, and 2-car garage. Includes CAD+PDF + unlimited build license.
Classic Shingle Style Coastal Home with Timeless Charm
Explore this 2,850 sq. ft. Shingle Style Coastal home plan featuring 3 bedrooms, 3 baths, and a 2-car garage. Designed for comfort, elegance, and functionality with premium materials and coastal-inspired details.
This Shingle Style home plan blends classic New England coastal architecture with modern livability. From its graceful arched porch to its gabled rooflines and gray shingle exterior, this design exudes warmth, sophistication, and curb appeal. Ideal for families or couples seeking a balance of traditional craftsmanship and coastal serenity.
Key Features of the Home Plan
Living Spaces
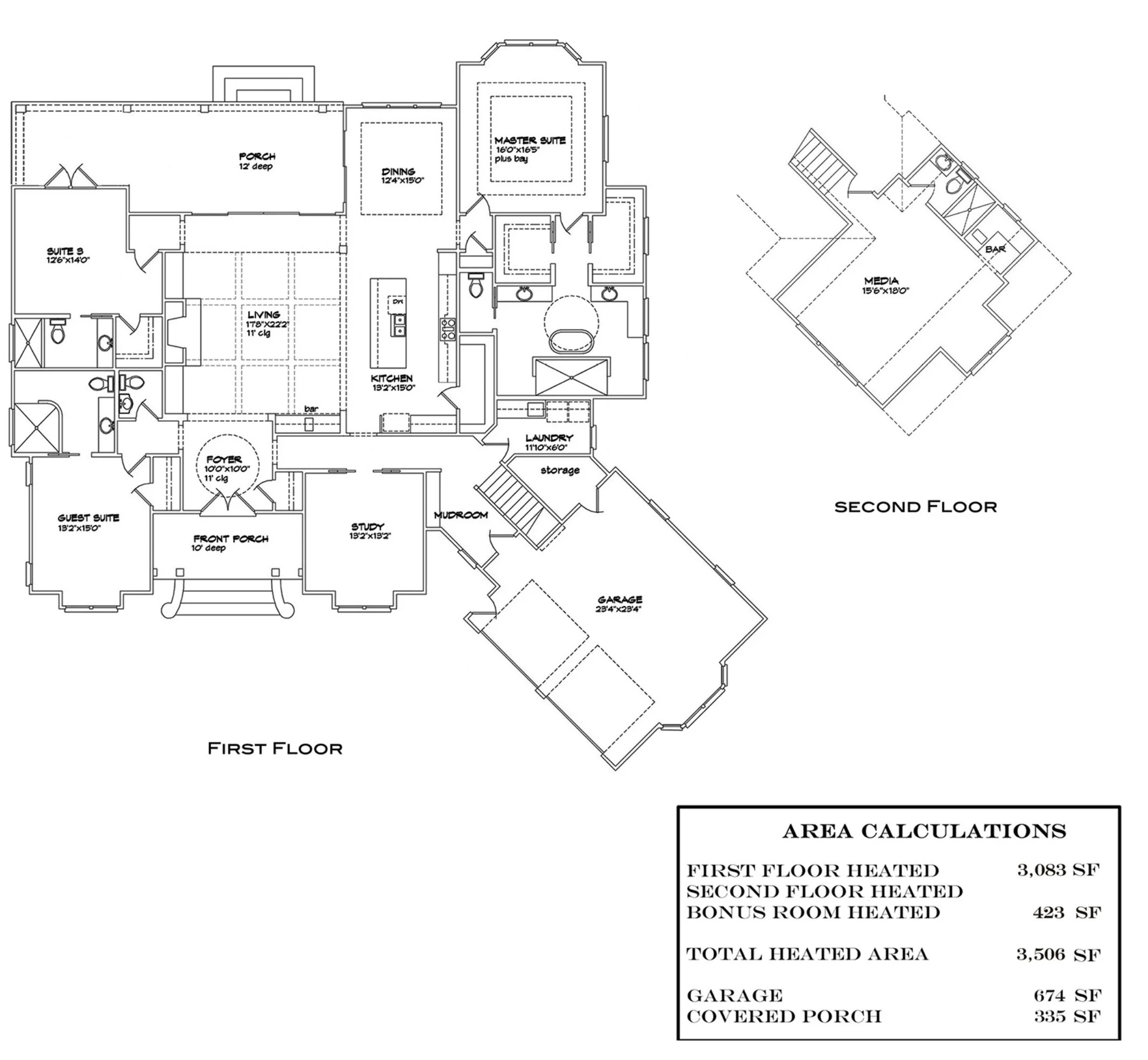
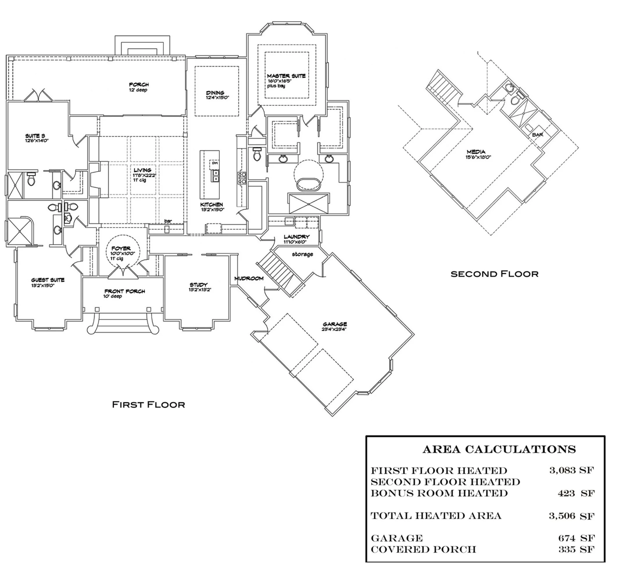
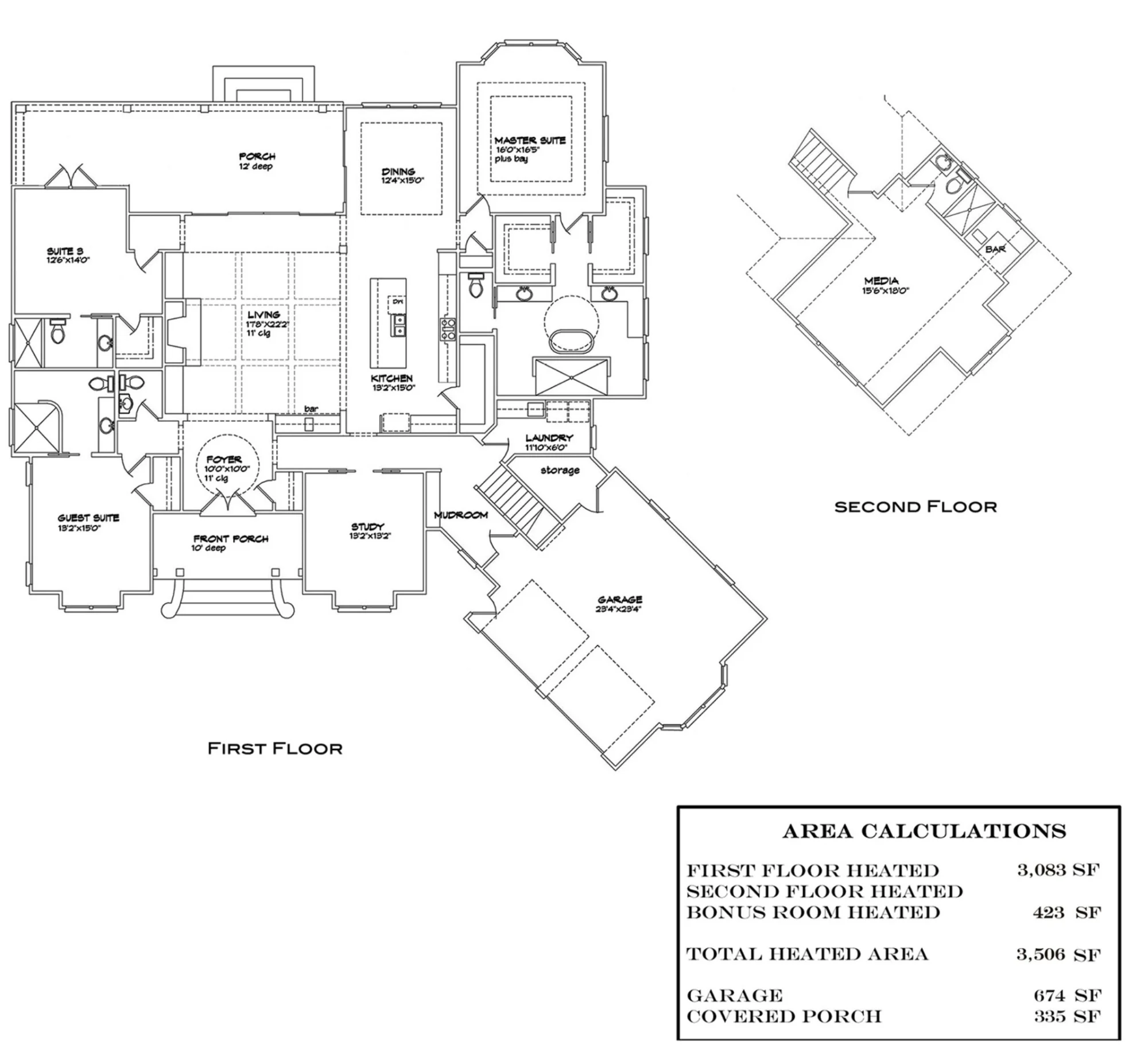
- Heated Area: 2,850 sq. ft. of refined living space with an open floor plan.
- Layout: Seamless flow between kitchen, dining, and great room areas designed for both entertaining and everyday life.
- Outdoor Living: Covered porch and backyard patio perfect for coastal evenings and family gatherings.
Bedrooms & Bathrooms
- 3 bedrooms including a luxurious first-floor Owner Suite with spa-style bath and walk-in closet.
- 3 full baths with modern fixtures, tiled showers, and natural lighting.
- Optional bonus room or office space for flexible living.
Interior Design Highlights
- Vaulted ceilings and arched windows enhance light and spaciousness.
- Kitchen island and walk-in pantry for functionality and style. Explore similar kitchen island plans.
- Natural flow between interior spaces complemented by coastal-inspired tones and textures.
- Fireplace-centered living room perfect for gatherings and relaxation.
Exterior Details
- Exterior Finish: Gray shingle siding with crisp white trim and stone foundation detailing.
- Roofing: Architectural asphalt shingles designed for durability and contrast.
- Garage: Two-car attached garage with carriage-style doors and overhang detailing.
- Porch Entry: Arched front porch supported by columns, adding timeless architectural character.
Architectural Style: Shingle & Coastal Fusion
This plan exemplifies the classic coastal American home aesthetic, rooted in Shingle Style traditions with refined modern touches. The combination of shingle siding, crisp trim, and simple gable forms embodies effortless seaside charm and enduring design appeal.
Bonus Features
- Spacious mudroom with built-in cubbies and bench.
- Optional office or den for remote work or reading nook.
- Formal dining area with rear porch access for indoor-outdoor flow.
- Energy-efficient windows maximizing light and coastal views.
Included Benefits with Every Plan
- CAD + PDF Files: Editable, ready-to-build files included.
- Unlimited Build License: Build multiple times at no extra cost.
- Structural Engineering Included: Professionally stamped plans for code compliance.
- Free Foundation Modifications: Choose slab, crawlspace, or basement layouts. Learn more.
- View Before You Buy: Preview complete plan sets online before purchase.
Why Homeowners Love the Shingle Style
Shingle Style homes offer distinctive architecture with continuous rooflines, flowing forms, and cozy materials. This plan combines those timeless coastal aesthetics with modern comforts such as open layouts, energy-efficient design, and superior craftsmanship.
Similar Collections You’ll Love
- Coastal House Plans
- Shingle Style House Plans
- Plans with Covered Porches
- Open Concept Home Plans
- Plans with Bonus Rooms
Frequently Asked Questions
Can I modify this plan? Yes. You can request changes to layout, materials, or size to fit your lot or family needs. What’s included with this plan? Full construction drawings, structural engineering, CAD + PDF formats, and unlimited build rights. Is this design coastal-code ready? Absolutely—engineered for structural integrity in coastal zones. Can I see the plan before buying? Yes, preview all sheets here: View Now.
Build Your Dream Coastal Home Today
Bring this timeless Shingle Style Coastal home to life with My Home Floor Plans. Every plan includes full customization options, support from licensed designers, and the confidence of structural-engineered quality.
Start building your dream home today—crafted for comfort, designed for the coast.
Original price was: $2,470.56.$1,254.99Current price is: $1,254.99.
999 in stock
* Please verify all details with the actual plan, as the plan takes precedence over the information shown below.
| Architectural Styles | |
|---|---|
| Width | 70'-10" |
| Depth | 81'-4" |
| Htd SF | |
| Unhtd SF | |
| Bedrooms | |
| Bathrooms | |
| # of Floors | |
| # Garage Bays | |
| Indoor Features | Bonus Room, Foyer, Great Room, Laundry Room, Living Room, Mudroom, Office/Study, Open Floor Plan |
| Outdoor Features | |
| Bed and Bath Features | Owner's Suite on First Floor, Split Bedrooms, Walk-in Closet |
| Kitchen Features | |
| Garage Features | |
| Condition | New |
| Ceiling Features | |
| Structure Type | |
| Exterior Material |
No reviews yet.
10 FT+ Ceilings | 9 FT+ Ceilings | Angled | Beamed | Bonus Rooms | Builder Favorites | Coffered | Covered Front Porch | Covered Patio | Covered Rear Porches | Designer Favorite | Foyer | Great Room | Home Plans with Mudrooms | Kitchen Island | Laundry Room | Living Room | Medium | Office/Study Designs | Open Floor Plan Designs | Owner’s Suite on the First Floor | Patios | Shingle Style | Side Entry Garage | Split Bedroom | Traditional | Walk-in Closet | Walk-in Pantry
18-1198 HOUSE PLAN – Shingle Style Home Plan – 3-Bed, 3-Bath, 2,850 SF
- BOTH a PDF and CAD file (sent to the email provided/a copy of the downloadable files will be in your account here)
- PDF – Easily printable at any local print shop
- CAD Files – Delivered in AutoCAD format. Required for structural engineering and very helpful for modifications.
- Structural Engineering – Included with every plan unless not shown in the product images. Very helpful and reduces engineering time dramatically for any state. *All plans must be approved by engineer licensed in state of build*
Disclaimer
Verify dimensions, square footage, and description against product images before purchase. Currently, most attributes were extracted with AI and have not been manually reviewed.
My Home Floor Plans, Inc. does not assume liability for any deviations in the plans. All information must be confirmed by your contractor prior to construction. Dimensions govern over scale.


















