18-1344 HOUSE PLAN – Beach Duplex Floor Plan with 4 Beds, Garage & CAD Designs
Explore a stunning beach duplex house design with 4 bedrooms, spacious floor plans, garage bays, and CAD architectural blueprints for your dream house!
Beach Duplex Floor Plan with 4 Bedrooms, Garage & Open Layout
Explore this coastal duplex house design featuring 4 bedrooms, 4 bathrooms, spacious floor plans, covered porches, and CAD blueprints for easy building.
This beach-style duplex house plan offers the perfect blend of efficiency, investment value, and architectural charm. Designed with narrow lot compatibility and rental flexibility in mind, this layout is ideal for coastal builders and families alike.
Key Features of the Home Plan
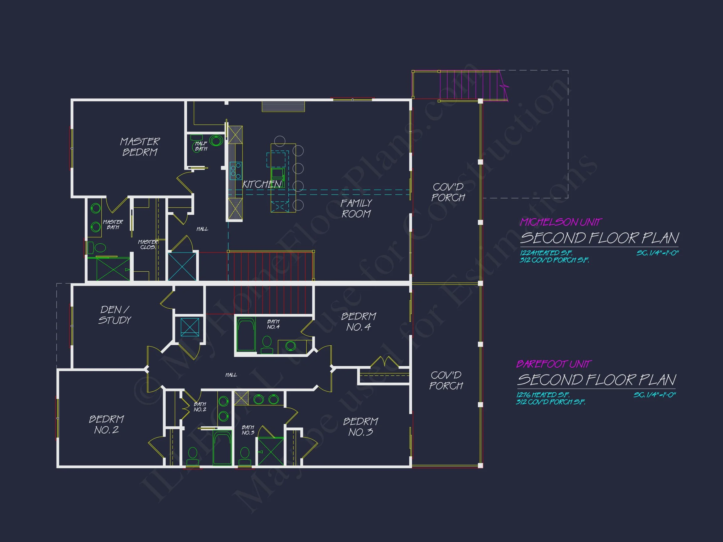
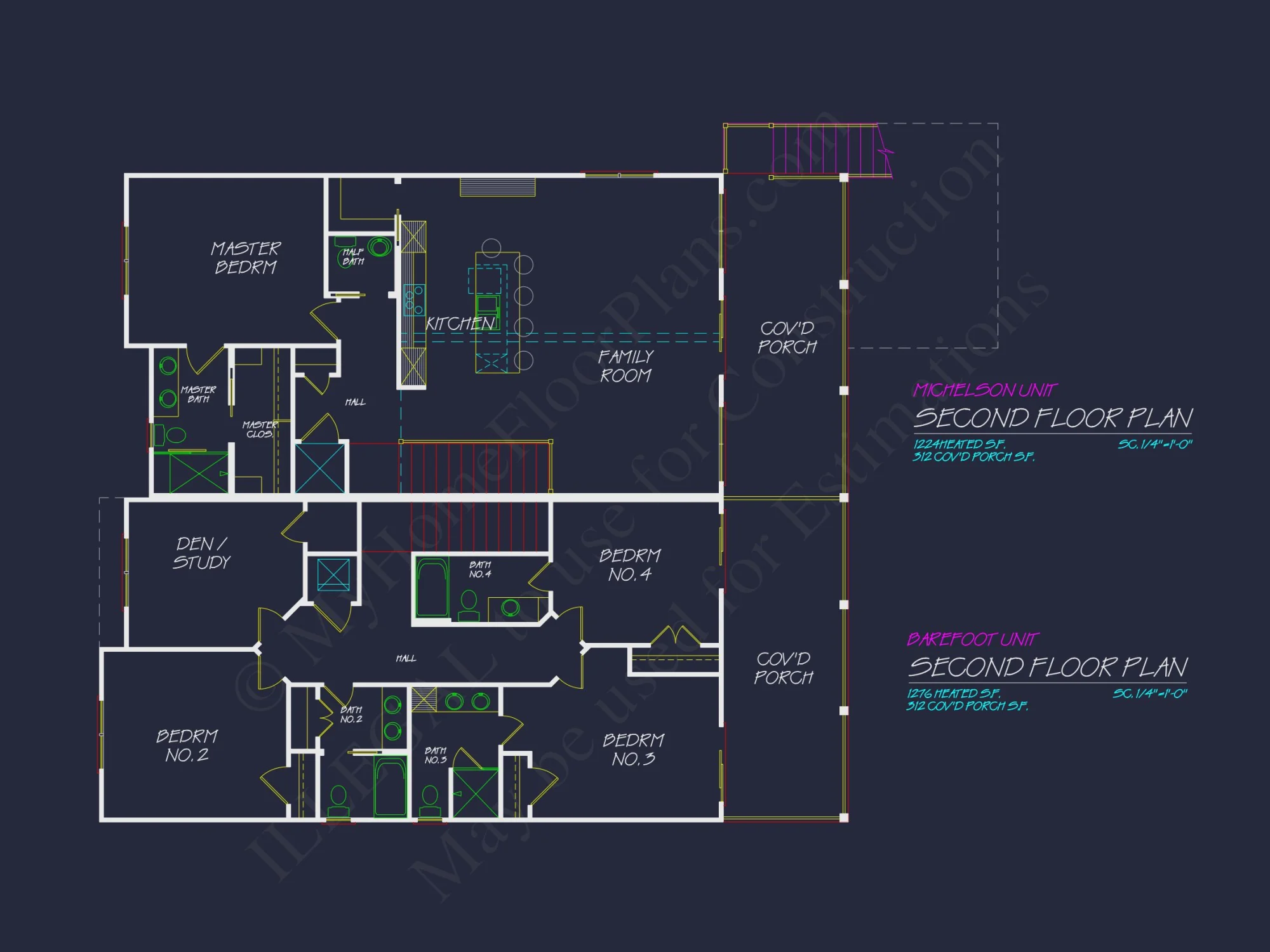
Living Areas – Heated & Unheated
- Heated area: 4,000+ sq. ft. spread across two mirrored duplex units.
- Unheated extras: Covered porches, balconies, patios, and garage bays.
Bedrooms & Bathrooms
- 4 total bedrooms (2 per unit), each thoughtfully placed on the second floor for added privacy.
- 4 full bathrooms ensure comfort and convenience for both sides of the duplex.
Interior Highlights
- Smooth vaulted ceilings add height and openness to the living spaces.
- Open floor plan connects the kitchen, dining, and living areas seamlessly. See more open-concept layouts.
- Kitchen island provides ample space for cooking, dining, and entertaining.
- Fireplace adds cozy charm to the family room. Explore plans with fireplaces.
- Owner bedrooms include walk-in closets for storage and luxury.
Garage & Storage Details
- Garage Bays: Two garage bays, one for each unit—ideal for beach gear or vehicles.
- Garage Type: Attached, front-load configuration to suit narrow or urban lots.
- Storage: Bonus closets, attic space, and entry-level mudroom options.
Outdoor Living Features
- Covered front and rear porches on both units—perfect for enjoying the coastal breeze.
- Private balconies add charm and give each unit personal outdoor space.
- Side patios for entertaining, grilling, or quiet evenings by the sea.
Architectural Style: Beach Duplex
This layout captures coastal architectural flair with a functional twist. The mirrored duplex design maximizes investment potential while offering serene coastal curb appeal. Learn more about beach house plans or explore duplex strategies on ArchDaily.
Bonus Features
- Study/Flex Room: Optional office or guest room for remote work or visitors.
- Foyer entry: Creates a sophisticated and private entrance for each side.
- Balconies: Upper-level outdoor spaces ideal for morning coffee with a view.
Included Benefits with Every Plan
- CAD + PDF Files: Fully editable and printable for seamless construction.
- Unlimited Build License: Build and sell or rent as many times as needed.
- Free Foundation Changes: Adapt to slab, crawlspace, or basement options easily.
- Structural Engineering Included: Professionally stamped and code-compliant.
- Lower Modification Costs: Save up to 50% compared to other providers.
- View Before You Buy: Preview all sheets in advance.
Similar Collections You Might Love
- Duplex House Plans
- Narrow Lot House Plans
- Coastal House Plans
- Covered Porch Designs
- Plans with Walk-In Closets
Frequently Asked Questions
Is this plan ideal for investment properties? Absolutely! It’s perfect for short-term rentals, long-term tenants, or multigenerational living.
Can I convert this to a single-family layout? Yes, modifications are welcome and cost-effective. Request a quote here.
Are both units the same size? Yes, this mirrored design includes two equal 2-bedroom units with private amenities.
Does this plan work on a narrow lot? Yes. Its smart footprint and front-loading garages make it perfect for compact coastal sites.
Can I view the architectural sheets before I buy? Yes. View every sheet now.
Start Building Your Dream Home Today
Ready to bring your vision to life? Contact our experts at support@myhomefloorplans.com or submit a form here.
Design smarter, build better—start your coastal project with our proven duplex blueprints today!
Original price was: $3,370.56.$1,754.99Current price is: $1,754.99.
999 in stock
* Please verify all details with the actual plan, as the plan takes precedence over the information shown below.
| Architectural Styles | |
|---|---|
| Width | 52'-0" |
| Depth | 60'-0" |
| Htd SF | |
| Unhtd SF | |
| Bedrooms | |
| Bathrooms | |
| # of Floors | |
| # Garage Bays | |
| Indoor Features | Family Room, Fireplace, Foyer, Office/Study, Open Floor Plan |
| Outdoor Features | |
| Bed and Bath Features | Bedrooms on Second Floor, Owner's Suite on Second Floor, Walk-in Closet |
| Kitchen Features | |
| Garage Features | |
| Ceiling Features | |
| Structure Type | |
| Exterior Material |
No reviews yet.
Affordable | Balconies | Beach | Coastal | Covered Front Porch | Covered Patio | Covered Rear Porches | Family Room | Fireplaces | Fireplaces | Foyer | Front Entry | Kitchen Island | Large House Plans | Narrow Lot Designs | Office/Study Designs | Open Floor Plan Designs | Owner’s Suite on Second Floor | Patios | Second Floor Bedroom | Smooth & Conventional | Traditional | Walk-in Closet | Walk-in Pantry
18-1344 HOUSE PLAN – Beach Duplex Floor Plan with 4 Beds, Garage & CAD Designs
- BOTH a PDF and CAD file (sent to the email provided/a copy of the downloadable files will be in your account here)
- PDF – Easily printable at any local print shop
- CAD Files – Delivered in AutoCAD format. Required for structural engineering and very helpful for modifications.
- Structural Engineering – Included with every plan unless not shown in the product images. Very helpful and reduces engineering time dramatically for any state. *All plans must be approved by engineer licensed in state of build*
Disclaimer
Verify dimensions, square footage, and description against product images before purchase. Currently, most attributes were extracted with AI and have not been manually reviewed.
My Home Floor Plans, Inc. does not assume liability for any deviations in the plans. All information must be confirmed by your contractor prior to construction. Dimensions govern over scale.























