19-2305 HOUSE PLAN – Modern Farmhouse House Plan – 4 Bed, 3,361 Sq Ft, 1.5 Stories (CAD + Engineering Included)
Discover this 1.5-story modern farmhouse house plan with 3,361 sq. ft., 4 bedrooms, vaulted great room, bonus room, and porches. Includes CAD blueprints, structural engineering, free foundation changes, and unlimited build license. Build your dream farmhouse with confidence!
Beautiful 1.5-Story Modern Farmhouse Plan with Bonus Room & Vaulted Great Room
Explore this modern farmhouse plan featuring 3,361 heated sq. ft., 4 bedrooms, 4 baths, open-concept living, and an upstairs bonus room—complete with CAD blueprints and engineering included.
This modern farmhouse-style house plan blends clean lines, board-and-batten siding, and inviting porches with today’s most sought-after interior layouts. Designed for families, it balances rustic charm with modern efficiency.
Key Features of the Home Plan
Living Areas – Heated & Unheated
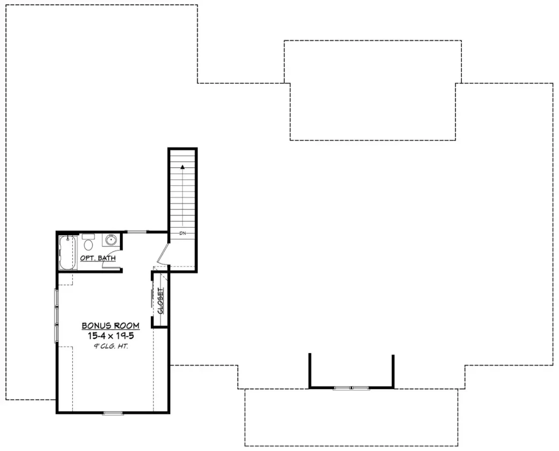
- Heated area: 3,361 sq. ft. across 1.5 stories.
- Unheated extras: Spacious front and rear porches, 2-car garage, and a versatile upstairs bonus room.
Bedrooms & Bathrooms
- 4 bedrooms including a first-floor Owner’s Suite with luxury bath and walk-in closet.
- 4 full bathrooms, including a Jack and Jill upstairs for family or guests.
Interior Highlights
- Vaulted ceilings in the great room amplify natural light and openness.
- Open floor plan seamlessly connects kitchen, dining, and living spaces. See open layouts.
- Modern farmhouse kitchen with oversized island and walk-in pantry. Explore kitchen island plans.
- Fireplace feature wall anchors the great room with warmth and style. Browse fireplace plans.
- Bonus room upstairs—perfect as a home office, flex room, or guest retreat.
Garage & Storage Details
- Garage Bays: 2-car attached garage with convenient entry.
- Garage Type: Attached with mudroom access.
- Storage: Mudroom cubbies, attic potential, walk-in closets, and large pantry.
Outdoor Living Features
- Covered front porch with farmhouse charm for curb appeal.
- Rear porch designed for entertaining or quiet evenings outdoors.
- Board-and-batten siding and metal roof accents highlight the modern farmhouse aesthetic.
Architectural Style: Modern Farmhouse
This design blends farmhouse character—gables, porches, and natural finishes—with modern layouts and energy-efficient features. Perfect for families who want charm and function in one home. Learn more in our Modern Farmhouse collection or explore design inspiration on ArchDaily.
Bonus Features
- Split-bedroom layout for Owner Suite privacy.
- Jack and Jill bath for upstairs bedrooms.
- Flexible bonus room for office, fitness, or media use.
Included Benefits with Every Plan
- CAD + PDF Files: Fully editable and build-ready.
- Unlimited Build License: Build multiple times at no extra cost.
- Free Foundation Changes: Swap to slab, crawlspace, or basement. Learn more.
- Structural Engineering: Professionally reviewed for code compliance.
- Affordable Modifications: Save up to 50% on changes. Get a quote.
- Preview Before You Buy: See every sheet upfront.
Similar Collections You Might Love
- Modern Farmhouse House Plans
- 4-Bedroom House Plans
- Plans with Bonus Rooms
- Plans with Mudroom Entry
- First-Floor Owner Suite Plans
Frequently Asked Questions
What’s included with this plan? CAD files, PDFs, unlimited-build rights, structural engineering, and foundation options.
Can I modify this plan? Yes, we offer affordable modifications. Request a quote.
Does the bonus room work as a bedroom? Yes, it can be used as a guest suite or flex room.
Is this layout designed for entertaining? Absolutely—its open concept and porches are perfect for hosting.
When will I receive my files? Instantly after purchase in both CAD and PDF format.
Start Building Your Dream Modern Farmhouse Today
Have questions or want to personalize this plan? Contact us at support@myhomefloorplans.com or connect here.
Your dream farmhouse begins with the right plan—download yours and start building with confidence!
Original price was: $2,870.56.$1,454.99Current price is: $1,454.99.
999 in stock
* Please verify all details with the actual plan, as the plan takes precedence over the information shown below.
| Architectural Styles | |
|---|---|
| Width | 76'-8" |
| Depth | 65'-10" |
| Htd SF | |
| Unhtd SF | |
| Bedrooms | |
| Bathrooms | |
| # of Floors | |
| # Garage Bays | |
| Indoor Features | Bonus Room, Fireplace, Great Room, Mudroom, Open Floor Plan, Upstairs Laundry Room |
| Outdoor Features | |
| Bed and Bath Features | Bedrooms on First Floor, Jack and Jill Bathroom, Owner's Suite on First Floor, Walk-in Closet |
| Kitchen Features | |
| Garage Features | |
| Condition | New |
| Ceiling Features | |
| Structure Type | |
| Exterior Material |
No reviews yet.
9 FT+ Ceilings | Bedrooms on First and Second Floors | Bonus Rooms | Breakfast Nook | Covered Front Porch | Covered Rear Porches | Craftsman | Designer Favorite | Fireplaces | Fireplaces | First-Floor Bedrooms | Front Entry | Great Room | Home Plans with Mudrooms | Jack and Jill | Kitchen Island | Large House Plans | Open Floor Plan Designs | Owner’s Suite on the First Floor | Traditional Farmhouse | Upstairs Laundry Room | Vaulted Ceiling | Walk-in Closet | Walk-in Pantry
19-2305 HOUSE PLAN – Modern Farmhouse House Plan – 4 Bed, 3,361 Sq Ft, 1.5 Stories (CAD + Engineering Included)
- BOTH a PDF and CAD file (sent to the email provided/a copy of the downloadable files will be in your account here)
- PDF – Easily printable at any local print shop
- CAD Files – Delivered in AutoCAD format. Required for structural engineering and very helpful for modifications.
- Structural Engineering – Included with every plan unless not shown in the product images. Very helpful and reduces engineering time dramatically for any state. *All plans must be approved by engineer licensed in state of build*
Disclaimer
Verify dimensions, square footage, and description against product images before purchase. Currently, most attributes were extracted with AI and have not been manually reviewed.
My Home Floor Plans, Inc. does not assume liability for any deviations in the plans. All information must be confirmed by your contractor prior to construction. Dimensions govern over scale.


















