20-1539 HOUSE PLAN – Impressive Modern Suburban House Floor Plan with CAD Design
Explore this stunning 3-story house design with CAD blueprints, featuring 6 bedrooms, 7 baths, luxurious family spaces, and unique architectural details.
Impressive Modern Suburban Home Floor Plan with CAD Design
Explore this stunning 3-story house plan with 6 bedrooms, 7 bathrooms, CAD blueprints, spacious family areas, and premium architectural features.
This Modern Suburban house plan offers a perfect mix of comfort and functionality. Designed for multigenerational living, it delivers timeless curb appeal, bold architecture, and smart space planning across three levels.
Key Features of the Home Plan
Living Areas – Heated & Unheated
- Heated area: 5,031 sq. ft. across three stories.
- Unheated extras: 1,245 sq. ft. including garage, screened porch, patios, and upper deck.
Bedrooms & Bathrooms
- 6 large bedrooms including a private Owner Suite on the second floor and a main-level guest suite for flexibility.
- 7 total bathrooms, including ensuite options, Jack-and-Jill setup, and multiple powder rooms for convenience.
Interior Highlights
- Tall ceilings (9–10 ft.) throughout for openness and natural light.
- Open floor plan that connects the kitchen, dining, and family room seamlessly. View open layouts.
- Spacious kitchen with island, walk-in pantry, and cozy breakfast nook.
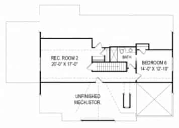
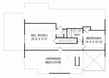
- Dedicated office/study and a large recreation room for work and play.
- Fireplace in the great room adds warmth and charm. Explore fireplace options.
Garage & Storage Details
- Garage Bays: Accommodates up to 3 vehicles.
- Garage Type: Combination of front-entry and side-entry garage for flexible site placement.
- Storage: Mudroom, bonus closets, and attic-accessible areas included.
Outdoor Living Features
- Spacious screened porch, rear patio, and upper deck for year-round entertaining.
- Optional balcony with scenic views of the backyard landscape.
- Brick and siding exterior for low-maintenance curb appeal and modern style.
Architectural Style: Modern Suburban
This design blends suburban sophistication with clean architectural lines—perfect for families who value space, style, and comfort. Learn more about the Modern Suburban style or explore contemporary trends on ArchDaily.
Bonus Features
- Optional elevator upgrade for multi-level ease of access.
- Upper-level deck for relaxing or entertaining with a view.
- Flexible bonus room ideal for home gym, media space, or extra guest area.
Included Benefits with Every Plan
- CAD + PDF Files: Fully editable and ready for your contractor.
- Unlimited Build License: Use the plan for multiple builds—no extra fees.
- Free Foundation Changes: Choose between slab, crawlspace, or basement at no cost.
- Structural Engineering Included: Code-compliant and builder-approved.
- Lower Modification Costs: Custom changes are priced 50% less than competitors.
- View Before You Buy: Preview all architectural sheets prior to purchase.
Similar Collections You Might Love
- 6-Bedroom House Plans
- Luxury House Plans
- Plans with Recreation Rooms
- Plans with Mudrooms
- Plans with Kitchen Islands
Frequently Asked Questions
Can this plan fit on a sloped or uneven lot? Yes! It’s available with a crawlspace or slab foundation and can be adapted for various terrains.
Does this home include space for remote work? Absolutely. It includes a private office/study and bonus room ideal for a home office.
Are garage options flexible? Yes. You can choose front, side, or courtyard-entry based on your lot’s layout.
Can I modify the upper deck or screened porch? Definitely. All plans are customizable with affordable modification options. Contact us here.
Is this a good choice for multigenerational families? Yes! With 6 bedrooms, 7 baths, and ample living zones, it’s perfect for large or extended families.
Start Building Your Dream Home Today
Have questions or want to personalize your layout? Contact our design team at support@myhomefloorplans.com or fill out this quick form.
Your future house starts here—customize this Modern Suburban floor plan and bring your dream to life!
Original price was: $4,370.56.$2,354.21Current price is: $2,354.21.
999 in stock
* Please verify all details with the actual plan, as the plan takes precedence over the information shown below.
| Width | 65'-8" |
|---|---|
| Depth | 67'-4" |
| Htd SF | |
| Unhtd SF | |
| Bedrooms | |
| Bathrooms | |
| # of Floors | |
| # Garage Bays | |
| Architectural Styles | |
| Indoor Features | Attic, Basement, Bonus Room, Family Room, Fireplace, Foyer, Great Room, Mudroom, Office/Study, Open Floor Plan, Recreational Room |
| Outdoor Features | Covered Front Porch, Balcony, Patio, Screened Porch, Upper Deck |
| Bed and Bath Features | Bedrooms on First Floor, Bedrooms on Second Floor, Jack and Jill Bathroom, Owner's Suite on Second Floor, Walk-in Closet |
| Kitchen Features | |
| Garage Features | |
| Ceiling Features | |
| Structure Type | |
| Exterior Material |
No reviews yet.
10 FT+ Ceilings | 9 FT+ Ceilings | After Build Photos | Attics | Balconies | Basement Garage | Bedrooms on First and Second Floors | Bonus Rooms | Breakfast Nook | Builder Favorites | Covered Front Porch | Covered Patio | Family Room | Fireplaces | Foyer | Front Entry | Great Room | Home Plans with Mudrooms | Jack and Jill | Kitchen Island | Luxury | Modern Suburban Designs | Office/Study Designs | Open Floor Plan Designs | Owner’s Suite on Second Floor | Recreational Room | Screened Porches | Second Floor Bedroom | Side Entry Garage | Traditional | Transitional | Upper Deck | Walk-in Closet | Walk-in Pantry
20-1539 HOUSE PLAN – Impressive Modern Suburban House Floor Plan with CAD Design
- BOTH a PDF and CAD file (sent to the email provided/a copy of the downloadable files will be in your account here)
- PDF – Easily printable at any local print shop
- CAD Files – Delivered in AutoCAD format. Required for structural engineering and very helpful for modifications.
- Structural Engineering – Included with every plan unless not shown in the product images. Very helpful and reduces engineering time dramatically for any state. *All plans must be approved by engineer licensed in state of build*
Disclaimer
Verify dimensions, square footage, and description against product images before purchase. Currently, most attributes were extracted with AI and have not been manually reviewed.
My Home Floor Plans, Inc. does not assume liability for any deviations in the plans. All information must be confirmed by your contractor prior to construction. Dimensions govern over scale.


















































































