20-1540 HOUSE PLAN – Modern Craftsman House Floor Plan with 5 Bedrooms and CAD Designs
Discover a stunning 5-bedroom Craftsman house floor plan with vaulted ceilings, a large kitchen, and CAD blueprints. Perfect for modern house designs.
Modern Craftsman Home Floor Plan with 5 Bedrooms and Vaulted Ceilings
Discover this stunning 3,910 sq. ft. Craftsman-style house plan with 5 bedrooms, spacious open layout, and CAD blueprints—perfect for modern living.
This Modern Craftsman house plan offers a perfect mix of comfort and functionality. Designed for modern living, it delivers timeless charm and smart space planning.
Key Features of the Home Plan
Living Areas – Heated & Unheated
- Heated area: 3,910 sq. ft. across two stories.
- Unheated extras: Includes 1,952 sq. ft. of garage, porches, attic, and storage space.
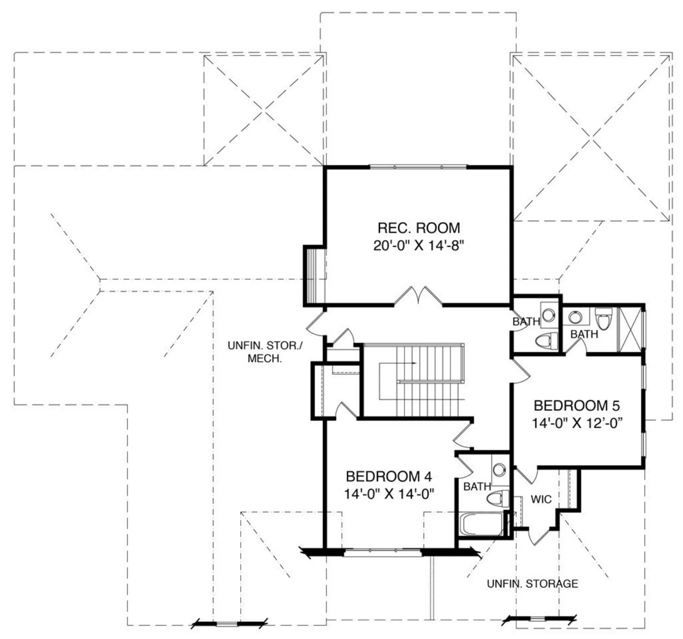
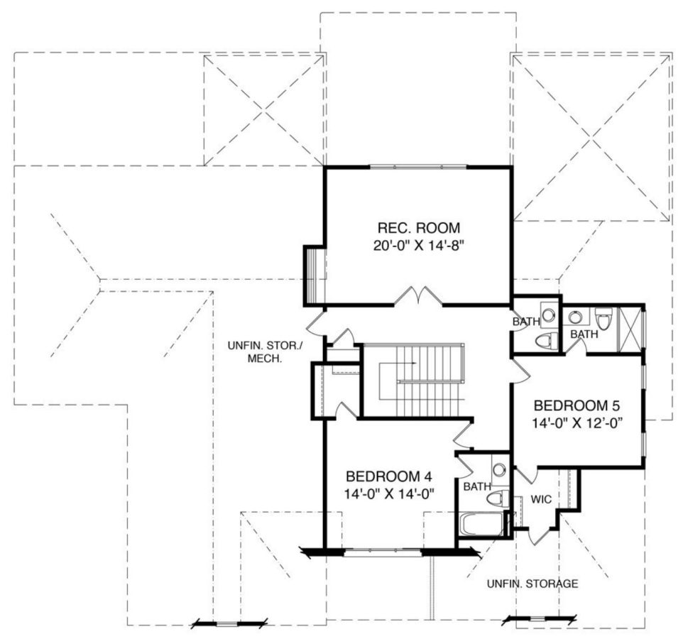
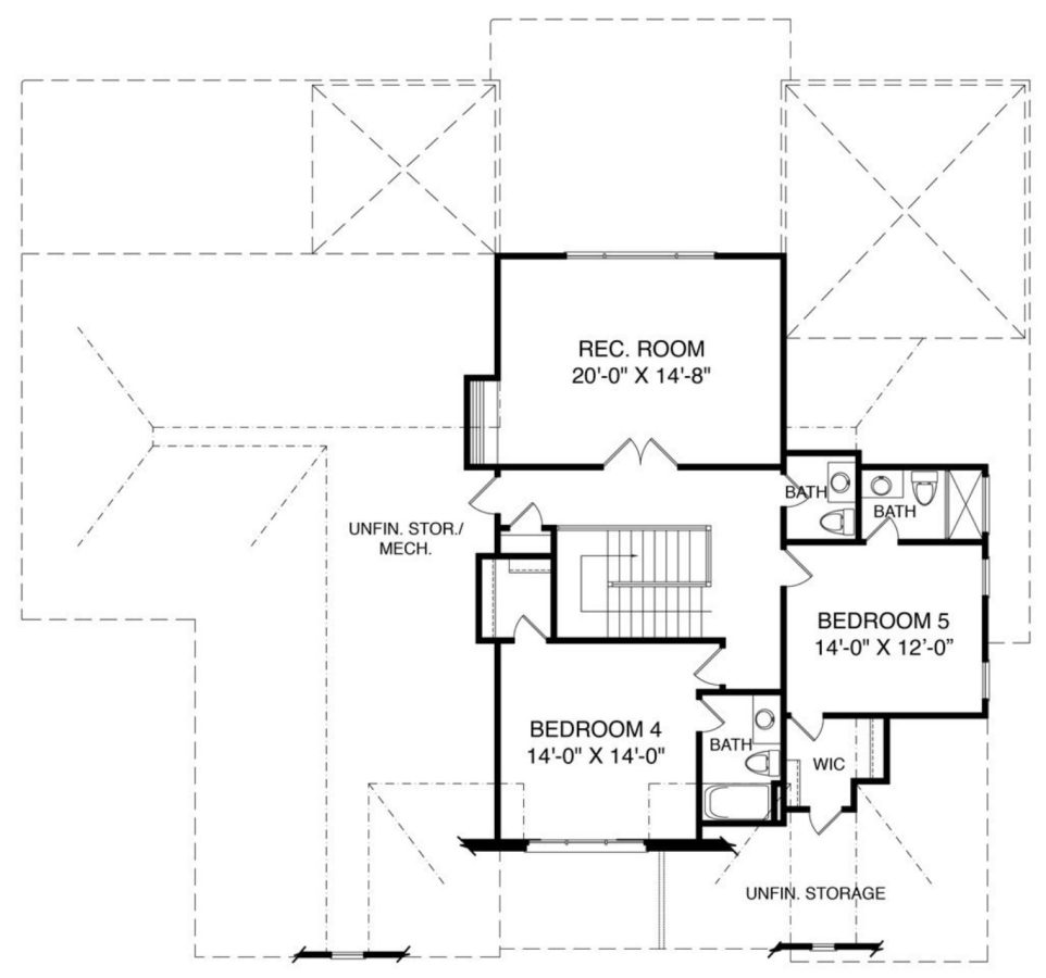
Bedrooms & Bathrooms
- 5 spacious bedrooms, including a first-floor Owner Suite with luxurious walk-in closet and en-suite bath.
- Jack and Jill bathrooms provide privacy and convenience for upstairs bedrooms.
Interior Highlights
- Vaulted ceilings create a sense of openness and architectural interest.
- Open floor plan connects the great room, kitchen, and dining spaces. View open layouts.
- Kitchen island and walk-in pantry offer everyday convenience and style. See kitchen-friendly plans.
- Fireplace adds cozy charm to the family gathering space. Browse fireplace designs.
- Bonus room, recreational room, and office/study for added flexibility and lifestyle needs.
Garage & Storage Details
- Garage Bays: 3-car garage with a mix of front and side entries.
- Garage Type: Attached garage for easy access and convenience.
- Storage: Features include attic storage, a functional mudroom, and integrated closet spaces.
Outdoor Living Features
- Covered front porch, relaxing screened porch, and uncovered deck for outdoor enjoyment.
- Craftsman-style curb appeal with brick, stone, and shingle exterior finishes. See more outdoor living options.
Architectural Style: Modern Craftsman
This design blends timeless materials and thoughtful details—perfect for families who value character and efficiency in one package. Learn more about the Modern Craftsman style or explore its roots on ArchDaily.
Bonus Features
- Dedicated office/study perfect for remote work or study space.
- Attic for seasonal storage or future expansion.
- Recreational room that can serve as a playroom, gym, or media area.
Included Benefits with Every Plan
- CAD + PDF Files: Easily editable, printable, and ready to build.
- Unlimited Build License: Build once—or 100 times—with no extra fees.
- Free Foundation Changes: Swap between slab, crawlspace, or basement.
- Structural Engineering Included: Code-compliant and professionally stamped.
- Lower Modification Costs: Up to 50% less than competitors.
- View Before You Buy: See every sheet in advance.
Similar Collections You Might Love
- 5-Bedroom House Plans
- Plans with Owner Suite on Main Floor
- Recreation Room House Plans
- Covered Back Porch Designs
- Jack and Jill Bathroom Floor Plans
Frequently Asked Questions
What’s included with this house plan? All plans come with editable CAD files, printable PDFs, unlimited-build rights, structural engineering, and free foundation changes.
Can I customize the layout? Yes! We offer fast and affordable modifications. Get a quote here.
Does this plan include a basement? Yes, a basement is included—ideal for storage or future expansion.
How many garage bays does this home have? This plan includes a 3-car garage with front and side access.
Can I preview the blueprint before purchase? Absolutely. Preview every sheet before you buy.
Start Building Your Dream Home Today
Have questions or want to personalize your plan? Contact our expert team at support@myhomefloorplans.com or fill out our form.
Your future house starts with a great plan—customize it and build with confidence!
Original price was: $2,870.56.$1,454.99Current price is: $1,454.99.
999 in stock
* Please verify all details with the actual plan, as the plan takes precedence over the information shown below.
| Width | 71'-8" |
|---|---|
| Depth | 67'-0" |
| Htd SF | |
| Unhtd SF | |
| Bedrooms | |
| Bathrooms | |
| # of Floors | |
| # Garage Bays | |
| Architectural Styles | |
| Indoor Features | Attic, Basement, Bonus Room, Family Room, Fireplace, Foyer, Great Room, Mudroom, Office/Study, Open Floor Plan, Recreational Room |
| Outdoor Features | |
| Bed and Bath Features | Bedrooms on First Floor, Bedrooms on Second Floor, Jack and Jill Bathroom, Owner's Suite on First Floor, Walk-in Closet |
| Kitchen Features | |
| Garage Features | |
| Ceiling Features | |
| Structure Type | |
| Exterior Material |
No reviews yet.
10 FT+ Ceilings | Affordable | Attics | Basement | Basement Garage | Bedrooms on First and Second Floors | Bonus Rooms | Breakfast Nook | Builder Favorites | Covered Front Porch | Craftsman | Family Room | Fireplaces | Fireplaces | First-Floor Bedrooms | Foyer | Front Entry | Great Room | Home Plans with Mudrooms | Jack and Jill | Kitchen Island | Large House Plans | Modern Suburban Designs | Office/Study Designs | Open Floor Plan Designs | Owner’s Suite on the First Floor | Recreational Room | Screened Porches | Second Floor Bedroom | Side Entry Garage | Starter Home | Traditional | Uncovered Deck | Vaulted Ceiling | Walk-in Closet | Walk-in Pantry | Workshop
20-1540 HOUSE PLAN – Modern Craftsman House Floor Plan with 5 Bedrooms and CAD Designs
- BOTH a PDF and CAD file (sent to the email provided/a copy of the downloadable files will be in your account here)
- PDF – Easily printable at any local print shop
- CAD Files – Delivered in AutoCAD format. Required for structural engineering and very helpful for modifications.
- Structural Engineering – Included with every plan unless not shown in the product images. Very helpful and reduces engineering time dramatically for any state. *All plans must be approved by engineer licensed in state of build*
Disclaimer
Verify dimensions, square footage, and description against product images before purchase. Currently, most attributes were extracted with AI and have not been manually reviewed.
My Home Floor Plans, Inc. does not assume liability for any deviations in the plans. All information must be confirmed by your contractor prior to construction. Dimensions govern over scale.


















