20-1591 HOUSE PLAN – Modern Suburban House Plan with Spacious 2-Story Design
Explore this stunning modern suburban house plan! Featuring 4 bedrooms, 3 bathrooms, a bonus room, open floor plan, CAD blueprints, and detailed designs.
Modern Suburban House Plan with 2 Stories and Flexible Layout
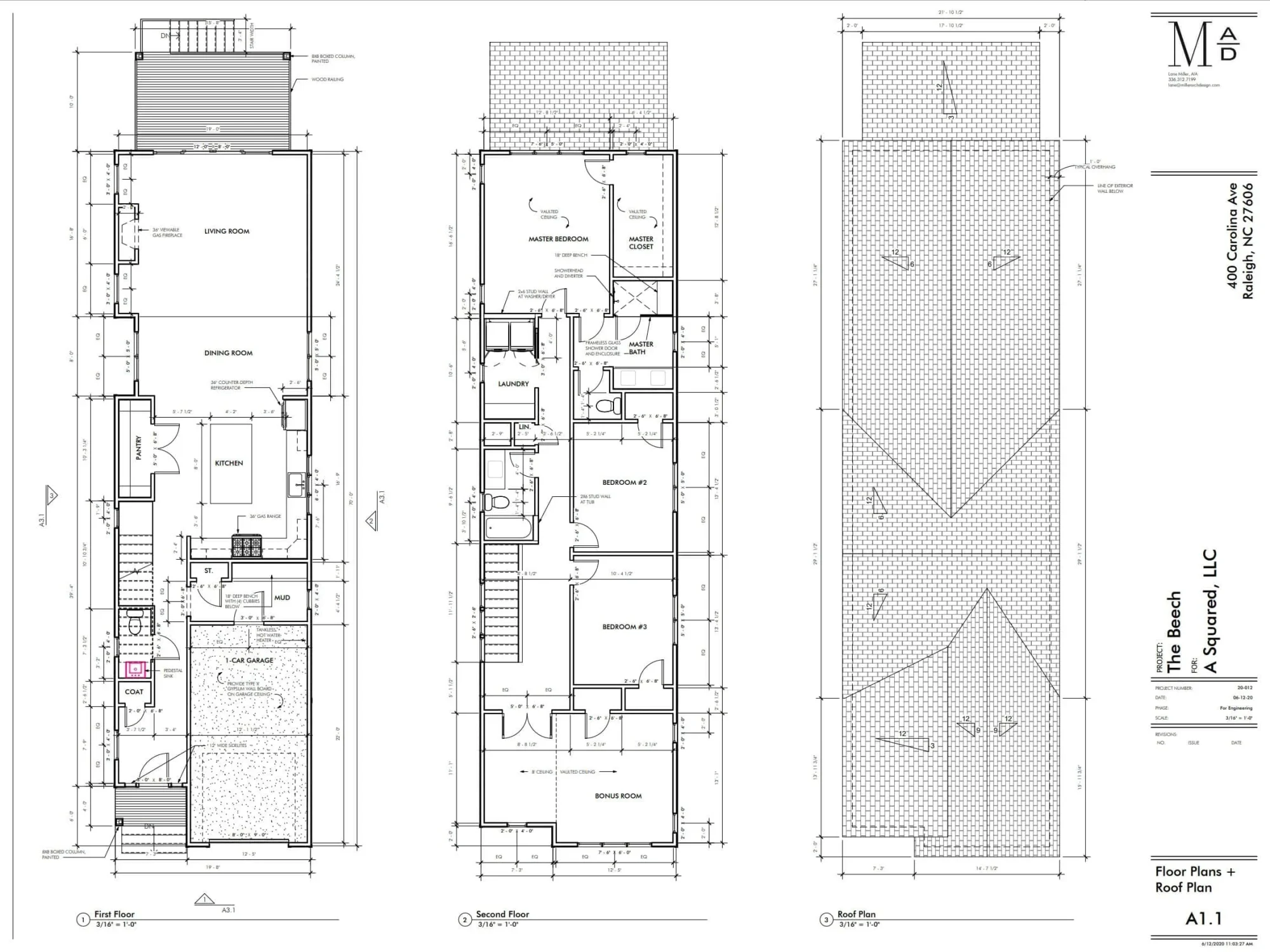
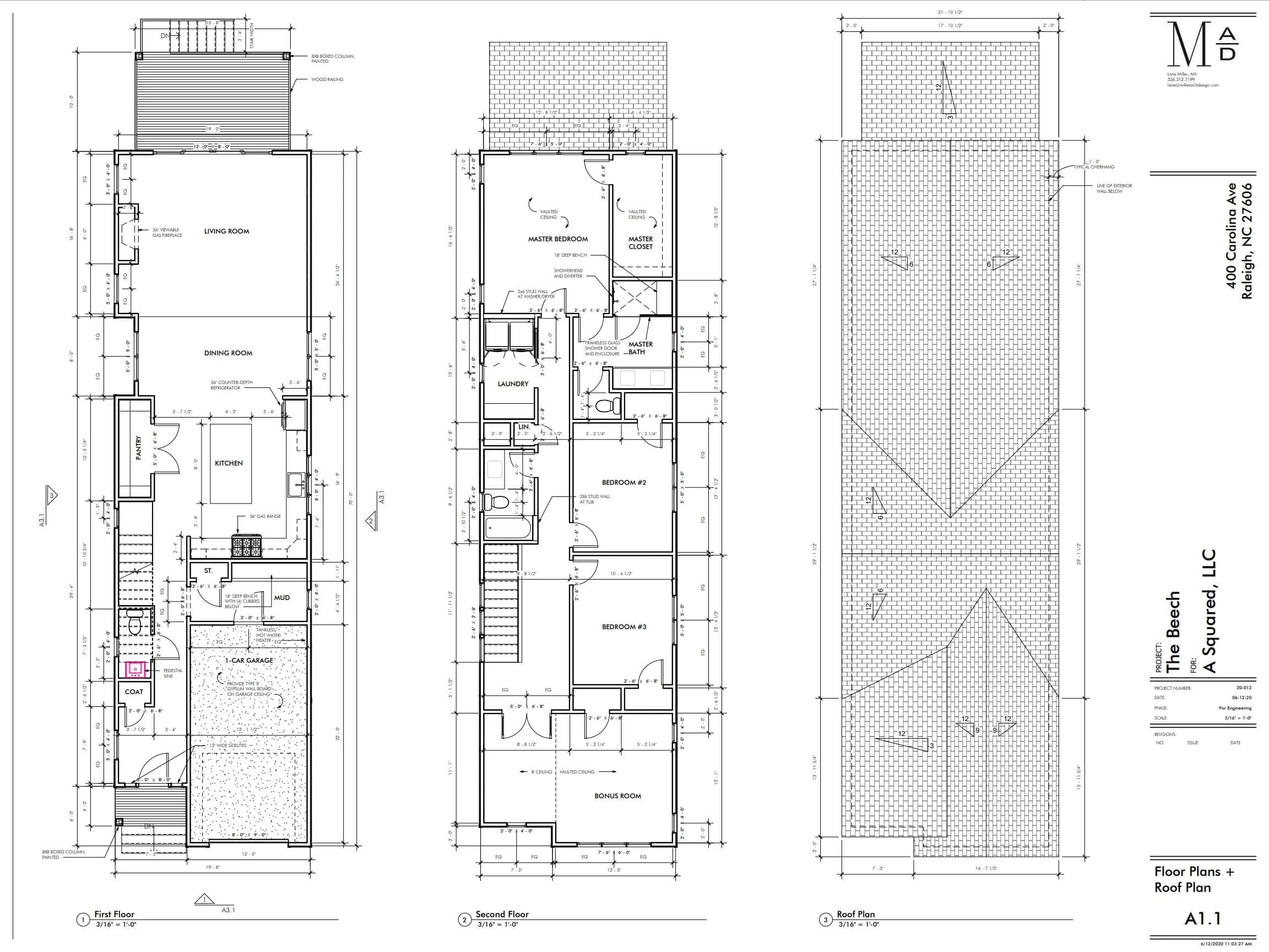
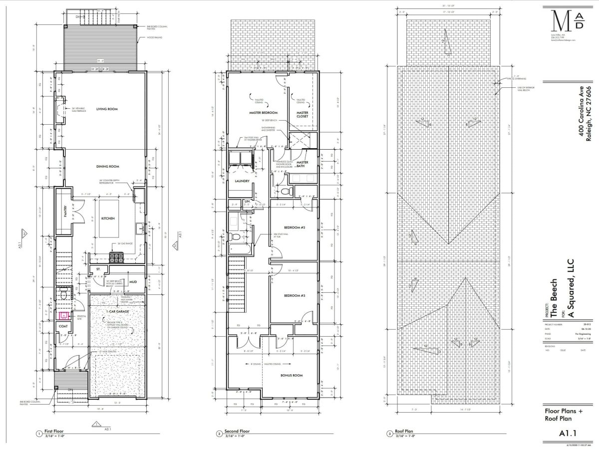
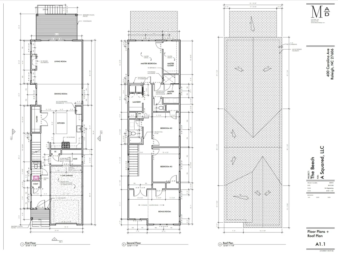
Explore this modern suburban house plan featuring 2,300 heated sq. ft., 2 stories, 4 bedrooms, open floor plan, bonus room, and included CAD blueprints.
This modern suburban house plan offers a perfect mix of comfort and functionality. Designed for growing families and modern lifestyles, it delivers spacious living and smart layout solutions for any suburban lot.
Key Features of the Home Plan
Living Areas – Heated & Unheated
- Heated area: 2,300 sq. ft. across two thoughtfully designed stories.
- Unheated extras: Includes covered porches, upper balcony, rear deck, and garage space.
Bedrooms & Bathrooms
- 4 spacious bedrooms with ample closet space, including an Owner Suite with walk-in closet.
- 3 full bathrooms designed for comfort and privacy.
Interior Highlights
- Vaulted ceilings in select areas add volume and natural light.
- Open floor plan ensures seamless flow between kitchen, living, and dining areas. View open layouts.
- Fireplace adds cozy charm to the main living space. Browse fireplace plans.
- Bonus room offers flexible space for a home office, gym, or playroom.
- Upstairs laundry room for added convenience near the bedrooms.
Garage & Storage Details
- Garage Bays: 1-car garage with front-entry design.
- Garage Type: Attached, integrated for convenience.
- Storage: Mudroom, bonus room storage, and attic potential.
Outdoor Living Features
- Covered front porch and upper balcony for relaxed outdoor enjoyment.
- Rear deck for sunny gatherings and backyard living.
- Exterior finished in modern siding with clean suburban curb appeal.
Architectural Style: Modern Suburban
This design blends modern efficiency and timeless exterior charm—perfect for families seeking a fresh and functional house design. Learn more about the Modern Suburban style or explore its inspiration at ArchDaily.
Bonus Features
- Flex room for a home office, guest room, or hobby space.
- Narrow-lot compatible design, perfect for urban or compact builds.
- Balcony off the second floor for elevated outdoor living.
Included Benefits with Every Plan
- CAD + PDF Files: Fully editable, printable, and construction-ready.
- Unlimited Build License: Build as many times as you like—no restrictions.
- Free Foundation Changes: Adapt your plan to slab, crawlspace, or basement easily.
- Structural Engineering Included: Professionally stamped and code-compliant.
- Lower Modification Costs: Up to 50% cheaper than other providers.
- View Before You Buy: Preview every sheet before purchase.
Similar Collections You Might Love
- Narrow Lot House Plans
- Plans with Upstairs Laundry
- Plans with Bonus Rooms
- Covered Porch House Plans
- House Plans with Mudrooms
Frequently Asked Questions
Can I build this plan on a narrow lot? Yes! This house is ideal for narrow or compact lots with its smart front-entry garage and compact footprint.
Is the laundry room upstairs? Yes, it’s located on the second floor for easier access to all bedrooms.
Do I get editable CAD files? Absolutely! All plans include CAD and PDF formats, ready for customization or immediate construction.
Can I see the blueprint details before purchase? Yes. Click here to preview all sheets.
Is the bonus room customizable? Of course! It can be used as an office, playroom, gym, or extra bedroom—your choice.
Start Building Your Dream Home Today
Have questions or want to personalize your plan? Contact our expert team at support@myhomefloorplans.com or fill out our form.
Your future house starts with a great plan—customize it and build with confidence!
Original price was: $3,370.56.$1,754.99Current price is: $1,754.99.
999 in stock
* Please verify all details with the actual plan, as the plan takes precedence over the information shown below.
| Width | 19'-8" |
|---|---|
| Depth | 70'-0" |
| Htd SF | |
| Bedrooms | |
| Bathrooms | |
| # of Floors | |
| # Garage Bays | |
| Architectural Styles | |
| Indoor Features | Bonus Room, Fireplace, Foyer, Living Room, Mudroom, Open Floor Plan, Upstairs Laundry Room |
| Outdoor Features | Covered Front Porch, Balcony, Covered Rear Porch, Uncovered Deck |
| Bed and Bath Features | Bedrooms on Second Floor, Jack and Jill Bathroom, Owner's Suite on Second Floor, Walk-in Closet |
| Kitchen Features | |
| Garage Features | |
| Ceiling Features | |
| Structure Type | |
| Exterior Material |
James Boyd – January 23, 2024
Budget held; no paywall surprises.
9 FT+ Ceilings | Affordable | After Build Photos | Balconies | Bonus Rooms | Covered Front Porch | Covered Rear Porches | Craftsman | Fireplaces | Foyer | Front Entry | Home Plans with Mudrooms | Jack and Jill | Kitchen Island | Large House Plans | Living Room | Medium | Modern Suburban Designs | Narrow Lot Designs | Open Floor Plan Designs | Owner’s Suite on Second Floor | Second Floor Bedroom | Starter Home | Traditional | Uncovered Deck | Upstairs Laundry Room | Vaulted Ceiling | Walk-in Closet | Walk-in Pantry
20-1591 HOUSE PLAN – Modern Suburban House Plan with Spacious 2-Story Design
- BOTH a PDF and CAD file (sent to the email provided/a copy of the downloadable files will be in your account here)
- PDF – Easily printable at any local print shop
- CAD Files – Delivered in AutoCAD format. Required for structural engineering and very helpful for modifications.
- Structural Engineering – Included with every plan unless not shown in the product images. Very helpful and reduces engineering time dramatically for any state. *All plans must be approved by engineer licensed in state of build*
Disclaimer
Verify dimensions, square footage, and description against product images before purchase. Currently, most attributes were extracted with AI and have not been manually reviewed.
My Home Floor Plans, Inc. does not assume liability for any deviations in the plans. All information must be confirmed by your contractor prior to construction. Dimensions govern over scale.


















