9-1810 HOUSE PLAN – Colonial Revival Home Plan – 4 Bed, 2,922 Sq Ft, 2 Stories
Elegant Colonial Revival home plan with Craftsman touches: 2,922 heated sq. ft., 4 bedrooms, open layout, CAD + PDF blueprints, structural engineering, and an unlimited build license.
Colonial Revival Home Plan with 2 Stories, 4 Bedrooms & Detailed CAD Blueprints
Discover this elegant Colonial Revival home with Craftsman influences (American Traditional/Transitional) featuring 2,922 heated sq. ft., 4 bedrooms, an open layout, and detailed CAD designs—ideal for builders, families, and architects.
This plan blends the symmetry and timeless curb appeal of Colonial Revival architecture with subtle Craftsman details for warmth and character. It’s designed for modern living with smart space planning and everyday functionality.
Key Features of the Home Plan
Living Areas – Heated & Unheated
- Heated area: 2,922 sq. ft. over two stories.
- Unheated extras: Screened porch, covered front porch, upper balcony.
Bedrooms & Bathrooms
- 4 total bedrooms including a second-floor Owner Suite with walk-in closet and privacy from other rooms.
- 3 full bathrooms, including one on the main level for convenience.
Interior Highlights
- Open floor plan connects kitchen, dining, and family room seamlessly. Explore more open plans.
- Recreational room upstairs offers flexible use for media, hobbies, or kids’ space.
- Formal dining area perfect for hosting dinners or celebrations.
- Second-floor laundry near bedrooms for added convenience. See similar layouts.
Garage & Storage Details
- Garage Bays: Fits standard 2-car setup (buyer can customize if needed).
- Garage Type: Side-entry or front-load options available during modification.
- Storage: Walk-in closets, optional attic space, and linen storage throughout.
Outdoor Living Features
- Screened-in porch and upper-level balcony for year-round outdoor relaxation.
- Covered front porch adds traditional curb appeal. Explore front porch plans.
- Stone and brick façade for long-lasting beauty and value.
Architectural Style: Colonial Revival with Craftsman Influences (American Traditional/Transitional)
This design showcases balanced massing, gabled rooflines, divided-light windows with shutters, and warm materials—hallmarks of Colonial Revival—refined with Craftsman accents for texture and depth. Learn more about Traditional styles in our Traditional House Plans collection. For background reading on Craftsman origins, see this overview on ArchDaily.
Bonus Features
- Recreational room upstairs ideal for games, media, or work-from-home setup.
- Foyer entry creates a grand first impression.
- Space-efficient layout for narrow or mid-size lots.
Included Benefits with Every Plan
- CAD + PDF Files: Easily editable, printable, and ready to build.
- Unlimited Build License: Build once—or 100 times—with no extra fees.
- Free Foundation Changes: Swap between slab, crawlspace, or basement.
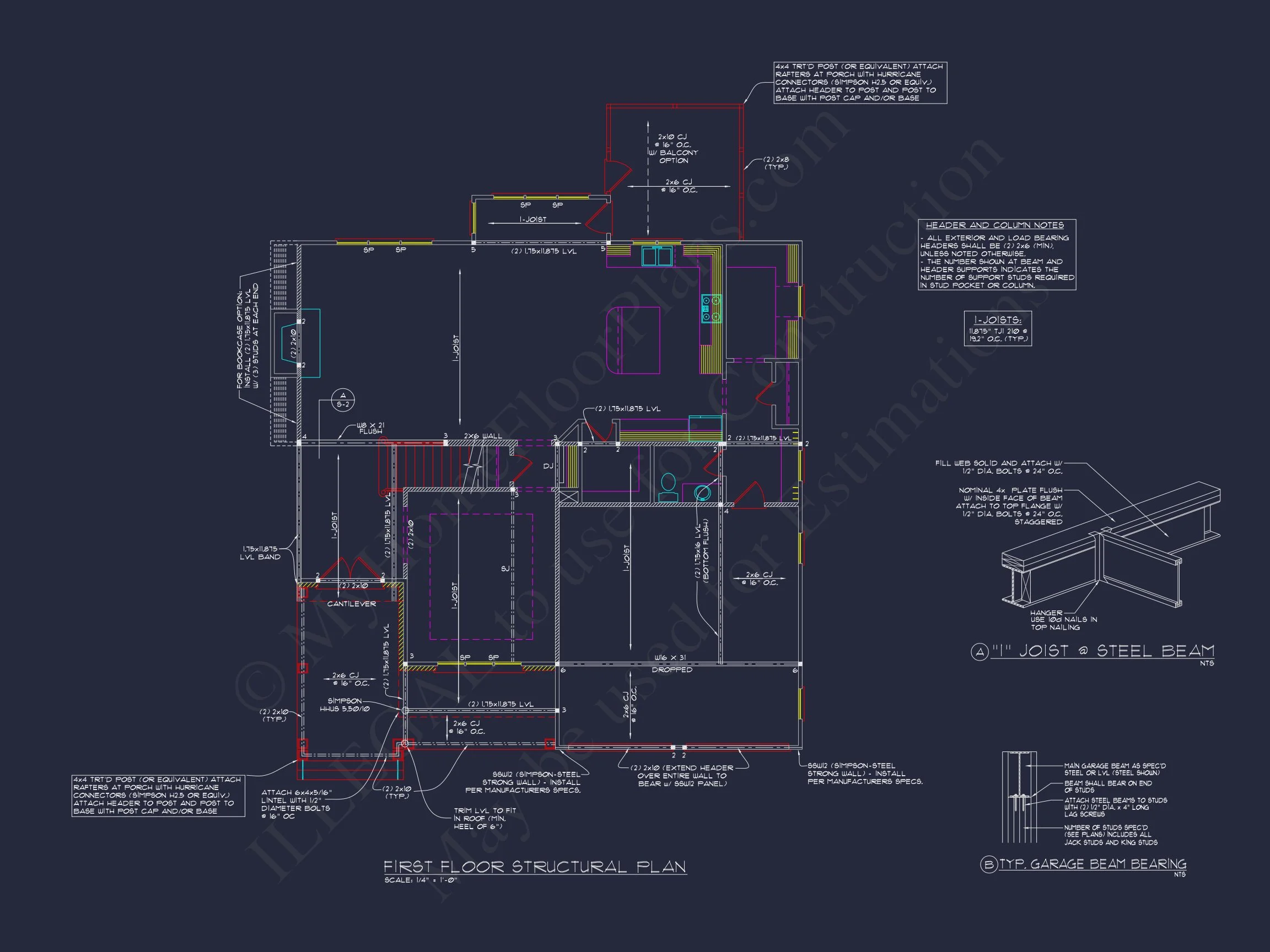
- Structural Engineering Included: Code-compliant and professionally stamped.
- Lower Modification Costs: Up to 50% less than competitors.
- View Before You Buy: See every sheet in advance.
Similar Collections You Might Love
- Traditional House Plans
- Plans with Laundry Upstairs
- Open Floor Plan House Designs
- Covered Back Porch Plans
- Plans for Narrow Lots
Frequently Asked Questions
Does this house plan include CAD files? Yes! You’ll receive editable CAD files and print-ready PDFs with your purchase.
Can I move the Owner Suite to the first floor? Absolutely. Our team can customize the layout to match your lifestyle—just request a quote.
Is this plan ideal for families? Definitely. With 4 bedrooms, bonus room, and an open-concept design, it’s perfect for growing or multigenerational families.
Can I preview the blueprints before purchase? Yes. You can see all sheets before buying.
Are outdoor living features customizable? Yes. Porches and balconies can be adjusted or extended to suit your lot and vision.
Start Building Your Dream Home Today
Have questions or want to personalize your plan? Contact our expert team at support@myhomefloorplans.com or fill out our form.
Your future house starts with a great plan—customize it and build with confidence!
Original price was: $2,070.56.$1,134.99Current price is: $1,134.99.
999 in stock
* Please verify all details with the actual plan, as the plan takes precedence over the information shown below.
| Architectural Styles | |
|---|---|
| Width | 44'-4" |
| Depth | 57'-8" |
| Htd SF | |
| Unhtd SF | |
| Bedrooms | |
| Bathrooms | |
| # of Floors | |
| # Garage Bays | |
| Indoor Features | Attic, Family Room, Foyer, Open Floor Plan, Recreational Room, Upstairs Laundry Room |
| Outdoor Features | Covered Front Porch, Balcony, Covered Rear Porch, Screened Porch |
| Bed and Bath Features | Bedrooms on Second Floor, Owner's Suite on Second Floor, Walk-in Closet |
| Kitchen Features | |
| Garage Features | |
| Condition | New |
| Ceiling Features | |
| Structure Type | |
| Exterior Material |
Carolyn Steele – March 8, 2025
Digital format perfect for remote collaboration.
9 FT+ Ceilings | Affordable | Attics | Balconies | Breakfast Nook | Builder Favorites | Covered Front Porch | Covered Rear Porches | Craftsman | Family Room | Foyer | Front Entry | Kitchen Island | Medium | Open Floor Plan Designs | Owner’s Suite on Second Floor | Recreational Room | Screened Porches | Second Floor Bedroom | Traditional | Upstairs Laundry Room | Walk-in Closet
9-1810 HOUSE PLAN – Colonial Revival Home Plan – 4 Bed, 2,922 Sq Ft, 2 Stories
- BOTH a PDF and CAD file (sent to the email provided/a copy of the downloadable files will be in your account here)
- PDF – Easily printable at any local print shop
- CAD Files – Delivered in AutoCAD format. Required for structural engineering and very helpful for modifications.
- Structural Engineering – Included with every plan unless not shown in the product images. Very helpful and reduces engineering time dramatically for any state. *All plans must be approved by engineer licensed in state of build*
Disclaimer
Verify dimensions, square footage, and description against product images before purchase. Currently, most attributes were extracted with AI and have not been manually reviewed.
My Home Floor Plans, Inc. does not assume liability for any deviations in the plans. All information must be confirmed by your contractor prior to construction. Dimensions govern over scale.



















