11-2020 HOUSE PLAN – Efficient House Plan with 5 Bedrooms, CAD Designs & Blueprint
Explore a 5-bedroom house plan featuring 1459 sq. ft., CAD designs, and a functional blueprint. Ideal for architects, designers, and house builders seeking simplicity.
Efficient 5-Bedroom House Plan with CAD Files & Functional Blueprint
Explore this 1,459 sq. ft. single-story house plan with 5 bedrooms, 2 baths, and smart CAD blueprints—ideal for families and builders seeking a streamlined design.
This Traditional Ranch-style house plan offers a perfect mix of comfort and simplicity. Designed for modern families, it delivers space-efficient design and practical features across a single-level layout.
Key Features of the Home Plan
Living Areas – Heated & Unheated
- Heated area: 1,459 sq. ft. over one story.
- Unheated extras: Covered front porch and outdoor deck for added living space.
Bedrooms & Bathrooms
- 5 well-sized bedrooms, including a private Owner Suite on the main floor.
- 2 full bathrooms, conveniently positioned for ease and privacy.
Interior Highlights
- Open floor plan integrates living, kitchen, and dining spaces. Browse similar layouts.
- Breakfast nook offers a cozy spot for casual meals.
- Split-bedroom design enhances privacy between the Owner Suite and additional bedrooms.
- 8-foot ceilings throughout for a light and airy feel.
Garage & Storage Details
- Garage Bays: Optional—can be customized based on your needs.
- Garage Type: Flexible space for future garage addition or carport. View carport-compatible plans.
- Storage: Designed with efficiency in mind, leaving room for closets and optional attic access.
Outdoor Living Features
- Covered front porch perfect for relaxing afternoons or evening chats.
- Rear deck area offers space for grilling or enjoying your backyard view.
Architectural Style: Traditional Ranch
This design blends timeless materials like brick, siding, and shingles—creating a durable exterior with classic curb appeal. Learn more about the Traditional house style or read about home styles throughout history.
Bonus Features
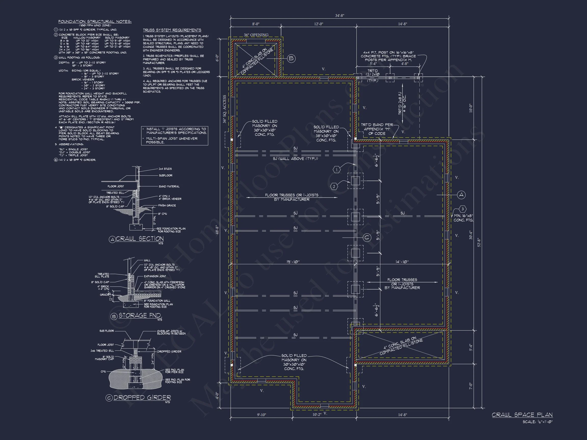
- Crawlspace foundation for easy access and cost-effective build.
- Compact footprint ideal for narrow or urban lots. Explore narrow lot options.
- Low-maintenance exterior ensures long-term savings and durability.
Included Benefits with Every Plan
- CAD + PDF Files: Instantly downloadable, editable, and build-ready.
- Unlimited Build License: Construct this house as many times as you like—no extra fees.
- Free Foundation Changes: Easily switch between crawlspace, slab, or basement. Learn about foundation options.
- Structural Engineering Included: Every plan is code-compliant and professionally reviewed.
- Lower Modification Costs: Save up to 50% compared to other house plan providers.
- View Before You Buy: Preview every sheet before purchasing.
Similar Collections You Might Love
- Small House Plans
- 5 Bedroom House Plans
- Ranch House Plans
- Plans with First Floor Bedrooms
- Simple House Plans
Frequently Asked Questions
Is this house plan affordable to build? Yes! Its single-story layout, crawlspace foundation, and simple roofline make it cost-effective for builders and homeowners alike.
Can I add a garage later? Absolutely. The layout allows flexibility for adding a detached garage or carport. View detached garage plans.
Are customization options available? Yes—modifications are fast, affordable, and handled by professionals. Request a quote here.
Is this plan ideal for narrow or standard lots? Yes. With its compact size and efficient layout, it fits perfectly on most standard or narrow lot dimensions.
Can I preview the architectural sheets? Definitely. View every sheet before purchasing so you know exactly what you’re getting.
Start Building Your Dream Home Today
Have questions or want to personalize this design? Reach out to our support team at support@myhomefloorplans.com or contact us here.
Your dream starts with a smart, efficient blueprint—build confidently and affordably with My Home Floor Plans!
Original price was: $2,070.56.$1,134.99Current price is: $1,134.99.
999 in stock
* Please verify all details with the actual plan, as the plan takes precedence over the information shown below.
| Width | 34'-9" |
|---|---|
| Depth | 52'-8" |
| Htd SF | |
| Unhtd SF | |
| Bedrooms | |
| Bathrooms | |
| # of Floors | |
| # Garage Bays | |
| Architectural Styles | |
| Indoor Features | |
| Outdoor Features | |
| Bed and Bath Features | Bedrooms on First Floor, Owner's Suite on First Floor, Split Bedrooms |
| Kitchen Features | |
| Ceiling Features | |
| Structure Type | |
| Exterior Material |
Michael Conway – April 5, 2025
Lowest price online and still received structural, options, and unlimited buildscant beat that.
11-2020 HOUSE PLAN – Efficient House Plan with 5 Bedrooms, CAD Designs & Blueprint
- BOTH a PDF and CAD file (sent to the email provided/a copy of the downloadable files will be in your account here)
- PDF – Easily printable at any local print shop
- CAD Files – Delivered in AutoCAD format. Required for structural engineering and very helpful for modifications.
- Structural Engineering – Included with every plan unless not shown in the product images. Very helpful and reduces engineering time dramatically for any state. *All plans must be approved by engineer licensed in state of build*
Disclaimer
Verify dimensions, square footage, and description against product images before purchase. Currently, most attributes were extracted with AI and have not been manually reviewed.
My Home Floor Plans, Inc. does not assume liability for any deviations in the plans. All information must be confirmed by your contractor prior to construction. Dimensions govern over scale.












