12-2506 HOUSE PLAN -Traditional Colonial Home Plan – 3-Bed, 2.5-Bath, 2,312 SF
Traditional Colonial and New American house plan with siding and stone exterior • 3 bed • 2.5 bath • 2,312 SF. Open-concept layout, covered porch, first-floor owner suite. Includes CAD+PDF + unlimited build license.
Traditional Colonial Home Plan with New American Details
Experience timeless symmetry and modern comfort in this 2,312 sq. ft. Traditional Colonial home plan with a covered porch, spacious garage, and family-oriented floor plan.
This Traditional Colonial-style house plan showcases an elegant two-story façade enhanced by stone accents and horizontal siding, capturing the essence of refined suburban living. Designed with today’s family in mind, the plan offers spacious interiors, an open flow, and a layout that blends classical charm with contemporary convenience.
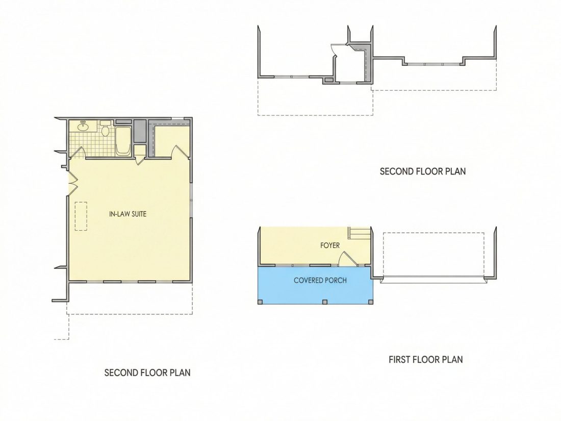
Architectural Overview
The home features a symmetrical front elevation with dual gables, black shutters, and a balanced window layout typical of Colonial heritage. The New American influence is reflected in its open-concept interiors, efficient circulation, and functional amenities suited for modern families.
Key Specifications
- Total Heated Area: 2,312 sq. ft.
- Stories: 2
- Bedrooms: 3
- Bathrooms: 2 full + 1 half bath
- Garage: 2-car attached
Main Level Design
The main floor combines formality with flexibility. A covered front porch welcomes guests into a bright foyer that opens to the main living area. The open kitchen, dining, and family room configuration encourages togetherness and flow. The kitchen includes a central island, walk-in pantry, and direct access to the rear porch for easy outdoor dining.
The owner’s suite on the main floor includes a walk-in closet and ensuite bath with dual vanities and a soaking tub, offering privacy and comfort for long-term living.
Upper Level Features
- Two spacious secondary bedrooms with large closets and ample natural light.
- Shared full bath with double sinks for convenience.
- A flexible recreational room perfect for gaming, study, or a guest suite conversion.
Exterior Materials & Detailing
- Siding: Durable horizontal lap siding complemented by shake accents.
- Stone veneer: Adds texture and grounding to the foundation line.
- Roof: Asphalt shingles with architectural pitch and overhangs.
- Windows: Classic six-over-six grid with shutters for authentic Colonial balance.
Outdoor Living Spaces
The covered front porch exudes curb appeal and charm, while the rear porch extends living space outdoors. These areas offer the perfect blend of traditional beauty and functional outdoor enjoyment.
Modern Functionality Meets Classic Design
This plan merges traditional Colonial principles—symmetry, simplicity, and balance—with today’s demand for open layouts, energy efficiency, and seamless indoor-outdoor living. The New American influence adds a sense of warmth and accessibility that makes the design equally ideal for growing families or downsizers who want timeless appeal.
Included Plan Package Benefits
- Editable CAD + PDF Files for instant access and customization.
- Unlimited Build License—build as many times as desired with no additional fee.
- Structural Engineering Included for compliance and peace of mind.
- Free foundation option changes—choose slab, crawlspace, or basement.
- Lower modification costs compared to competitors.
Interior Highlights
- Spacious great room with fireplace focal point.
- Designer kitchen with island and walk-in pantry.
- Dedicated laundry and mudroom adjacent to the garage.
- Owner suite with soaking tub and walk-in closet.
- Second-story recreation or media room for flexible use.
Energy Efficiency and Build Quality
Built with precision, this home supports energy-conscious construction through efficient wall framing, insulated windows, and mechanical layouts. The result is a beautiful, sustainable residence that performs well in any climate.
Learn More About Colonial Architecture
To discover how Colonial architecture has influenced American homebuilding and how it continues to inspire modern design, visit ArchDaily for in-depth architectural case studies.
Similar House Plan Collections
- Traditional House Plans
- New American House Plans
- House Plans with Owner Suites on Main
- Open Floor Plan Designs
Frequently Asked Questions
What’s included? Each purchase includes editable CAD + PDF files, structural engineering, and unlimited build rights.
Can the plan be customized? Yes—layouts, elevations, and foundations can be modified to fit your preferences.
How large is the home? The total heated living space is 2,312 sq. ft. across two stories.
What makes this plan unique? It merges Colonial symmetry with New American practicality, offering both style and efficiency.
Start Building Your Dream Home
Contact our team at MyHomeFloorPlans.com to get started customizing this design. With CAD + PDF files and an unlimited build license, you have full creative freedom to make it your own.
Original price was: $2,470.56.$1,254.99Current price is: $1,254.99.
999 in stock
* Please verify all details with the actual plan, as the plan takes precedence over the information shown below.
| Architectural Styles | |
|---|---|
| Width | 38'-0" |
| Depth | 52'-0" |
| Htd SF | |
| Unhtd SF | |
| Bedrooms | |
| Bathrooms | |
| # of Floors | |
| # Garage Bays | |
| Indoor Features | Bonus Room, Foyer, Living Room, Open Floor Plan, Recreational Room |
| Outdoor Features | |
| Bed and Bath Features | Bedrooms on Second Floor, Owner's Suite on First Floor, Walk-in Closet |
| Kitchen Features | |
| Garage Features | |
| Condition | New |
| Ceiling Features | |
| Structure Type | |
| Exterior Material |
Alexander Brown – June 8, 2024
We experimented with different roof accents directly in CAD, proving the plans are truly customizable without hiring a whole new architect.
9 FT+ Ceilings | Affordable | Bonus Rooms | Breakfast Nook | Colonial | Covered Front Porch | Covered Rear Porches | Detached | Foyer | Front Entry | Kitchen Island | Living Room | Medium | Narrow Lot Designs | Open Floor Plan Designs | Owner’s Suite on the First Floor | Recreational Room | Second Floor Bedroom | Starter Home | Traditional | Walk-in Closet | Walk-in Pantry
12-2506 HOUSE PLAN -Traditional Colonial Home Plan – 3-Bed, 2.5-Bath, 2,312 SF
- BOTH a PDF and CAD file (sent to the email provided/a copy of the downloadable files will be in your account here)
- PDF – Easily printable at any local print shop
- CAD Files – Delivered in AutoCAD format. Required for structural engineering and very helpful for modifications.
- Structural Engineering – Included with every plan unless not shown in the product images. Very helpful and reduces engineering time dramatically for any state. *All plans must be approved by engineer licensed in state of build*
Disclaimer
Verify dimensions, square footage, and description against product images before purchase. Currently, most attributes were extracted with AI and have not been manually reviewed.
My Home Floor Plans, Inc. does not assume liability for any deviations in the plans. All information must be confirmed by your contractor prior to construction. Dimensions govern over scale.
























