12-2612 HOUSE PLAN – Spacious House Plan with 2 Floors, 5 Bedrooms, and 3-Car Garage
Explore this 2-story house plan featuring 5 bedrooms, 4 baths, and a 3-car garage. Ideal for families, this blueprint offers modern CAD designs for builders.
Spacious 2-Story House Plan with 5 Bedrooms and 3-Car Garage
Explore this stunning 2-story house design featuring 4,500 heated sq. ft., 5 bedrooms, 4 baths, and a 3-car garage—perfect for families and builders alike. Includes editable CAD files and full blueprints.
This traditional-style house plan offers a perfect mix of comfort and functionality. Designed for modern living, it delivers timeless charm and smart space planning.
Key Features of the Home Plan
Living Areas – Heated & Unheated
- Heated area: 4,500 sq. ft. across two spacious levels.
- Unheated extras: Includes 1,000 sq. ft. of space for garage, porches, or storage flexibility.
Bedrooms & Bathrooms
- 5 spacious bedrooms, including a luxurious Owner Suite on the second floor for added privacy.
- 4 full bathrooms with a thoughtful layout—ideal for families or guests.
Interior Highlights
- Vaulted ceilings enhance openness and sophistication.
- Open floor plan seamlessly links kitchen, dining, and living. View open layouts.
- Kitchen island, butler’s pantry, and breakfast nook provide function and flow.
- Fireplace in the great room adds cozy ambiance. Browse fireplace plans.
Garage & Storage Details
- Garage Bays: 3-car garage with generous space for vehicles and tools.
- Garage Type: Front-entry for suburban or urban compatibility.
- Storage: Mudroom, bonus room, and extra closets for organized living.
Outdoor Living Features
- Covered front porch, rear porch, and patio offer ideal spots for relaxing or entertaining.
- Durable brick and siding exterior delivers curb appeal with long-lasting charm.
Architectural Style: Traditional
This design blends timeless materials and thoughtful details—perfect for families who value character and efficiency in one package. Learn more about the Traditional style or explore its roots on ArchDaily.
Bonus Features
- Recreational room ideal for family movie nights, games, or a home gym.
- Bonus room and flex space can be tailored for office, hobby room, or additional sleeping quarters.
- Dedicated mudroom keeps daily messes contained and organized.
Included Benefits with Every Plan
- CAD + PDF Files: Easily editable, printable, and ready to build.
- Unlimited Build License: Build once—or 100 times—with no extra fees.
- Free Foundation Changes: Swap between slab, crawlspace, or basement.
- Structural Engineering Included: Code-compliant and professionally stamped.
- Lower Modification Costs: Up to 50% less than competitors.
- View Before You Buy: See every sheet in advance.
Similar Collections You Might Love
- 5 Bedroom House Plans
- Plans with Recreation Rooms
- Covered Back Porch House Plans
- Plans with Mudrooms
- Kitchen Island House Plans
Frequently Asked Questions
What’s included with this house plan? All plans come with CAD files, printable PDFs, structural engineering, unlimited-build rights, and foundation flexibility.
Can I customize the layout? Yes! We offer fast, affordable modifications to fit your exact needs. Request a quote here.
Is this house plan family-friendly? Absolutely—multiple bedrooms, a great room, bonus spaces, and a flexible kitchen make this layout ideal for large or growing families.
Does this plan come with a second-floor Owner Suite? Yes. The private second-floor Owner Suite offers quiet separation from main living areas.
Can I preview the architectural drawings? Of course. You can view all sheets before you buy.
Start Building Your Dream Home Today
Have questions or want to personalize your plan? Contact our expert team at support@myhomefloorplans.com or fill out our form.
Your future house starts with a great plan—customize it and build with confidence!
Original price was: $3,370.56.$1,754.99Current price is: $1,754.99.
999 in stock
* Please verify all details with the actual plan, as the plan takes precedence over the information shown below.
| Width | 50'-0" |
|---|---|
| Depth | 49'-6" |
| Htd SF | |
| Bedrooms | |
| Bathrooms | |
| # of Floors | |
| # Garage Bays | |
| Architectural Styles | |
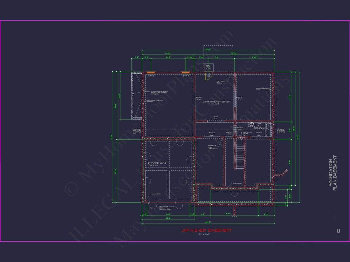
| Indoor Features | Basement, Bonus Room, Fireplace, Foyer, Great Room, Mudroom, Open Floor Plan, Recreational Room |
| Outdoor Features | |
| Bed and Bath Features | Bedrooms on Second Floor, Owner's Suite on Second Floor, Walk-in Closet |
| Kitchen Features | |
| Garage Features | |
| Ceiling Features | |
| Structure Type | |
| Exterior Material |
No reviews yet.
9 FT+ Ceilings | Basement Garage | Bonus Rooms | Breakfast Nook | Builder Favorites | Butler’s Pantry | Butler’s Pantry | Classic Suburban | Covered Front Porch | Covered Patio | Covered Rear Porches | Craftsman | Fireplaces | Foyer | Front Entry | Great Room | Home Plans with Mudrooms | Kitchen Island | Large House Plans | Open Floor Plan Designs | Oversized Designs | Owner’s Suite on Second Floor | Recreational Room | Second Floor Bedroom | Smooth & Conventional | Traditional | Vaulted Ceiling | Walk-in Closet
12-2612 HOUSE PLAN – Spacious House Plan with 2 Floors, 5 Bedrooms, and 3-Car Garage
- BOTH a PDF and CAD file (sent to the email provided/a copy of the downloadable files will be in your account here)
- PDF – Easily printable at any local print shop
- CAD Files – Delivered in AutoCAD format. Required for structural engineering and very helpful for modifications.
- Structural Engineering – Included with every plan unless not shown in the product images. Very helpful and reduces engineering time dramatically for any state. *All plans must be approved by engineer licensed in state of build*
Disclaimer
Verify dimensions, square footage, and description against product images before purchase. Currently, most attributes were extracted with AI and have not been manually reviewed.
My Home Floor Plans, Inc. does not assume liability for any deviations in the plans. All information must be confirmed by your contractor prior to construction. Dimensions govern over scale.
































