13-1314 HOUSE PLAN – Spacious House Floor Plan with Blueprints and Modern Designs
Explore this spacious 3-bedroom house design with modern blueprints, CAD architecture, and versatile floor plans featuring 1.5 stories, 3 bathrooms, and a 3-car garage.
Spacious Home Floor Plan with Blueprints and Modern Designs
Explore this spacious 3-bedroom house design with 3,367 heated sq. ft., 1.5 stories, versatile blueprints, and a 3-car garage—includes CAD files and modern features.
This spacious home floor plan offers the perfect blend of style, comfort, and flexibility. Designed for modern living, it includes thoughtful layouts, elegant details, and built-in functionality to suit families, designers, or individual homeowners.
Key Features of the Home Plan
Living Areas – Heated & Unheated
- Heated area: 3,367 sq. ft. across 1.5 levels of efficient, livable space.
- Unheated extras: 1,050 sq. ft. including porches, patio, and a large 3-car garage.
Bedrooms & Bathrooms
- 3 generously sized bedrooms, including a luxurious first-floor Owner Suite with a large walk-in closet.
- 3 full bathrooms, including a Jack-and-Jill bath connecting the secondary bedrooms for convenience and privacy.
Interior Highlights
- Vaulted ceilings and tray accents enhance space and light throughout.
- Open floor plan unites the foyer, great room, dining area, and kitchen for seamless flow. View open layouts.
- Chef-inspired kitchen with a walk-in pantry, center island, and cozy breakfast nook.
- Recreational room upstairs adds space for entertainment, hobbies, or a kids’ play area. Explore recreation room layouts.
- Dedicated office or study room—perfect for remote work or focused productivity. See home office designs.
Garage & Storage Details
- Garage Bays: Oversized 3-car garage for vehicles, tools, and gear.
- Garage Type: Attached with side-entry for improved curb appeal.
- Storage: Unfinished attic area, mudroom lockers, and extra closets throughout.
Outdoor Living Features
- Covered front and rear porches create peaceful outdoor living zones.
- Rear patio expands the entertainment space—perfect for grilling or relaxing.
- Durable brick and shingle exterior for classic charm and low maintenance. Explore covered porch options.
Architectural Style: Traditional Craftsman
This plan blends classic Craftsman architecture with modern suburban living, giving you the best of both worlds. Enjoy timeless exterior features, functional interiors, and smart zoning throughout. Learn more about the Traditional Craftsman style or explore its roots on ArchDaily.
Bonus Features
- Private office tucked near the foyer for quiet productivity.
- Recreation loft and upstairs flex space for gaming, gym, or guest zone.
- Spacious mudroom directly off the garage entry to keep clutter contained.
Included Benefits with Every Plan
- CAD + PDF Files: Editable and ready-to-build with full construction detail.
- Unlimited Build License: Build as many times as you want—no restrictions.
- Free Foundation Changes: Easily switch between slab, crawlspace, or basement. Learn more here.
- Structural Engineering Included: Professionally stamped and code-compliant.
- Lower Modification Costs: Save up to 50% versus competitors. Request a change.
- View Before You Buy: See every sheet before committing.
Similar Collections You Might Love
- 3-Bedroom House Plans
- House Plans with Mudrooms
- Plans with Walk-In Pantries
- Plans with Kitchen Islands
- House Plans with Spacious Laundry Rooms
Frequently Asked Questions
What’s included with this house plan? Each plan comes with editable CAD files, printable PDFs, an unlimited build license, structural engineering, and foundation change flexibility.
Can I customize the layout? Absolutely! We specialize in affordable customizations. Get a free quote for any modification.
Is this a good fit for a growing family? Yes, the separate wings, open spaces, and bonus rooms offer excellent flexibility for families with children or multigenerational needs.
How many garage bays are included? This plan includes an oversized 3-car garage for extra vehicle or storage space.
Can I see the blueprints before I buy? Yes! Preview every sheet here before purchase.
Start Building Your Dream Home Today
Ready to turn this spacious home floor plan into reality? Reach out to our friendly team at support@myhomefloorplans.com or contact us here for support, quotes, and custom options.
With expert-designed blueprints and unbeatable included benefits—your dream house starts here!
Original price was: $2,870.56.$1,454.99Current price is: $1,454.99.
999 in stock
* Please verify all details with the actual plan, as the plan takes precedence over the information shown below.
| Architectural Styles | |
|---|---|
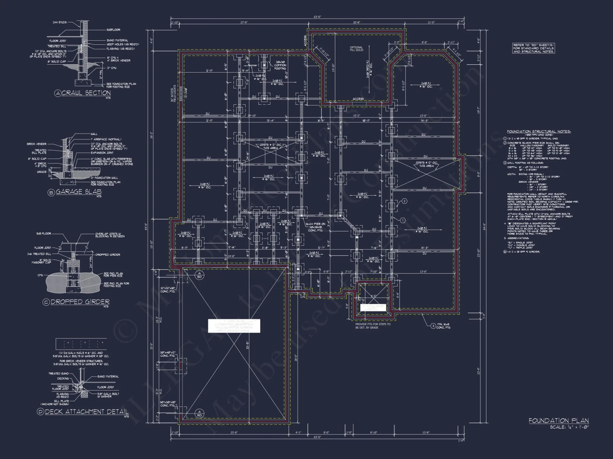
| Width | 63'-0" |
| Depth | 84'-6" |
| Htd SF | |
| Unhtd SF | |
| Bedrooms | |
| Bathrooms | |
| # of Floors | |
| # Garage Bays | |
| Indoor Features | Downstairs Laundry Room, Family Room, Foyer, Living Room, Mudroom, Office/Study, Open Floor Plan, Recreational Room |
| Outdoor Features | |
| Bed and Bath Features | Bedrooms on First Floor, Jack and Jill Bathroom, Owner's Suite on First Floor, Split Bedrooms, Walk-in Closet |
| Kitchen Features | |
| Garage Features | |
| Ceiling Features | |
| Structure Type | |
| Exterior Material |
No reviews yet.
10 FT+ Ceilings | 9 FT+ Ceilings | Bedrooms on First and Second Floors | Breakfast Nook | Covered Front Porch | Covered Patio | Covered Rear Porches | Designer Favorite | Downstairs Laundry Room | Family Room | Foyer | Front Entry | Home Plans with Mudrooms | Jack and Jill | Kitchen Island | Large House Plans | Living Room | Modern Suburban Designs | Office/Study Designs | Open Floor Plan Designs | Oversized Designs | Owner’s Suite on the First Floor | Recreational Room | Side Entry Garage | Split Bedroom | Traditional Craftsman | Transitional | Tray Ceilings | Walk-in Closet | Walk-in Pantry
13-1314 HOUSE PLAN – Spacious House Floor Plan with Blueprints and Modern Designs
- BOTH a PDF and CAD file (sent to the email provided/a copy of the downloadable files will be in your account here)
- PDF – Easily printable at any local print shop
- CAD Files – Delivered in AutoCAD format. Required for structural engineering and very helpful for modifications.
- Structural Engineering – Included with every plan unless not shown in the product images. Very helpful and reduces engineering time dramatically for any state. *All plans must be approved by engineer licensed in state of build*
Disclaimer
Verify dimensions, square footage, and description against product images before purchase. Currently, most attributes were extracted with AI and have not been manually reviewed.
My Home Floor Plans, Inc. does not assume liability for any deviations in the plans. All information must be confirmed by your contractor prior to construction. Dimensions govern over scale.
















