13-MANN HOUSE PLAN – Unique Beach House Floor Plan with 3 Floors & 5 Bedrooms
Explore a detailed beach house plan with 3 floors, 5 bedrooms, and 5+ bathrooms. This coastal-inspired design includes CAD blueprints, piling foundation, and an open layout.
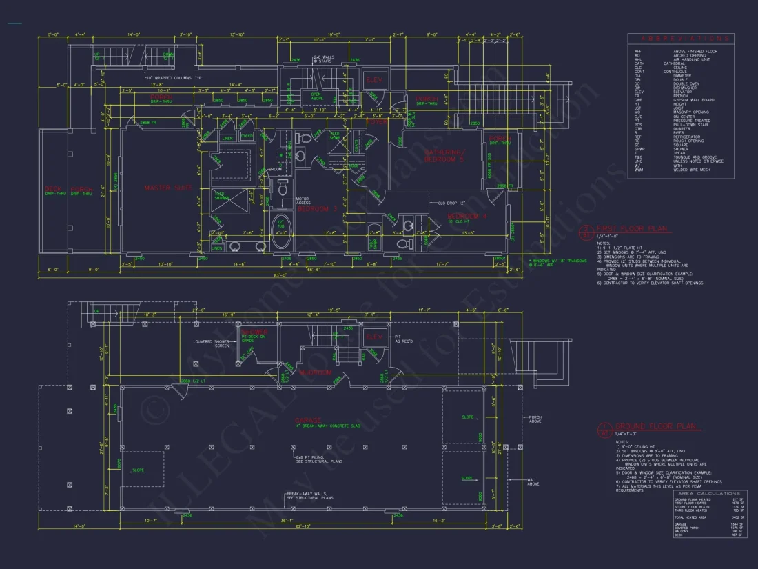
Stunning 3-Story Beach House Plan with Elevator and Wraparound Porch
Discover this 3,402 sq. ft. coastal house plan with 5 bedrooms, open floor plan, private balconies, and CAD blueprints—perfect for luxury seaside living.
This beach-style house plan offers the perfect blend of relaxation and refined design. With modern amenities and breezy layouts, it’s an ideal retreat for families, vacationers, or rental property investors seeking a functional floor plan with resort-style charm.
Key Features of the Home Plan
Living Areas – Heated & Unheated
- Heated area: 3,402 sq. ft. spread across three stories.
- Unheated extras: wraparound porch, balconies, rear deck, 3 garage bays.
Bedrooms & Bathrooms
- 5 spacious bedrooms including two luxurious Owner Suites—each with private balcony access.
- 5+ bathrooms including a Jack and Jill bath and spa-inspired en-suites for ultimate comfort.
Interior Highlights
- Open floor plan connects kitchen, dining, and living room on the second floor. Explore open layouts.
- Kitchen with walk-in pantry and 12′ ceilings in the reception area for airy, sunlit gatherings.
- Dedicated home office/study for remote work flexibility. Browse plans with home offices.
- Private elevator connects all floors—ideal for accessibility and convenience. See elevator-equipped designs.
- Multiple walk-in closets (WIC) and built-in mudroom for smart storage solutions.
Outdoor Living Features
- Wraparound porch offers seamless indoor-outdoor living.
- Multiple covered balconies and a large deck provide scenic views and relaxation zones.
- Piling foundation adapts to sloped or coastal lots, ensuring stability and elevation.
- Durable shake and siding exterior—built to withstand the coastal climate.
Architectural Style: Coastal Beach House
This design embodies traditional coastal architecture with elevated construction and smart materials. Ideal for sloping lot house plans or narrow coastal lots, it offers a luxurious yet practical layout perfect for seaside living.
Included Benefits with Every Plan
- CAD + PDF Files: Easily editable, printable, and ready to share with your builder.
- Unlimited Build License: Build as many times as you need—no limits or extra costs.
- Free Foundation Changes: Choose between slab, crawlspace, or basement at no extra charge.
- Structural Engineering Included: Professionally stamped and code-compliant for peace of mind.
- Lower Modification Costs: Enjoy personalized changes at up to 50% less than competitors.
- View Before You Buy: Preview every sheet upfront.
Similar Collections You Might Love
- Coastal House Plans
- Wraparound Porch House Plans
- House Plans with Elevators
- First Floor Owner Suites
- House Plans with Balcony
Frequently Asked Questions
What’s included with this house plan? You’ll receive editable CAD files, PDFs, a build-anywhere license, foundation swaps, and structural engineering with every purchase.
Can I customize the layout? Yes! Quick and affordable customizations are available—get a quote here.
Is this beach home ideal for sloped or coastal lots? Absolutely. The piling foundation and compact width make it perfect for seaside and narrow properties.
Does the plan come with an elevator? Yes, the floor plan includes a residential elevator that connects all three stories.
Can I preview the blueprints before purchasing? Yes. Click here to preview full plan sheets.
Learn More About Coastal Home Design
Explore the appeal and evolution of beach architecture in this expert guide on coastal architecture.
Start Building Your Dream Home Today
Want to customize this beach house plan or have questions? Reach out to our design team at support@myhomefloorplans.com or use our contact form.
Your coastal dream begins here—let’s build it together.
Original price was: $2,870.56.$1,454.99Current price is: $1,454.99.
999 in stock
* Please verify all details with the actual plan, as the plan takes precedence over the information shown below.
| Width | 37'-4" |
|---|---|
| Depth | 62'-10" |
| Htd SF | |
| Unhtd SF | |
| Bedrooms | |
| Bathrooms | |
| # of Floors | |
| # Garage Bays | |
| Architectural Styles | |
| Indoor Features | Elevator, Foyer, Living Room, Mudroom, Office/Study, Open Floor Plan |
| Outdoor Features | Covered Front Porch, Balcony, Covered Rear Porch, Deck, Upper Deck, Wrap Around Porch |
| Bed and Bath Features | Bedrooms on First Floor, Jack and Jill Bathroom, Split Bedrooms, Two Owner's Suites, Walk-in Closet |
| Kitchen Features | |
| Garage Features | |
| Condition | New |
| Ceiling Features | |
| Structure Type | |
| Exterior Material |
Nancy Nash – March 3, 2025
File hierarchy perfectly organized!
12 FT+ Ceilings | 9 FT+ Ceilings | Balconies | Basement Garage | Beach | Bedrooms on First and Second Floors | Breakfast Nook | Coastal | Covered Front Porch | Covered Rear Porches | Deck | Elevator | Foyer | Home Plans with Mudrooms | Jack and Jill | Kitchen Island | Large House Plans | Living Room | Narrow Lot Designs | Office/Study Designs | Open Floor Plan Designs | Sloped Lot | Split Bedroom | Traditional | Two Owner's Suites | Upper Deck | Walk-in Closet | Walk-in Pantry | Wrap Around Porch
13-MANN HOUSE PLAN – Unique Beach House Floor Plan with 3 Floors & 5 Bedrooms
- BOTH a PDF and CAD file (sent to the email provided/a copy of the downloadable files will be in your account here)
- PDF – Easily printable at any local print shop
- CAD Files – Delivered in AutoCAD format. Required for structural engineering and very helpful for modifications.
- Structural Engineering – Included with every plan unless not shown in the product images. Very helpful and reduces engineering time dramatically for any state. *All plans must be approved by engineer licensed in state of build*
Disclaimer
Verify dimensions, square footage, and description against product images before purchase. Currently, most attributes were extracted with AI and have not been manually reviewed.
My Home Floor Plans, Inc. does not assume liability for any deviations in the plans. All information must be confirmed by your contractor prior to construction. Dimensions govern over scale.











