14-1820 HOUSE PLAN – Elegant 2-Story House Floor Plan with CAD Designs & Blueprints
Discover an elegant 2-story house plan featuring 4 bedrooms, 5+ baths, open floor plan, detailed CAD blueprints, and modern architecture for your dream design.
Elegant 2-Story House Floor Plan with CAD Designs & Blueprints
Discover this elegant 4-bedroom, 5+ bath, 2-story house plan with 4,379 heated sq. ft., open layout, vaulted ceilings, and stunning CAD blueprints for modern living.
This Modern Craftsman house plan offers a perfect mix of comfort and functionality. Designed for modern living, it delivers timeless charm and smart space planning.
Key Features of the Home Plan
Living Areas – Heated & Unheated
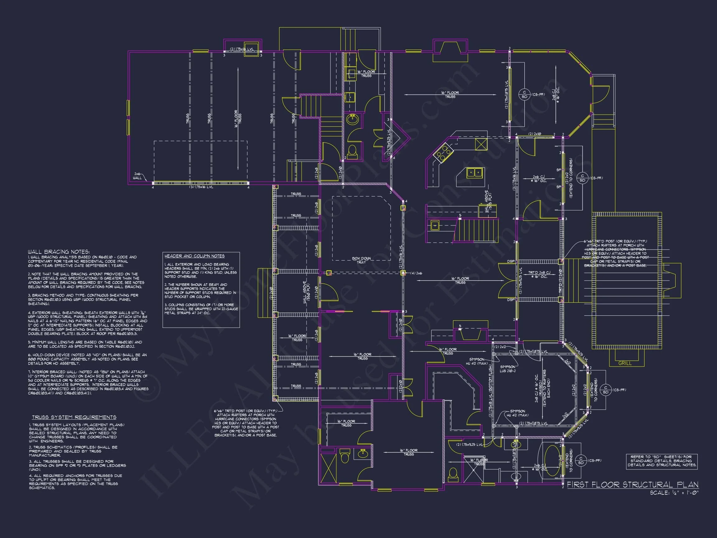
- Heated area: 4,379 sq. ft. over two stories.
- Unheated extras: Covered front/rear porches, screened porch, patio, wrap-around porch, and upper deck.
Bedrooms & Bathrooms
- 4 spacious bedrooms including a luxurious first-floor Owner Suite with private bath and walk-in closet.
- 5+ bathrooms, thoughtfully distributed for comfort and convenience.
Interior Highlights
- Vaulted ceilings create volume and brightness.
- Open floor plan connects the great room, kitchen, and dining area. View open layouts.
- Kitchen island, breakfast nook, and walk-in pantry for daily function and entertaining ease.
- Fireplace in the great room enhances cozy evenings. Browse fireplace plans.
- Bonus and recreational rooms offer extra space for hobbies, relaxation, or play.
- Dedicated office/study—perfect for working from home or focused tasks.
Garage & Storage Details
- Garage Bays: 2-car garage with front entry.
- Garage Type: Attached with added workshop area for storage or DIY use.
- Storage: Attic space, walk-in closets, pantry, and bonus room storage.
Outdoor Living Features
- Covered front and rear porches ideal for shaded lounging or quiet mornings.
- Screened porch and patio for year-round outdoor enjoyment.
- Wrap-around porch and upper deck provide elevated views and open-air entertainment zones.
- Outdoor fireplace and grill deck perfect for hosting memorable barbecues or family nights.
Architectural Style: Modern Craftsman
This design blends timeless materials like stone and hardiplank siding with elevated detailing—perfect for families who value character and efficiency in one package. Learn more about the Modern Craftsman style or explore its roots on ArchDaily.
Bonus Features
- Outdoor grill deck with fireplace enhances al fresco living.
- Flex rooms available for media, office, or fitness adaptations.
- Multiple entertainment areas, including recreational and bonus spaces.
Included Benefits with Every Plan
- CAD + PDF Files: Easily editable, printable, and ready to build.
- Unlimited Build License: Build once—or 100 times—with no extra fees.
- Free Foundation Changes: Swap between slab, crawlspace, or basement.
- Structural Engineering Included: Code-compliant and professionally stamped.
- Lower Modification Costs: Up to 50% less than competitors.
- View Before You Buy: See every sheet in advance.
Similar Collections You Might Love
- Traditional House Plans
- Covered Porch House Plans
- Plans with Kitchen Islands
- Plans with First Floor Owner Suites
- Modern Craftsman Plans
Frequently Asked Questions
What’s included with this house plan? All plans come with editable CAD files, printable PDFs, unlimited-build rights, structural engineering, and free foundation changes.
Can I customize the layout? Yes! We offer fast and affordable modifications. Get a quote here.
How large is the garage? It includes a spacious 2-car garage with workshop space and a front entry.
Does this plan include outdoor entertaining space? Absolutely—there’s a grill deck, outdoor fireplace, screened porch, and a full wrap-around porch.
Can I preview the blueprints? Yes. Preview every sheet before you buy.
Start Building Your Dream Home Today
Have questions or want to personalize your plan? Contact our expert team at support@myhomefloorplans.com or fill out our form.
Your future house starts with a great plan—customize it and build with confidence!
Original price was: $3,370.56.$1,754.99Current price is: $1,754.99.
999 in stock
* Please verify all details with the actual plan, as the plan takes precedence over the information shown below.
| Architectural Styles | |
|---|---|
| Width | 79'-8" |
| Depth | 77'-6" |
| Htd SF | |
| Unhtd SF | |
| Bedrooms | |
| Bathrooms | |
| # of Floors | |
| # Garage Bays | |
| Indoor Features | Attic, Bonus Room, Family Room, Fireplace, Foyer, Great Room, Mudroom, Office/Study, Open Floor Plan, Recreational Room |
| Outdoor Features | Covered Front Porch, Covered Rear Porch, Grill Deck, Outdoor Fireplace, Patio, Screened Porch, Upper Deck, Wrap Around Porch |
| Bed and Bath Features | Bedrooms on First Floor, Bedrooms on Second Floor, Jack and Jill Bathroom, Owner's Suite on First Floor, Walk-in Closet |
| Kitchen Features | |
| Garage Features | |
| Ceiling Features | |
| Structure Type | |
| Exterior Material |
Karen Li – September 2, 2023
Punch-list tracking simplified greatly!
10 FT+ Ceilings | Attics | Bedrooms on First and Second Floors | Bonus Rooms | Breakfast Nook | Builder Favorites | Covered Front Porch | Covered Patio | Covered Rear Porches | Designer Favorite | Family Room | Fireplaces | Foyer | Front Entry | Great Room | Grill Deck | Home Plans with Mudrooms | Jack and Jill | Kitchen Island | Large House Plans | Modern Craftsman Designs | Office/Study Designs | Open Floor Plan Designs | Outdoor Fireplace Designs | Owner’s Suite on the First Floor | Recreational Room | Screened Porches | Second Floor Bedroom | Southern | Traditional | Transitional | Upper Deck | Vaulted Ceiling | Walk-in Closet | Walk-in Pantry | Workshop | Wrap Around Porch
14-1820 HOUSE PLAN – Elegant 2-Story House Floor Plan with CAD Designs & Blueprints
- BOTH a PDF and CAD file (sent to the email provided/a copy of the downloadable files will be in your account here)
- PDF – Easily printable at any local print shop
- CAD Files – Delivered in AutoCAD format. Required for structural engineering and very helpful for modifications.
- Structural Engineering – Included with every plan unless not shown in the product images. Very helpful and reduces engineering time dramatically for any state. *All plans must be approved by engineer licensed in state of build*
Disclaimer
Verify dimensions, square footage, and description against product images before purchase. Currently, most attributes were extracted with AI and have not been manually reviewed.
My Home Floor Plans, Inc. does not assume liability for any deviations in the plans. All information must be confirmed by your contractor prior to construction. Dimensions govern over scale.















