15-1638 HOUSE PLAN – Modern 2.5-Story House Plan with Open Floor Designs and CAD Blueprint
Explore this 2.5-story house plan featuring 4 bedrooms, 3 baths, and a spacious open floor design. Includes CAD blueprints, detailed architecture, and modern features.
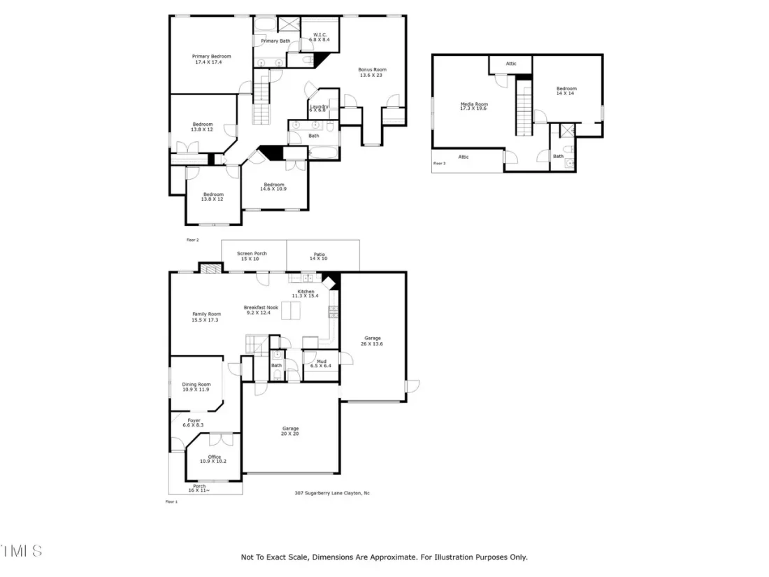
Modern 2.5-Story House Plan with Open Layout & Bonus Room
Explore this modern 2.5-story house plan with 2,907 heated sq. ft., 4 bedrooms, CAD blueprints, and spacious open floor design—perfect for stylish and functional living.
This modern house plan offers a perfect mix of contemporary design and smart space planning. Designed for today’s families and builders, it delivers comfort, flexibility, and aesthetic appeal in one thoughtful blueprint.
Key Features of the Home Plan
Living Areas – Heated & Unheated
- Heated area: 2,907 sq. ft. across 2.5 stories.
- Unheated extras: Front and rear covered porches, spacious patio, and a large garage with front and side entry options.
Bedrooms & Bathrooms
- 4 generously sized bedrooms including a private second-floor Owner Suite with walk-in closet.
- 3 full bathrooms including a Jack and Jill layout for added functionality.
Interior Highlights
- Open floor plan connecting kitchen, dining, and family spaces. Explore more open layouts.
- Home office/study ideal for professionals or students.
- Bonus room for recreation, fitness, or hobbies. See plans with bonus spaces.
- Large laundry room with ample organization space.
- Mudroom helps keep things clean and organized.
- Attic for convenient storage. View attic plans.
Outdoor Living Features
- Covered front and rear porches for shaded relaxation or entertaining.
- Spacious patio perfect for outdoor dining or family gatherings.
- Classic siding, shake, and shingle exteriors for curb appeal and durability.
Architectural Style: Classic Suburban & Craftsman
This design blends traditional materials with modern function, ideal for growing families or those building on a mid-size lot. From the shingle detailing to the open concept interiors, every inch is crafted for comfort and charm.
Included Benefits with Every Plan
- CAD + PDF Files: Editable and printable plans ready for immediate use.
- Unlimited Build License: Build one or many homes at no extra cost.
- Free Foundation Changes: Easily switch between slab, crawlspace, or basement.
- Structural Engineering Included: All plans meet code and are stamped by professionals.
- Lower Modification Costs: Up to 50% cheaper than any competitor.
- View Before You Buy: See every page upfront.
Similar Collections You Might Love
- Modern House Plans
- House Plans with Bonus Room
- Plans with Attics
- Plans with Home Offices
- Covered Back Porch Plans
Frequently Asked Questions
What’s included with this house plan? Every purchase includes CAD files, PDFs, structural engineering, unlimited-build license, and free foundation swaps.
Can I customize this layout? Yes—our team offers fast and affordable modifications. Get a custom quote here.
Is this design suitable for a sloped or narrow lot? Absolutely. The compact footprint and flexible garage entry make it ideal for many lot types.
How many floors does this home have? This is a 2.5-story layout with bedrooms thoughtfully placed for privacy and flow.
Can I view all blueprint sheets before purchasing? Yes! Preview every sheet before checkout.
Learn More About the Craftsman Style
Curious about the timeless features that define Craftsman homes? Explore the history and appeal of Craftsman architecture in this detailed guide.
Start Building Your Dream Home Today
Have questions or want to personalize your floor plan? Email us at support@myhomefloorplans.com or use our contact form.
Your future house starts with a great plan—customize it and build with confidence!
Original price was: $2,470.56.$1,254.99Current price is: $1,254.99.
999 in stock
* Please verify all details with the actual plan, as the plan takes precedence over the information shown below.
| Architectural Styles | |
|---|---|
| Width | 48'-0" |
| Depth | 61'-0" |
| Htd SF | |
| Unhtd SF | |
| Bedrooms | |
| Bathrooms | |
| # of Floors | |
| # Garage Bays | |
| Indoor Features | Attic, Bonus Room, Family Room, Foyer, Large Laundry Room, Mudroom, Office/Study, Open Floor Plan |
| Outdoor Features | |
| Bed and Bath Features | Bedrooms on Second Floor, Jack and Jill Bathroom, Owner's Suite on Second Floor, Walk-in Closet |
| Kitchen Features | |
| Garage Features | |
| Ceiling Features | |
| Structure Type | |
| Exterior Material |
No reviews yet.
10 FT+ Ceilings | 9 FT+ Ceilings | Attics | Bonus Rooms | Breakfast Nook | Builder Favorites | Classic Suburban | Covered Front Porch | Covered Patio | Covered Rear Porches | Craftsman | Family Room | Foyer | Front Entry | Home Plans with Mudrooms | Jack and Jill | Kitchen Island | Large House Plans | Large Laundry Room | Office/Study Designs | Open Floor Plan Designs | Owner’s Suite on Second Floor | Second Floor Bedroom | Side Entry Garage | Traditional | Vaulted Ceiling | Walk-in Closet | Walk-in Pantry
15-1638 HOUSE PLAN – Modern 2.5-Story House Plan with Open Floor Designs and CAD Blueprint
- BOTH a PDF and CAD file (sent to the email provided/a copy of the downloadable files will be in your account here)
- PDF – Easily printable at any local print shop
- CAD Files – Delivered in AutoCAD format. Required for structural engineering and very helpful for modifications.
- Structural Engineering – Included with every plan unless not shown in the product images. Very helpful and reduces engineering time dramatically for any state. *All plans must be approved by engineer licensed in state of build*
Disclaimer
Verify dimensions, square footage, and description against product images before purchase. Currently, most attributes were extracted with AI and have not been manually reviewed.
My Home Floor Plans, Inc. does not assume liability for any deviations in the plans. All information must be confirmed by your contractor prior to construction. Dimensions govern over scale.






















