17-2082 HOUSE PLAN – New American House Plan – 3-Bed, 2.5-Bath, 2,200 SF
New American and Craftsman house plan with stone and siding exterior • 3 bed • 2.5 bath • 2,200 SF. Open layout, covered porch, flexible bonus space. Includes CAD+PDF + unlimited build license.
Original price was: $2,476.45.$1,454.99Current price is: $1,454.99.
999 in stock
* Please verify all details with the actual plan, as the plan takes precedence over the information shown below.
| Width | 56'-0" |
|---|---|
| Depth | 91'-4" |
| Htd SF | |
| Unhtd SF | |
| Bedrooms | |
| Bathrooms | |
| # of Floors | |
| # Garage Bays | |
| Architectural Styles | |
| Indoor Features | Basement, Bonus Room, Family Room, Fireplace, Foyer, Great Room, Laundry Room, Living Room, Office/Study, Open Floor Plan, Recreational Room |
| Outdoor Features | Covered Front Porch, Covered Rear Porch, Deck, Screened Porch |
| Bed and Bath Features | Bedrooms on First Floor, Owner's Suite on First Floor, Walk-in Closet |
| Kitchen Features | |
| Garage Features | |
| Condition | New |
| Ceiling Features | |
| Structure Type | |
| Exterior Material |
Mark Miller – April 27, 2025
4 stars
9 FT+ Ceilings | After Build Photos | Basement | Basement Garage | Beamed | Bedrooms on First and Second Floors | Bonus Rooms | Breakfast Nook | Covered Front Porch | Covered Rear Porches | Craftsman | Designer Favorite | Family Room | Fireplaces | Fireplaces | First-Floor Bedrooms | Foyer | Front Entry | Great Room | Grill Deck | Kitchen Island | Large House Plans | Laundry Room | Living Room | Office/Study Designs | Open Floor Plan Designs | Owner’s Suite on the First Floor | Recreational Room | Screened Porches | Southern | Traditional | Walk-in Closet | Workshop
New American House Plan with Craftsman Character and Open Living
A thoughtfully designed 3-bedroom New American home blending Modern Traditional and Craftsman details with a timeless stone-and-siding exterior.
This New American house plan offers approximately 2,200 square feet of heated living space, carefully arranged to support modern lifestyles while maintaining classic architectural appeal. With its balanced rooflines, welcoming front porch, and a refined mix of stone accents and horizontal siding, this design delivers strong curb appeal that feels both current and enduring.
Influenced by Modern Traditional and Craftsman architecture, the home emphasizes comfort, functionality, and visual warmth. Clean proportions and thoughtful detailing make it equally suited for suburban neighborhoods, semi-rural settings, or upscale infill lots.
Exterior Architecture & Materials
The exterior design showcases a carefully curated palette of materials that reinforce the New American aesthetic. Horizontal lap siding provides a clean, tailored backdrop, while stone veneer accents ground the structure and add visual depth. Decorative gables and well-scaled windows introduce subtle Craftsman character without overwhelming the modern lines of the home.
- Horizontal lap siding for a refined, timeless appearance
- Stone veneer accents for texture and architectural weight
- Dimensional asphalt shingle roofing with multiple rooflines
- Covered front porch enhancing curb appeal and daily livability
- Attached front-entry garage integrated seamlessly into the design
This blend of materials reflects broader trends in contemporary residential architecture, where traditional craftsmanship meets modern efficiency and proportion. For deeper insight into how Craftsman principles influence modern homes, see this architectural overview on ArchDaily.
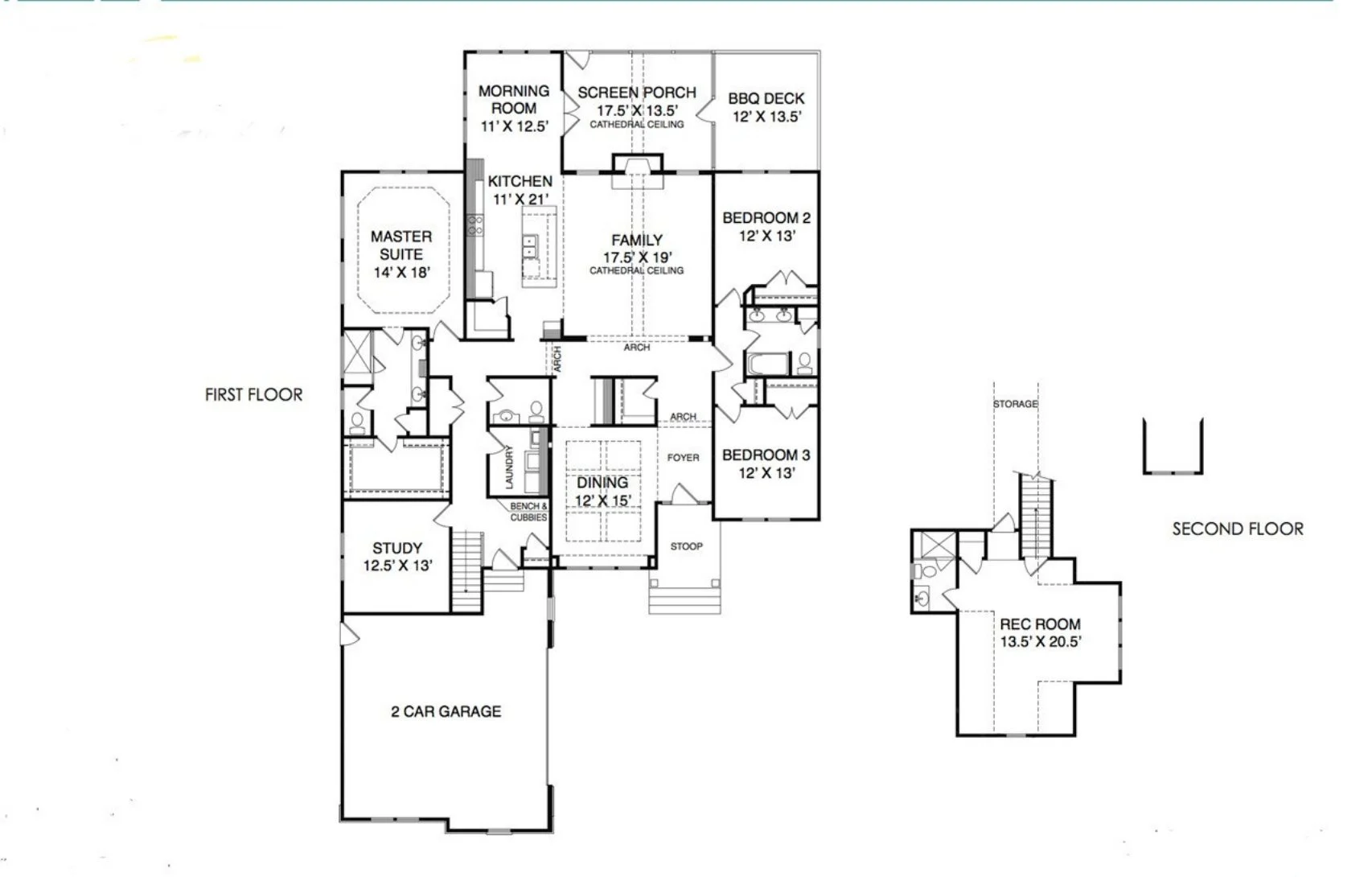
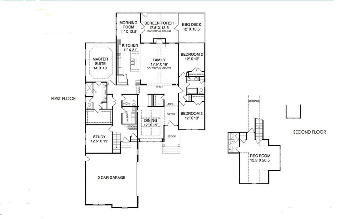
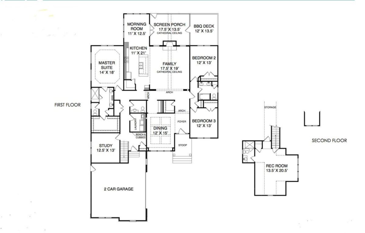
Interior Layout Overview
Inside, the plan centers on an open-concept main living area that promotes connection and flexibility. Sightlines between the kitchen, dining space, and great room allow for easy entertaining while maintaining defined functional zones.
Large windows bring in natural light, reinforcing the welcoming atmosphere and enhancing the sense of space throughout the main level. Ceiling heights are optimized to feel generous without sacrificing energy efficiency or build economy.
Living & Gathering Spaces
- Spacious great room designed for everyday comfort
- Open dining area with direct connection to the kitchen
- Optional fireplace location anchoring the main living space
- Easy access to outdoor living areas for seamless flow
Whether hosting guests or enjoying a quiet evening at home, these shared spaces adapt effortlessly to a wide range of lifestyles.
Kitchen Design
The kitchen serves as the functional heart of the home. Designed with efficiency and usability in mind, it balances generous counter space with smart storage solutions.
- Central island with seating for casual meals
- Walk-in pantry supporting organized storage
- Clear workflow between prep, cooking, and serving zones
- Open sightlines to dining and living areas
Bedrooms & Bathrooms
This plan includes three well-proportioned bedrooms and two and a half bathrooms, offering privacy, comfort, and flexibility for families or empty nesters alike.
Owner’s Suite
- Main-level owner’s suite for long-term convenience
- Spacious walk-in closet
- Private bath with double vanity and walk-in shower
- Optional soaking tub configuration
The owner’s suite is positioned for privacy, creating a quiet retreat separate from secondary bedrooms.
Secondary Bedrooms
- Two secondary bedrooms with ample closet space
- Shared full bathroom with efficient layout
- Flexible use as guest rooms, home office, or hobby spaces
Bonus Spaces & Flexibility
One of the strengths of this New American house plan is its adaptability. Optional bonus or flex spaces can evolve over time to meet changing needs.
- Potential bonus room for media, fitness, or playroom use
- Flex space ideal for a home office or study
- Expandable storage areas for long-term organization
Garage & Everyday Functionality
The attached front-entry garage provides secure parking and additional storage while maintaining the home’s balanced front elevation.
- Two-car garage configuration
- Direct interior access for convenience
- Space for tools, seasonal storage, or workshop needs
Energy Efficiency & Build Considerations
Designed with modern construction standards in mind, this home supports energy-efficient systems, insulation strategies, and window placement. Builders can further optimize performance through regionally appropriate materials and mechanical selections.
What’s Included with This House Plan
- CAD + PDF Files: Fully editable and construction-ready
- Unlimited Build License: Build multiple times with no additional fees
- Structural Engineering: Included and code-compliant
- Foundation Options: Slab, crawlspace, or basement adaptability
Who This Home Is Perfect For
- Homeowners seeking timeless curb appeal with modern livability
- Families wanting open living with private bedroom zones
- Builders targeting broad market appeal
- Buyers planning for long-term comfort and flexibility
Build with Confidence
This New American house plan delivers a refined balance of style, function, and adaptability. With its Craftsman-influenced details, durable exterior materials, and thoughtfully planned interior, it provides a strong foundation for creating a home that feels welcoming today and enduring for years to come.
Start building with confidence, knowing your plan includes professional documentation, flexibility for customization, and an unlimited build license designed to maximize long-term value.
17-2082 HOUSE PLAN – New American House Plan – 3-Bed, 2.5-Bath, 2,200 SF
- BOTH a PDF and CAD file (sent to the email provided/a copy of the downloadable files will be in your account here)
- PDF – Easily printable at any local print shop
- CAD Files – Delivered in AutoCAD format. Required for structural engineering and very helpful for modifications.
- Structural Engineering – Included with every plan unless not shown in the product images. Very helpful and reduces engineering time dramatically for any state. *All plans must be approved by engineer licensed in state of build*
Disclaimer
Verify dimensions, square footage, and description against product images before purchase. Currently, most attributes were extracted with AI and have not been manually reviewed.
My Home Floor Plans, Inc. does not assume liability for any deviations in the plans. All information must be confirmed by your contractor prior to construction. Dimensions govern over scale.


