19-1490 HOUSE PLAN – Stylish House Plan – Blueprint, Floor Plans, CAD Designs
Explore this expertly crafted house blueprint with 4 bedrooms, 3 baths, and 2 garage bays. Features include spacious living, office, recreation room, and luxury finishes.
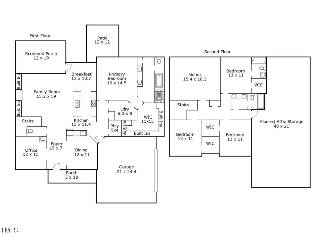
Stylish 2-Story House Plan with Traditional & Craftsman Charm
Explore this beautifully designed 2,999 sq. ft. two-story house plan featuring 4 bedrooms, 3 bathrooms, and luxury finishes—includes CAD blueprints and customizable layouts.
This traditional Craftsman house plan offers a perfect mix of Southern charm and modern livability. Designed with elegance and functionality in mind, it’s ideal for growing families or those who love to entertain.
Key Features of the Home Plan
Living Areas – Heated & Unheated
- Heated area: 2,999 sq. ft. over two thoughtfully organized stories.
- Unheated extras: Covered front porch, screened rear porch, and a 2-car garage.
Bedrooms & Bathrooms
- 4 spacious bedrooms including a luxurious Owner Suite on the first floor with a walk-in closet.
- 3 bathrooms including a Jack-and-Jill layout upstairs for added functionality.
Interior Highlights
- Smooth and tray ceilings add architectural elegance throughout.
- Open floor plan connects the kitchen, dining, and family areas. View open layouts.
- Kitchen island and walk-in pantry maximize cooking and storage convenience.
- Fireplace creates a cozy atmosphere for relaxing evenings. Browse fireplace plans.
- Dedicated office/study ensures productivity in a quiet, private space.
- Recreational room perfect for play, hobbies, or a media center.
Garage & Storage Details
- Garage Bays: 2-car garage designed for convenience.
- Garage Type: Attached garage with easy access to the main home.
- Storage: Walk-in closets and bonus spaces throughout for optimal organization.
Outdoor Living Features
- Covered front porch and a screened-in rear porch for outdoor relaxation in any weather.
- Durable exterior materials including board and batten, brick, and shingles provide timeless style.
Architectural Style: Traditional Craftsman
This design combines classic materials and Southern architecture with modern space planning. Perfect for homeowners who appreciate beauty, warmth, and practicality. Learn more about the Traditional Craftsman style or explore its origins on ArchDaily.
Bonus Features
- Jack-and-Jill bathroom for shared upstairs access.
- Private study for work-from-home or learning needs.
- Recreation room for games, hobbies, or home theater setup.
Included Benefits with Every Plan
- CAD + PDF Files: Editable, printable, and build-ready files included.
- Unlimited Build License: Build as many times as you’d like—no extra fees.
- Free Foundation Changes: Choose from slab, crawlspace, or basement options.
- Structural Engineering Included: Professionally stamped and code-compliant.
- Lower Modification Costs: Customize for 50% less than other providers.
- View Before You Buy: Preview full plan sets online.
Similar Collections You Might Love
- Traditional House Plans
- House Plans with Recreation Rooms
- House Plans with Kitchen Islands
- Screened Porch House Plans
- House Plans with Home Office
Frequently Asked Questions
What’s included with this house plan? Your purchase includes editable CAD files, printable PDFs, unlimited builds, structural engineering, and foundation flexibility.
Can I make changes to the floor plan? Absolutely. We offer quick, affordable customization. Get a free quote here.
Is this plan good for families? Yes! With 4 bedrooms, open spaces, and recreational areas, it’s perfect for families or multi-generational living.
Is there outdoor living space? Yes, this design includes both covered and screened porches ideal for year-round use.
Can I preview the plan details first? Yes! You can view every sheet before purchasing.
Start Building Your Dream Home Today
Have questions or want to personalize your plan? Contact our expert team at support@myhomefloorplans.com or fill out our contact form.
Start designing your future—our expert plans make it easier than ever!
Original price was: $2,470.56.$1,254.99Current price is: $1,254.99.
999 in stock
* Please verify all details with the actual plan, as the plan takes precedence over the information shown below.
| Width | 56'-0" |
|---|---|
| Depth | 54'-0" |
| Htd SF | |
| Unhtd SF | |
| Bedrooms | |
| Bathrooms | |
| # of Floors | |
| # Garage Bays | |
| Architectural Styles | |
| Indoor Features | Family Room, Fireplace, Foyer, Office/Study, Owner's Suite on the First Floor, Recreational Room |
| Outdoor Features | Covered Front Porch, Covered Rear Porch, Patio, Screened Porch |
| Bed and Bath Features | Bedrooms on First Floor, Jack and Jill Bathroom, Owner's Suite on First Floor, Split Bedrooms, Walk-in Closet |
| Kitchen Features | |
| Garage Features | |
| Ceiling Features | |
| Structure Type | |
| Exterior Material |
No reviews yet.
Bedrooms on First and Second Floors | Breakfast Nook | Covered Front Porch | Covered Patio | Covered Rear Porches | Craftsman | Designer Favorite | Family Room | Fireplaces | Foyer | Front Entry | Jack and Jill | Kitchen Island | Large House Plans | Office/Study Designs | Owner's Suite on the First Floor | Owner’s Suite on the First Floor | Recreational Room | Screened Porches | Side Entry Garage | Smooth & Conventional | Split Bedroom | Traditional | Traditional Farmhouse | Tray Ceilings | Walk-in Closet | Walk-in Pantry
19-1490 HOUSE PLAN – Stylish House Plan – Blueprint, Floor Plans, CAD Designs
- BOTH a PDF and CAD file (sent to the email provided/a copy of the downloadable files will be in your account here)
- PDF – Easily printable at any local print shop
- CAD Files – Delivered in AutoCAD format. Required for structural engineering and very helpful for modifications.
- Structural Engineering – Included with every plan unless not shown in the product images. Very helpful and reduces engineering time dramatically for any state. *All plans must be approved by engineer licensed in state of build*
Disclaimer
Verify dimensions, square footage, and description against product images before purchase. Currently, most attributes were extracted with AI and have not been manually reviewed.
My Home Floor Plans, Inc. does not assume liability for any deviations in the plans. All information must be confirmed by your contractor prior to construction. Dimensions govern over scale.













