19-1543 HOUSE PLAN – Elegant House Floor Plan Designs with Blueprint & CAD Details
Explore this spacious house design featuring 6 bedrooms, 5+ baths, and a 3-car garage. With comprehensive floor plans, CAD files, and modern architecture.
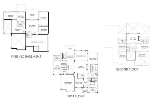
Elegant 2-Story House Plan with 6 Bedrooms, 5+ Baths & 3-Car Garage
Explore this luxurious house design with 3,691 heated sq. ft., CAD files, modern layout, screened porch, and expansive garage—engineered and ready to build.
This luxury house plan offers a perfect mix of sophistication and functionality. Designed for spacious living, it delivers modern conveniences with timeless curb appeal and smart layout choices for large families.
Key Features of the Home Plan
Living Areas – Heated & Unheated
- Heated area: 3,691 sq. ft. over two levels.
- Unheated extras: 3,993 sq. ft. including porches, basement, and oversized garage.
Bedrooms & Bathrooms
- 6 total bedrooms with split-bedroom layout for maximum privacy and comfort.
- 5+ bathrooms, including Jack-and-Jill setups and ensuite designs for convenience and elegance.
Interior Highlights
- Owner Suite on First Floor: Enjoy privacy, a walk-in closet, and spa-style bath.
- Open floor plan connects family room, breakfast area, and kitchen. See similar layouts.
- Recreational Room: Great for hobbies, media, or game nights. Explore rec room designs.
- Butler’s Pantry & Walk-In Pantry: Ideal for entertaining and storage efficiency. Browse plans with butler’s pantries.
Garage & Storage Details
- Garage Bays: 3-car garage with side-entry layout for upscale curb appeal.
- Garage Type: Attached and spacious—great for vehicles and workshop space.
- Storage: Basement level, mudroom area, and bonus closet space throughout.
Outdoor Living Features
- Screened porch and open patio perfect for outdoor dining and relaxation. See screened porch designs.
- Covered front porch for warm welcomes and classic charm. View covered porch plans.
- Exterior includes a mix of brick, siding, and shingles for durability and visual impact.
Architectural Style: Modern Traditional Luxury
This design blends timeless materials and spacious layouts—perfect for families who value high-end design and livable space. Learn more about the luxury house style or explore its roots on Architectural Digest.
Bonus Features
- Finished Basement: Ideal for storage or flexible living space.
- Grill Deck: Seamless indoor-outdoor transitions for entertaining.
- Elegant Foyer: Creates a grand impression from the moment you enter.
Included Benefits with Every Plan
- CAD + PDF Files: Instantly downloadable and editable for builders and architects.
- Unlimited Build License: Use the plan as many times as needed—perfect for personal or investment builds.
- Free Foundation Modifications: Choose basement, slab, or crawlspace without added fees. Learn about free changes.
- Structural Engineering Included: Professionally reviewed and stamped for code compliance. Why it matters.
- View Every Sheet Before You Buy: Preview what’s included</
Original price was: $2,870.56.$1,454.99Current price is: $1,454.99.
999 in stock
* Please verify all details with the actual plan, as the plan takes precedence over the information shown below.
| Width | 69'-1" |
|---|---|
| Depth | 63'-1" |
| Htd SF | |
| Unhtd SF | |
| Bedrooms | |
| Bathrooms | |
| # of Floors | |
| # Garage Bays | |
| Architectural Styles | |
| Indoor Features | Basement, Downstairs Laundry Room, Family Room, Fireplace, Foyer, Mudroom, Recreational Room |
| Outdoor Features | |
| Bed and Bath Features | Bedrooms on First Floor, Bedrooms on Second Floor, Jack and Jill Bathroom, Owner's Suite on First Floor, Split Bedrooms, Walk-in Closet |
| Kitchen Features | |
| Garage Features | |
| Condition | New |
| Ceiling Features | |
| Structure Type | |
| Exterior Material |
No reviews yet.
10 FT+ Ceilings | 9 FT+ Ceilings | Basement Garage | Bedrooms on First and Second Floors | Butler’s Pantry | Butler’s Pantry | Conventional | Covered Front Porch | Covered Patio | Downstairs Laundry Room | Family Room | Fireplaces | Foyer | Grill Deck | Home Plans with Mudrooms | Jack and Jill | Kitchen Island | Large House Plans | Owner’s Suite on the First Floor | Recreational Room | Screened Porches | Second Floor Bedroom | Side Entry Garage | Split Bedroom | Walk-in Closet | Walk-in Pantry
19-1543 HOUSE PLAN – Elegant House Floor Plan Designs with Blueprint & CAD Details
- BOTH a PDF and CAD file (sent to the email provided/a copy of the downloadable files will be in your account here)
- PDF – Easily printable at any local print shop
- CAD Files – Delivered in AutoCAD format. Required for structural engineering and very helpful for modifications.
- Structural Engineering – Included with every plan unless not shown in the product images. Very helpful and reduces engineering time dramatically for any state. *All plans must be approved by engineer licensed in state of build*
Disclaimer
Verify dimensions, square footage, and description against product images before purchase. Currently, most attributes were extracted with AI and have not been manually reviewed.
My Home Floor Plans, Inc. does not assume liability for any deviations in the plans. All information must be confirmed by your contractor prior to construction. Dimensions govern over scale.



















