20-1550 HOUSE PLAN – Charming Farmhouse House Plan with 3-Story Architecture & CAD Designs
Explore this stunning 3-story farmhouse house plan featuring spacious rooms, a modern open floor plan, 5 bedrooms, 3 garage bays, and CAD-ready designs.
Charming Farmhouse Home Plan with 3-Story Architecture & CAD Designs
Explore this stunning 3-story farmhouse home plan featuring 4,014 heated sq. ft., spacious rooms, 5 bedrooms, and CAD-ready designs—perfect for large families and entertaining.
This modern farmhouse house plan offers a perfect mix of comfort and functionality. Designed for modern living, it delivers timeless charm and smart space planning across three beautiful levels.
Key Features of the Home Plan
Living Areas – Heated & Unheated
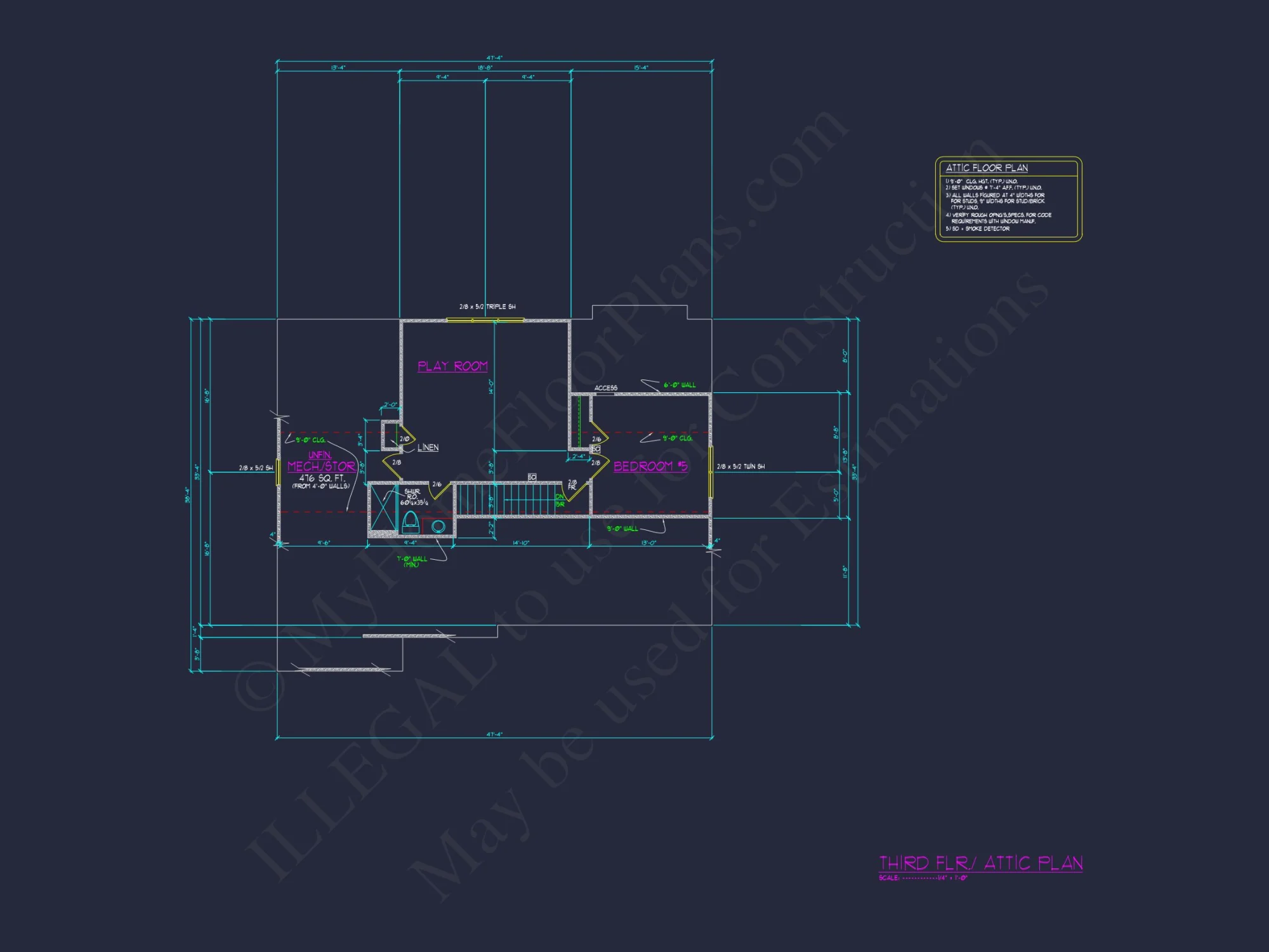
- Heated area: 4,014 sq. ft. across three expansive stories.
- Unheated extras: Screened porch, covered patios, and a spacious 3-car garage.
Bedrooms & Bathrooms
- 5 bedrooms, including a potential second-floor Owner Suite with ensuite and walk-in closet.
- 5.5 bathrooms, conveniently located for privacy and ease of access across all levels.
Interior Highlights
- Vaulted and coffered ceilings add volume and elegance to primary living spaces.
- Open floor plan connects kitchen, dining, and family areas. View open layouts.
- Kitchen island, walk-in pantry, and breakfast nook support daily living with ease.
- Recreational room adds versatility for play, fitness, or media.
- Basement included for storage, gym, or future expansion.
Garage & Storage Details
- Garage Bays: 3-car garage offering abundant vehicle and tool space.
- Garage Type: Attached garage with front entry for convenient access.
- Storage: Ample walk-in closets, basement storage, and mudroom space.
Outdoor Living Features
- Screened porch for all-weather relaxation.
- Covered front and rear porches ideal for lounging or gathering. Browse covered porch plans.
- Spacious patio perfect for grilling, dining, and outdoor enjoyment.
Architectural Style: Modern Farmhouse
This design blends timeless materials and thoughtful details—perfect for families who value character and efficiency in one package. Learn more about the Modern Farmhouse style or explore its roots on ArchDaily.
Bonus Features
- Tray ceilings and coffered designs in main rooms.
- Recreation room adaptable for home theater or gym.
- Optional basement expansion for added utility or living space.
Included Benefits with Every Plan
- CAD + PDF Files: Editable for custom changes and ready to build.
- Unlimited Build License: Build as many times as you like—no extra fees.
- Free Foundation Changes: Choose slab, crawlspace, or basement without added cost.
- Structural Engineering Included: Every plan includes stamped, code-compliant documentation.
- Lower Modification Costs: We beat our competitors by offering up to 50% lower fees.
- View Before You Buy: See every sheet before purchasing.
Similar Collections You Might Love
- Traditional Farmhouse House Plans
- House Plans with Recreation Room
- 5-Bedroom House Plans
- House Plans with Basement
- Plans with Kitchen Islands
Frequently Asked Questions
Does this plan include CAD and PDF files? Yes, every purchase includes editable CAD files and ready-to-print PDFs.
Can I customize the layout? Absolutely! We provide fast and affordable customizations. Request a quote.
Is the house suitable for large families? Yes—five bedrooms, multiple living areas, and open spaces are ideal for larger households.
What type of garage is included? A 3-bay attached front-entry garage is included in the plan.
Can I see the blueprints before buying? Definitely. Preview the full plan set here.
Start Building Your Dream Home Today
Have questions or want to personalize your plan? Contact our expert team at support@myhomefloorplans.com or fill out our form.
Your future house starts with a great plan—customize it and build with confidence!
Original price was: $3,370.56.$1,754.99Current price is: $1,754.99.
999 in stock
* Please verify all details with the actual plan, as the plan takes precedence over the information shown below.
| Architectural Styles | |
|---|---|
| Width | 60'-4" |
| Depth | 55'-8" |
| Htd SF | |
| Unhtd SF | |
| Bedrooms | |
| Bathrooms | |
| # of Floors | |
| # Garage Bays | |
| Indoor Features | Attic, Basement, Family Room, Fireplace, Foyer, Office/Study, Open Floor Plan, Recreational Room |
| Outdoor Features | Covered Front Porch, Covered Rear Porch, Patio, Screened Porch |
| Bed and Bath Features | Bedrooms on First Floor, Bedrooms on Second Floor, Owner's Suite on Second Floor, Split Bedrooms, Walk-in Closet |
| Kitchen Features | |
| Garage Features | |
| Condition | New |
| Ceiling Features | |
| Structure Type | |
| Exterior Material |
No reviews yet.
10 FT+ Ceilings | 9 FT+ Ceilings | Attics | Basement | Basement Garage | Bedrooms on First and Second Floors | Breakfast Nook | Coffered | Covered Front Porch | Covered Patio | Covered Rear Porches | Family Room | Farmhouse | Fireplaces | Fireplaces | First-Floor Bedrooms | Foyer | Front Entry | Kitchen Island | Large House Plans | Office/Study Designs | Open Floor Plan Designs | Owner’s Suite on Second Floor | Patios | Recreational Room | Screened Porches | Second Floor Bedroom | Side Entry Garage | Split Bedroom | Tray Ceilings | Walk-in Closet | Walk-in Pantry
20-1550 HOUSE PLAN – Charming Farmhouse House Plan with 3-Story Architecture & CAD Designs
- BOTH a PDF and CAD file (sent to the email provided/a copy of the downloadable files will be in your account here)
- PDF – Easily printable at any local print shop
- CAD Files – Delivered in AutoCAD format. Required for structural engineering and very helpful for modifications.
- Structural Engineering – Included with every plan unless not shown in the product images. Very helpful and reduces engineering time dramatically for any state. *All plans must be approved by engineer licensed in state of build*
Disclaimer
Verify dimensions, square footage, and description against product images before purchase. Currently, most attributes were extracted with AI and have not been manually reviewed.
My Home Floor Plans, Inc. does not assume liability for any deviations in the plans. All information must be confirmed by your contractor prior to construction. Dimensions govern over scale.
















