8-1702 HOUSE PLAN – Spacious House Plan with 4 Elevations and 1.5 Story Designs
Explore this 1.5-story house blueprint with 4 elevations. Featuring 3 bedrooms, recreational spaces, Craftsman styling, and a functional architectural plan.
Spacious 1.5-Story House Plan with 4 Elevations & Craftsman Design
Explore this flexible Craftsman house plan with 3 bedrooms, 1.5 stories, multiple front elevations, and 2-car garage—includes CAD blueprints and structural engineering.
This Craftsman-style house plan offers a perfect mix of comfort and functionality. Designed for modern living, it delivers timeless charm and smart space planning.
Key Features of the Home Plan
Living Areas – Heated & Unheated
- Heated area: 1.5 stories of thoughtfully arranged living space, including family zones and private bedrooms.
- Unheated extras: Covered front porch, screened rear porch, patio, and 2-car garage.
Bedrooms & Bathrooms
- 3 comfortable bedrooms, including a main-level Owner Suite with a generous walk-in closet.
- 3 full bathrooms to serve family and guests with ease and privacy.
Interior Highlights
- Vaulted ceilings enhance the open-concept layout and invite natural light.
- Open floor plan blends the kitchen, great room, and dining spaces seamlessly. View open layouts.
- Kitchen island and breakfast nook provide space for casual meals and everyday routines.
- Fireplace in the great room adds warmth and character. Browse fireplace plans.
Garage & Storage Details
- Garage Bays: 2-car garage provides practical parking or workshop options.
- Garage Type: Attached front-entry, ideal for narrow or sloped lots.
- Storage: Includes potential attic space, mudroom area, and bonus closet space throughout.
Outdoor Living Features
- Covered front porch offers a welcoming entry and shaded seating area.
- Screened-in rear porch lets you enjoy outdoor living all year long.
- Rear patio creates a perfect space for grilling, lounging, or entertaining guests.
Architectural Style: Traditional Craftsman
This design blends timeless materials and thoughtful details—perfect for families who value character and efficiency in one package. Learn more about the Craftsman style or explore its roots on ArchDaily.
Bonus Features
- Multiple front elevations (4 total) to match your personal taste and local curb appeal.
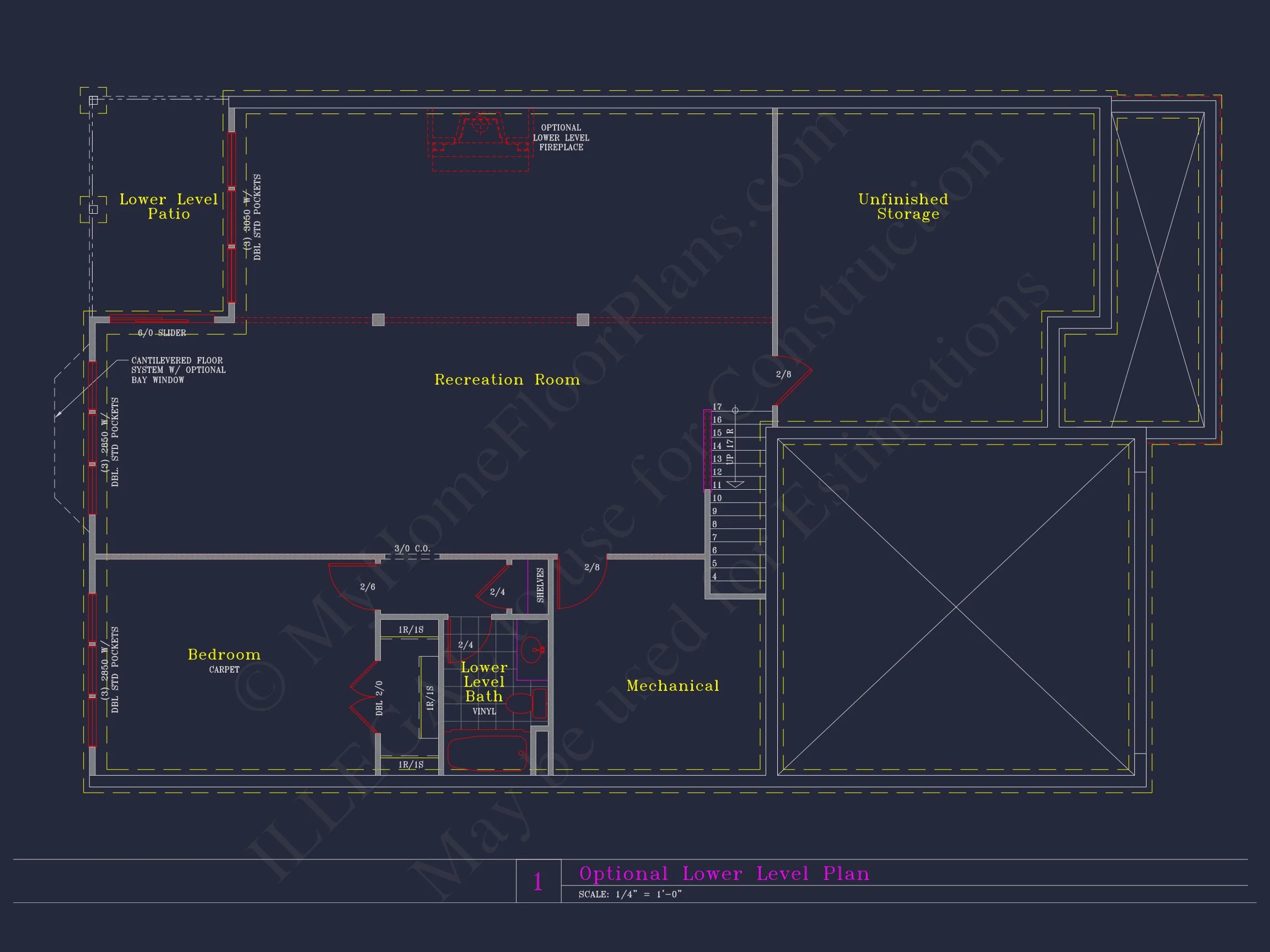
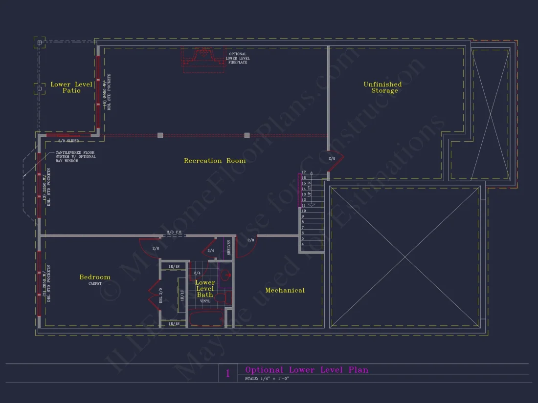
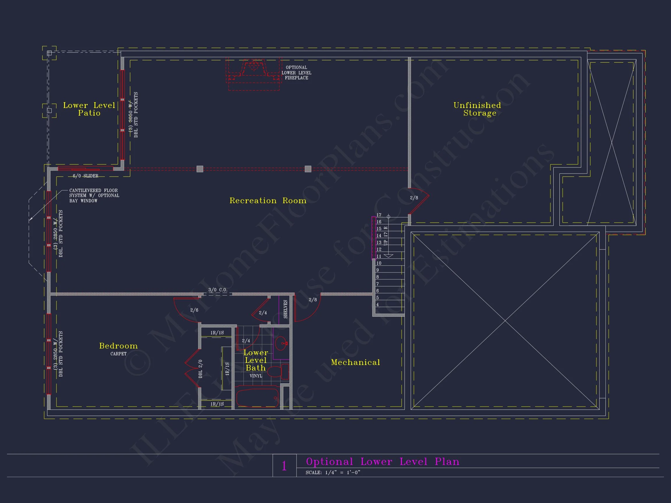
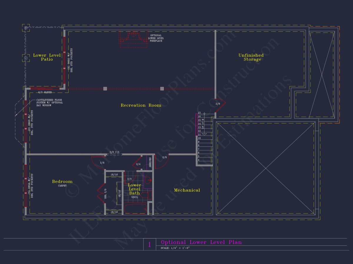
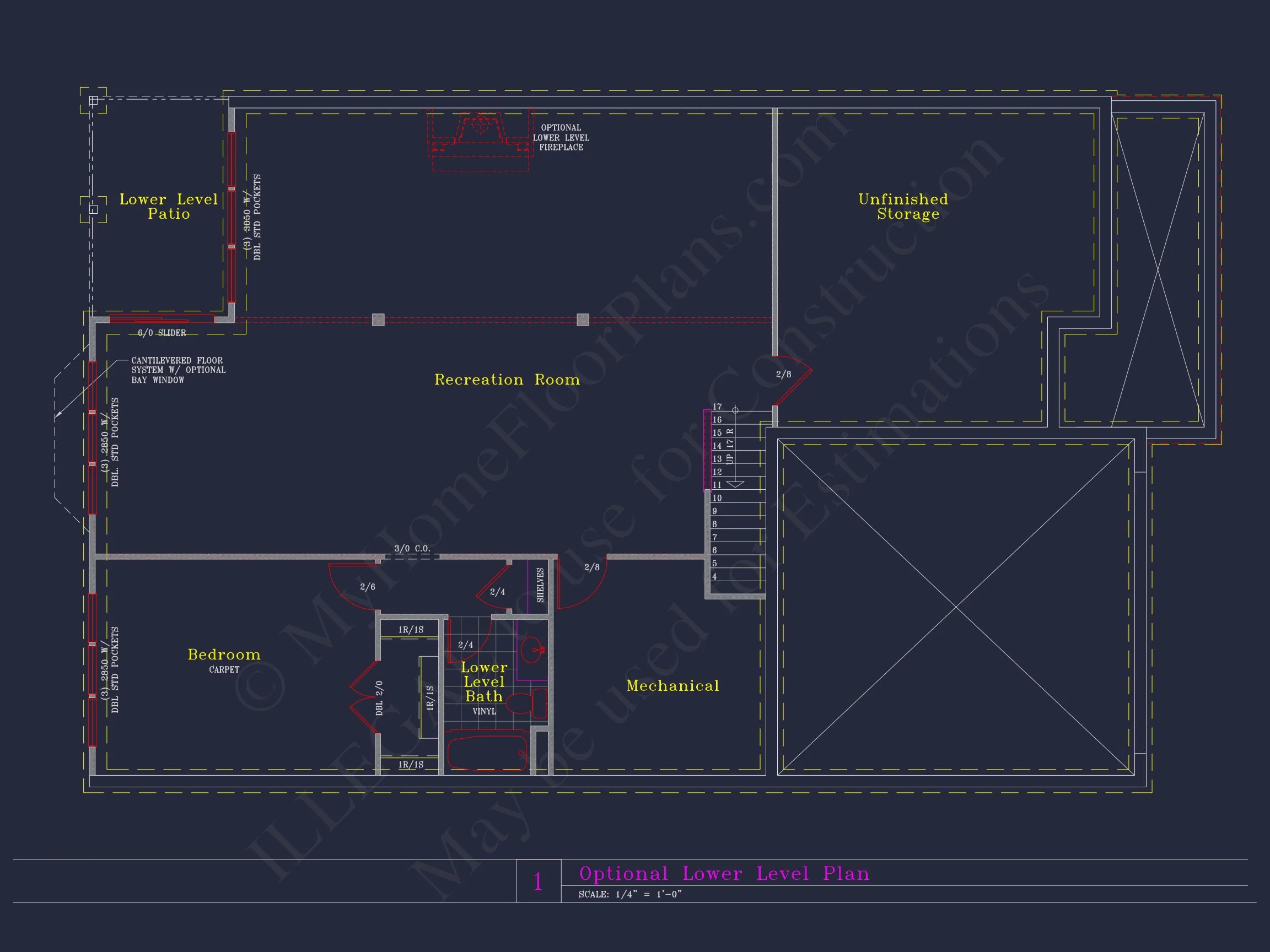
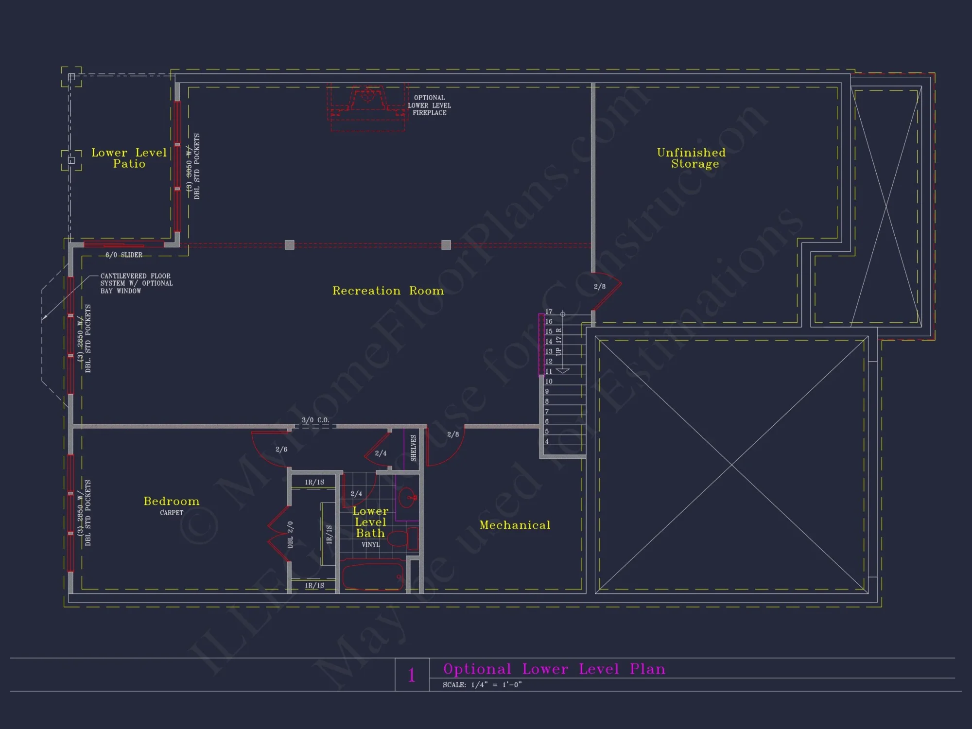
- Optional basement for additional living, storage, or recreational needs.
- Dedicated recreational room for play, hobbies, or entertainment.
Included Benefits with Every Plan
- CAD + PDF Files: Easily editable, printable, and ready to build.
- Unlimited Build License: Build once—or 100 times—with no extra fees.
- Free Foundation Changes: Swap between slab, crawlspace, or basement.
- Structural Engineering Included: Code-compliant and professionally stamped.
- Lower Modification Costs: Up to 50% less than competitors.
- View Before You Buy: See every sheet in advance.
Similar Collections You Might Love
- Traditional House Plans
- House Plans for Sloping Lots
- Plans with Recreation Rooms
- Covered Porch House Plans
- Plans with Kitchen Islands
Frequently Asked Questions
What’s included with this house plan? All plans come with editable CAD files, printable PDFs, unlimited-build rights, structural engineering, and free foundation changes.
Can I customize the layout? Yes! We offer fast and affordable modifications. Get a quote here.
How many elevation options are included? This plan includes 4 different front elevation styles, giving you maximum flexibility.
Is this plan good for sloped terrain? Yes. It’s designed specifically to accommodate sloping lots with optional basement access.
Can I preview the design sheets? Absolutely. View every sheet before you buy.
Start Building Your Dream Home Today
Have questions or want to personalize your plan? Contact our expert team at support@myhomefloorplans.com or fill out our form.
Your future house starts with a great plan—customize it and build with confidence!
Original price was: $2,470.56.$1,254.99Current price is: $1,254.99.
999 in stock
* Please verify all details with the actual plan, as the plan takes precedence over the information shown below.
| Width | 64'-8" |
|---|---|
| Depth | 50'-8" |
| Htd SF | |
| Unhtd SF | |
| Bedrooms | |
| Bathrooms | |
| # of Floors | |
| # Garage Bays | |
| Architectural Styles | |
| Indoor Features | Basement, Downstairs Laundry Room, Family Room, Fireplace, Foyer, Great Room, Living Room, Recreational Room |
| Outdoor Features | Covered Front Porch, Covered Rear Porch, Patio, Screened Porch |
| Bed and Bath Features | Bedrooms on First Floor, Bedrooms on Second Floor, Owner's Suite on First Floor, Walk-in Closet |
| Kitchen Features | |
| Garage Features | |
| Ceiling Features | |
| Structure Type | |
| Exterior Material |
Dr. Stephanie Colon DDS – December 30, 2023
Option sheets anticipate trending amenitiesoutdoor kitchens, flex rooms, pet showersso upgrades feel like flipping switches rather than launching new design contracts.
10 FT+ Ceilings | Affordable | Basement | Basement Garage | Bedrooms on First and Second Floors | Breakfast Nook | Covered Front Porch | Covered Patio | Covered Rear Porches | Craftsman | Downstairs Laundry Room | Family Room | Fireplaces | Fireplaces | First-Floor Bedrooms | Foyer | Front Entry | Great Room | Hall | Kitchen Island | Large House Plans | Living Room | Owner’s Suite on the First Floor | Patios | Recreational Room | Screened Porches | Second Floor Bedroom | Sloped Lot | Traditional | Vaulted Ceiling | Walk-in Closet | Walk-in Pantry
8-1702 HOUSE PLAN – Spacious House Plan with 4 Elevations and 1.5 Story Designs
- BOTH a PDF and CAD file (sent to the email provided/a copy of the downloadable files will be in your account here)
- PDF – Easily printable at any local print shop
- CAD Files – Delivered in AutoCAD format. Required for structural engineering and very helpful for modifications.
- Structural Engineering – Included with every plan unless not shown in the product images. Very helpful and reduces engineering time dramatically for any state. *All plans must be approved by engineer licensed in state of build*
Disclaimer
Verify dimensions, square footage, and description against product images before purchase. Currently, most attributes were extracted with AI and have not been manually reviewed.
My Home Floor Plans, Inc. does not assume liability for any deviations in the plans. All information must be confirmed by your contractor prior to construction. Dimensions govern over scale.

























































