12-2711 HOUSE PLAN – Elegant House Plan with 2-Story Floor Plan, CAD Designs & Blueprint
Explore this beautiful 2-story house plan with 4 bedrooms, 3 baths, a detailed CAD blueprint, spacious floor plans, and traditional architecture designs.
Elegant 2-Story House Plan with Traditional Design and CAD Blueprints
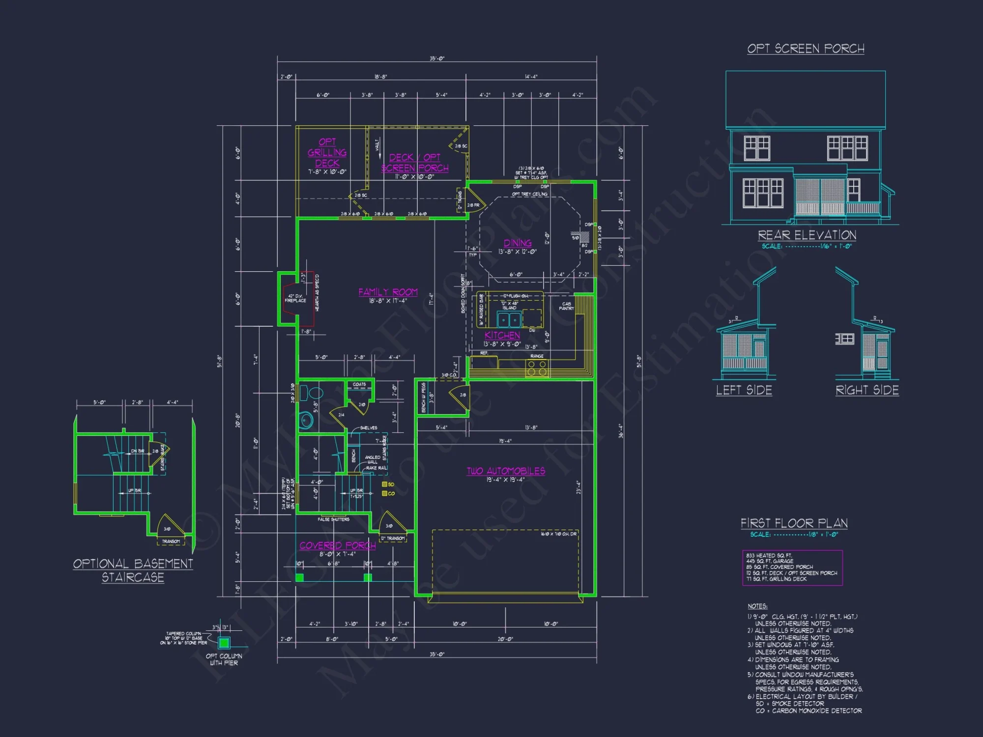
Explore this 2-story 2,078 sq. ft. house plan featuring 4 bedrooms, 3 baths, detailed CAD designs, and timeless architectural charm.
This traditional house plan offers a perfect mix of comfort and functionality. Designed for modern living, it delivers timeless charm and smart space planning.
Key Features of the Home Plan
Living Areas – Heated & Unheated
- Heated area: 2,078 sq. ft. across two stories.
- Unheated extras: Covered front and rear porches, grill deck, workshop space, attic storage, and screened porch.
Bedrooms & Bathrooms
- 4 well-sized bedrooms including a spacious Owner Suite with walk-in closet.
- 3 full bathrooms, including a Jack and Jill layout for the secondary bedrooms.
Interior Highlights
- Open floor plan connects kitchen, family, and dining spaces. View open layouts.
- Fireplace anchors the great room with cozy charm. Browse fireplace plans.
- Kitchen with breakfast nook enhances daily living and entertaining.
- Recreational room upstairs for flexible living—ideal for a playroom, media room, or home office.
Garage & Storage Details
- Garage Bays: 2-car garage with added workshop space.
- Garage Type: Attached with direct entry to main living space.
- Storage: Attic access, basement potential, and mudroom entry space.
Outdoor Living Features
- Covered front porch welcomes guests with charm and shelter.
- Rear porch and screened porch for quiet evenings and insect-free lounging.
- Grill deck and upper deck create perfect zones for outdoor cooking and relaxation.
Architectural Style: Traditional
This design blends timeless materials and thoughtful details—perfect for families who value character and efficiency in one package. Learn more about the Traditional style or explore its roots on ArchDaily.
Bonus Features
- Flexible recreational room upstairs for work, play, or guest use.
- Jack and Jill bathroom design adds privacy and convenience.
- Workshop space in garage ideal for hobbies or DIY projects.
Included Benefits with Every Plan
- CAD + PDF Files: Easily editable, printable, and ready to build.
- Unlimited Build License: Build once—or 100 times—with no extra fees.
- Free Foundation Changes: Swap between slab, crawlspace, or basement.
- Structural Engineering Included: Code-compliant and professionally stamped.
- Lower Modification Costs: Up to 50% less than competitors.
- View Before You Buy: See every sheet in advance.
Similar Collections You Might Love
- Traditional House Plans
- Narrow Lot House Plans
- Plans with First Floor Owner Suites
- Jack and Jill Bathroom House Plans
- Covered Porch House Plans
Frequently Asked Questions
What’s included with this house plan? All plans come with editable CAD files, printable PDFs, unlimited-build rights, structural engineering, and free foundation changes.
Can I customize the layout? Yes! We offer fast and affordable modifications. Get a quote here.
Is this suitable for narrow lots? Absolutely. Its narrow width and attached garage make it ideal for tight or urban lots.
Does this plan include outdoor living features? Yes, it includes covered porches, a grill deck, screened porch, and an upper deck for maximum enjoyment.
Can I preview the blueprints? Yes. Preview every sheet before you buy.
Start Building Your Dream Home Today
Have questions or want to personalize your plan? Contact our expert team at support@myhomefloorplans.com or fill out our form.
Your future house starts with a great plan—customize it and build with confidence!
Original price was: $2,470.56.$1,254.99Current price is: $1,254.99.
999 in stock
* Please verify all details with the actual plan, as the plan takes precedence over the information shown below.
| Width | 35'-0" |
|---|---|
| Depth | 51'-8" |
| Htd SF | |
| Unhtd SF | |
| Bedrooms | |
| Bathrooms | |
| # of Floors | |
| # Garage Bays | |
| Architectural Styles | |
| Indoor Features | Attic, Basement, Family Room, Fireplace, Foyer, Great Room, Living Room, Open Floor Plan, Recreational Room |
| Outdoor Features | Covered Front Porch, Covered Rear Porch, Deck, Screened Porch, Upper Deck |
| Bed and Bath Features | Bedrooms on Second Floor, Jack and Jill Bathroom, Walk-in Closet |
| Kitchen Features | |
| Garage Features | |
| Condition | New |
| Ceiling Features | |
| Structure Type | |
| Exterior Material |
No reviews yet.
9 FT+ Ceilings | Affordable | Attics | Basement Garage | Breakfast Nook | Covered Front Porch | Covered Rear Porches | Craftsman | Family Room | Fireplaces | Foyer | Front Entry | Great Room | Grill Deck | Jack and Jill | Kitchen Island | Living Room | Medium | Narrow Lot Designs | Open Floor Plan Designs | Recreational Room | Screened Porches | Second Floor Bedroom | Traditional | Upper Deck | Walk-in Closet | Workshop
12-2711 HOUSE PLAN – Elegant House Plan with 2-Story Floor Plan, CAD Designs & Blueprint
- BOTH a PDF and CAD file (sent to the email provided/a copy of the downloadable files will be in your account here)
- PDF – Easily printable at any local print shop
- CAD Files – Delivered in AutoCAD format. Required for structural engineering and very helpful for modifications.
- Structural Engineering – Included with every plan unless not shown in the product images. Very helpful and reduces engineering time dramatically for any state. *All plans must be approved by engineer licensed in state of build*
Disclaimer
Verify dimensions, square footage, and description against product images before purchase. Currently, most attributes were extracted with AI and have not been manually reviewed.
My Home Floor Plans, Inc. does not assume liability for any deviations in the plans. All information must be confirmed by your contractor prior to construction. Dimensions govern over scale.
































