14-1808 HOUSE PLAN – Luxury House Floor Plan with 4 Bedrooms, CAD Blueprint Designs
Explore a spacious 4-bedroom house plan with 2 stories, open floor plan, CAD architecture designs, large garage, and outdoor kitchen grill options.
Luxury 2-Story House Plan with Wine Room & Outdoor Kitchen
Explore this luxurious 4-bedroom house plan with 4,553 heated sq. ft., open floor plan, CAD blueprint designs, basement layout, and stunning outdoor kitchen options.
This luxury-style house plan offers a perfect mix of grandeur and practicality. Designed for upscale living, it blends elegance with thoughtful space planning—ideal for families, builders, and architects building on a sloped lot.
Key Features of the Home Plan
Living Areas – Heated & Unheated
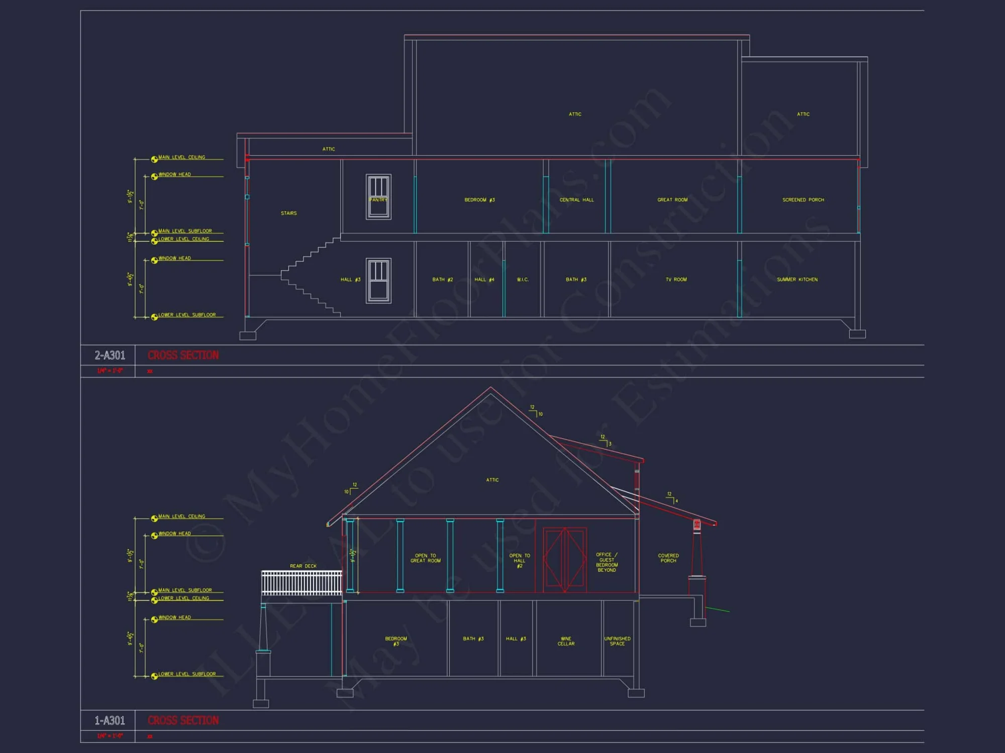
- Heated area: 4,553 sq. ft. spread across two spacious stories.
- Unheated extras: Covered porches, patio, balcony, and oversized garage.
Bedrooms & Bathrooms
- 4 spacious bedrooms including 2 luxurious Owner Suites—ideal for multigenerational living.
- 5+ bathrooms thoughtfully distributed for convenience and privacy.
Interior Highlights
- Vaulted ceilings enhance openness and bring architectural drama.
- Open floor plan seamlessly integrates great room, dining, and kitchen. Explore open layouts.
- Wine room adds an elegant touch for collectors and entertainers.
- Kitchen island and butler’s pantry provide functional elegance.
- Fireplace adds warmth and charm. See fireplace-equipped plans.
Garage & Storage Details
- Garage Bays: Oversized 3-car garage with front entry for easy access.
- Garage Type: Attached garage designed for spacious maneuvering.
- Storage: Includes basement space, mudroom cubbies, and bonus room storage.
Outdoor Living Features
- Covered front and rear porches for shaded enjoyment year-round.
- Screened porch for bug-free relaxation in warmer months.
- Patio and outdoor kitchen grill area perfect for hosting guests.
- Balcony to take in beautiful views from upper floors.
Architectural Style: Traditional Craftsman
This design blends stone, shake, and siding materials with classic Craftsman detailing—perfect for homeowners who value timeless appeal and functional luxury. Learn more about the Traditional Craftsman style or explore its background on ArchDaily.
Bonus Features
- Flex room for office, gym, or guest space.
- Basement foundation ideal for sloped lots and extended living/storage needs.
- Optional elevator addition for accessibility across floors.
Included Benefits with Every Plan
- CAD + PDF Files: Fully editable and print-ready construction sets.
- Unlimited Build License: Build once—or as many times as needed.
- Free Foundation Changes: Switch between crawlspace, basement, or slab without extra cost.
- Structural Engineering Included: Professionally stamped for local code compliance.
- Lower Modification Costs: Enjoy customization savings up to 50% vs. competitors.
- View Before You Buy: Preview all construction sheets.
Similar Collections You Might Love
- Luxury House Plans
- House Plans for Sloped Lots
- Plans with Kitchen Islands
- Mudroom Floor Plans
- Covered Porch Designs
Frequently Asked Questions
What’s included with this house plan? You get editable CAD files, printable PDFs, unlimited-build rights, engineering stamps, and foundation options—all in one package.
Can I modify this plan? Absolutely. We offer affordable modifications to suit your needs. Get a quote here.
Is this suitable for sloped lots? Yes. The basement foundation and front-entry garage are perfect for uneven terrain.
How many stories is this home? This is a 2-story layout with additional basement space.
Can I view the blueprints before buying? Yes. Preview the full plan set here.
Start Building Your Dream Home Today
Have questions or need help customizing? Contact our team at support@myhomefloorplans.com or reach out via our contact form.
Your dream house starts with a premium plan—customize it, preview it, and build with full confidence!
Original price was: $3,370.56.$1,754.99Current price is: $1,754.99.
999 in stock
* Please verify all details with the actual plan, as the plan takes precedence over the information shown below.
| Width | 87'-4" |
|---|---|
| Depth | 74'-8" |
| Htd SF | |
| Unhtd SF | |
| Bedrooms | |
| Bathrooms | |
| # of Floors | |
| # Garage Bays | |
| Architectural Styles | |
| Indoor Features | Basement, Fireplace, Foyer, Great Room, Mudroom, Open Floor Plan, Recreational Room |
| Outdoor Features | Covered Front Porch, Balcony, Covered Rear Porch, Grill Deck, Patio, Screened Porch |
| Bed and Bath Features | Bedrooms on First Floor, Bedrooms on Second Floor, Two Owner's Suites, Walk-in Closet |
| Kitchen Features | |
| Garage Features | |
| Ceiling Features | |
| Structure Type | |
| Exterior Material |
Jeffrey Kelly – January 24, 2024
Architect-grade quality, stock-plan price!
Mark Miller – May 18, 2025
4stars
9 FT+ Ceilings | Balconies | Basement | Basement Garage | Bedrooms on First and Second Floors | Builder Favorites | Butler’s Pantry | Butler’s Pantry | Covered Front Porch | Covered Patio | Covered Rear Porches | Craftsman | Fireplaces | Fireplaces | First-Floor Bedrooms | Foyer | Front Entry | Great Room | Grill Deck | Home Plans with Mudrooms | Kitchen Island | Large House Plans | Open Floor Plan Designs | Oversized Designs | Patios | Recreational Room | Screened Porches | Second Floor Bedroom | Sloped Lot | Traditional | Transitional | Two Owner's Suites | Vaulted Ceiling | Walk-in Closet | Walk-in Pantry
14-1808 HOUSE PLAN – Luxury House Floor Plan with 4 Bedrooms, CAD Blueprint Designs
- BOTH a PDF and CAD file (sent to the email provided/a copy of the downloadable files will be in your account here)
- PDF – Easily printable at any local print shop
- CAD Files – Delivered in AutoCAD format. Required for structural engineering and very helpful for modifications.
- Structural Engineering – Included with every plan unless not shown in the product images. Very helpful and reduces engineering time dramatically for any state. *All plans must be approved by engineer licensed in state of build*
Disclaimer
Verify dimensions, square footage, and description against product images before purchase. Currently, most attributes were extracted with AI and have not been manually reviewed.
My Home Floor Plans, Inc. does not assume liability for any deviations in the plans. All information must be confirmed by your contractor prior to construction. Dimensions govern over scale.

















