14-2103 HOUSE PLAN – Exceptional House Plan Blueprint for Modern Living & Design
Discover a stunning house plan with 4 bedrooms, 4 bathrooms, and modern blueprint designs. Featuring architectural CAD details, open floor plan, and more.
Exceptional 2-Story House Plan for Modern Living
Discover this stunning 4-bedroom house plan with 3,510 heated sq. ft., modern design details, and fully engineered CAD blueprints.
This modern suburban home plan offers the perfect blend of elegance and everyday practicality. Designed for flexibility and comfort, this layout includes open living areas, multiple porches, and thoughtful storage—all wrapped in timeless curb appeal.
Key Features of the Home Plan
Living Areas – Heated & Unheated
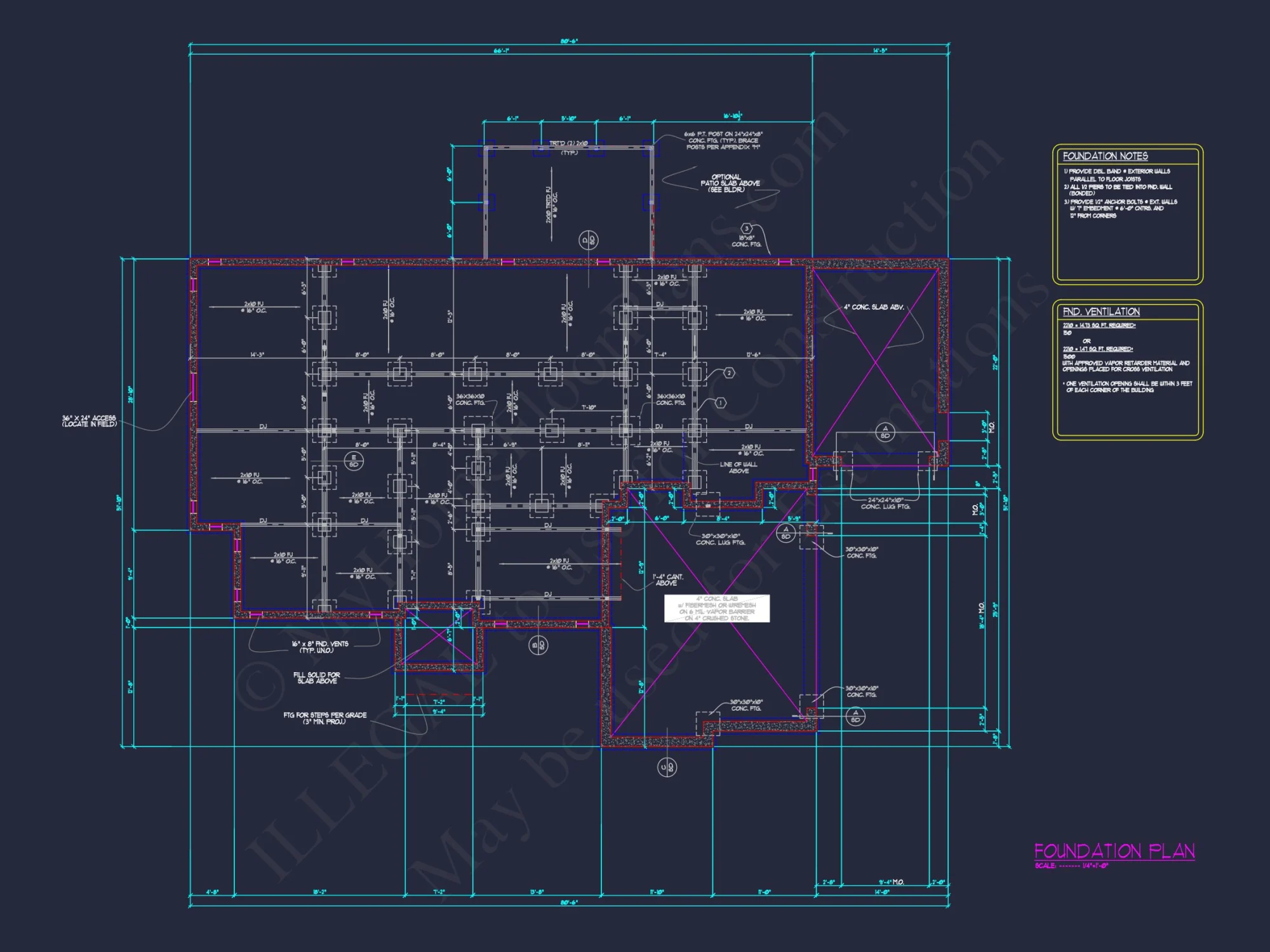
- Heated area: 3,510 sq. ft. across two beautifully arranged stories.
- Unheated extras: Screened porch, covered front and rear porches, and a basement and attic for extended storage or future customization.
Bedrooms & Bathrooms
- 4 total bedrooms, including a private first-floor Owner Suite with spacious walk-in closet and spa-style en-suite bath.
- 4 bathrooms in total, offering exceptional convenience and privacy throughout the home.
Interior Highlights
- Open floor plan for seamless transitions between the kitchen, family room, and great room. Explore open concept plans.
- Fireplace anchors the main living area, creating a cozy, inviting atmosphere. See more plans with fireplaces.
- Bonus room and recreation room provide flexible space for guests, hobbies, or media use.
- Dedicated laundry room conveniently placed near main living zones.
- Basement and attic for added utility, storage, or finished living potential.
Outdoor Living Features
- Covered rear porch and charming front porch ideal for relaxation and entertaining.
- Screened porch enhances year-round outdoor comfort and offers added living space.
- Concrete patio great for cookouts or casual evenings outdoors.
Architectural Style: Traditional with Craftsman and Suburban Flair
This design draws inspiration from traditional Craftsman architecture, blended with modern suburban conveniences. Durable brick and siding exteriors offer long-lasting appeal with low upkeep.
Included Benefits with Every Plan
- CAD + PDF Files: Fully editable and print-ready for architects, contractors, and builders.
- Unlimited Build License: Build as many times as you want—no restrictions.
- Free Foundation Changes: Adapt your plan to a slab, crawlspace, or basement at no extra charge.
- Structural Engineering Included: Professionally stamped and ready for permits.
- Lower Modification Costs: Enjoy up to 50% savings over competing services.
- View Before You Buy: Preview every sheet and detail before purchasing.
Similar Collections You Might Love
- House Plans with Owner Suite on Main
- House Plans with Bonus Rooms
- House Plans with Attics
- Plans Featuring Covered Porches
- Modern Suburban House Designs
Frequently Asked Questions
What’s included with this house plan? You’ll receive CAD files, PDFs, a full materials list, structural engineering, unlimited-build rights, and foundation change options.
Can I customize the layout? Absolutely! Modifications are easy and affordable. Get a custom quote to make it your own.
Does this plan offer attic and basement storage? Yes—both attic and basement areas are included for maximum flexibility and expansion.
How many floors does this home include? This is a 2-story house plan with a split-level bedroom configuration.
Can I see what’s included before purchasing? Yes. Preview all sheets and features here.
Learn More About the Traditional Craftsman Style
Explore the origins of this design style and why it remains a top choice for today’s families with this article from ArchDaily.
Start Building Your Dream Home Today
Questions? Ready to customize? Contact our expert design team at support@myhomefloorplans.com or fill out our online form.
Design smarter—build better. Your perfect home plan starts here!
Original price was: $2,870.56.$1,454.99Current price is: $1,454.99.
999 in stock
* Please verify all details with the actual plan, as the plan takes precedence over the information shown below.
| Width | 80'-6" |
|---|---|
| Depth | 51'-10" |
| Htd SF | |
| Unhtd SF | |
| Bedrooms | |
| Bathrooms | |
| # of Floors | |
| # Garage Bays | |
| Architectural Styles | |
| Indoor Features | Attic, Basement, Bonus Room, Family Room, Fireplace, Foyer, Great Room, Large Laundry Room, Office/Study, Open Floor Plan, Recreational Room |
| Outdoor Features | Covered Front Porch, Covered Rear Porch, Patio, Screened Porch |
| Bed and Bath Features | Bedrooms on First Floor, Bedrooms on Second Floor, Jack and Jill Bathroom, Owner's Suite on First Floor, Walk-in Closet |
| Kitchen Features | |
| Garage Features | |
| Condition | New |
| Ceiling Features | |
| Structure Type | |
| Exterior Material |
No reviews yet.
10 FT+ Ceilings | 9 FT+ Ceilings | Attics | Basement Garage | Bedrooms on First and Second Floors | Bonus Rooms | Breakfast Nook | Covered Front Porch | Covered Patio | Covered Rear Porches | Craftsman | Designer Favorite | Family Room | Fireplaces | Foyer | Front Entry | Great Room | Jack and Jill | Kitchen Island | Large House Plans | Large Laundry Room | Modern Suburban Designs | Office/Study Designs | Open Floor Plan Designs | Oversized Designs | Owner’s Suite on the First Floor | Recreational Room | Screened Porches | Second Floor Bedroom | Top Selling | Traditional | Transitional | Tray Ceilings | Walk-in Closet
14-2103 HOUSE PLAN – Exceptional House Plan Blueprint for Modern Living & Design
- BOTH a PDF and CAD file (sent to the email provided/a copy of the downloadable files will be in your account here)
- PDF – Easily printable at any local print shop
- CAD Files – Delivered in AutoCAD format. Required for structural engineering and very helpful for modifications.
- Structural Engineering – Included with every plan unless not shown in the product images. Very helpful and reduces engineering time dramatically for any state. *All plans must be approved by engineer licensed in state of build*
Disclaimer
Verify dimensions, square footage, and description against product images before purchase. Currently, most attributes were extracted with AI and have not been manually reviewed.
My Home Floor Plans, Inc. does not assume liability for any deviations in the plans. All information must be confirmed by your contractor prior to construction. Dimensions govern over scale.


















