15-1001 HOUSE PLAN – 5-Bed, 5+-Bath, 4,282 SF Transitional Craftsman House Plan
5 bed • 4 bath • 4,282 SF. Bonus room, porches, 2-car garage, mudroom. Includes CAD+PDF + unlimited build license. Start your build today.
5-Bed, 4-Bath Transitional Craftsman House Plan – 4,282 Sq Ft
Discover this stunning 3-story Transitional Craftsman house plan with 4,282 heated sq. ft., 5 bedrooms, 4 baths, CAD blueprints, and flexible living spaces.
This 5-bedroom house plan combines modern livability with timeless Transitional Craftsman design. With open layouts, versatile bonus rooms, and detailed architectural styling, it’s perfect for families seeking beauty and function.
Key Features of the Home Plan
Living Areas – Heated & Unheated
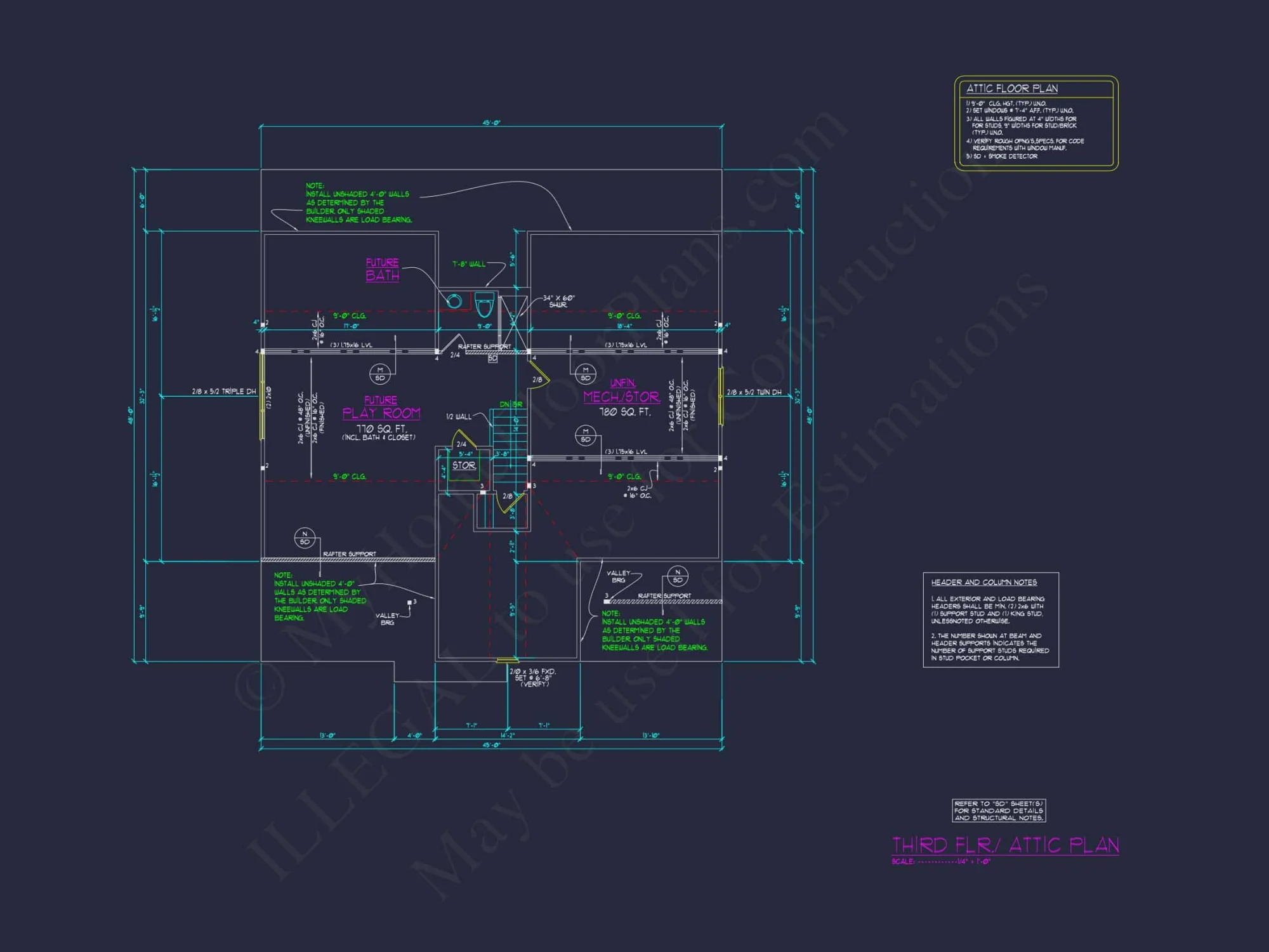
- Heated area: 4,282 sq. ft. across three levels.
- Unheated extras: Covered porch, screened porch, rear patio, and garage.
Bedrooms & Bathrooms
- 5 total bedrooms including a private second-floor Owner Suite with spa bath and walk-in closets.
- 4 full bathrooms including Jack-and-Jill setups for family convenience.
Interior Highlights
- Vaulted ceilings add light and volume to gathering spaces.
- Open floor plan connects kitchen, dining, and family room. Explore open layouts.
- Kitchen island with butler’s pantry and casual dining space. View kitchen island designs.
- Fireplace in the great room for warmth and ambiance. Browse fireplace plans.
- Bonus recreation room upstairs for media, hobbies, or play.
- Convenient upstairs laundry and mudroom with garage entry.
Garage & Storage Details
- Garage Bays: 2-car front-entry garage.
- Storage: Walk-in closets, mudroom cubbies, and pantry space.
Outdoor Living Features
- Covered front porch with Craftsman details for curb appeal.
- Screened rear porch and open patio for outdoor entertaining. See porch plans.
- Durable stone, siding, and board-and-batten exterior finishes.
Architectural Style: Transitional Craftsman
This home blends classic Craftsman charm with updated transitional details, creating a versatile style that feels both timeless and modern.
Bonus Features
- Recreation room and flex spaces for entertainment or home office.
- Upstairs laundry for everyday convenience.
- Spacious mudroom with practical storage solutions.
Included Benefits with Every Plan
- CAD + PDF Files: Fully editable and ready for builders.
- Unlimited Build License: Build as many times as you like.
- Free Foundation Changes: Choose slab, crawlspace, or basement.
- Structural Engineering Included: Professionally stamped and code-compliant.
- Lower Modification Costs: Save up to 50% compared to competitors.
- View Before You Buy: Preview all plan sheets.
Similar Collections You Might Love
- 5-Bedroom House Plans
- Plans with Jack and Jill Bathrooms
- Mudroom House Plans
- Covered Porch House Plans
- Recreation Room Plans
Frequently Asked Questions
What’s included? Every plan includes editable CAD + PDF files, unlimited build rights, free foundation changes, and engineering approval.
Can I modify this layout? Yes—customization is affordable and fast. Request a quote.
Does it fit narrow lots? Yes, and foundation options allow flexibility for different terrain.
Where is the Owner suite? On the second floor, offering privacy and separation.
Can I preview plans? Yes. Preview every sheet before purchase.
Start Building Your Dream Home Today
Ready to make this your forever home? Contact our experts or request modifications today.
Your dream Transitional Craftsman home begins with the right plan—customize it and build with confidence!
Original price was: $3,370.56.$1,754.99Current price is: $1,754.99.
999 in stock
* Please verify all details with the actual plan, as the plan takes precedence over the information shown below.
| Width | 59'-6" |
|---|---|
| Depth | 63'-0" |
| Htd SF | |
| Unhtd SF | |
| Bedrooms | |
| Bathrooms | |
| # of Floors | |
| # Garage Bays | |
| Architectural Styles | |
| Indoor Features | Attic, Basement, Bonus Room, Family Room, Fireplace, Foyer, Living Room, Mudroom, Office/Study, Open Floor Plan, Recreational Room, Upstairs Laundry Room |
| Outdoor Features | Covered Front Porch, Covered Rear Porch, Patio, Screened Porch |
| Bed and Bath Features | Bedrooms on Second Floor, Jack and Jill Bathroom, Owner's Suite on Second Floor, Split Bedrooms, Walk-in Closet |
| Kitchen Features | |
| Garage Features | |
| Condition | New |
| Ceiling Features | |
| Structure Type | |
| Exterior Material |
Andrea Tate MD – June 28, 2025
Stair clearance already code-perfect!
10 FT+ Ceilings | 9 FT+ Ceilings | After Build Photos | Attics | Basement | Basement Garage | Bonus Rooms | Breakfast Nook | Builder Favorites | Butler’s Pantry | Covered Front Porch | Covered Patio | Covered Rear Porches | Craftsman | Family Room | Fireplaces | Fireplaces | Foyer | Front Entry | Home Plans with Mudrooms | Jack and Jill | Large House Plans | Living Room | Office/Study Designs | Open Floor Plan Designs | Owner’s Suite on Second Floor | Patios | Recreational Room | Screened Porches | Second Floor Bedroom | Side Entry Garage | Split Bedroom | Traditional | Transitional | Upstairs Laundry Room | Walk-in Closet | Walk-in Pantry
15-1001 HOUSE PLAN – 5-Bed, 5+-Bath, 4,282 SF Transitional Craftsman House Plan
- BOTH a PDF and CAD file (sent to the email provided/a copy of the downloadable files will be in your account here)
- PDF – Easily printable at any local print shop
- CAD Files – Delivered in AutoCAD format. Required for structural engineering and very helpful for modifications.
- Structural Engineering – Included with every plan unless not shown in the product images. Very helpful and reduces engineering time dramatically for any state. *All plans must be approved by engineer licensed in state of build*
Disclaimer
Verify dimensions, square footage, and description against product images before purchase. Currently, most attributes were extracted with AI and have not been manually reviewed.
My Home Floor Plans, Inc. does not assume liability for any deviations in the plans. All information must be confirmed by your contractor prior to construction. Dimensions govern over scale.










































