16-1719 HOUSE PLAN – 5-Bed, 5-Bath, 3,919 SF Coastal Beach House Plan
5 bed • 5 bath • 3,919 SF. Elevator, open floor plan, bonus spaces. Includes CAD+PDF + unlimited build license. Start your build today.
Modern 3-Story Beach House Plan with Elevator & 5 Bedrooms
Explore this 3,919 sq. ft. modern coastal beach home with 5 bedrooms, 5 bathrooms, elevator access, and expansive outdoor porches—CAD blueprints included.
This beach house plan blends breezy coastal charm with modern conveniences. Raised for safety, it includes wide porches, a flexible layout, and flood-resilient construction perfect for oceanside living.
Key Features of the Home Plan
Living Areas – Heated & Unheated
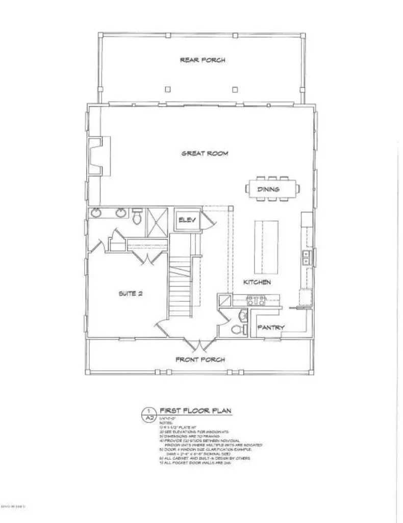
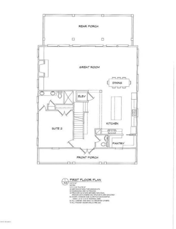
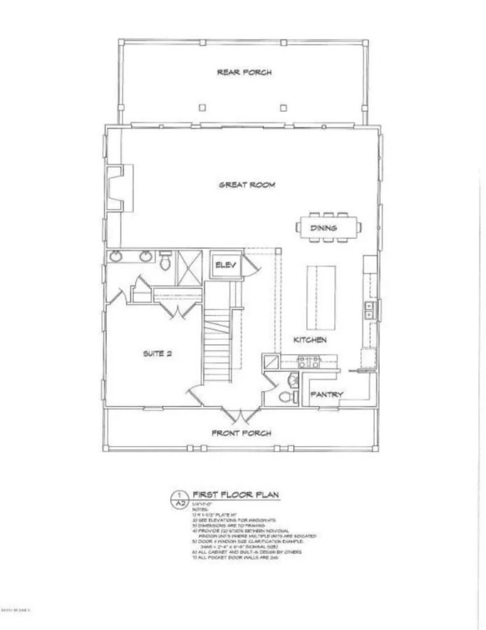
- Heated area: 3,919 sq. ft. spread across three levels of living space.
- Unheated extras: Covered porches, rear deck, 2-car garage, and ample storage zones.
Bedrooms & Bathrooms
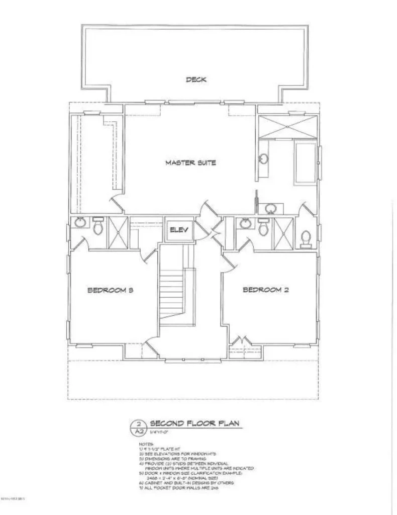
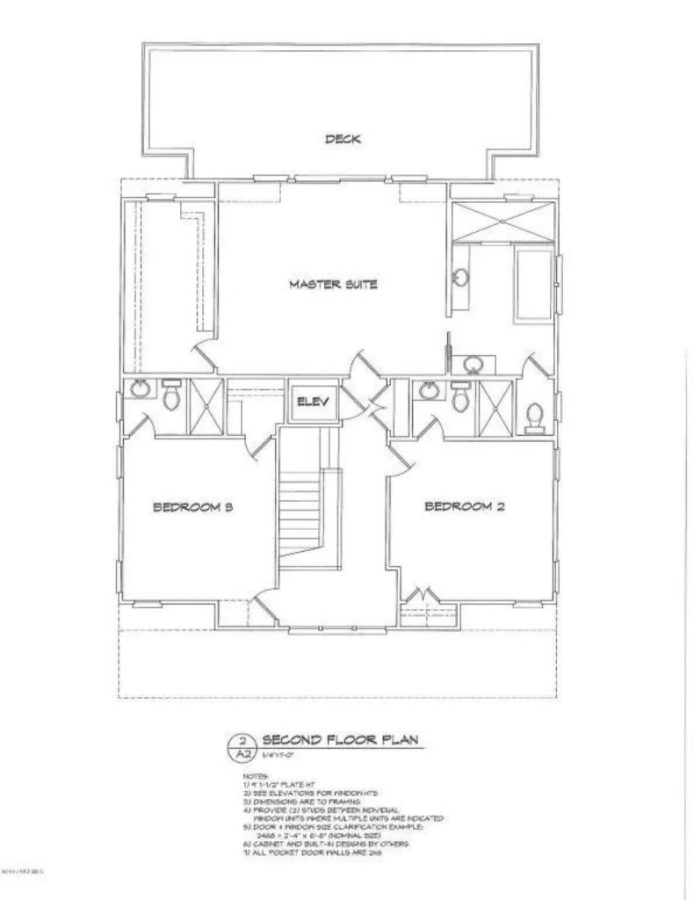
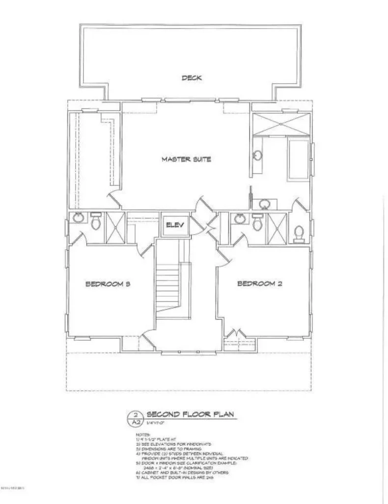
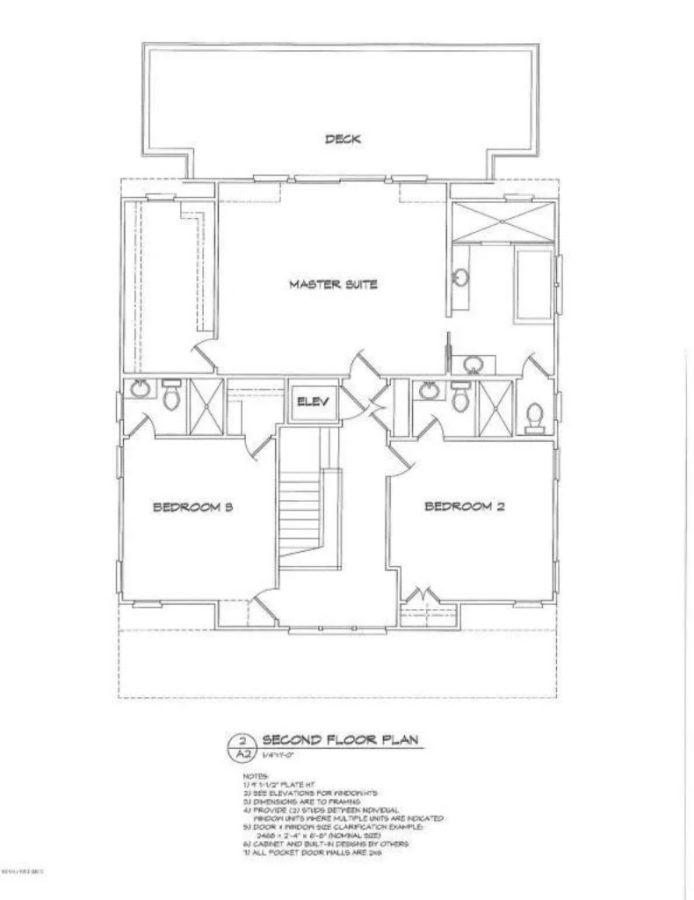
- 5 spacious bedrooms, including a private Owner Suite with vaulted ceilings, balcony access, and walk-in closet.
- 5 full bathrooms designed for family living and guest comfort, including Jack-and-Jill setups.
Interior Highlights
- Open floor plan ensures easy flow between the kitchen, dining, and great room. Explore open layouts.
- Elevator serves all three levels, offering accessibility and convenience.
- Great Room with Fireplace provides a cozy gathering space. Browse fireplace house plans.
- Chef’s Kitchen with walk-in pantry, oversized island, and breakfast bar. See kitchen island plans.
- Bonus rooms include a recreation room, guest suite, and optional home gym.
Garage & Storage Details
- Garage Bays: 2-car garage on the ground floor with secure entry.
- Garage Type: Enclosed and weather-protected, ideal for beachfront living.
- Storage: Multiple closets, utility areas, and basement-level storage rooms.
Outdoor Living Features
- Covered front porch for shade and entertaining.
- Rear porches and an upper-level deck perfect for capturing coastal breezes and ocean views.
- Durable siding and elevated pier foundation for long-lasting seaside resilience.
Architectural Style: Coastal Beach House
This home captures the essence of coastal living with influences from Carolina Low Country and Nantucket cottages. Wide porches, colorful siding, and flood-ready design make it both stylish and practical. Discover more about coastal architecture on ArchDaily.
Bonus Features
- Elevator for multi-level accessibility.
- Recreation or media room for family gatherings.
- Dedicated exercise or flex room for wellness and hobbies.
- Second-floor laundry for everyday convenience.
Included Benefits with Every Plan
- CAD + PDF Files: Fully editable and printable to suit your builder.
- Unlimited Build License: Build once—or multiple times—at no extra cost.
- Free Foundation Changes: Choose slab, crawlspace, or basement. Learn more.
- Structural Engineering Included: Code-compliant and professionally stamped. See details.
- Lower Modification Costs: Custom updates for 50% less than competitors. View options.
- Preview Before You Buy: Preview every sheet before purchase.
Similar Collections You Might Love
- Beach House Plans
- 5-Bedroom House Plans
- Plans with Elevators
- Covered Porch Designs
- Coastal House Plans
Frequently Asked Questions
Does this plan include an elevator? Yes. It is part of the base design serving all levels.
Is this home flood-ready? Yes. Elevated pier foundation and durable siding make it ideal for coastal lots.
Can I see the floor plans before purchase? Yes. Preview every blueprint sheet in advance.
Can I build multiple times? Yes. Each plan includes an unlimited build license.
Can I modify the design? Absolutely. Our modification service costs up to 50% less than competitors.
Start Building Your Dream Beach House Today
Have questions or want to customize this plan? Contact our expert team at support@myhomefloorplans.com or use the contact form.
Your dream coastal retreat starts with this plan—customize it today and build with confidence!
Original price was: $2,870.56.$1,454.99Current price is: $1,454.99.
999 in stock
* Please verify all details with the actual plan, as the plan takes precedence over the information shown below.
| Width | 39'-6" |
|---|---|
| Depth | 40'-0" |
| Htd SF | |
| Unhtd SF | |
| Bedrooms | |
| Bathrooms | |
| # of Floors | |
| # Garage Bays | |
| Architectural Styles | |
| Indoor Features | Elevator, Fireplace, Foyer, Great Room, Living Room, Open Floor Plan, Recreational Room, Upstairs Laundry Room |
| Outdoor Features | |
| Bed and Bath Features | Bedrooms on Second Floor, Jack and Jill Bathroom, Owner's Suite on Second Floor, Walk-in Closet |
| Kitchen Features | |
| Garage Features | |
| Ceiling Features | |
| Structure Type |
Charles Williams – May 28, 2024
Zero courier trips for stamps!
Mark Miller – May 18, 2025
4stars
Beach | Beamed | Butler’s Pantry | Butler’s Pantry | Coastal | Covered Front Porch | Covered Rear Porches | Detached | Elevator | Fireplaces | Fireplaces | Foyer | Great Room | Jack and Jill | Kitchen Island | Large House Plans | Living Room | Living Space | Narrow Lot Designs | Open Floor Plan Designs | Oversized Designs | Owner’s Suite on Second Floor | Recreational Room | Second Floor Bedroom | Side Entry Garage | Smooth & Conventional | Upstairs Laundry Room | Vaulted Ceiling | Walk-in Closet | Walk-in Pantry
16-1719 HOUSE PLAN – 5-Bed, 5-Bath, 3,919 SF Coastal Beach House Plan
- BOTH a PDF and CAD file (sent to the email provided/a copy of the downloadable files will be in your account here)
- PDF – Easily printable at any local print shop
- CAD Files – Delivered in AutoCAD format. Required for structural engineering and very helpful for modifications.
- Structural Engineering – Included with every plan unless not shown in the product images. Very helpful and reduces engineering time dramatically for any state. *All plans must be approved by engineer licensed in state of build*
Disclaimer
Verify dimensions, square footage, and description against product images before purchase. Currently, most attributes were extracted with AI and have not been manually reviewed.
My Home Floor Plans, Inc. does not assume liability for any deviations in the plans. All information must be confirmed by your contractor prior to construction. Dimensions govern over scale.
































































